Acheter un appartement à Orléans (45)

Modifier ma recherche
682 annonces
Benjamin POUX - iad
Annonce publiée le 27/11/2025
Proposée par Benjamin POUX - iad 27/11/2025
13
Appartement, 61 m²

204 000 € 3 344 €/m²
Appartement • 61 m² • 3 pièces • 2 chambres

Orléans (45000)

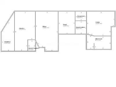
iad France - Benjamin Poux vous propose: Vivre dans l’un des quartiers les plus prisés d’Orléans, c’est maintenant possible. Dans une résidence récente et parfaitement entretenue du quartier Dunois, je propose un appartement T3 de 61 m² offrant un cadre de vie recherché. La pièce de vie lumineuse ouverte sur la cuisine donne accès à un balcon au calme, idéal pour profiter de l’extérieur. Deux chambres complètent cet espace fonctionnel et agréable. À proximité immédiate des commerces, du marché réputé de la Place Dunois et de toutes les commodités accessibles à pied, ce bien bénéficie d’un emplacement privilégié. La résidence offre de belles prestations, des communs soignés, un chauffage électrique et un diagnostic énergétique en C. Deux places de parking sécurisées en sous-sol viennent renforcer l’attractivité de l’appartement. Idéal pour un premier achat ou un investissement locatif, c’est un bien rare dans un secteur très demandé. La presente annonce immobiliere vise 3 lots situés dans une copropriété de 80 lots au total et ne faisant l'objet d'aucune procédure en cours citée à l'article L. 721-1 du code de la construction et de l'habitation. Montant moyen mensuel de charges déclaré par le vendeur : 92.17€ par mois (soit 1106 € annuel). Honoraires d'agence à la charge du vendeur. Information d'affichage énergétique sur ce bien : classe ENERGIE C indice 179 et classe CLIMAT A indice 5. Les informations sur les risques auxquels ce bien est exposé, y compris l'obligation légale de débroussaillement, sont disponibles sur le site Géorisques : http://www.georisques.gouv.fr. La présente annonce immobilière a été rédigée sous la responsabilité éditoriale de M Benjamin Poux mandataire indépendant en immobilier (sans détention de fonds), agent commercial de la SAS I@D France immatriculé au RSAC de orleans sous le numéro 809998495, titulaire de la carte de démarchage immobilier pour le compte de la société I@D France SAS.

Agent immobilier ?
Diffusez GRATUITEMENT toutes vos annonces sur Superimmo.com
Durand-Montouché
Annonce publiée le 05/12/2025
Proposée par Durand-Montouché 05/12/2025
6
Appartement, 46,32 m²

129 400 € 2 794 €/m²
Appartement • 46,32 m² • 2 pièces • 1 chambre

Orléans (45000)

A Orléans, en plein centre-ville, découvrez ce deux-pièces fonctionnel de 46 m² Carrez, vendu occupé, situé au 4ème étage avec ascenseur. Lumineux et bien distribué, il dispose d'un agréable balcon donnant sur la cour, offrant calme et confort. L'appartement bénéficie du double vitrage, d'un chauffage électrique individuel ainsi que d'une place de stationnement extérieure. Un investissement locatif de qualité. Classe énergie : D. Information risques et pollution : https://www.georisques.gouv.fr Copropriété de 56 lots - dont 56 lots habitation. (Pas de procédure en cours). Charges annuelles : 1179.01 euros.

ADVICIM immobilier
Annonce publiée le 06/08/2025 - mise à jour 05/12/2025
Proposée par ADVICIM immobilier 06/08/2025 - mise à jour 05/12/2025
9
Appartement, 51 m²

129 000 € 2 529 €/m²
Appartement • 51 m² • 2 pièces • 1 chambre

Orléans (45000)

EXCLUSIVITE REZ-DE-JARDIN T2 51 m² - RUE ST-MARC JARDIN 20 m² Idéalement situé au calme dans le quartier Saint-Marc, découvrez cet appartement T2 de 51 m² en rez-de-jardin d'une résidence sécurisée et très bien entretenue. Il offre un bel espace de vie ouvert sur un jardin privatif exposé sud/ouest, une chambre, une salle d'eau, un WC séparé, une entrée avec rangements. Un grand garage vient compléter ce bien. L'appartement se compose de : - Espace de vie 29 m² - Chambre 11 m² avec rangements - Salle d'eau 3 m² - WC séparé Atouts supplémentaires : - Jardin privatif 20 m² exposé sud-ouest - Garage fermé 16 m² - VIDEO disponible dans cette annonce Informations complémentaires : - DPE D - Montant estimé des dépenses annuelles d'énergie pour un usage standard : 840 - 1190 € - Charges courantes mensuelles moyennes de copropriété 71 € - Taxe foncière 1269 € - Copropriété de 40 lots d'habitation / aucune procédure en cours Prix du bien 129 000 € FAI (honoraires charge vendeur) Virginie QUEINEC Tel 06 08 33 79 68 Contactez moi pour visiter ce bien en toute sérénité. 94 avis Google 5 étoiles et une note de 4,9 sur Immodvisor confirment la satisfaction de mes clients Honoraires à la charge du vendeur. Dans une copropriété de 40 lots. Aucune procédure n'est en cours. Classe énergie D, Classe climat D Montant moyen estimé des dépenses annuelles d'énergie pour un usage standard, établi à partir des prix de l'énergie de l'année 2021 : entre 840.00 et 1190.00 €. Les informations sur les risques auxquels ce bien est exposé sont disponibles sur le site Géorisques : georisques.gouv.fr. Votre conseiller ADVICIM Réseau immobilier : Virginie QUEINEC Agent commercial (Entreprise individuelle) RSAC 904 042 025 RCP Valide

Myriam ROUX - Capifrance
Annonce publiée le 01/09/2025 - mise à jour 02/12/2025
Proposée par Myriam ROUX - Capifrance 01/09/2025 - mise à jour 02/12/2025
9
Appartement, 43 m²

110 000 € 2 558 €/m²
Appartement • 43 m² • 2 pièces • 1 chambre

Orléans (45000)

ORLEANS quartier Bannier, rue de la Gare, Bel appartement T2 proche gare SNCF, au 7ème et dernier étage d'un immeuble de 1958. Tramway au pied de la résidence, Cet appartement très lumineux et fonctionnel offre une vue dégagée sur les toits . Ravalement extérieur avec isolation thermique fait. Il se compose d'une entrée avec placard, une pièce de vie avec cuisine ouverte équipée et aménagée, un couloir, une chambre, salle de bains. Beaucoup de rangements. Parking privé à l'arrière de la résidence, placement libre. Cave en sous-sol. Local à vélos sécurisé Idéal pour une première acquisition ou investisseurs Proximité commerces et écoles Nombre de lots de la copropriété : 28, Montant moyen annuel de la quote-part de charges (budget prévisionnel)(chauffage gaz collectif, eau froide, eau chaude. Parties communes. Ascenseur) : 2420€ soit 201€ par mois. Les honoraires sont à la charge du vendeur. Les informations sur les risques auxquels ce bien est exposé sont disponibles sur le site Géorisques : www. georisques. gouv. fr. Réseau Immobilier CAPIFRANCE - Votre agent commercial (RSAC N°349 580 878 - Greffe de ORLEANS) Myriam ROUX Entrepreneur Individuel 06 07 60 79 53 - Réf.919817

Durand-Montouché
Annonce publiée le 17/07/2025 - mise à jour 22/11/2025
Proposée par Durand-Montouché 17/07/2025 - mise à jour 22/11/2025
9
Appartement, 45,6 m²

118 750 € 2 604 €/m²
Appartement • 45,6 m² • 2 pièces • 1 chambre

Orléans (45000)

A vendre, Appartement T2 de 45,60 m² (loi Carrez), situé en plein centre d'Orléans, dans le secteur prisé de la Cathédrale. Actuellement loué 550 euros charges comprises, ce bien est idéal pour un investisseur à la recherche d'un placement sécurisé. Situé dans une résidence bien entretenue avec jardin commun, gérée par un syndic professionnel, l'appartement se compose d'un séjour lumineux, d'une cuisine, d'une chambre séparée et d'une salle d'eau avec WC. A deux pas des commerces, des transports et du centre historique. Consultez l'état des risques pour ce bien sur : www.georisques.gouv.fr Copropriété de 8 lots - dont 8 lots habitation. (Pas de procédure en cours). Charges annuelles : 471.56 euros.

IMMODREAM
Annonce mise à jour le 11/07/2025
Proposée par IMMODREAM 11/07/2025
4
Appartement, 70,2 m²

96 000 € 1 368 €/m²
Appartement • 70,2 m² • 4 pièces • 3 chambres

Orléans (45100)

Cet appartement de 70,20 m² offre une vue dégagée et une exposition est-ouest le rendant très lumineux. L'entrée dessert toutes les pièces : séjour, cuisine indépendante, salle de bains, WC séparé, rangements ainsi que 3 chambres. Les parties communes sont entretenues avec soin et l'ascenseur a été récemment changé. Une cave et un garage fermé avec rangements complètent ce bien. A proximité de toutes les commodités à pied : crèche, écoles, commerces, transports en commun… Ce bien conviendra à une famille ou à un investisseur (précédemment loué sans interruption pendant plus de 20 ans). N'hésitez pas à m'appeler au 06 64 03 49 74 Guillaume PERLY Honoraires inclus de 6.67% TTC à la charge de l'acquéreur. Prix hors honoraires 90 000 €. Dans une copropriété de 485 lots. Aucune procédure n'est en cours. Classe énergie D, Classe climat C Montant estimé des dépenses annuelles d'énergie pour un usage standard : entre 1150.00 € et 1620.00 € sur les années 2021, 2022 et 2023 (abonnements compris). Les informations sur les risques auxquels ce bien est exposé sont disponibles sur le site Géorisques : georisques.gouv.fr. Ce bien vous est proposé par un agent commercial (Entreprise individuelle). Votre conseiller IMMODREAM : Guillaume PERLY Agent commercial (Entreprise individuelle) RSAC 2022AC00264 RCP SEGAP

Maisons et Apparts
Annonce publiée le 08/02/2025 - mise à jour 10/10/2025
Proposée par Maisons et Apparts 08/02/2025 - mise à jour 10/10/2025
8
Appartement, 52 m²

Prix en baisse 79 500 € 1 529 €/m²
Appartement • 52 m² • 2 pièces • 1 chambre

Orléans (45100)

Exclusivite - Proche de l'hippodrome, appartement de type 2 a vendre. Expose plein Ouest, cet appartement de 52m2, en rez-de-chaussee, dispose d'un salon, une chambre, une cuisine, une salle de bains et des toilettes independants. Un grand balcon de 12m2 et une cave( 6,5m2) completent ce bien., Cet appartement necessitera d'etre renover : huisseries, cuisine, salle d'eau, decoration et installation electrique devront etre revues., , La copropriete a vote les travaux d'isolation par l'exterieur et de changement de la chaudiere. Ces travaux, a la charge du VENDEUR, permettront d'obtenir un DPE en D. De plus, les charges actuelles ne beneficient pas encore des economies d'energie suite a ces travaux., , Copropriete de 117 lots dont 58 a usage d'habitation., Charges annuelles : 2020 euros., Pas de procedure en cours., , Renseignements et visites 7j./7

LEX IMMOBILIER
Annonce publiée le 11/05/2025 - mise à jour 12/10/2025
Proposée par LEX IMMOBILIER 11/05/2025 - mise à jour 12/10/2025
6
Appartement, 57,97 m²

116 000 € 2 001 €/m²
Appartement • 57,97 m² • 3 pièces • 2 chambres

Orléans (45100)

Lex immo vous présente appartement au 2 eme étage comprenant Entrée , salon salle a manger , cuisine , buanderie , salle d eau , 2 chambres . Des travaux de raffraichissement sont a prévoir . A visiter rapidement , ravalement fait Mme Le frapper karine 0647076189 (5.45 % honoraires TTC à la charge de l'acquéreur.) Copropriété de 200 lots - dont 200 lots habitation. (Pas de procédure en cours). Charges annuelles : 1300 euros. Karine LE FRAPPER (EI) Agent Commercial - Numéro RSAC : - .

KARINE DESMYTER - BSK Immobilier
Annonce publiée le 04/09/2025 - mise à jour 27/11/2025
Proposée par KARINE DESMYTER - BSK Immobilier 04/09/2025 - mise à jour 27/11/2025
9
Appartement, 69 m²

140 000 € 2 029 €/m²
Appartement • 69 m² • 3 pièces • 2 chambres

Orléans (45000)

À deux pas du centre-ville d'Orléans et des bords de Loire, appartement traversant de 69,78 m² au 1er étage. Séjour lumineux, cuisine indépendante, deux chambres. Travaux à prévoir, idéal projet de rénovation dans un quartier recherché. Il comprend : - Un séjour lumineux de 19,62 m², - Une cuisine indépendante de 10,67 m² avec placard attenant, - Deux chambres dont une grande de 16,93 m² avec rangements intégrés, - Une salle de bain de 8,71 m². Chauffage collectif au gaz. L'absence de copropriété garantit une gestion libre et sans charges collectives. Pour plus d'informations ou pour organiser une visite, contactez-nous dès maintenant. Cette annonce référence 301391 vous est présentée par votre agent commercial BSK Immobilier KARINE DESMYTER (EI) immatriculé au RSAC de ORLEANS (45000) sous le numéro 48066420000023. Prix du bien : 140 000,00 € Les honoraires d'agence sont à la charge du vendeur. A propos des performances énergétiques : Date de réalisation du diagnostic énergétique : 06/04/2023 Score DPE : 383 kWhEP/m²/an Score GES : 84 kgepCO2/m²/an Montant estimé des dépenses annuelles d'énergie pour un usage standard : entre 1590.00 € et 2190.00 € par an. Prix moyens des énergies indexés sur l'année 2021 (abonnements compris). Les informations sur les risques auxquels ce bien est exposé sont disponibles sur le site Géorisques : www.georisques.gouv.fr

JESSICA SANTANA - BSK Immobilier
Annonce publiée le 15/09/2025 - mise à jour 27/11/2025
Proposée par JESSICA SANTANA - BSK Immobilier 15/09/2025 - mise à jour 27/11/2025
10
Appartement, 47 m²

Prix en baisse 139 000 € 2 957 €/m²
Appartement • 47 m² • 2 pièces • 1 chambre

Orléans (45000)

Appartement de 46m² environ situé au 5ᵉ étage d'un immeuble récemment isolé par l'extérieur vous permettant une meilleure performance énergétique, cet appartement fonctionnel séduira aussi bien les investisseurs que les particuliers en quête d'un cadre de vie privilégié. Dès l'entrée, vous découvrirez une pièce de vie lumineuse avec accès direct à un balcon de 8 m² environ, la cuisine ouverte et équipée prolonge l'espace convivial. L'appartement se compose également d'une chambre confortable, de deux placards, d'une salle d'eau moderne et de toilettes séparées. En complément, vous disposerez d'une cave et d'un box fermé en sous-sol. Son emplacement stratégique à Orléans vous permettra de profiter à la fois du charme du centre-ville, de la Loire ainsi que la proximité des commodités (tram et bus, commerces, écoles). N'hésitez pas à me rappeler pour une visite!!! Cette annonce référence 299145 vous est présentée par votre agent commercial BSK Immobilier JESSICA SANTANA (EI) immatriculé au RSAC de ORLEANS (45000) sous le numéro 91263608100016. Prix du bien : 139 000,00 € Les honoraires d'agence sont à la charge du vendeur. A propos de la copropriété : Pas de procédure en cours. Nombre de lots : 3 Charges prévisionnelles annuelles : 2 179,00 € A propos des performances énergétiques : Date de réalisation du diagnostic énergétique : 03/08/2025 Score DPE : 118 kWhEP/m²/an Score GES : 6 kgepCO2/m²/an Montant estimé des dépenses annuelles d'énergie pour un usage standard : entre 420.00 € et 620.00 € par an. Prix moyens des énergies indexés sur l'année 2021 (abonnements compris). Les informations sur les risques auxquels ce bien est exposé sont disponibles sur le site Géorisques : www.georisques.gouv.fr

Aurélie LEROY - iad
Annonce publiée le 21/10/2025 - mise à jour 24/11/2025
Proposée par Aurélie LEROY - iad 21/10/2025 - mise à jour 24/11/2025
12
Appartement, 50 m²

Prix en baisse 144 900 € 2 898 €/m²
Appartement • 50 m² • 3 pièces • 2 chambres

Orléans (45000)

iad France - Aurélie Leroy vous propose: Appartement 3 pièces, 2 chambres – Quartier Dunois – Orléans Situé Boulevard de Châteaudun, dans le quartier Dunois, l’un des plus recherchés d’Orléans, cet appartement en rez-de-chaussée offre un cadre de vie agréable et une localisation privilégiée. À proximité immédiate du centre-ville, des commerces, des écoles et des transports, il réunit confort, praticité et qualité d’adresse. Description du bien: Installé dans un immeuble bien entretenu, ce bien se compose de : - une entrée - un séjour, avec un espace cuisine aménagée, - deux chambres, - une salle d’eau, - des WC séparés, - et une cave privative en sous-sol. Stationnement aisé dans la rue, avec parkings gratuits à proximité. Les 6 atouts majeurs: 1/Emplacement de premier ordre dans un quartier très prisé d’Orléans, 2/Appartement propre, prêt à être occupé, 3/Belle surface de 50 m² bien agencée, 4/Accès de plain-pied, idéal pour seniors 5/Copropriété saine et bien suivie. 6/Chauffage et production d'eau chaude individuels (électrique) Informations financières - Charges de copropriété : 243 € / trimestre Une opportunité idéale pour un premier achat, une résidence principale ou un investissement locatif pérenne. La presente annonce immobiliere vise 2 lots situés dans une copropriété de 18 lots au total et ne faisant l'objet d'aucune procédure en cours citée à l'article L. 721-1 du code de la construction et de l'habitation. Montant moyen mensuel de charges déclaré par le vendeur : 81€ par mois (soit 972 € annuel). Honoraires d'agence à la charge du vendeur. Information d'affichage énergétique sur ce bien : classe ENERGIE E indice 259 et classe CLIMAT B indice 8. Les informations sur les risques auxquels ce bien est exposé, y compris l'obligation légale de débroussaillement, sont disponibles sur le site Géorisques : http://www.georisques.gouv.fr. La présente annonce immobilière a été rédigée sous la responsabilité éditoriale de Mme Aurélie Leroy mandataire indépendant en immobilier (sans détention de fonds), agent commercial de la SAS I@D France immatriculé au RSAC de ORLEANS sous le numéro 843239427, titulaire de la carte de démarchage immobilier pour le compte de la société I@D France SAS.

ONE SHOT IMMOBILIER
Annonce publiée le 28/11/2025
Proposée par ONE SHOT IMMOBILIER 28/11/2025
5
Appartement, 66 m²

199 900 € 3 029 €/m²
Appartement • 66 m² • 3 pièces • 2 chambres

Orléans (45000)

Appartement T3, Charmant et Lumineux au Coeur d'Orléans. Situé au coeur d'Orléans, proche des commodités, des établissement scolaires et des transports en communs. Appartement traversant où chaque pièce de vie dispose d'une fenêtre. Il se compose de deux chambres, d'une cuisine, d' un séjour et d'une salle d'eau. Son charme s'exprime par son parquet, sa grande hauteur sous plafond et ses grandes ouvertures. DPE E - Réalisé le 12/02/2024 Estimation du coût annuel des énergies pour un usage standard entre 1520 € et 2090 € REF 3275H Les honoraires sont à la charge du vendeur. Les informations sur les risques auxquels ce bien est exposé sont disponibles sur le site Géorisques : www.georisques.gouv.fr. One Shot Immobilier 29 Rue Jeanne D'Arc 45000 Orléans 02 38 83 12 69 Honoraires à la charge du vendeur. Classe énergie E, Classe climat C Montant moyen estimé des dépenses annuelles d'énergie pour un usage standard, établi à partir des prix de l'énergie de l'année 2021 : entre 1520.00 et 2090.00 €. Les informations sur les risques auxquels ce bien est exposé sont disponibles sur le site Géorisques : georisques.gouv.fr. . Les honoraires sont à la charge du vendeur. Les informations sur les risques auxquels ce bien est exposé sont disponibles sur le site Géorisques : www.georisques.gouv.fr. One Shot Immobilier 29 Rue Jeanne D'Arc 45000 Orléans 02 38 83 12 69

Annonce publiée le 23/10/2025
Proposée par Immo + 23/10/2025
10
Appartement, 55 m²

212 000 € 3 855 €/m²
Appartement • 55 m² • 2 pièces • 1 chambre

Orléans (45000)

Situé au dernier étage d'une résidence de standing sécurisée, ce superbe appartement lumineux de 56 m² vous séduira par sa vue imprenable sur la Loire et ses prestations de qualité. Il se compose d'une entrée, d'un grand séjour ouvrant sur un balcon avec vue panoramique sur la Loire, d'une cuisine aménagée et équipée, ainsi que d'une chambre avec dressing donnant accès à un second balcon côté jardin, idéal pour profiter du calme. Une belle salle d'eau complète la partie nuit. En annexe, vous bénéficierez d'une cave et d'un grand garage double en rez-de-chaussée. La résidence est parfaitement entretenue, récemment ravalée, et vous n'aurez plus qu'à poser vos valises ! Les atouts : Vue exceptionnelle sur la Loire Dernier étage, très lumineux Deux balcons (vue Loire et côté jardin) Garage double + cave Résidence de standing sécurisée Ravalement neuf À découvrir sans tarder ! Référence agence : 3752

Foncia Transaction Olivet
Annonce mise à jour le 03/12/2025
Proposée par Foncia Transaction Olivet 03/12/2025
5
Appartement, 44 m²

Prix en baisse 68 000 € 1 545 €/m²
Appartement • 44 m² • 2 pièces • 1 chambre

Orléans (45100)

Votre agence Foncia à OLIVET vous propose en exclusivité ce T2 de 43m2 situé à Orléans La Source, proche universités et lycée Voltaire. Celui-ci, situé au neuvième et dernier étage avec ascenseur, a été rénové avec goût, proposant une entrée avec placard, une cuisine aménagée et équipée, séjour/salon, dressing, et salle d'eau avec WC. Ce bien est vendu avec une place de parking en sous-sol ainsi qu'une cave privative. Le système de chauffage est collectif. Investissement très intéressant au vu des travaux de rénovation votés, qui permettront au logement de passer de la lettre F à B. Transports et commerces aux pieds de l'immeuble, université et lycée Voltaire. Montant annuel des charges : 2000 € (eau chaude, eau froide, chauffage, entretien des espaces communs, ascenseur et gardien) Montant de la taxe foncière : 1108 € L'appartement est vendu vide

Corinne VAUSSARD - iad
Annonce publiée le 24/09/2025 - mise à jour 10/11/2025
Proposée par Corinne VAUSSARD - iad 24/09/2025 - mise à jour 10/11/2025
11
Appartement, 90 m²

129 900 € 1 443 €/m²
Appartement • 90 m² • 5 pièces • 4 chambres

Orléans (45100)

iad France - Corinne Vaussard vous propose: Dans une résidence sécurisée avec gardien, appartement comprenant une entrée, séjour-salon donnant sur une loggia fermée, cuisine aménagée, 3 chambres (possibilité d'une 4ème chambre), salle d'eau, WC, dressing. Cave. 2 places de parking en sous-sol. Double vitrage. Ravalement effectué Proche fac et lycée, transports et toutes commodités. La presente annonce immobiliere vise 4 lots situés dans une copropriété de 264 lots au total et ne faisant l'objet d'aucune procédure en cours citée à l'article L. 721-1 du code de la construction et de l'habitation. Montant moyen mensuel de charges déclaré par le vendeur : 292.33€ par mois (soit 3508 € annuel). Honoraires d'agence à la charge du vendeur. Information d'affichage énergétique sur ce bien : classe ENERGIE C indice 170 et classe CLIMAT C indice 15. Les informations sur les risques auxquels ce bien est exposé, y compris l'obligation légale de débroussaillement, sont disponibles sur le site Géorisques : http://www.georisques.gouv.fr. La présente annonce immobilière a été rédigée sous la responsabilité éditoriale de Mme Corinne Vaussard mandataire indépendant en immobilier (sans détention de fonds), agent commercial de la SAS I@D France immatriculé au RSAC de ORLEANS sous le numéro 831113204, titulaire de la carte de démarchage immobilier pour le compte de la société I@D France SAS.