Acheter un appartement 1 pièce en Alsace

Modifier ma recherche
254 annonces
CECILE SCHMIDT - BSK Immobilier
Annonce publiée le 22/10/2025 - mise à jour 17/11/2025
Proposée par CECILE SCHMIDT - BSK Immobilier 22/10/2025 - mise à jour 17/11/2025
11
Appartement, 29 m²

114 500 € 3 948 €/m²
Appartement • 29 m² • Meublé • 1 pièce

Dambach-la-Ville (67650)

Situé au rez-de-chaussée d'une maison alsacienne entièrement rénovée avec goût, ce studio de 29 m² allie modernité et authenticité. Il se compose de : Une pièce de vie avec espace nuit et une cuisine équipée moderne et fonctionnelle Une salle d'eau avec WC Un espace bien-être niché dans la cour, composé de 2 espaces distinct, dans un comprenant un jacuzzi privé avec douche et un deuxième espace sauna ou autre pour des moments de détente uniques. L'appartement offre de belles prestations, des matériaux de qualité et des finitions soignées, conférant à l'ensemble un charme indéniable. Atouts investisseurs : Très bonne rentabilité, actuellement loué en meublé Idéal pour location Airbnb, gîte ou location courte durée Espace de rangement supplémentaire d'environ 15 m² Un bien atypique, bourré de charme, parfait pour un investissement rentable et sans travaux ! Cette annonce référence 308300 vous est présentée par votre agent commercial BSK Immobilier CECILE SCHMIDT (EI) immatriculé au RSAC de COLMAR (68000) sous le numéro 89873395100013. Prix du bien : 114 500,00 € Les honoraires d'agence sont à la charge du vendeur. A propos des performances énergétiques : Date de réalisation du diagnostic énergétique : 10/11/2021 Score DPE : 247 kWhEP/m²/an Score GES : 7 kgepCO2/m²/an Montant estimé des dépenses annuelles d'énergie pour un usage standard : entre 507.00 € et 685.00 € par an. Prix moyens des énergies indexés sur l'année 2021 (abonnements compris). Les informations sur les risques auxquels ce bien est exposé sont disponibles sur le site Géorisques : www.georisques.gouv.fr

Agent immobilier ?
Diffusez GRATUITEMENT toutes vos annonces sur Superimmo.com
4% immobilier Guebwiller
Annonce publiée le 23/10/2025 - mise à jour 14/11/2025
Proposée par 4% immobilier Guebwiller 23/10/2025 - mise à jour 14/11/2025
4
Appartement, 34,3 m²

64 800 € 1 889 €/m²
Appartement • 34,3 m² • 1 pièce

Guebwiller (68500)

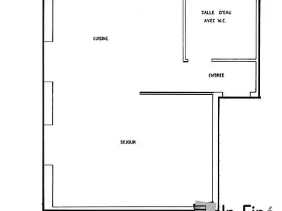
Situé dans une résidence au 1er étage sur 5, accessible par un ascenseur, venez découvrir ce charmant studio loué 490 euros charges comprise. Il se compose d' une entrée avec placard mural, d'un espace séjour, d'une cuisine équipée ainsi qu'une salle d'eau avec wc. Au sous-sol une cave.

Philippe LENA - SAFTI
Annonce publiée le 10/11/2025
Proposée par Philippe LENA - SAFTI 10/11/2025
9
Appartement, 30 m²

59 900 € 1 997 €/m²
Appartement • 30 m² • 1 pièce • 1 chambre

Mulhouse (68200)

UNE EXCLUSIVITÉ Philippe LENA - votre agent SAFTI Mulhouse & environs : INVESTISSEZ dans un studio à Mulhouse en Alsace, ville à forte dynamique et à forte rentabilité !! Studio de 31 m², au sein d'une résidence bien tenue et qui va être rénovée intégralement prochainement. Voici la liste des travaux votés à la dernière AG et qui seront payés par le vendeur : - ISOLATION THERMIQUE DU BÂTIMENT : MURS ET TOITURE ; - ISOLATION DU PLANCHER BAS (SOUS-SOL) ; - MISE EN PLACE D'UNE VMC ; - NOUVELLES MENUISERIES EXTERIEURES. - ETC... Tous ces travaux ont été votés et seront à la charge du vendeur (environ 14000€ à sa charge pour l'appartement). De sorte que vous serez propriétaire d'un studio dans une résidence tout neuve ! Arrêt de TRAM juste à côté. Appartement prêt à vivre, pas de travaux à prévoir à l'intérieur. Fenêtres PVC (imitation bois) double vitrage récentes. Ce studio est actuellement loué 450€ CC mensuel. Ceci inclut un forfait pour les charges mensuelles (comprenant l'eau froide et chaude, le chauffage, l'entretien de l’immeuble et de l'ascenseur) de 100€, soit un loyer de 350€ HC. Une cave est incluse dans le prix. TAXE FONCIÈRE : 526 euros, dont 110€ de taxe sur les ordures ménagères, récupérable auprès du locataire. Parking libre réservé au résidents au pied du bâtiment accessible par télécommande. ************************************************ Un achat "sérénité" pour le bailleur qui cherche un bon produit sans aucun travaux à long terme et à la très bonne rentabilité ! Alors venez découvrir à mes côtés ce beau studio "prêt à vivre", je vous l'expliquerai dans tous ses détails, et vous n'aurez plus qu'à vous y projeter ! Le bien comprend 2 lots, et il est situé dans une copropriété de 59 lots (les charges courantes annuelles moyennes de copropriété sont de 2007 € et le syndicat des copropriétaires ne fait pas l'objet d'une procédure citée à l'article L. 721-1 du code de la construction et de l'habitation). Les informations sur les risques auxquels ce bien est exposé sont disponibles sur le site Géorisques : www.georisques.gouv.fr Prix de vente : 59 900 € Honoraires charge vendeur Contactez votre conseiller SAFTI : Philippe LENA, Tél. : 06 61 77 58 97, E-mail : - EI - Agent commercial immatriculé au RSAC de MULHOUSE sous le numéro 802 873 885 - SAFTI – LENA Philippe, Conseiller indépendant

Lamy Colmar
Annonce publiée le 25/11/2025
Proposée par Lamy Colmar 25/11/2025
9
Appartement, 36,2 m²

75 000 € 2 072 €/m²
Appartement • 36,2 m² • 1 pièce

Colmar (68000)

Proche de la gare et toutes les commodités :Studio de 36 m² comprenant : une entrée, un séjour donnant accès à un balcon, une cuisine séparée, une salle de bains avec wc.Au sous-sol : une cave.Parking commun à l'immeuble.Chauffage collectif.Les + : la chaudière commune va être remplacée par une pompe à chaleur (pris en charge par le propriétaire actuel).Charges annuelles : 891,64 € comprenant : chauffage, eau chaude, eau froide, entretien des communs, ascenseur).Nombre de lots principaux : 48.Pas de procédure en cours.

Annonce publiée le 27/03/2025 - mise à jour 13/09/2025
Proposée par Immium 27/03/2025 - mise à jour 13/09/2025
6
Appartement, 31,2 m²

109 600 € 3 513 €/m²
Appartement • 31,2 m² • 1 pièce • 1 chambre

Strasbourg (67200)

STUDIO - CRONENBOURG Exclusivité 'rue des Cèdres' Situé au 2ème étage avec ascenseur, ce grand studio propose une entrée avec placard, une pièce à vivre de 20m², une cuisine, une salle de bains avec toilettes et balcon 3.82m² orienté sud. le chauffage est électrique, un parking accompagne ce bien. Le bien est loué 393€+80€ de charges, date d'effet du bail 26/06/2024. Contact : -06.65.69.14.45

BARLIER IMMOBILIER
Annonce publiée le 26/09/2025 - mise à jour 16/10/2025
Proposée par BARLIER IMMOBILIER 26/09/2025 - mise à jour 16/10/2025
5
Appartement, 9,5 m²

Nous contacter
Appartement • 9,5 m² • Sous compromis • 1 pièce

Strasbourg (67000)

EN EXCLUSIVITE - Notre agence BARLIER Immobilier vous propose à la vente sur la commune de STRASBOURG quartier ORANGERIE, cette chambre de bonne de 9,5m2 , à proximité des universités. Idéal investisseur. Nous vous proposons une chambre de bonne située au dernier étage avec ascenseur d’un bel immeuble ancien, à proximité immédiate des commerces, transports et universités. Ce bien parfaitement optimisé se prête idéalement à une location meublée étudiante. Pour obtenir plus d'informations sur ce bien, contactez notre agence au 06.27.53.48.92 [Vous souhaitez vendre votre maison, votre appartement, votre terrain ou votre immeuble? La vente d'un bien se prépare. Notre agence BARLIER Immobilier définit à vos côtés une stratégie de vente adaptée pour valoriser votre bien et vous permettre d'atteindre vos objectifs. Si vous souhaitez réaliser l'estimation de votre bien immobilier, contactez nous à l'adresse ]

Maryline FERRAROLI - SAFTI
Annonce publiée le 05/06/2025 - mise à jour 05/12/2025
Proposée par Maryline FERRAROLI - SAFTI 05/06/2025 - mise à jour 05/12/2025
7
Appartement, 80 m²

249 000 € 3 113 €/m²
Appartement • 80 m² • 1 pièce • 1 chambre

Strasbourg (67000)

Venez découvrir cet appartement sous combles, toit cathédrale, très lumineux Dans une élégante maison bourgeoise du début du siècle, ce charmant appartement rénové, niché au 3e et dernier étage d’une petite copropriété. Ce quartier résidentiel et calme est idéalement situé : à deux pas du tram B et E, ainsi que la ligne 2 pour la gare et H pour le parlement Européen, à proximité du Parc des Contades, et un accès autoroute rapide et pistes cyclables qui rejoignent le centre ville. Ce bien de 80 m² au sol est baigné de lumière à tout moment de la journée grâce à ces nombreux velux. Il vous séduira par son agencement optimisé, ses poutres apparentes peintes en blanc et la quiétude de ce quartier. L’espace de vie comprend une cuisine équipée ouverte sur le salon, un meuble bibliothèque fait fonction de séparation de l'espace, un espace nuit avec rangements sur mesure, une salle d’eau avec grande douche, WC et emplacement lave-linge. Un espace couchage d’appoint occasionnel peut être installé en sous pente. Un espace de stockage ingénieux est accessible depuis la chambre. Les points forts : Faibles charges, isolation performante (chauffé par un seul radiateur central), charme unique et emplacement privilégié proche du centre-ville. Peinture refaite. Le bien comprend 1 lot, et il est situé dans une copropriété de 7 lots (les charges courantes annuelles moyennes de copropriété sont de 400 € et le syndicat des copropriétaires ne fait pas l'objet d'une procédure citée à l'article L. 721-1 du code de la construction et de l'habitation). Les informations sur les risques auxquels ce bien est exposé sont disponibles sur le site Géorisques : www.georisques.gouv.fr Prix de vente : 249 000 € Honoraires charge vendeur Contactez votre conseiller SAFTI : Maryline FERRAROLI, Tél. : 0763707319, E-mail : - EI - Agent commercial immatriculé au RSAC de Strasbourg sous le numéro 448003681 - SAFTI – FERRAROLI Maryline, Conseiller indépendant

Orme Immobilier
Annonce publiée le 07/10/2025 - mise à jour 10/10/2025
Proposée par Orme Immobilier 07/10/2025 - mise à jour 10/10/2025
1
Appartement, 28 m²

85 000 € 3 036 €/m²
Appartement • 28 m² • 1 pièce

Erstein (67150)

Idéal investisseur –F1 28 m² avec balcon et parking Situé au 3ème étage avec ascenseur d'une résidence des années 90 avec piscine ! Studio de 27 m² vendu loué, comprenant : une entrée une pièce principale un espace cuisine séparé aménagé une salle de bain avec douche, un balcon. Place de parking privative. Chauffage au gaz collectif.. Bon rendement locatif, idéal investissement patrimonial. Loyer actuel : 380 euros HC + 120 euros de charges avec le chauffage Bien soumis au statut de la copropriété Pas de procédure en cours Quote part annuelle : 1800 euros ( chauffage inclus) DPE: E GES:F Honoraires agence charge acquéreur inclus ( 4% TTC) Celine MUNUERA ( EI) agent commercial inscrit au RSAC de Strasbourg n°TI 751 969 593Les informations sur les risques auxquels ce bien est exposé sont disponibles sur le site Géorisques http://www.georisques.gouv.fr Honoraires inclus de 4.94% TTC à la charge de l'acquéreur. Prix hors honoraires 81 000 €. Dans une copropriété de 12 lots. Aucune procédure n'est en cours. Classe énergie E, Classe climat F. Date de réalisation du DPE : 26-09-2018. Les informations sur les risques auxquels ce bien est exposé sont disponibles sur le site Géorisques : georisques.gouv.fr.

Annonce publiée le 26/08/2025 - mise à jour 19/09/2025
Proposée par MERCOR 26/08/2025 - mise à jour 19/09/2025
9
Appartement, 29,64 m²

83 000 € 2 800 €/m²
Appartement • 29,64 m² • 1 pièce • 1 chambre

Boersch (67530)

Découvrez votre futur cocon douillet à Klingenthal ! Niché au coeur de la forêt, cet appartement T1 de 30 m² vous offre un cadre de vie idyllique. Découvrez ce charmant appartement avec chambre cabine situé dans la Résidence Les frênes, niché au pied du mont St Odile, ce dernier vous offrira calme, tranquillité et divertissement de par ses 8,4 hectares de terrain comprenant 3,7 hectares de forêt, une piscine chauffée collective, 3 courts de tennis collectifs, des espaces barbecue et vous pourrez également vous adonner à de magnifiques randonnées vers le Mont St Odile. L'appartement se compose : d'une entrée avec cuisine équipée, d'un séjour avec placard donnant accès à la terrasse, d'une chambre cabine (possibilité lit 1,4 m x 1,90 m), une salle de bains avec douche et wc. Chauffage individuel électrique. Possibilité GARAGE en supplément. Imaginez-vous profiter de la douceur des soirées d'été sur votre terrasse de 7 m², entourée de verdure. Les ouvertures en bois et le double vitrage vous assurent une isolation correct et une vue imprenable sur la nature environnante. Situé au rez-de-jardin, cet appartement bénéficie d'un standing normal et d'un état intérieur en bon état. Les parties communes sont également bien entretenues, offrant un cadre de vie agréable et serein. Les charges comprennent : eau froide, électricité des parties communes, entretien des parties commune, , l'accès aux cours de tennis et à la piscine commune. Vous ne serez jamais loin des commodités essentielles. À seulement 5 minutes à pied, vous trouverez un restaurant et un arrêt de bus. En 5 minutes en voiture, vous accéderez à deux commerces d'alimentation générale et un parc. Les écoles maternelle et élémentaire sont accessibles en 10 minutes à pied, tandis que la crèche est à 10 minutes en voiture. Pour vos besoins médicaux, 7 médecins généralistes sont à proximité, à 5 minutes en voiture, et trois hôpitaux sont accessibles en 10 minutes en voiture. Cet appartement est éligible à la fibre, vous permettant de rester connecté à tout moment. Ne manquez pas cette opportunité de vivre dans un environnement paisible et bien desservi. Contactez-nous dès maintenant pour organiser une visite et découvrir votre futur chez-vous ! “Les informations sur les risques auxquels ce bien est exposé sont disponibles sur le site Géorisques : www.georisques.gouv.fr”. Honoraires inclus de 9.21% TTC à la charge de l'acquéreur. Prix hors honoraires 76 000 €. Dans une copropriété de 229 lots. Quote-part moyenne du budget prévisionnel 1 035 €/an. Aucune procédure n'est en cours. Classe énergie E, Classe climat B Montant estimé des dépenses annuelles d'énergie pour un usage standard : entre 850.00 € et 1200.00 € sur les années 2021, 2022 et 2023 (abonnements compris). Les informations sur les risques auxquels ce bien est exposé sont disponibles sur le site Géorisques : georisques.gouv.fr. Votre conseiller MERCOR : Corinne GUEGUEN Agent commercial (Entreprise individuelle) Retrouvez l'annonce de l'agence immobilière MERCOR sur :

ALLIANCES IMMOBILIER
Annonce publiée le 17/09/2025 - mise à jour 08/12/2025
Proposée par ALLIANCES IMMOBILIER 17/09/2025 - mise à jour 08/12/2025
8
Appartement, 24,32 m²

66 000 € 2 714 €/m²
Appartement • 24,32 m² • Meublé • 1 pièce • 1 chambre

Mulhouse (68100)

Découvrez ce charmant F1 de 24.32 m2 situé au 2ème étage sur 3 d'une résidence située rue de l'est à Mulhouse. Cet appartement lumineux et agréable se compose d'une belle pièce de vie, une kitchinette d'une salle d'eau moderne et d'une terrasse idéale pour profiter des beaux jours. Vendu entièrement meublé, il dispose également d'une cave, parfait pour le rangement. Sa proximité immédiate avec la gare en fait un bien rare à saisir rapidement. DPE E. Idéal pour un premier achat ou un investissement locatif.

Odalys Invest
Annonce publiée le 25/03/2025 - mise à jour 08/12/2025
Proposée par Odalys Invest 25/03/2025 - mise à jour 08/12/2025
5
Appartement, 33,27 m²

107 540 € 3 232 €/m²
Appartement • 33,27 m² • 1 pièce

Colmar (68000)

SPECIAL PLACEMENT IMMOBILIER AU STATUT LMNP AVEC REPRISE DU BAIL COMMERCIAL EN COURS DU GESTIONNAIRE ODALYS. RENTABILITE LOCATIVE DE 6,10 %. Opportunité d’investissement locatif avec loyers fixes, gestion externalisée par un professionnel, tout en bénéficiant des avantages du statuts LMNP. Loyer annuel actuel HT de 6.560 € (soit 7.216 € TTC) En bail commercial meublé en tacite reconduction depuis le 31/10/2024 pour une durée indéterminée, en l'absence de dénonciation de bail commercial par l'une des parties (selon la legislation sur les baux commerciaux régie par les articles L-145-1 et suivants du Code du Commerce.) Bien vendu soumis au statut de la copropriété Nombre de lots : 138 Aucune procèdure en cours L’Appart’hôtel est situé à 200 m du centre-ville. Les appartements, studios et suites 2 à 4 personnes sont entièrement équipés. À votre disposition : espace détente de 200 m2 (bassin de nage à contre-courant chauffé à 30o, jets de massage, fitness). A VENDRE : Un studio situé 1er étage d'une résidence-services composé d'une Kitchenette, d'un séjour/chambre, une salle de bains/ WC. En résumé, vous achetez un bien immobilier, et Odalys s'occupe de tout : gestion des locataires, entretien, etc. Vous bénéficiez d’une gestion simplifiée et entièrement délégué, d’une fiscalité avantageuse grâce au statut LMNP. *Photos types issues de la phototèques Odalys* Les informations sur les risques auxquels ce bien est exposé sont disponibles sur le site Géorisques : www.georisques.gouv.fr

Swixim Strasbourg
Annonce publiée le 03/06/2025 - mise à jour 16/06/2025
Proposée par Swixim Strasbourg 03/06/2025 - mise à jour 16/06/2025
3
Appartement, 17,5 m²

116 600 € 6 663 €/m²
Appartement • 17,5 m² • 1 pièce • 1 chambre

Strasbourg (67000)

Beau Studio Meublé à Strasbourg REF 0924ND : STRASBOURG, Studio proche de la Place Haguenau, Surface carrez 17.5m² : vendu loué, Kitchenette équipée, Salle de bains aménagée et WC, Literie complète, tout confort, Bureau, Rangements, Wifi gratuit, Prestations de qualité : Concierge à demeure, salle d'études, parking à vélos, buanderie, cafétéria, salle de sport, Résidences étudiants de 122 studios, Bail commercial incluant les charges de copropriété, taxe foncière et la TEOM, Version DPE : 05/2025. /Honoraires inclus de 6% charge acquéreur/

Century 21 Etoile
Annonce publiée le 09/04/2025 - mise à jour 06/08/2025
Proposée par Century 21 Etoile 09/04/2025 - mise à jour 06/08/2025
9
Appartement, 25,5 m²

93 200 € 3 655 €/m²
Appartement • 25,5 m² • 1 pièce

Strasbourg (67)

STRASBOURG NEUDORF - ZAC DANUBE - STUDIO EN DERNIER ETAGE EN LMNP Situé dans le quartier éco-responsable du Danube, dans une résidence de 2016 bénéficiant d'une excellente localisation, à deux pas du campus de l'Esplanade, du centre-ville et du centre commercial Rivétoile.Investissement sécurisé :- Pas de gestion comptable (kit fiscal optionnel)- Gestion locative assurée, loyers garantis chaque mois- Gestionnaire reconnu et fiableLe studio comprend, une salle d'eau (douche, vasque, sèche-serviettes), une pièce principale meublée (placards, TV murale, interphone) et un coin cuisine équipé (plaques, réfrigérateur, micro-ondes, kit vaisselle). Conçu pour l'accessibilité PMR.

GENERAL IMMO
Annonce mise à jour le 07/05/2025
Proposée par GENERAL IMMO 07/05/2025
1
Appartement, 30,33 m²

Nous contacter
Appartement • 30,33 m² • Meublé • 1 pièce

Saint-Louis (68300)

STUDIO MEUBLE EN EXCLUSIVITÉ DANS VOTRE AGENCE !! Idéalement situé, au centre-ville de Saint-Louis, retrouvez ce bien rare, studio entièrement meublé, situé au 2ème étage avec ascenseur, comprenant : Une entrée, la pièce de vie, une kitchenette équipée. Une salle de bains équipée avec wc, un cellier Une cave, une place de parking au sous-sol Pas de terrasse ni balcon Chauffage individuel électrique

Virginie ROBIN - SAFTI
Annonce publiée le 03/09/2025 - mise à jour 23/09/2025
Proposée par Virginie ROBIN - SAFTI 03/09/2025 - mise à jour 23/09/2025
7
Appartement, 35 m²

130 000 € 3 714 €/m²
Appartement • 35 m² • 1 pièce

Obernai (67210)

Au cœur de la route des vins, à Obernai, à 10 minutes à pieds de la gare Au calme, cette résidence se distingue par son ambiance paisible et à sa vue verdoyante. Imaginez vous... Un appartement F1 spacieux très bien pensé et entretenu, avec un joli balcon et sa vue vers le Piémont du Mont Sainte-Odile et le mont National. Cet appartement vous propose : - un grand et lumineux salon/séjour donnant sur un balcon - un coin cuisine équipée - une salle d'eau avec douche et wc. mais aussi : - une cave Les + : - un accès rapide à la voie rapide - la gare à proximité - le centre ville et toutes les commodités proches. Un bien à visiter de toute urgence, à mes cotés ! Le bien comprend 2 lots, et il est situé dans une copropriété de 20 lots (les charges courantes annuelles moyennes de copropriété sont de 800 € et le syndicat des copropriétaires ne fait pas l'objet d'une procédure citée à l'article L. 721-1 du code de la construction et de l'habitation). Les informations sur les risques auxquels ce bien est exposé sont disponibles sur le site Géorisques : www.georisques.gouv.fr Prix de vente : 130 000 € Honoraires charge vendeur Contactez votre conseiller SAFTI : Virginie ROBIN, Tél. : 0620362237, E-mail : - EI - Agent commercial immatriculé au RSAC de COLMAR sous le numéro 834 443 616 - SAFTI – ROBIN Virginie, Conseiller indépendant