Ventes immobilières 3 pièces en Île-de-France

Modifier ma recherche
14 778 annonces
MONTROUGE IMMOBILIER
Annonce publiée le 11/11/2025 - mise à jour 18/11/2025
Proposée par MONTROUGE IMMOBILIER 11/11/2025 - mise à jour 18/11/2025
15
Appartement, 62,75 m²

473 000 € 7 538 €/m²
Appartement • 62,75 m² • 3 pièces • 2 chambres

Montrouge (92120)

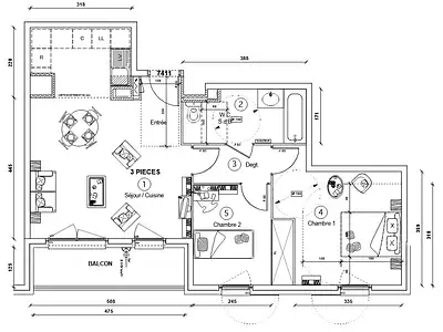
A MONTROUGE Résidence Buffalo, L'agence Montrouge Immobilier vous propose en EXCLUSIVITÉ : Un appartement 3 pièces de 62.75 m² dans une copropriété bien entretenue des années 60, à 8 minutes à pied de la station Métro (L4) BARBARA. lumineux et ensoleillé avec une double exposition SUD/NORD, cet appartement se compose d'une entrée, un séjour, deux chambres, une cuisine aménagée et équipée, une salle d'eau et un WC séparé. Vue dégagée sans vis-à-vis donnant sur jardin. Une cave complète ce bien. Possibilité de stationner gratuitement à l'intérieur de la copropriété (attention places limitées). Nouveauté (3.96 % honoraires TTC à la charge de l'acquéreur.) Copropriété de 491 lots - dont 2784 lots habitation. (Pas de procédure en cours). Charges annuelles : 2784 euros.

Agent immobilier ?
Diffusez GRATUITEMENT toutes vos annonces sur Superimmo.com
Alexandra VERNIN - Optimhome
Annonce publiée le 15/11/2025 - mise à jour 04/12/2025
Proposée par Alexandra VERNIN - Optimhome 15/11/2025 - mise à jour 04/12/2025
13
Appartement, 45 m²

370 000 € 8 222 €/m²
Appartement • 45 m² • 3 pièces • 2 chambres

Saint-Germain-en-Laye (78100)

Nouvelle exclusivité, Alexandra VERNIN vous présente un charmant appartement deux chambres refait à neuf au 1er étage d'une agréable résidence rue des Ursulines, à proximité des écoles et commerces et à 8 minutes à pieds du RER. Cet appartement est traversant, lumineux, au calme et offre beaucoup de cachet: parquet massif en excellent état dans toutes les pièces, cheminée dans le salon et moulures. L'organisation est optimale, sans perte de place, deux belles chambres avec placards, une pièce de vie très chaleureuse, une cuisine sur mesure avec électroménager intégré et de nombreux rangements, une salle de douche avec espace buanderie et un WC séparé. Il dispose en outre d'un grand grenier sain et d'une cave. Possibilité de garer les vélos dans la cour, accessible également pour jouer ou prendre un café ! Entièrement rénové en 2022, DPE D, il dispose de fenêtres en double vitrage, d'une chaudière Viessman neuve avec changement complet des réseaux sanitaires et chauffage (robinets thermostatiques), réfection complète du réseau électrique avec changement du tableau électrique et pose d'une mini baie de brassage avec prise USB dans toutes les pièces. Appartement idéal pour personne seule, en couple ou jeune famille avec un enfant, cet appartement est également intéressant dans le cadre d'un investissement locatif, il était loué 1 300 EUR et les charges sont maitrisées. Une belle opportunité, je vous attends pour une visite ! Nombre de lots de la copropriété: 16, Montant moyen de la quote-part annuelle de charges (budget prévisionnel) : 1307€ soit 108€ par mois. Les honoraires d'agence sont à la charge de l'acquéreur, soit 4,52% TTC du prix hors honoraires. Les informations sur les risques auxquels ce bien est exposé sont disponibles sur le site Géorisques : www. georisques. gouv. fr. Contactez Alexandra VERNIN Entrepreneur Individuel, Agent commercial OptimHome (RSAC N°888 893 609 Greffe de VERSAILLES) 06 40 16 97 62 (réf. 596769 )

LOGIS CONSEIL
Annonce publiée le 20/11/2025
Proposée par LOGIS CONSEIL 20/11/2025
9
Appartement, 66,36 m²

420 000 € 6 329 €/m²
Appartement • 66,36 m² • 3 pièces • 2 chambres

Châtillon (92320)

Votre agence Logis conseil vous propose en exclusivité dans une résidence de standing récente de 2019, à proximité du centre ville, des commerces et des écoles. Un appartement trois pièces d'environ 66m² comprenant entrée, séjour avec cuisine ouverte, deux chambres, salle de bains, wc et dressing. Le bien dispose en plus d'un espace extérieur de 21m² avec accès par le séjour et les deux chambres. En annexe : un parking en sous-sol (possibilité d'en acquérir un autre en sus du prix). Appartement au calme, spacieux et avec de très belles prestations. PLAN ET GEOLOCALISATION DISPONIBLES SUR NOTRE SITE ! Retrouvez nous sur Instagram @logisconseilimmobilier et Youtube @logisconseil2859 Honoraires à la charge du vendeur. Dans une copropriété de 133 lots. Quote-part moyenne du budget prévisionnel 2 604 €/an. Aucune procédure n'est en cours. Classe énergie C, Classe climat C Montant estimé des dépenses annuelles d'énergie pour un usage standard : entre 730.00 € et 1040.00 € sur les années 2021, 2022 et 2023 (abonnements compris). Les informations sur les risques auxquels ce bien est exposé sont disponibles sur le site Géorisques : georisques.gouv.fr. Votre conseiller LOGIS CONSEIL Châtillon : Hugo VINCENT Agent commercial (Entreprise individuelle) RSAC 902576362

Cecile PUECH - iad
Annonce publiée le 21/11/2025 - mise à jour 01/12/2025
Proposée par Cecile PUECH - iad 21/11/2025 - mise à jour 01/12/2025
13
Appartement, 64 m²

380 000 € 5 938 €/m²
Appartement • 64 m² • 3 pièces • 2 chambres

Rueil-Malmaison (92500)

iad France - Cecile Puech vous propose: RUEIL-MALMAISON - Appartement coup de coeur ! Résidence La Cascade Au calme, à 15 minutes à pied du centre-ville, cet appartement vient d'être entièrement refait à neuf. Il propose une entrée avec placard, des WC séparés, un séjour très lumineux avec balcon, une cuisine semi ouverte, et côté 'nuit' deux chambres de 10 et 11 m² dont une avec un grand placard, ainsi qu'une salle de bains avec baignoire. Cet appartement est vendu avec une grande cave. Ascenseur / gardien / espaces verts / calme / vue dégagée / local vélos. Transports : bus 144, 141, 241, 467 à proximité. Connexion au RER de Rueil ou à la gare du Val d'Or : 25 minutes en bus. Connexion à la station de T2 Suresnes Longchamp en 20 minutes en 144. En option un grand box d'environ 21m² est proposé en sus au prix de 25 000€. Possibilité fréquente de pouvoir louer une place de parking auprès d'un propriétaire au sein de la résidence. Si vous recherchez un appartement soigné et au calme n'hésitez pas à m'appeler pour organiser une visite. La presente annonce immobiliere vise 2 lots situés dans une copropriété de 383 lots au total et ne faisant l'objet d'aucune procédure en cours citée à l'article L. 721-1 du code de la construction et de l'habitation. Montant moyen mensuel de charges déclaré par le vendeur : 232.54€ par mois (soit 2790.44 € annuel). Honoraires d'agence à la charge du vendeur. Information d'affichage énergétique sur ce bien : classe ENERGIE E indice 270 et classe CLIMAT B indice 8. Les informations sur les risques auxquels ce bien est exposé, y compris l'obligation légale de débroussaillement, sont disponibles sur le site Géorisques : http://www.georisques.gouv.fr. La présente annonce immobilière a été rédigée sous la responsabilité éditoriale de Mme Cecile Puech mandataire indépendant en immobilier (sans détention de fonds), agent commercial de la SAS I@D France immatriculé au RSAC de NANTERRE sous le numéro 891264699, titulaire de la carte de démarchage immobilier pour le compte de la société I@D France SAS.

Bella DN PROPERTIES
Annonce publiée le 25/11/2025 - mise à jour 26/11/2025
Proposée par Bella DN PROPERTIES 25/11/2025 - mise à jour 26/11/2025
11
Appartement, 53 m²

500 000 € 9 434 €/m²
Appartement • 53 m² • 3 pièces • 1 chambre

Paris 11ème (75011)

Appartement 2/3 pièces lumineux proche BASTILLE À deux pas de la Place de la Bastille, cet appartement situé au 4ᵉ étage (par escalier) d'un immeuble récemment ravalé offre une belle opportunité. Il comprend : • Un séjour lumineux de 17 m² exposé Sud-Est avec deux fenêtres • Une cuisine dînatoire de 10 m² • Une chambre de 11 m² • Un espace bureau/chambre de 7 m² (pas de fenêtre mais verrière en 2nd jour possible), • Une salle d'eau avec WC • Des rangements Une cave L'appartement est équipé de fenêtres double vitrage et bénéficie de parties communes bien entretenues (ravalement effectué, hall d'entrée rénové). Emplacement : Idéalement situé dans le 11ᵉ arrondissement, à proximité immédiate de Bastille et de ses trois lignes de métro (1, 5, 8). Commerces, cafés et restaurants à proximité. Quartier vivant très recherché. Informations pratiques : • Surface loi Carrez : 51,5 m² • Surface pondérée : 53 m² • Charges de copropriété : 176 €/mois • Chauffage et eau chaude électriques • Taxe foncière : 996 €/an A visiter rapidement !

L'immobilier d'Eustache
Annonce publiée le 25/11/2025
Proposée par L'immobilier d'Eustache 25/11/2025
9
Appartement, 60 m²

450 000 € 7 500 €/m²
Appartement • 60 m² • 3 pièces • 2 chambres

Vincennes (94300)

Vincennes - Rue Diderot - Magnifique 3 pièces avec terrasse de 60m² pondéré (57m² carrez), au rez-de-chaussée d'une copropriété bien entretenue. Situé à 10 minutes du centre de Vincennes à pieds, au sein d'une résidence des années 30 très bien entretenue, Eustache a le plaisir de vous présenter cet appartement, composé comme suit : Entrée, séjour avec cuisine ouverte donnant sur une terrasse privative de 10 m², 2 chambres, une salle d'eau avec WC. Une cave en sous-sol de la résidence complète le bien. Vous serez séduits par son calme, sa localisation, son excellent état et surtout sa belle terrasse pour profiter des beaux jours ! Pour plus d'informations et/ou une visite, contactez Théo au 07 64 63 19 22 ! Votre conseiller L'immobilier d'Eustache : Théo DELEPINE Agent commercial (Entreprise individuelle)

Exelia
Annonce publiée le 26/11/2025 - mise à jour 02/12/2025
Proposée par Exelia 26/11/2025 - mise à jour 02/12/2025
8
Appartement, 77 m²

220 000 € 2 857 €/m²
Appartement • 77 m² • 3 pièces • 2 chambres

Mantes-la-Jolie (78200)

Exelia vous propose cet appartement T3 de 77,68 m² au 2e étage d'une résidence sécurisée à Mantes-la-Jolie, à deux minutes à pied de la gare. L'entrée dessert une cuisine indépendante avec accès à un premier balcon. Le séjour lumineux, avec une grande baie vitrée, s'ouvre sur un balcon de 5 m² offrant un espace extérieur. L'espace nuit comprend deux chambres avec placards, une salle de bains, et des toilettes séparées. Double vitrage, VMC, fibre optique et chauffage individuel électrique assurent un confort optimal. Accès par ascenseur, résidence entièrement accessible PMR. Une place de parking en sous-sol, parties communes soignées et copropriété de 2003 complètent ce bien. Charges : 240 €/mois (68 lots). Commerces, écoles et transports accessibles à pied. Disponible à partir du 2 mars 2026.

Sebastien MANGIN - iad
Annonce publiée le 27/11/2025
Proposée par Sebastien MANGIN - iad 27/11/2025
11
Appartement, 62 m²

215 000 € 3 468 €/m²
Appartement • 62 m² • 3 pièces • 2 chambres

Orly (94310)

iad France - Sebastien Mangin vous propose: OPPORTUNITE A SAISIR A ORLY – DANS UNE PETITE COPROPRIETE RECENTE, UN APPARTEMENT TYPE 3 PIECES TOUT CONFORT AVEC BALCON ET PARKING Dans un secteur recherché d’Orly, à deux pas du centre commercial E. Leclerc, du marché, des écoles et parfaitement desservi par les transports (RER C, Tram 9 et Bus 3), découvrez ce bel appartement 3 pièces de 65 m² situé au 1er étage d’une résidence récente avec ascenseur, calme, sécurisée avec vidéosurveillance et conforme aux normes PMR. Un bien immobilier de qualité, avec : - Un agencement idéal pour un confort optimal , - Entrée fonctionnelle avec rangements , - Séjour lumineux ouvrant sur un balcon agréable , - Cuisine indépendante (possibilité d’ouverture sur le séjour) , - Deux chambres confortables , - Salle d’eau moderne , - WC séparés , - Cagibi pratique pour optimiser l’espace , - Les atouts qui font la différence , - Place de parking en sous-sol sécurisé incluse , - Résidence récente, bien entretenue et sécurisée , - Aucun travaux à prévoir, appartement prêt à vivre , - Environnement calme, sans nuisances , - Tout accessible à pied : commerces, écoles, RER C, Tram 9, bus , - Accessibilité PMR. Ce bien, rare sur le marché, est idéal pour une résidence principale comme pour un investissement. Contactez moi dès aujourd’hui pour organiser une visite. Ce petit bijou type 3 pièces de qualité ne restera pas longtemps disponible. COUP DE COEUR ASSURÉ !!! La presente annonce immobiliere vise 2 lots situés dans une copropriété de 240 lots au total et ne faisant l'objet d'aucune procédure en cours citée à l'article L. 721-1 du code de la construction et de l'habitation. Montant moyen mensuel de charges déclaré par le vendeur : 199€ par mois (soit 2388 € annuel). Honoraires d'agence à la charge du vendeur. Information d'affichage énergétique sur ce bien : classe ENERGIE C indice 113 et classe CLIMAT A indice 4. Les informations sur les risques auxquels ce bien est exposé, y compris l'obligation légale de débroussaillement, sont disponibles sur le site Géorisques : http://www.georisques.gouv.fr. La présente annonce immobilière a été rédigée sous la responsabilité éditoriale de M Sebastien Mangin mandataire indépendant en immobilier (sans détention de fonds), agent commercial de la SAS I@D France immatriculé au RSAC de Créteil sous le numéro 877694471, titulaire de la carte de démarchage immobilier pour le compte de la société I@D France SAS.

Claire PARDO - iad
Annonce publiée le 27/11/2025 - mise à jour 04/12/2025
Proposée par Claire PARDO - iad 27/11/2025 - mise à jour 04/12/2025
13
Appartement, 60 m²

299 000 € 4 983 €/m²
Appartement • 60 m² • 3 pièces • 2 chambres

Savigny-sur-Orge (91600)

iad France - Claire Pardo vous propose: Opportunité Rare - Appartement Moderne de 3 Pièces à Savigny-sur-Orge plateau Situé au cOEur de Savigny-sur-Orge, cet appartement contemporain de 3 pièces offre un cadre de vie idéal pour les jeunes actifs, les couples ou les petites familles à la recherche d'un espace lumineux et fonctionnel. Construit en 2019, ce bien bénéficie des dernières normes en matière de construction pour un confort optimal. Dès l'entrée, vous serez séduit par l'espace de vie ouvert et lumineux, parfait pour recevoir famille et amis dans une ambiance chaleureuse. Deux chambres dont une avec salle d'eau et WC, une salle de bain et un deuxième toilettes. La cuisine, bien agencée et entièrement équipée, vous permettra de concocter de délicieux repas en toute simplicité, un séjour accès terrasse. La présence d'un digicode, d'un interphone et d'un ascenseur dans la résidence assurent votre tranquillité et votre sécurité au quotidien. L'appartement bénéficie d'une bonne exposition, offrant une luminosité naturelle agréable tout au long de la journée. Vous pourrez ainsi profiter d'un ensoleillement optimal dans chaque pièce. Savigny-sur-Orge, avec ses nombreux commerces, écoles et espaces verts, est une ville dynamique où il fait bon vivre. Les transports en commun à proximité facilitent vos déplacements quotidiens et vous permettent de rejoindre aisément les pôles d'activité des environs. Ne manquez pas cette opportunité rare d'acquérir un appartement moderne et fonctionnel dans un quartier paisible de Savigny-sur-Orge. Contactez-nous dès aujourd'hui pour organiser une visite et découvrir ce bien d'exception. La presente annonce immobiliere vise 2 lots situés dans une copropriété de 22 lots au total et ne faisant l'objet d'aucune procédure en cours citée à l'article L. 721-1 du code de la construction et de l'habitation. Montant moyen mensuel de charges déclaré par le vendeur : 123.33€ par mois (soit 1480 € annuel). Honoraires d'agence à la charge du vendeur. Information d'affichage énergétique sur ce bien : classe ENERGIE C indice 100 et classe CLIMAT C indice 19. Les informations sur les risques auxquels ce bien est exposé, y compris l'obligation légale de débroussaillement, sont disponibles sur le site Géorisques : http://www.georisques.gouv.fr. La présente annonce immobilière a été rédigée sous la responsabilité éditoriale de Mme Claire Pardo mandataire indépendant en immobilier (sans détention de fonds), agent commercial de la SAS I@D France immatriculé au RSAC de Evry sous le numéro 903118024, titulaire de la carte de démarchage immobilier pour le compte de la société I@D France SAS.

Irena Novakovic - efficity
Annonce publiée le 28/11/2025
Proposée par Irena Novakovic - efficity 28/11/2025
7
Appartement, 50 m²

175 000 € 3 500 €/m²
Appartement • 50 m² • 3 pièces • 1 chambre

Vitry-sur-Seine (94400)

94440 – VITRY-SUR-SEINE – APPARTEMENT – F3 – 0 CHARGE DE COPROPRIETE – AUCUN VIS-A-VIS EffiCity, l'agence qui estime votre bien en ligne, vous propose cet appartement traversant EST/OUEST de 3 pièces à Vitry-sur-Seine, situé dans un quartier résidentiel calme et pavillonnaire. Au sein d'une copropriété SANS CHARGES, cet appartement de 46,33m2 loi Carrez et 58m2 de surface utile, offre une pièce de vie LUMINEUSE avec cuisine OUVERTE et équipée, une chambre parentale, un bureau, de nombreux rangements intégrés, une buanderie, ainsi qu'une salle de bain avec toilette. Contactez nous dès maintenant pour organiser une visite de ce bien. Les informations sur les risques auxquels ce bien est exposé sont disponibles sur le site Georisque : georisques. gouv. fr Irena Novakovic - EI - est Agent Commercial mandataire en immobilier, immatriculé au Registre Spécial des Agents Commerciaux du Tribunal de Commerce de Créteil sous le n°845194034. Siège social du mandant : effiCity, 48 avenue de Villiers - 75017 PARIS - Société par Actions Simplifiée, société au capital de 132 373,05 euros, immatriculée au RCS Paris 497 617 746 et titulaire de la Carte professionnelle CPI 7501 2015 000 002 025 - CCI Paris IDF - Caisse de Garantie : GALIAN Assurances 89 rue de la Boétie 75008 Paris

Baya Chelghoum - LF Immo
Annonce publiée le 01/12/2025
Proposée par Baya Chelghoum - LF Immo 01/12/2025
8
Appartement, 68 m²

260 000 € 3 824 €/m²
Appartement • 68 m² • 3 pièces • 2 chambres

Alfortville (94140)

Alexia vous présente ce T3 situé dans un secteur dynamique au paysage urbain. Proche des commerces, des commodités (métro et Rer D) ainsi que des écoles, cet appartement saura vous séduire par sa disposition et la possibilité de le réagencer entièrement. Dès la porte d’entrée, vous apprécierez l’entrée avec placard, qui dessert une pièce de vie spacieuse de 20 m² ainsi qu’une cuisine attenante et aménagée de 9 m² (possibilité de créer une belle pièce de vie de 30 m²). L’espace nuit comprend deux chambres, une salle d’eau et un WC séparé. Le tout est complété par une place de parking en sous-sol. Les + : Proximité des commerces, transports et écoles Calme Possibilité de réagencer entièrement l’appartement N'hésitez plus et contactez moi au : 06 76 51 56 41 Honoraires à la charge du vendeur. Agent commercial immatriculé au R.S.A.C. de Créteil sous le numéro 900 808 650 Bien soumis au statut de la copropriété, 22 logements, procédure en cours : aucune, 44 lots, Charges budget prévisionnel annuel 2 000 €. Annonce publiée par Baya Chelghoum (EI) votre agent commercial en immobilier LF immo à Bry Sur Marne, 94360 immatriculé au RSAC de CRETEIL sous le n°953 149 390 000 15. Consultez nos tarifs sur le site LF immo. Les informations sur les risques auxquels ce bien est exposé sont disponibles sur le site Géorisques : www.georisques.gouv.fr.

Well K Home
Annonce publiée le 04/12/2025
Proposée par Well K Home 04/12/2025
8
Appartement, 62 m²

289 000 € 4 661 €/m²
Appartement • 62 m² • 3 pièces • 2 chambres

Montigny-le-Bretonneux (78180)

Situé au plein coeur du centre ville de Montigny le Bretonneux à quelques minutes à pied de la gare, dans le quartier du Plan de Troux cet appartement situé au dernier étage de la résidence saura répondre à vos envies. Il se compose d'une belle entrée avec rangements distribuant le séjour exposé au SUD qui donne sur la terrasse filante de l'appartement. La cuisine séparée du séjour avec la possibilité d'y faire un coin repas dispose également d'un petit balcon afin d'y faire pousser vos herbes aromatiques ! L'espace nuit se compose lui de 2 belles chambres avec rangements, une salle de bain spacieuse et des WC séparés. Afin de compléter cet ensemble l'appartement est proposé à la vente avec une cave et une place de parking ! Venez vite le visiter ! Référence agence : 819

CP Immo
Annonce publiée le 04/12/2025
Proposée par CP Immo 04/12/2025
6
Appartement, 67 m²

355 000 € 5 299 €/m²
Appartement • 67 m² • 3 pièces • 2 chambres

Le Plessis-Robinson (92350)

EXCLUSIVITE CITE-JARDINS: Dans une petite copropriété fraichement ravalée , bel appartement de 3 pièces TOTALEMENT AU CALME de 67m2 avec balcon et parking. Il se compose d'une entrée avec placard, un séjour de plus de 24m2 donnant sur un balcon exposé SUD EST sans vis à vis, vue RIVIERE, une cuisine aménagée et équipée pouvant s'ouvrir sur la pièce de vie, deux chambres, une salle de douches et un WC séparés. Jouissance d'un parking au pied de l'immeuble. A 3 minutes à pied du Marché, de la maison des Arts et de l'école Louis Hachette. A 5 min à pied des commerces du coeur de ville. Référence agence : 0000

Cabinet Poillot
Annonce publiée le 05/12/2025
Proposée par Cabinet Poillot 05/12/2025
9
Appartement, 55,11 m²

480 000 € 8 710 €/m²
Appartement • 55,11 m² • 3 pièces • 1 chambre

Paris 12ème (75012)

Situé à proximité immédiate du métro Montgallet (ligne 8), et à 6 min à pied du métro Reuilly-Diderot (ligne 1). Au sein d'une petite copropriété de 1900 bien entretenu, avec gardien. Il s'agit d'un appartement au 2ème étage étage avec ascenseur composé : D'une pièce principale, une cuisine, deux chambres, une salle d'eau et wc indépendant, ou d'une pièce principale, une salle à manger, une cuisine, une chambre, une salle d'eau et wc indépendant. Vous serez séduit par son calme, sa proximité immédiate aux commodités. Honoraires à la charge du vendeur. Dans une copropriété de 8 lots. Quote-part moyenne du budget prévisionnel 2 160 €/an. Aucune procédure n'est en cours. Classe énergie F, Classe climat C Logement à consommation énergétique excessive. Montant estimé des dépenses annuelles d'énergie pour un usage standard : entre 1710.00 € et 2350.00 € sur les années 2021, 2022 et 2023 (abonnements compris). Les informations sur les risques auxquels ce bien est exposé sont disponibles sur le site Géorisques : georisques.gouv.fr. Votre conseiller Cabinet Poillot : Ava RAHGOSHAY Agent commercial (Entreprise individuelle) RSAC 850170309

Linda WU - Winkey
Annonce publiée le 05/12/2025 - mise à jour 08/12/2025
Proposée par Linda WU - Winkey 05/12/2025 - mise à jour 08/12/2025
4
Appartement, 60,57 m²

175 000 € 2 889 €/m²
Appartement • 60,57 m² • 3 pièces • 2 chambres

Villeneuve-le-Roi (94290)

Linda WU de WINKEY IMMOBILIER vous présente sa nouvelle exclusivité ! Opportunité à saisir dans le quartier prisé de Parc en Seine à Villeneuve-le-Roi ! Ce T3 de 61 m2, situé dans une résidence moderne de 2012, offre un cadre de vie idéal avec un séjour lumineux, un coin cuisine ouvert et un balcon exposé plein sud, avec vue sur la cour et la Seine. L'appartement comprend également deux chambres, une salle de bain et des WC séparés. Une place de parking en sous-sol complète ce bien, situé dans une résidence sécurisée et bien entretenue. Travaux de rafraîchissement à prévoir. Une visite s’impose ! Contactez dès maintenant votre conseillère immobilière dédiée, Linda WU de WINKEY, au 06 51 86 96 31 ou par e-mail à l'adresse . Cette annonce vous est proposée par WU LINGLING - EI - NoRSAC: 881 828 776, Enregistré à Greffe du tribunal de commerce de Créteil La présente annonce immobilière a été rédigée sous la responsabilité éditoriale de l'agent mandataire. Les informations sur les risques auxquels ce bien est exposé sont disponibles sur le site Géorisques : www.georisques.gouv.fr - Annonce rédigée et publiée par un Agent Mandataire -