MAISON PLAIN-PIED 87m² - 2 CHAMBRES - TERRAIN 1199m² - CALME Située dans un quartier très prisé de L'ILE D'OLONNE, venez découvrir cette charmante maison d'habitation de plain pied, de...
Eric Petitgas
Eric Petitgas
Eric Petitgas, (85)
Les biens que je propose à la vente (10)
LES SABLES D'OLONNE - APPARTEMENT 1er étage - 58M² - COUR - GARAGE - DEPENDANCES - PROCHE YLIUM Venez découvrir ce magnifique appartement de 58m², situé dans le quartier d'Olonne sur...
BRETIGNOLLES SUR MER - APPARTEMENT RDC - 56M² - 2 CHAMBRES - 1 SALLE D'EAU - COUR PRIVATIVE - CENTRE VILLE - PARKING - PROCHE PLAGE Idéalement situé, cet appartement, vendu en plateau...
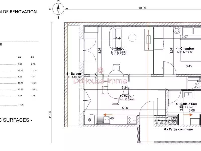
BRETIGNOLLES SUR MER - APPARTEMENT 1er ETAGE - 48M² - 1 CHAMBRE - 1 SALLE D'EAU - BALCON - CENTRE VILLE - PARKING - PROCHE PLAGE Idéalement situé, cet appartement, vendu en plateau...
BRETIGNOLLES SUR MER - DEPENDANCE - 70M² - TERRAIN CONSTRUCTIBLE 348M² - CENTRE VILLE - Idéalement située, cette dépendance édifiée sur un terrain constructible de 348m² (19mx18m), hors...
- TERRAIN A BATIR - 641M² - L'ILE D'OLONNE - LIBRE DE CONSTRUCTEUR Ce terrain à bâtir de 641m² est situé dans le quartier très recherché de la Salaire à L'ILE D'OLONNE. Son emplacement...