Louer un appartement terrasse avec terrasse à Béziers (34500)

Modifier ma recherche
40 annonces
LEPARTENARIATIMMOBILIER.COM
Annonce publiée le 09/12/2025
Proposée par LEPARTENARIATIMMOBILIER.COM 09/12/2025
1
Appartement, 62 m²

709 € CC
Appartement • 62 m² • 3 pièces • 2 chambres

Béziers (34500)

SUBERPE APPARTEMENT TYPE 3 PLEIN SUD A LOUER NOUVELLES NORMES BBC, PARKING, LE TOUT DANS SUPERBE PETITE RESIDENCE SECURISEE... AU CALME, SUPERBE SEJOUR + CUISINE EQUIPEE DE 32 M², MEUBLES, PLAQUES VITRO CERAMIQUE, HOTTE ASPIRANTE, ... EAU CHAUDE SOLAIRE, 2 CHAMBRES AVEC PLACARDS... BELLES TERRASSES... LOYER 639 € + 70 CHARGES. FAG 600 €. CAUTION 639 €. A SAISIR VITE VITE... disponible 1 juillet 2024

Agent immobilier ?
Diffusez GRATUITEMENT toutes vos annonces sur Superimmo.com
VERSION IMMOBILIER
Annonce publiée le 09/12/2025
Proposée par VERSION IMMOBILIER 09/12/2025
4
Appartement, 66,1 m²

879 € CC
Appartement • 66,1 m² • 3 pièces • 2 chambres

BEZIERS (34500)

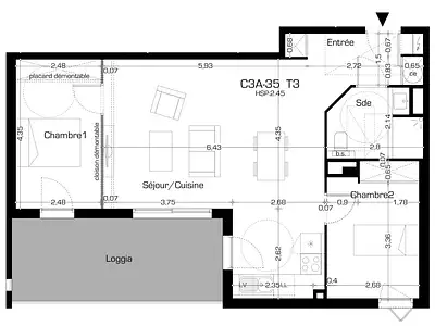
Découvrez ce logement moderne situé à Béziers, face au Polygone, au sein d'une résidence neuve et sécurisée. Niché au 3e étage avec ascenseur, ce T3 de 66,10 m² séduit par son agencement optimisé : grand séjour lumineux avec cuisine aménagée et semi-équipée, rangements pratiques et salle d'eau contemporaine. Atout rare, une grande terrasse de 14 m² prolonge l'espace de vie, idéale pour vos moments de détente. Une place de parking privative en sous-sol complète ce bien fonctionnel et attractif. LOCATION SUR PLAN UNIQUEMENT , PAS DE VISITE POSSIBLE PHOTOS APPARTEMENT TEMOIN NON CONTRACTUELLES DISPONIBLE MI JANVIER 2026 Loyer: 879.00 € Dont provision sur charges : 83 € par mois (régularisation annuelle) Honoraires charge locataire : 726 € TTC (dont Frais de visite / dossier / rédaction du bail 528 € TTC et dont honoraires état des lieux : 198 € TTC) Dépôt de garantie : 796 € Prix moyens des énergies indexés sur les années 2021, 2022 et 2023 (abonnement compris). Montant estimé des dépenses annuelles d'énergie pour un usage standard : entre 385 € et 510 € par an.

VERSION IMMOBILIER
Annonce publiée le 20/11/2025
Proposée par VERSION IMMOBILIER 20/11/2025
9
Appartement, 87,55 m²

750 € CC
Appartement • 87,55 m² • 3 pièces • 2 chambres

BEZIERS (34500)

Situé dans l'un des quartiers les plus agréables de Béziers, à deux pas du Jardin des Bassins, ce logement traversant de 85 m² offre un cadre de vie lumineux et apaisant. Niché au 2e étage avec ascenseur d'une résidence calme et sécurisée, il séduit par son vaste séjour prolongé d'une terrasse et d'un balcon, sa cuisine aménagée et semi-équipée, ainsi que ses nombreux rangements. Les deux chambres confortables et la salle d'eau récente complètent un agencement fonctionnel. Le stationnement est facilité par un parking fermé et sécurisé. Un bien rare qui allie espace, tranquillité et praticité au quotidien. VISITE VIRTUELLE SUR NOTRE SITE INTERNET. DISPONIBLE RAPIDEMENT. Loyer: 750.00 € Dont provision sur charges : 100 € par mois (régularisation annuelle) Honoraires charge locataire : 650 € TTC (dont Frais de visite / dossier / rédaction du bail 500 € TTC et dont honoraires état des lieux : 150 € TTC) Dépôt de garantie : 650 € Prix moyens des énergies indexés sur les années 2021, 2022 et 2023 (abonnement compris). Montant estimé des dépenses annuelles d'énergie pour un usage standard : entre 1 160 € et 1 630 € par an.

SNG Immobilier
Annonce publiée le 18/10/2025
Proposée par SNG Immobilier 18/10/2025
8
Appartement, 40,38 m²

493 € CC
Appartement • 40,38 m² • 2 pièces • 1 chambre

Béziers (34500)

QUIETIS GESTION // RESIDENCE EMERGENCE // DISPOSITIF PINEL DISPONIBLE LE 17/01/2026 Contactez LAURENT CARACOTTE au 07x68x41x17x02 pour visiter cet appartement T2 de 40.38m² au 4ème étage avec une terrasse de 11.45m². Séjour ouvert sur une cuisine équipée d'un plan de travail, un évier, une plaque 2 feux vitrocéramique, une hotte, meubles haut et bas, un frigo top. Une chambre donnant accès au balcon et une salle d'eau avec WC. Au sous-sol, une place de parking . Honoraires de 444,84 € TTC à la charge du locataire comprenant 121,32 € TTC pour l'état des lieux. Loyer de base 458.00 €/mois. Provision sur charges 35 €/mois, régularisation annuelle. Dépôt de garantie 458 €. Classe énergie B, Classe climat B Montant estimé des dépenses annuelles d'énergie pour un usage standard : entre 250.00 € et 400.00 € sur les années 2021, 2022 et 2023 (abonnements compris). Les informations sur les risques auxquels ce bien est exposé sont disponibles sur le site Géorisques : georisques.gouv.fr. Votre conseiller SNG Immobilier : Laurent CARACOTTE Agent commercial (Entreprise individuelle) RSAC 498 179 191 RSAC NARBONNE RCP 59 131 533 Retrouvez l'annonce de l'agence immobilière SNG Immobilier sur :

VERSION IMMOBILIER
Annonce publiée le 19/11/2025
Proposée par VERSION IMMOBILIER 19/11/2025
6
Appartement, 36,78 m²

480 € CC
Appartement • 36,78 m² • 2 pièces • 1 chambre

BEZIERS (34500)

A louer appartement T2 quartier Arènes à Béziers avec une chambre à l'étage, une salle d'eau, un séjour, une cuisine équipée, Stationnement Facile et jardin privatif, clim reversible Disponible IMMEDIATEMENT Loyer: 480.00 € Dont provision sur charges : 19 € par mois (régularisation annuelle) Honoraires charge locataire : 404,58 € TTC ( dont frais de visite / dossier / rédaction du bail 294 € TTC et dont honoraires état des lieux 110,58 € TTC ) Dépôt de garantie : 461 € Prix moyens des énergies indexés sur les années 2021, 2022 et 2023 (abonnement compris). Montant estimé des dépenses annuelles d'énergie pour un usage standard : entre 410 € et 600 € par an.

VERSION IMMOBILIER
Annonce publiée le 06/12/2025
Proposée par VERSION IMMOBILIER 06/12/2025
6
Appartement, 38,07 m²

575 € CC
Appartement • 38,07 m² • 2 pièces • 1 chambre

BEZIERS (34500)

Quartier FONT-NEUVE dans Immeuble sécurisé avec vidéosurveillance et très bien entretenu, appartement T2 rénové d'environ 38m² idéalement exposé (Sud) et bénéficiant d'une immense terrasse de + de 80m²), d'un garage en sous-sol et d'un cellier privatif (Vélos, etc). Pour plus de confort, l'immeuble est équipé d'un ascenseur. DISPONIBLE DEBUT JANVIER 2026. Loyer: 575.00 € Dont provision sur charges : 60 € par mois (régularisation annuelle) Honoraires charge locataire : 418,77 € TTC (dont Frais de visite / dossier / rédaction du bail 304,56 € TTC et dont honoraires état des lieux : 114,21 € TTC) Dépôt de garantie : 515 € Prix moyens des énergies indexés au 01/01/2021 (abonnement compris). Montant estimé des dépenses annuelles d'énergie pour un usage standard : entre 360 € et 530 € par an.

Anthinéa Gestion
Annonce publiée le 01/12/2025
Proposée par Anthinéa Gestion 01/12/2025
1
Appartement, 82 m²

1 090 € CC
Appartement • 82 m² • 4 pièces • 3 chambres

Béziers (34500)

Appartement neuf à louer au cœur de Béziers, 5 Rue François Feynes : un 4 pièces moderne de 82,7 m², idéal pour une famille ou des professionnels . Livré en 2025, cet appartement lumineux offre 3 chambres confortables, un séjour convivial et une belle terrasse pour profiter des beaux jours . Parmi les prestations : ascenseur , 2 places de parking privatif et une salle de bains contemporaine avec douche à l'italienne pour votre confort quotidien . L'état impeccable et les finitions récentes garantissent une qualité de vie optimale. Emplacement privilégié en centre-ville : proche d'une école (pratique pour les familles) et desservi par les transports en commun , facilitant tous vos déplacements. Commerces, services et vie culturelle à deux pas. Loyer demandé : 1 090 EUR/mois. Ne laissez pas passer cette opportunité — contactez-nous pour organiser une visite et découvrir ce logement de standing !

SNG Immobilier
Annonce publiée le 15/11/2025
Proposée par SNG Immobilier 15/11/2025
6
Appartement, 39,4 m²

543 € CC
Appartement • 39,4 m² • 2 pièces • 1 chambre

Béziers (34500)

QUIETIS GESTION // RESIDENCE TERA NOVA DISPONIBLE LE 14/12/2025 Contacter notre agent commercial Monsieur CARACOTTE au 07x68x41x17x02 pour visiter cet appartement T2 de 39.4m², situé en rez-de-chaussée, avec une terrasse et une place de parking. Ce bien se compose d'un séjour avec une cuisine ouverte aménagée, d'une chambre avec placard, d'une salle d'eau avec wc. Honoraires de 433,40 € TTC à la charge du locataire comprenant 118,20 € TTC pour l'état des lieux. Loyer de base 423.00 €/mois. Provision sur charges 120 €/mois, régularisation annuelle. Dépôt de garantie 423 €. Classe énergie B, Classe climat A Montant estimé des dépenses annuelles d'énergie pour un usage standard : entre 330.00 € et 500.00 € sur les années 2021, 2022 et 2023 (abonnements compris). Les informations sur les risques auxquels ce bien est exposé sont disponibles sur le site Géorisques : georisques.gouv.fr. Votre conseiller SNG Immobilier : Laurent CARACOTTE Agent commercial (Entreprise individuelle) RSAC 498 179 191 RSAC NARBONNE RCP 59 131 533 Retrouvez l'annonce de l'agence immobilière SNG Immobilier sur :

SNG Immobilier
Annonce publiée le 09/12/2025
Proposée par SNG Immobilier 09/12/2025
2
Appartement, 36,6 m²

431 € CC
Appartement • 36,6 m² • 2 pièces • 1 chambre

Béziers (34500)

QUIETIS GESTION // RESIDENCE LES JARDINS D'EDEN // BEZIERS DISPONIBLE LE 08/03/2026 Résidence située en plein coeur d'un quartier écologique à 5 minutes du centre-ville. Pour plus de renseignements n'hésitez pas à prendre contact avec Mr Laurent CARACOTTE joignable au 07x68x41x17x02 pour visiter cet appartement T2 au 1er étage de 36.60 m² dans résidence calme avec espaces verts. L'appartement se compose d'un séjour avec coin cuisine (équipée avec plan de travail en stratifié, avec évier encastré et plaque vitrocéramique deux feux. meuble bas avec réfrigérateur, meubles haut avec hotte. Une chambre, une salle d'eau avec un WC et sèche serviette. Terrasse de 12.65m² commune au séjour et à la chambre. Une place de parking couvert. Vidéophone. Ascenseur. Local à vélos commun. Honoraires de 402,60 € TTC à la charge du locataire comprenant 109,80 € TTC pour l'état des lieux. Loyer de base 391.00 €/mois. Provision sur charges 40 €/mois, régularisation annuelle. Dépôt de garantie 391 €. Classe énergie B, Classe climat A. Date de réalisation du DPE : 23-03-2016. Les informations sur les risques auxquels ce bien est exposé sont disponibles sur le site Géorisques : georisques.gouv.fr. Votre conseiller SNG Immobilier : Laurent CARACOTTE Agent commercial (Entreprise individuelle) RSAC 498 179 191 RSAC NARBONNE RCP 59 131 533 Retrouvez l'annonce de l'agence immobilière SNG Immobilier sur :

Cabinet Mollevi
Annonce publiée le 06/09/2025
Proposée par Cabinet Mollevi 06/09/2025
8
Appartement, 73 m²

662 € CC
Appartement • 73 m² • 3 pièces • 2 chambres

Béziers (34500)

Le Cabinet Mollevi vous propose cet appartement entièrement rénové de type 3 composé d'un séjour donnant sur une terrasse avec un coin cuisine séparé , coté nuit deux chambres, une principale et une petite chambre à l 'étage, un wc et une salle d'eau moderne. Face aux halles de Béziers en coeur de ville avec toutes les commodités. libre début octobre frais d'agence 500 euros

VERSION IMMOBILIER
Annonce publiée le 15/11/2025
Proposée par VERSION IMMOBILIER 15/11/2025
6
Appartement, 41,98 m²

Prix en baisse 460 € CC
Appartement • 41,98 m² • 2 pièces • 1 chambre

BEZIERS (34500)

AVENUE CLEMENCEAU, Au calme et dans résidence sécurisée avec commerces au pied de l'immeuble nous vous proposon sà la location un appartement T2 au 3e étage avec ascenseur. Belle terrasse et vue magnifique sur parc arboré. DISPONIBLE DEBUT JANVIER 2026 VISITE VIRTUELLE SUR NOTRE SITE INTERNET. Loyer: 400.00 € Dont provision sur charges : 60 € par mois (régularisation annuelle) Honoraires charge locataire : 400 € TTC (dont Frais de visite / dossier / rédaction du bail 300 € TTC dont honoraires état des lieux : 100 € TTC) Dépôt de garantie : 400 € Prix moyens des énergies indexés au 01/01/2021 (abonnement compris). Montant estimé des dépenses annuelles d'énergie pour un usage standard : entre 590 € et 840 € par an.

FDI SERVICES IMMOBILIERS
Annonce publiée le 11/10/2025
Proposée par FDI SERVICES IMMOBILIERS 11/10/2025
3
Appartement, 67,42 m²

615 € CC
Appartement • 67,42 m² • 3 pièces • 2 chambres

Béziers (34500)

Béziers - Secteur La Devèze - Découvrez ce joli T3 de 67,42m² situé au premier étage d'une résidence sécurisée. Il comprenant un grand séjour de 33m² avec une cuisine ouverte non équipée, 2 belles chambres avec placards, une salle de bains et un WC séparé. La terrasse d'une surface vous fera profiter des journées ensoleillées. L'appartement est loué avec deux places de parking privatives. Chauffage et production d'eau chaude individuels électriques. Ce bien est idéalement situé, à seulement quelques pas de plusieurs commodités essentielles. Vous trouverez à proximité des écoles ainsi que des commerces et des restaurants. Pour vos moments de détente, plusieurs parcs et jardins sont accessibles en quelques minutes de marche. Disponible fin tout de suite. Pour visiter : cliquez sur « Prendre rendez-vous » ou contactez l'agence au 04 67 69 70 00. comprenant 160 € TTC pour l'état des lieux. Loyer de base 500.00 €/mois. Provision sur charges 115 €/mois, régularisation annuelle. Dépôt de garantie 500 €. Classe énergie C, Classe climat A Montant estimé des dépenses annuelles d'énergie pour un usage standard : entre 890.00 € et 1250.00 € sur les années 2021, 2022 et 2023 (abonnements compris). Les informations sur les risques auxquels ce bien est exposé sont disponibles sur le site Géorisques : georisques.gouv.fr.

ETUDE DOLET TRANSACTION
Annonce publiée le 22/08/2025
Proposée par ETUDE DOLET TRANSACTION 22/08/2025
14
Appartement, 63,18 m²

610 € CC
Appartement • 63,18 m² • 3 pièces • 2 chambres

Béziers (34500)

Béziers, appartement de type 3 de 63.18 m2 situé au 1er étage d'une petite copropriété , comprenant un séjour avec coin cuisine, deux chambres avec placards , une salle de bains, un wc séparé , une terrasse , une cave et place de stationnement privative dans garage. Secteur Anciennes Arènes/ Caserne Saint Jacques Informations et visites au 06.48.56.35.11 ou service vente: 09.51.41.17.32// service location: 06.48.56.35.11//

IMODIRECT
Annonce publiée le 20/11/2025
Proposée par IMODIRECT 20/11/2025
8
Appartement, 43 m²

Prix en baisse 590 € CC
Appartement • 43 m² • 2 pièces • 1 chambre

Béziers (34500)

Réf. AN002956 - IMODIRECT vous présente : A proximité des transports et de toutes commodités, cet appartement saura vous séduire par ses prestations de qualité et son état irréprochable. Situé au 3ème étage d'une très belle résidence récente et sécurisée avec ascenseur, il se compose d'une jolie pièce de vie lumineuse avec cuisine ouverte aménagée donnant sur terrasse offrant une vue dégagée sans vis à vis, d'une petite buanderie, d'une salle d'eau avec WC et d'une grande chambre avec un immense placard. Appartement très calme. Place de parking couverte et sécurisée. les charges comprennent : l'eau froide et les charges générales. Merci de déposer un dossier complet avant visite. Logement sous dispositif PINEL. Paiement des Frais d'agence en 3x sans frais* *paiement en 3x sans frais possible sous condition d'éligibilité. Classe énergétique : A (de 1 à 70). Les frais d'agence sont de 474,76 € maximum. ERP : Les informations sur les risques auxquels ce bien est exposé sont disponibles sur le site Géorisques : https://www.georisques.gouv.fr/. Pour toute question ou visite, merci de nous contacter au 09 80 80 01 91.

Fanny Maille - iad
Annonce publiée le 11/11/2025
Proposée par Fanny Maille - iad 11/11/2025
11
Appartement, 47 m²

740 € CC
Appartement • 47 m² • Meublé • 3 pièces • 2 chambres

Béziers (34500)

iad France - Fanny Maille (07 88 33 14 66) vous propose : À louer – Appartement T3 meublé à Béziers Venez découvrir ce bel appartement T3 meublé de 47 m² environ, situé dans un secteur calme et agréable, au sein d’une résidence sécurisée. Il offre un cadre de vie confortable et pratique au quotidien. L’appartement dispose d’un séjour ouvert sur une cuisine équipée, de deux chambres, d’une salle de bains avec baignoire, d’un WC séparé et d’une agréable terrasse, idéale pour profiter de l’extérieur. Un garage privatif complète ce bien, offrant un stationnement pratique et sécurisé. N’hésitez pas à me contacter pour plus d’informations ou pour organiser une visite ! Information d'affichage énergétique sur ce bien : classe ENERGIE D indice 181 et classe CLIMAT A indice 5. Les informations sur les risques auxquels ce bien est exposé sont disponibles sur le site Géorisques : www.georisques.gouv.fr. La présente annonce immobilière a été rédigée sous la responsabilité éditoriale de Mlle Fanny Maille EI (ID 91368), mandataire indépendant en immobilier (sans détention de fonds), agent commercial de la SAS I@D France immatriculé au RSAC de Béziers sous le numéro 992939553, titulaire de la carte de démarchage immobilier pour le compte de la société I@D France SAS. Location meublée. Charges locatives : 60 euros / mois. Dépôt de garantie : 1360 euros. Honoraires TTC à la charge du locataire: 368 euros (soit 7.83 euros / m²).Le présent bien est commercialisé dans le cadre d'une délégation de mandat. Retrouvez tous nos biens sur notre site internet.