09 70 72 01 79 Appelez de la part de Superimmo.com
Utiliser DossierFacile


DossierFacile est le dossier de location numérique de l'Etat. Entièrement gratuit, conforme et sécurisé, il protège les locataires et rassure les propriétaires.

Vos informations sont transmises directement à l'agence afin qu'elle traite votre demande. Voir notre charte des données personnelles.

Contacter par email
Description

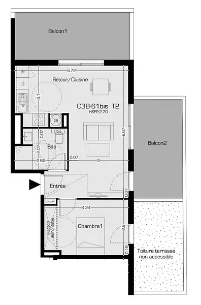
Découvrez ce logement moderne situé à Béziers, face au Polygone, au sein d'une résidence neuve et sécurisée. Niché au 6e et dernier étage avec ascenseur, ce T2 de 46,10 m² séduit par son agencement optimisé : grand séjour lumineux avec cuisine aménagée et semi-équipée, rangements pratiques et salle d'eau contemporaine. Atout rare, deux belles terrasses de 13 et 12 m² prolongent l'espace de vie, idéales pour vos moments de détente. Une place de parking privative en sous-sol complète ce bien fonctionnel et attractif. LOCATION SUR PLAN UNIQUEMENT , PAS DE VISITE POSSIBLE PHOTOS APPARTEMENT TEMOIN NON CONTRACTUELLES DISPONIBLE MI JANVIER 2026 Loyer: 650.00 € Dont provision sur charges : 70 € par mois (régularisation annuelle) Honoraires charge locataire : 506 € TTC (dont Frais de visite / dossier / rédaction du bail 368 € TTC et dont honoraires état des lieux : 138 € TTC) Dépôt de garantie : 580 € Prix moyens des énergies indexés sur les années 2021, 2022 et 2023 (abonnement compris). Montant estimé des dépenses annuelles d'énergie pour un usage standard : entre 345 € et 470 € par an.

Publiée le 10/12/2025 - Réf. agence : 342003026 - Réf Superimmo : ANLX101RZP
Vous rencontrez un problème sur le site ?
Merci de nous signaler le problème
Caractérisques
Loyer : 650 € CCCharges : 70 € / mois
Modalités de récupération des charges : prévisionnelles mensuelles avec régularisation annuelleDépôt de garantie : 580 €

Frais d'état des lieux : 138 € - Honoraires : 506 €. Barème d’honoraires : voir le barème

46,1 m² - 2 pièces - 1 chambre6ème étage avec ascenseur
Orientation : Nord1 Parking couvert
BalconTerrasse
Année de construction : 2025Chauffage électrique (clim. réversible)
Cuisine ouverte, aménagée, équipée1 salle d'eau
1 wc
Bilan énergétique Étiquette climat-énergie : B

Consommation d'énergie

Consommation
109 kWh/m².an
Logement très performantLogement extrêmement consommateur d'énergie

Émission de gaz à effet de serre

Peu d’émissions de CO2
A
B
C
D
E
F
G
10 kgeqCO2/m²/an
Émissions de CO2 très importante

Montant estimé des dépenses annuelles d’énergie pour un usage standard
Minimum : 345 € / an
Maximum : 470 € / an

Diagnostics réalisés le 01/11/2025.

Intéressez par ce type de bien ?
Pour recevoir par email les annonces similaires
CRÉER UNE ALERTE
Localisation
DEMANDER L’ADRESSE
Cette annonce vous est proposée par :
98 avis clients
09 70 72 01 79 Appelez de la part de Superimmo.com


DossierFacile est le dossier de location numérique de l'Etat. Entièrement gratuit, conforme et sécurisé, il protège les locataires et rassure les propriétaires.

Vos informations sont transmises directement à l'agence afin qu'elle traite votre demande. Voir notre charte des données personnelles.

Autres recherches

tous les appartements de 2 pièces à Béziers