Ventes immobilières à Nanterre (92000)

Modifier ma recherche
325 annonces
Zeynep CHEVRIER - iad
Annonce publiée le 31/10/2025 - mise à jour 25/11/2025
Proposée par Zeynep CHEVRIER - iad 31/10/2025 - mise à jour 25/11/2025
9
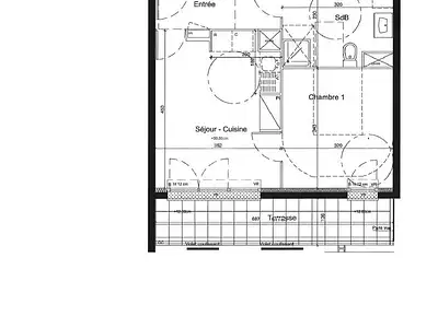
Appartement, 45 m²

269 000 € 5 978 €/m²
Appartement • 45 m² • 3 pièces • 2 chambres

Nanterre (92000)

iad France - Zeynep Chevrier (06 23 20 23 98) vous propose : DUPLEX 2/3 pièces lumineux avec 2 TERRASSES et PARKING DPE actuel : classe E – qui passera en CLASSE D dès janvier 2026 avec la nouvelle méthode de calcul. Situé dans une résidence de 2010 avec ASCENSEUR, ce charmant DUPLEX de 44 m² environ carrez + 2 grandes TERRASSE de 11 m2 environ chacune offrent un cadre de vie agréable et fonctionnel. Au 1er niveau, vous découvrirez une BELLE PIÈCE de VIE conviviale avec CUISINE OUVERTE, donnant accès à une spacieuse terrasse de 11 m² environ, idéale pour vos repas en extérieur. Un WC complète cet étage. À l’étage supérieur, deux petites CHAMBRES confortables (avec possibilité de créer une grande suite) s’ouvrent sur une seconde terrasse de 11 m² environ. Vous y trouverez également une SALLE DE BAIN équipée d’une baignoire. Les atouts supplémentaires : Résidence récente avec ascenseur Volets roulants électriques Une place de PARKING privative en sous-sol DPE actuel : classe E – qui passera en CLASSE D dès janvier 2025 avec la nouvelle méthode de calcul. À 5 min à pied de la future ligne de métro 15 A visiter sans attendre ! La présente annonce immobilière vise 1 lot principal situé dans une copropriété formant 26 lots au total ne faisant l'objet d'aucune procédure en cours et d'un montant de charges d’environ 173 € par mois (soit 2076 € annuel) déclaré par le vendeur.Honoraires d’agence à la charge du vendeur.Information d'affichage énergétique sur ce bien : classe ENERGIE E indice 301 et classe CLIMAT B indice 9. Les informations sur les risques auxquels ce bien est exposé sont disponibles sur le site Géorisques : www.georisques.gouv.fr. La présente annonce immobilière a été rédigée sous la responsabilité éditoriale de Mme Zeynep Chevrier EI (ID 51682), mandataire indépendant en immobilier (sans détention de fonds), agent commercial de la SAS I@D France immatriculé au RSAC de nanterre sous le numéro 797964749, titulaire de la carte de démarchage immobilier pour le compte de la société I@D France SAS.Le présent bien est commercialisé dans le cadre d'une délégation de mandat. Retrouvez tous nos biens sur notre site internet.

Agent immobilier ?
Diffusez GRATUITEMENT toutes vos annonces sur Superimmo.com
COMIMOB, Agence Faubourg de l'Arche
Annonce mise à jour le 06/08/2025
Proposée par COMIMOB, Agence Faubourg de l'Arche 06/08/2025
8
Appartement, 43,92 m²

Prix en baisse 358 800 € 8 169 €/m²
Appartement • 43,92 m² • 2 pièces • 1 chambre

Nanterre (92000)

Découvrez ce charmant 2 pièces de 43,92 m² situé au 5ème étage d'un immeuble moderne de 2011, à proximité immédiate de Paris La Défense Arena et de toutes commodités. Ce bien lumineux comprend une entrée avec rangements, un spacieux séjour avec cuisine ouverte, le tout donnant accès à une belle terrasse de 13,58 m², offrant une vue dégagée sur une rue piétonne. La chambre, également équipée de rangements, s'ouvre sur la terrasse. Une salle de bains avec WC complète ce bien. Quelques travaux de rafraîchissement sont à prévoir pour le remettre au goût du jour. Honoraires inclus de 2.81% à la charge de l'acquéreur. Prix hors honoraires 349 000 €. Dans une copropriété de 200 lots. Aucune procédure n'est en cours. Classe énergie B, Classe climat B Montant estimé des dépenses annuelles d'énergie pour un usage standard : entre 310.00 € et 470.00 € sur les années 2021, 2022 et 2023 (abonnements compris). Les informations sur les risques auxquels ce bien est exposé sont disponibles sur le site Géorisques : georisques.gouv.fr. Retrouvez l'annonce de l'agence immobilière COMIMOB, Agence Faubourg de l'Arche sur :

AGENCE PRINCIPALE Nanterre
Annonce mise à jour le 05/12/2025
Proposée par AGENCE PRINCIPALE Nanterre 05/12/2025
1
Appartement, 38 m²

239 900 € 6 313 €/m²
Appartement • 38 m² • 2 pièces • 1 chambre

Nanterre (92000)

Nanterre, à proximité du rond point de la boule, Dans une copropriété récente, encore sous garantie décennale, cet appartement de 2 pièces est composé d'une pièce de vie avec coin cuisine, d'une chambre, le tout donnant sur une terrasse de 9.32 m² exposée est-sud , et d'une grande salle de douche avec toilettes. Un stationnement en sous-sol complète ce bien. A proximité des commerces, écoles, à 10 minutes de la Défense. Cet appartement est vendu loué jusqu'en juin 2025. Il est sous contrat de location avec la société Soliha AIS (Agence Immobilière Sociale) avec un loyer fixe de 640 Euros. 01.40.97.07.07 AP/BV Copropriété de 167 lots - dont 7 lots habitation. (Pas de procédure en cours). Charges annuelles : 1700 euros.

ESPACE LMNP
Annonce mise à jour le 27/10/2025
Proposée par ESPACE LMNP 27/10/2025
8
Appartement, 22 m²

115 864 € 5 267 €/m²
Appartement • 22 m² • Meublé • 1 pièce

Nanterre (92000)

RENTABILITÉ : 5.80% PRIX : 115 864 € (honoraires à la charge du vendeur) LOYER ANNUEL HT : 6 720 € TYPE DE RÉSIDENCE : TOURISME/AFFAIRES INVESTISSEZ DANS UNE RÉSIDENCE DE SERVICES : Un placement locatif simple, sécurisé et rentable : - Aucune gestion : l'exploitant s'occupe de tout, du locataire à l'entretien, - Loyers sécurisés : garantis par bail, même en l'absence d'occupant, - Rentabilité : stable sans effort, sans soucis de gestion, - Peu de charges : l'exploitant prend en charge la majorité des coûts, - Fiscalité avantageuse : statut LMNP, peu ou pas d'impôts pendant plusieurs années. DESCRIPTION DU BIEN : - Studio meublé de 22.65 m². - Située à proximité du quartier de La Défense. - Proche de Paris, des commerces et du RER A. - Exposition : Sud Le bien est soumis au statut de la copropriété (loi du 10/07/1965), la résidence est composée de 253 lots. Contactez-nous au 01.84.79.24.50 ou sur notre site internet.

Thomas LEFAUCHEUX - Expertimo
Annonce mise à jour le 22/11/2025
Proposée par Thomas LEFAUCHEUX - Expertimo 22/11/2025
22
Appartement, 57,23 m²

Prix en baisse 239 000 € 4 176 €/m²
Appartement • 57,23 m² • 3 pièces • 2 chambres

Nanterre (92000)

Je vous propose ce sympathique appartement de 3 pièces au 2ème étage d'un bel immeuble Art Déco de 1936, situé à 2 pas du centre ville, de la place du marché et de la place de la Boule (future ligne 15 du métro). Il se compose d'une entrée, d'une cuisine séparée (à équiper),d'un séjour, de 2 chambres en enfilade sur cour, d'une salle de bains (à rénover) et d'une cave. L'appartement est à rafraichir, la copropriété est très saine, chauffage collectif gaz, eau chaude individuelle. Charges 360€ / mois comprenant le chauffage, l'eau froide, l'entretien de l'immeuble, le syndic et les assurances. Cette annonce vous est proposée par THOMAS LEFAUCHEUX - EIRL - NoRSAC: 790 944 722, Enregistré à Greffe du tribunal de commerce de NANTERRE - Annonce rédigée et publiée par un Agent Mandataire -

ERA Charonne Bastille
Annonce publiée le 17/03/2025 - mise à jour 14/09/2025
Proposée par ERA Charonne Bastille 17/03/2025 - mise à jour 14/09/2025
4
Appartement, 120 m²

Prix en baisse 722 000 € 6 017 €/m²
Appartement • 120 m² • 5 pièces • 3 chambres

Nanterre (92000)

Magnifique 111 m2 avec BALCON, CALME et LUMINEUX Hauts-de-Seine, Nanterre, quartier des Fontenelles, à proximité directe de Puteaux (Place des Bergères), et à 10min de la Défense, Au 4e étage d'un bel immeuble récent (1965) de 6 étages, avec ascenseur, gardiens, digicode et visiophone. 4/5 pièces (3 chambres) de standing de 111m2 traversant "est / ouest" avec 2 balcons (7 et 2m2) Hauteur sous plafond : 2m50. Entrée avec rangements, séjour - salle à manger traversant de 32m2, lumineux, ouvrant sur un balcon de 7m2 exposé "ouest", une cuisine équipée, 3 chambres, dont une principale connectée à son propre dressing (avec balcon de 2m2) et sa propre salle de bain. Une seconde salle d'eau, 2 wc indépendants, un cellier / buanderie. Chaque chambre bénéficie d'une surface de 11m2 et d'une exposition "est". CALME : aucune pièce ne donne sur rue, l'appartement est situé dans un bâtiment indépendant au centre de la résidence avec jardins. Vendu avec une cave et 2 places de parking (une en sous-sol, l'autre en surface de la résidence sécurisée) Commerces à moins de 10 minutes à pied : Marché des Bergères est ouvert les mercredis et samedis matin de 8h à 13h. Boulangerie (prix de la meilleure pâtisserie 2023), Bio C Bon, Franprix, Picard.. Transports : 5 arrêts de bus (258) de la Défense, Tram Puteaux à environ 10min. Informations et visites : Yann Hamet 07.63.71.18.11

Agence Croix Du Roy CGPI
Annonce publiée le 09/06/2025 - mise à jour 19/10/2025
Proposée par Agence Croix Du Roy CGPI 09/06/2025 - mise à jour 19/10/2025
16
Maison, 55 m²

Prix en baisse 317 000 € 5 764 €/m²
Maison • 55 m² • 2 pièces • 1 chambre

Nanterre (92000)

Au cœur d'une ruelle paisible où l'on n'entend que le chant des oiseaux, cette belle endormie de 1920 n'attend que votre imagination pour se réinventer. Derrière sa façade au charme d'époque se niche : Un salon baigné de lumière qui appelle les moments cosy autour d'un café ou d'un bon livre. Une chambre intime pour des réveils tout en douceur. Le plateau du RDC bénéficie d'une superficie de 54 m² Un sous-sol entièrement aménageable, déjà accessible mais prêt à être relié directement à la maison : pièce cinéma, atelier d'artiste, suite parentale… à vous de choisir avec presque 20 m² de volume à aménager ! Un jardin secret, verdoyant et plein sud, parfait pour les barbecues d'été ou les siestes au soleil. Le bonus ? Un calme absolu, rare en ville, qui donne l'impression de vivre à la campagne tout en restant connecté à Paris. Une opportunité à saisir avant qu'elle ne file ! Laissez-vous séduire et écrivez la prochaine page de cette maison pleine de promesses. Possibilité d'acquérir un box en sus situé à proximité immédiate ! Référence agence : 1891

ERA Agence Du Plateau
Annonce publiée le 12/09/2025
Proposée par ERA Agence Du Plateau 12/09/2025
6
Appartement, 66 m²

435 700 € 6 602 €/m²
Appartement • 66 m² • 3 pièces • 2 chambres

Nanterre (92000)

A vendre 3 pièces Nanterre. A seulement 3 minutes à pieds du RER A Nanterre Université, votre agence ERA vous propose ce superbe appartement dans immeuble récent de 2016 . Il se compose d'une entrée, d'un séjour lumineux donnant sur une terrasse de 9m² exposée Sud/Ouest , d'une belle cuisine moderne ouverte aménagée et équipée, de 2 chambres avec placards, d'une grande salle de bains, WC séparés, et d'un grand débarras. Une place de parking en sous sol complète ce bien. Secteur proche de toutes commodités: écoles, transports et commerces à proximité immédiate !

AGENCE DE VALLIERE - Nanterre Centre
Annonce publiée le 10/10/2025
Proposée par AGENCE DE VALLIERE - Nanterre Centre 10/10/2025
8
Appartement, 87 m²

399 000 € 4 586 €/m²
Appartement • 87 m² • 4 pièces • 3 chambres

Nanterre (92000)

Dans une résidence récemment ravalée, les agences de Vallière sont les seuls à vous proposer ce grand appartement traversant et lumineux en plein coeur de ville. Ses beaux volumes vous permettront d'y installer toute votre famille. Il dispose : d'une entrée, d'un séjour de 25m² donnant sur un balcon filant de 5m² exposé Sud, d'une cuisine indépendante ouvrable sur le séjour (ce qui ferait une pièce de vie de plus de 33m²). La partie nuit propose 3 grandes chambres (de plus de 13m² à presque 15m²), une salle de bains, un dégagement avec rangements et un WC séparé. L'appartement est vendu avec une cave. Situé à deux pas du RER de Nanterre ville, de tous les commerces et des écoles, cet appartement est idéal pour une famille, une profession libérale ou de la colocation. (5.00 % honoraires TTC à la charge de l'acquéreur.) Copropriété de 75 lots - dont 29 lots habitation. (Pas de procédure en cours). Charges annuelles : 3599.88 euros.

AGENCE DE VALLIERE - Nanterre Centre
Annonce publiée le 22/10/2025 - mise à jour 08/11/2025
Proposée par AGENCE DE VALLIERE - Nanterre Centre 22/10/2025 - mise à jour 08/11/2025
8
Appartement, 72 m²

Prix en baisse 449 000 € 6 236 €/m²
Appartement • 72 m² • 3 pièces • 2 chambres

Nanterre (92000)

Situé dans une résidence calme, au 5eme étage avec ascenseur, cet appartement de 3 pièces offre une belle surface de 72 m², bien agencée et traversante. Vous profiterez d'une superbe terrasse plein sud, sans vis-à-vis. Il se compose d'une entrée, d'une cuisine indépendante, d'un séjour lumineux, de deux chambres, d'une salle de bains et d'un WC séparé. Une cave et une place complètent ce bien. La copropriété est très bien entretenue : ravalement, isolation et étanchéité des terrasses récents. Les travaux des parties communes sont déjà votés et réglés par le propriétaire. Une véritable pépite ! UNE EXLUSIVITE DES AGENCES DE VALLIERE Copropriété de 169 lots - dont 36 lots habitation. Charges annuelles : 2980 euros.

AGENCE DE VALLIERE
Annonce publiée le 24/10/2025
Proposée par AGENCE DE VALLIERE 24/10/2025
18
Appartement, 144 m²

650 000 € 4 514 €/m²
Appartement • 144 m² • 5 pièces • 3 chambres

Nanterre (92000)

Bienvenue dans cet appartement exceptionnel de 145 m², organisé sur trois demi-niveaux autour d'un spectaculaire patio vitré de 5 mètres sous plafond, évoquant l'esprit d'une maisonnette. Il se compose d'une entrée, d'un séjour de 28 m², d'une salle à manger de 13 m², de trois chambres, d'un dressing et d'une mezzanine. La cuisine, actuellement séparée, peut être facilement ouverte pour créer un espace américain ou être prolongée vers le patio. Le rez-de-jardin bénéficie d'un petit jardin de 28 m², facile à entretenir. Le bien, en bon état avec double vitrage et volets électriques, est situé dans une copropriété sécurisée avec un parking accessible par ascenseur. Son emplacement est remarquable : à seulement 3 minutes à pied de la gare RER A Nanterre Préfecture, 10 minutes de l'Arche de la Défense et à proximité immédiate des écoles et du parc André Malraux. Un rare équilibre entre calme, lumière et accessibilité. (4.84 % honoraires TTC à la charge de l'acquéreur.) Copropriété de 500 lots (Pas de procédure en cours). Charges annuelles : 4500 euros.

IMMO-CONCEPT
Annonce publiée le 01/11/2025 - mise à jour 15/11/2025
Proposée par IMMO-CONCEPT 01/11/2025 - mise à jour 15/11/2025
8
Appartement, 36,51 m²

211 500 € 5 793 €/m²
Appartement • 36,51 m² • 1 pièce

Nanterre (92000)

***IMMO-CONCEPT*** A 15 min à pied des gares RER A Nanterre-Université Nanterre-Ville et Nanterre-Préfecture venez découvrir ce studio lumineux de 36,5 m² dans un quartier calme et recherché Il offre une pièce principale bien agencée une cuisine aménagée des placards pratiques et une salle d'eau avec WC Cerise sur le gâteau : une cour privative pour profiter de l'extérieur en toute tranquillité un vrai luxe à Nanterre ! Les + qui font la différence : Très bon état aucun travaux à prévoir dans la pièce principale Rangement optimisé Cour privative rare dans le secteur A deux pas des transports de l'université et des commerces DPE : G quelques travaux d'isolation à envisager probablement éligibles à des aides et à la défiscalisation énergétique Parfait pour un premier achat ou un investissement locatif ! Copropriété de 9 lots - dont 5 lots habitation. (Pas de procédure en cours). Charges annuelles : 1593 euros.

La Galerie Immobilière
Annonce publiée le 08/11/2025
Proposée par La Galerie Immobilière 08/11/2025
9
Appartement, 71,65 m²

424 000 € 5 918 €/m²
Appartement • 71,65 m² • 4 pièces • 3 chambres

Nanterre (92000)

À proximité du centre-ville de Nanterre, La Galerie Immobilière vous propose ce charmant appartement lumineux de 4 pièces, d'une surface de 71,65 m², situé au 2ème étage d'une petite copropriété de 4 logements seulement. Il se compose d'une entrée spacieuse avec rangements et coin buanderie, d'un séjour/salle à manger avec cuisine ouverte, aménagée et équipée. La partie nuit offre 3 chambres, dont une avec espace dressing, ainsi qu'une salle d'eau avec WC. Une cave de 5,25 m² en sous-sol vient compléter ce bien. Idéalement situé, à seulement 5 minutes à pied de la gare RER A 'Nanterre-Ville' et à proximité immédiate des commerces. N'hésitez pas à nous contacter pour plus d'informations ou pour l'organisation d'une visite. Honoraires inclus de 3.67% TTC à la charge de l'acquéreur. Prix hors honoraires 409 000 €. Dans une copropriété de 4 lots. Aucune procédure n'est en cours. Classe énergie E, Classe climat E Montant estimé des dépenses annuelles d'énergie pour un usage standard : entre 1630.00 € et 2250.00 € sur les années 2021, 2022 et 2023 (abonnements compris). Les informations sur les risques auxquels ce bien est exposé sont disponibles sur le site Géorisques : georisques.gouv.fr.

AGENCE DE VALLIERE - Nanterre Centre
Annonce publiée le 09/11/2025 - mise à jour 23/11/2025
Proposée par AGENCE DE VALLIERE - Nanterre Centre 09/11/2025 - mise à jour 23/11/2025
6
Appartement, 48,67 m²

329 900 € 6 778 €/m²
Appartement • 48,67 m² • 2 pièces • 1 chambre

Nanterre (92000)

Les agences De Vallière vous propose un appartement situé dans l'une des rues historiques les plus recherchées du centre de Nanterre, ce charmant 2 pièces de 48,67 m² bénéficie d'un environnement privilégié. Il se compose d'un salon baigné de lumière ouvert sur une cuisine aménagée et équipée, d'une spacieuse chambre avec poutres apparentes, d'une salle de bains ainsi que d'un WC séparé. Vous profiterez d'un cadre de vie idéal, à deux pas des transports, commerces, écoles, parcs et du cinéma. (5.60 % honoraires TTC à la charge de l'acquéreur.) Copropriété de 6 lots - dont 6 lots habitation. (Non soumis à un impayé). Charges annuelles : 1600 euros.

ERA Agence Du Plateau
Annonce publiée le 13/11/2025
Proposée par ERA Agence Du Plateau 13/11/2025
5
Appartement, 60 m²

330 000 € 5 500 €/m²
Appartement • 60 m² • 3 pièces • 2 chambres

Nanterre (92000)

ERA Immobilier vous invite à découvrir ce superbe appartement 3 pièces idéalement situé sur le prisé Mont Valérien à Nanterre. Niché au sein d'une résidence sécurisée de 2013, ce bien profite d'une localisation privilégiée : à seulement 10 minutes de La Défense et à proximité immédiate de tous les commerces. L'intérieur offre une belle luminosité avec un séjour accueillant s'ouvrant directement sur un jardin privatif de 67 m² exposé Sud-Ouest. Il est complété par une cuisine ouverte, aménagée et équipée. L'espace nuit comprend deux chambres équipées de placards intégrés, une salle de bain et des WC séparés. Une place de parking est disponible en sus du prix. Un coup de coeur à visiter sans tarder !