Investissement Exceptionnel : Immeuble de Rapport en Coeur de Ville - Quartier Clemenceau Emplacement Premium : Profitez d'une situation idéale au coeur de Béziers, dans le quartier prisé...
VIEW PATRIMOINE
92110 Clichy
VIEW PATRIMOINE
92110 Clichy
VIEW PATRIMOINE est une agence immobilière à Clichy (92110)
Biens proposés à la vente (7)
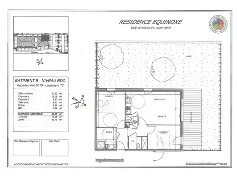
dans une résidence propre et sécurisée proche de la mer, du village et au calme, un appartement t3 rdj de 54,87 m2 avec terrasse de 12m2 et jardin de 82m2 exposé sud composé de 2 chambres...
Un appartement neuf sans les longs délais de livraison ! View Patrimoine vous présente à la vente ce magnifique T4 avec un balcon et une place de parking privative en sous-sol. Situé dans...
A Béziers, immeuble de rapport en R+4 avec un grand garage et une cave, a deux pas des allées Paul Riquet eu du parc des poètes, de commerces et d'écoles. il se compose comme suit ; au...
Dans la ville de Béziers ,secteur du Pic, vente d'une maison de ville proposé à la rénovation pour la création d une résidence étudiante pour la somme de 87000€ Le bien est composé de :2...
BUTTES CHAUMONT/MOUZAIA. Dans un immeuble en pierres de taille de 1925 avec gardien, View Patrimoine vous propose ce magnifique loft sur 3 niveaux de 122,34m2 (129m2 au sol). Idéalement...
Informations légales
Siren : 884928185