Acheter un terrain à La Réunion (974)

Modifier ma recherche
1 333 annonces
URBANIS
Annonce publiée le 09/09/2025
Proposée par URBANIS 09/09/2025
1
Terrain, 210 m²

120 750 € 575 €/m²
Terrain • 210 m²

Sainte-Marie (97438)

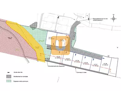
Urbanis, votre agence immobilière de Saint Paul à la Réunion, vous propose : Désignation : Urbanis, votre agence immobilière de la Plaine Saint Paul, vous présente une belle opportunité à Sainte-Marie. Nous vous proposons plusieurs parcelles de terrain situées au sein du lotissement « Esperance 2 », allant de 210 à 272 m2, prêtes à accueillir votre projet immobilier, que ce soit pour un investissement ou pour une résidence principale. Ces terrains, situés dans un environnement calme et à proximité de toutes les commodités, font partie d'un lotissement de 8 parcelles, dont 4 sont déjà commercialisées. Les prix des différentes parcelles sont : SURFACES EN M2 PRIX FAI EN EURO 272 141 440€ 220 126 500€ 216 124 200€ 210 120 750€ Classées en Zone UD, ces parcelles permettent une construction couvrant 50 % de l’unité foncière, avec une hauteur maximale de 11 mètres au faitage. Le PLU est consultable sur demande. Situation : Centre commercial Duparc : 10mn 4 voies : 10 minutes Collège Beauséjour : 3mn Assainissement : Fosse septique. Prix : 120 750 € FAI frais d’agence inclus à charge vendeur. Votre Conseil en immobilier tertiaire : Mr Karl DEHORTER 06.93.62.62.93 Horaires d’ouverture de nos bureaux : Du lundi au Vendredi de 08h30 à 12h30 et 13h30 à 17h30 Professionnel de l’Immobilier d’Entreprise à la Réunion, Urbanis vous accompagne pour le financement, la gestion, la commercialisation, le conseil et l’assistance à la maitrise d’ouvrage. Que vous soyez utilisateur, investisseur, promoteur, institutionnel, locataire, particulier, Urbanis est à vos côtés pour vos projets immobiliers !

Agent immobilier ?
Diffusez GRATUITEMENT toutes vos annonces sur Superimmo.com
Agence IMMO TRANSAC
Annonce mise à jour le 06/12/2025
Proposée par Agence IMMO TRANSAC 06/12/2025
4
Terrain, 471 m²

84 000 € 178 €/m²
Terrain • 471 m²

La Plaine-des-Palmistes (97431)

LA PLAINE DES PALMISTES - CHEMIN DES HORTENSIAS . Vous êtes La Recherche d'une Terrain à vendre dans les hauteurs de La REUNION ? Vous avez un budget limité ce qui rend vos recherches compliqués ? . Pourquoi ce terrain de 471 m² située à LA PLAINE DES PALMISTES pourrait vous intéresser ? . L' Agence Immo Transac, Agence Immobilière 974 En Ligne, vous présente 3 arguments qui devraient vous donner envie d'en savoir plus ce TERRAIN à vendre : . 1 - TERRAIN BIEN PLACÉ : Situé dans le secteur résidentiel des hortensias, à proximité de la caserne des pompiers, vous serez à à 2 minutes du Super U de la Plaine des Palmistes. Vous pourrez donc accéder à pied à toutes les commodités très rapidement (bus, boulangerie ...). De plus, vous bénéficierez aussi d'un accès rapide à la route nationale. . 2 - TERRAIN FACILE À CONSTRUIRE : Ce terrain entièrement constructible bénéficie d'une très légère pente et il est vendu viabilisé. Il vous sera donc facile de pouvoir y construire une maison à moindre coût. . 3. TERRAIN SITUÉ EN LOTISSEMENT Cette parcelle fera parti d'un petit lotissement de 8 parcelles : LOTISSEMENT VERT SAPIN. Début des Travaux : Juin 2022. Livraison du lotissement Juillet/Aout 2022. . BIEN À SAVOIR : Des projets clés en main ont déjà été réalisés par des constructeurs Immobiliers 974 que nous serons ravis de vous présenter. . Si ce terrain à vendre de 471 m² vous intéresse, demandez la Brochure à votre Agence Immobilière en ligne à La REUNION notre site immobilier 974. . NOTRE AVIS : Terrain bien placé et facile à construire qui est un très bon investissement pour une résidence secondaire. . ' Vendre l'immobilier, c'est notre métier.' Votre Agent Immobilier 974 est là pour vous guider dans tous vos projets Immobiliers. . POUR ÊTRE AVERTI DE NOS NOUVEAUTÉ, SUIVEZ-NOUS SUR LES RÉSEAUX SOCIAUX. . Ce terrain à vendre La Plaine des Palmistes de la REUNION qui vous a été présentée par Votre Agence Immobilière 974 en ligne est au prix de 84 000 euros Frais d'agence inclus. Les honoraires de vente de L'Agence Immo Transac pour ce bien Immobilier 974 sont à la charge du vendeur. . Mandat n°522 Annonce immobilière 974 non soumise au DPE. Cette terrain à vendre ne sera pas soumis au régime de la copropriété. Le terrain est vendu libre de toute occupation. . * AGENCE IMMO TRANSAC : LE N°1 DE L'IMMOBILIER 974 EN LIGNE *. . UN PROJET DE VENTE ? ' Vendre L'immobilier, C'est Notre Métier '. Avec nous, c'est la Garantie du Meilleur Prix ! Pour en savoir plus, commencez votre Estimation Immobilière En Ligne Gratuite sur notre site internet. Honoraires à la charge du vendeur. Les informations sur les risques auxquels ce bien est exposé sont disponibles sur le site Géorisques : georisques.gouv.fr.

Foncier Pei
Annonce publiée le 02/04/2025 - mise à jour 26/06/2025
Proposée par Foncier Pei 02/04/2025 - mise à jour 26/06/2025
1
Terrain, 4 534 m²

840 000 € 185 €/m²
Terrain • 4 534 m²

Saint-Paul
La Saline (97422)

Foncier Péi a le plaisir de vous proposer cette grande parcelle de terrain à bâtir de 4534 m2 environ, située à la Saline les Hauts (Saint-Paul). Possibilité de lotir Construction avec hé=6 m et hf=9 m max (Usdu) Emprise au sol: 50% Assainissement autonome à prévoir Le prix indiqué (840 000 €) comprend les honoraires d’agence à la charge du vendeur Foncier Péi bénéficie ici d’une délégation de mandat de l’agence L’Edile Les informations sur les risques auxquels ce terrain est exposée sont disponibles sur www.georisques.gouv.fr Non soumis au DPE Consommation énergie primaire : Non communiquée Consommation énergie finale : Non communiquée Le bien est présenté par Yannick PAYET (EI), agent commercial inscrit au RSAC de Saint Denis de la Réunion TGI 791 102 320, joignable au O693 I3 O9 3I

WILLY POTHIN - BSK Immobilier
Annonce publiée le 05/07/2025 - mise à jour 04/11/2025
Proposée par WILLY POTHIN - BSK Immobilier 05/07/2025 - mise à jour 04/11/2025
2
Terrain, 1 640 m²

514 500 € 314 €/m²
Terrain • 1 640 m²

Saint-Denis (97400)

Vous souhaitez acquérir un beau terrain au calme, je vous propose ce terrain d'une superficie de 1640 m² avec 30 % d'emprise au sol. N'hésité pas a me contacter . Cette annonce référence 295286 vous est présentée par votre agent commercial BSK Immobilier WILLY POTHIN (EI) immatriculé au RSAC de SAINT-DENIS (97400) sous le numéro 94933003900015. Prix du bien : 514 500,00 € Les honoraires d'agence sont à la charge du vendeur. Les informations sur les risques auxquels ce bien est exposé sont disponibles sur le site Géorisques : www.georisques.gouv.fr

Agence IMMO TRANSAC
Annonce publiée le 27/09/2025 - mise à jour 06/12/2025
Proposée par Agence IMMO TRANSAC 27/09/2025 - mise à jour 06/12/2025
9
Terrain, 430 m²

172 000 € 400 €/m²
Terrain • 430 m²

Saint-Denis (97400)

Si vous recherchez un TERRAIN à vendre au MOUFIA, SAINT-DENIS offrant : - Une petite maison à démolir ou rénover de 52 m². - Un terrain de 428 m² entièrement viabilisé avec tout à l'égout. - Une proximité avec commerces, écoles et axes routiers. - Un prix attractif à 195 000 € FAI. . Alors ce terrain situé au Moufia, à Saint-Denis, mérite absolument une visite. . Parfaite pour les INVESTISSEURS en quête d'un projet rentable, cette maison à rénover ou à démolir offre une base foncière solide, une localisation stratégique et une belle valeur patrimoniale à moyen terme. . EMPLACEMENT PRIVILÉGIÉ : - À 5 minutes du centre-ville de Saint-Denis. - À 5 minutes de l'université de la Réunion. - Commerces et écoles accessibles en quelques minutes. - Accès rapide aux axes routiers principaux. - Terrain en surplomb permettant une vue dégagée après aménagement. . Découvrez maintenant tous ses atouts, présentés pièce par pièce : . MAISON DE 52 M² À RÉNOVER : Ce terrain comprend une maison de plain-pied ( séjour, une cuisine attenante, une chambre et une salle d'eau) sur un terrain de 428 m². . TERRAIN DE 428 M² ARBORÉ : Le terrain offre des possibilités d'aménagement paysager, de construction neuve ou de rénovation, selon vos projets. . ZONAGE UC : Situé en zone UC, ce terrain est idéal pour une construction résidentielle avec des possibilités d'aménagement sur mesure. . DEMANDEZ NOTRE BROCHURE ? RÈGLEMENTS ET PLANS : Pour plus de détails, demandez la brochure en cliquant sur le lien ou en scannant le QR code. Cette brochure complète inclut tous les plans, règlements, coordonnées GPS et bien d'autres informations essentielles pour votre projet de construction. . CONTACTEZ-NOUS dès maintenant pour découvrir tout le potentiel de cette maison ! Profitez de notre visite vidéo en SCANNANT LE QR CODE dans les photos pour un meilleur aperçu. . Vous avez le projet de VENDRE à l'île de La Réunion ? Découvrez notre Estimation en ligne Gratuite en 3 clics. . Grâce à notre Expertise Reconnue et notre Marketing Innovant, votre Agence Immobilière 974 vous aide à Vendre vite et Au Meilleur Prix. . Monsieur C. HOAREAU : 'Merci à Monsieur Pitou qui nous a accompagné pour l'achat de notre maison. Il a su être à notre écoute. Il a pris le temps de répondre à nos différentes questions.” . Offrez-vous l'excellence immobilière à La Réunion avec l'Agence Immo Transac. Votre Allié Immobilier Réunionnais. Honoraires à la charge du vendeur. Les informations sur les risques auxquels ce bien est exposé sont disponibles sur le site Géorisques : georisques.gouv.fr.

Agence IMMO TRANSAC
Annonce publiée le 28/12/2024 - mise à jour 06/12/2025
Proposée par Agence IMMO TRANSAC 28/12/2024 - mise à jour 06/12/2025
9
Terrain, 370 m²

155 000 € 419 €/m²
Terrain • 370 m²

Sainte-Marie (97438)

Si vous recherchez un TERRAIN à vendre à SAINTE-MARIE offrant : - Une superficie de 370 m² entièrement constructible. - Une vue imprenable sur la mer et la montagne. - Une viabilisation à proximité. - Un raccordement au tout-à-l'égout. - Un excellent rapport qualité/prix… . Alors ce terrain situé à Piton Cailloux, un quartier prisé de Sainte-Marie, mérite absolument une visite. . Demandez la brochure de ce terrain dès maintenant en SCANNANT LE QR CODE dans les photos pour un meilleur aperçu. . Parfait pour un investisseur ou une famille en quête d'un projet immobilier sur-mesure, ce terrain vous offre la promesse : « Réaliser votre rêve dans un cadre exceptionnel à La Réunion ». . Mais attendez… ce n'est pas tout : . TERRAIN D'EXCEPTION À SAINTE-MARIE : Ce terrain de 370 m² est entièrement constructible et situé dans une zone prisée de Sainte-Marie. Il combine praticité et tranquillité, un cadre idéal pour votre projet. . SUPERFICIE GÉNÉREUSE POUR CONSTRUIRE : Avec ses 370 m², ce terrain permet d'envisager la construction d'une maison spacieuse et d'un jardin paysager, parfait pour les familles ou les investisseurs. . QUARTIER CALME ET BIEN SITUÉ : Le terrain se trouve dans un quartier résidentiel paisible, offrant un cadre de vie agréable loin des nuisances sonores tout en restant proche des commodités. . POSSIBILITÉ D'UNE PISCINE PRIVATIVE : Sa superficie généreuse et son orientation permettent la construction d'une piscine, idéale pour profiter du climat ensoleillé de l'île. . UNE VUE SPECTACULAIRE SUR LA MER : Admirez chaque jour un panorama exceptionnel sur l'océan, un atout majeur pour votre futur lieu de vie. . CADRE APAISANT AVEC VUE MONTAGNE : Profitez également d'une vue dégagée sur les montagnes, parfaite pour vous reconnecter à la nature et bénéficier d'un cadre ressourçant. . TERRAIN CONSTRUCTIBLE ET VIABILISÉ : La viabilisation à proximité facilite les raccordements essentiels, vous offrant un gain de temps et des économies pour vos travaux. . CONFORT GARANTI AVEC LE TOUT-À-L'ÉGOUT : Le raccordement existant au tout-à-l'égout garantit une infrastructure moderne et pratique pour votre projet. . ZONAGE FLEXIBLE EN UD ET N : Classé en zone UD et N, ce terrain offre une flexibilité idéale pour vos projets tout en respectant l'environnement harmonieux du quartier. . EMPLACEMENT PRIVILÉGIÉ : Ce terrain est situé dans un quartier calme et recherché offrant : - À 5 minutes des écoles primaires et secondaires. - À 10 minutes des centres commerciaux et supermarchés. - Une connexion facile aux transports publics. - Un accès rapide aux grands axes routiers. . DEMANDEZ NOTRE BROCHURE ? RÈGLEMENTS ET PLANS : Pour plus de détails, demandez la brochure en cliquant sur le lien ou en scannant le QR code. Cette brochure complète inclut tous les plans, règlements, coordonnées GPS et bien d'autres informations essentielles pour votre projet de construction. . CONTACTEZ-NOUS dès maintenant pour découvrir tout le potentiel de ce terrain ! . Profitez de notre visite virtuelle en SCANNANT LE QR CODE dans les photos pour un meilleur aperçu. . Vous avez le projet de VENDRE à l'île de La Réunion ? . Découvrez notre Estimation en ligne Gratuite en 3 clics. . Grâce à notre Expertise Re...

OFIM Tampon
Annonce publiée le 12/04/2025 - mise à jour 24/04/2025
Proposée par OFIM Tampon 12/04/2025 - mise à jour 24/04/2025
3
Terrain

115 000 €
Terrain

Saint-Pierre (97410)

Joli terrain d'environ 200 m², situé dans un secteur résidentiel calme et recherché. Vue dégagée sur la mer. Cadre idéal pour un projet de construction dans un environnement paisible.Bien rare et très intéressant dans le secteur. A VOIR RAPIDEMENT !Mandat : 2330 TPrix : 115 000 €Contact et visites : ALAIN DHENIN Agent commercial 06 92 42 45 34 - Annonce: 11A70730, Numéro de mandat: 2330T Honoraires à la charge du vendeur

PHOENIX FAURE IMMO
Annonce publiée le 20/09/2025 - mise à jour 25/10/2025
Proposée par PHOENIX FAURE IMMO 20/09/2025 - mise à jour 25/10/2025

660 000 € 659 €/m²
Terrain • 1 001 m²

Saint-Louis (97450)

Terrain plat de 1001m² totalement constructible en zone UA. Il est situé en hypercentre de la ville de Saint-Louis. Idéal pour une promotion ou pour un parking. Emprise au sol de 70%, espace perméable de 15%, hauteur maximale de 15m à l'égout et 19m au faitage. Honoraires à la charge du vendeur. Les informations sur les risques auxquels ce bien est exposé sont disponibles sur le site Géorisques : georisques.gouv.fr. . Les informations sur les risques auxquels ce bien est exposé sont disponibles sur le site : www.georisques.gouv.fr PHOENIX FAURE IMMO - 53 bis rue des Capucins, 97434 Saint-Gilles-Les Bains - Carte professionnelle n° CPI974012025000000008 (CCI Réunion - Sans détention de fonds - RCS Saint-Denis de la Réunion 945 402 691 Médiateur de la consommation : immomédiateurs (mé)

TEISSIMMO
Annonce publiée le 04/11/2025
Proposée par TEISSIMMO 04/11/2025
1
Terrain, 220 m²

124 080 € 564 €/m²
Terrain • 220 m²

Saint-Denis (97490)

EXCLUSIVITE TEISSIMMO. A Vendre à Sainte-Clotilde, La Bretagne ** A SAISIR ** Lot 1. Voici un terrain de 220 m², borné. Idéal projet locatif ou RP. Situé dans un quartier très calme, dans une allée et proche du Chemin Dufourg les Hauts. A moins de 10 minutes en voiture de la Technopole. ** POINTS FORTS : Secteur très calme, résidentiel, vue Mer ** Mandat: 2018 - Non soumis au DPE - Honoraires à la charge vendeur. Ce bien vous est proposé par l'agence immobilière TEISSIMMO. L'agence immobilière TEISSIMMO est idéale pour acheter ou vendre un bien à Saint-Denis. Spécialisée dans la vente de maisons à Saint-Denis, elle diffuse quotidiennement ses annonces immobilières afin de faciliter la vente de votre bien. 06.92.05.63.17 Honoraires à la charge du vendeur. Les informations sur les risques auxquels ce bien est exposé sont disponibles sur le site Géorisques : georisques.gouv.fr. Votre conseiller TEISSIMMO : Sylvain LALIERE Agent commercial (Entreprise individuelle) RSAC 838629442 RCP ACI18985

Jean-Philippe Romer - iad
Annonce publiée le 07/05/2025 - mise à jour 02/12/2025
Proposée par Jean-Philippe Romer - iad 07/05/2025 - mise à jour 02/12/2025
3
Terrain, 486 m²

120 000 € 247 €/m²
Terrain • 486 m²

Saint-Benoît (97470)

iad France - Jean-Philippe Romer vous propose: Opportunité Rare! Terrain Constructible de 486 m² à Saint Benoit, idéal pour projet de construction personnalisé. Ce terrain situé dans la charmante commune de Saint Benoit offre une superficie de 486 m², offrant ainsi un large potentiel pour la réalisation de votre projet de construction sur-mesure. Son emplacement privilégié dans un quartier résidentiel vous assure un cadre de vie calme et agréable, tout en étant proche des commodités. Ce terrain vierge offre une toile blanche pour laisser libre cours à votre imagination et concrétiser vos envies en matière d'architecture et d'aménagement intérieur. Vous pourrez concevoir la maison de vos rêves, adaptée à vos besoins et à votre style de vie. Situé en zone Ub, possibilité de construction de 7m à la gouttière, (R+1+combles), il faudra y prévoir la viabilisation et l'assainissement sur fosse. Doté d'une belle exposition, ce terrain permettra la construction d'une habitation lumineuse et confortable. Imaginez un jardin paisible, une terrasse ensoleillée, un espace de vie convivial... Tout est possible sur ce terrain prêt à accueillir votre futur foyer. Ne manquez pas cette opportunité rare de devenir propriétaire d'un terrain idéalement situé pour concrétiser votre projet de construction. Contactez-nous dès maintenant pour plus d'informations et pour organiser une visite sur place. Honoraires d'agence à la charge du vendeur. Bien non soumis au DPE. Les informations sur les risques auxquels ce bien est exposé, y compris l'obligation légale de débroussaillement, sont disponibles sur le site Géorisques : http://www.georisques.gouv.fr. La présente annonce immobilière a été rédigée sous la responsabilité éditoriale de M Jean-Philippe Romer mandataire indépendant en immobilier (sans détention de fonds), agent commercial de la SAS I@D France immatriculé au RSAC de Saint pierre sous le numéro 932023435, titulaire de la carte de démarchage immobilier pour le compte de la société I@D France SAS.

Muriel MEYER - Propriétés-privées.com
Annonce publiée le 24/06/2025 - mise à jour 01/10/2025
Proposée par Muriel MEYER - Propriétés-privées.com 24/06/2025 - mise à jour 01/10/2025
3
Terrain, 790 m²

150 177 € 190 €/m²
Terrain • 790 m²

Saint-Leu
Le Piton Saint Leu (97424)

A vendre 1 parcelle viabilisée de 790 m² située au Plate St Leu, à 25 mn de la Route des Tamarins, proche des écoles et commerces de proximité. Secteur calme. Non soumis à DPE Prix : 150 176,05 euros FAI Pour visiter et vous accompagner dans votre projet, contactez Muriel MEYER, au 0692041856 ou par courriel à Selon l'article L.561.5 du Code Monétaire et Financier, pour l'organisation de la visite, la présentation d'une pièce d'identité vous sera demandée. Cette vente est garantie 12 mois. Cette présente annonce a été rédigée sous la responsabilité éditoriale de Muriel MEYER agissant sous le statut d'agent commercial immatriculé au RSAC saint Denis de la Réunion 538776568 auprès de la SAS PROPRIETES PRIVEES, au capital de 40 000 euros, ZAC LE CHÊNE FERRÉ - 44 ALLÉE DES CINQ CONTINENTS 44120 VERTOU; SIRET 487 624 777 00040, RCS Nantes. Carte professionnelle Transactions sur immeubles et fonds de commerce (T) et Gestion immobilière (G) n° CPI 4401 2016 000 010 388 délivrée par la CCI Nantes - Saint Nazaire. Compte séquestre n°30932508467 BPA SAINT-SEBASTIEN-SUR-LOIRE (44230) ; Garantie GALIAN - 89 rue de la Boétie, 75008 Paris - n°28137 J pour 2 000 000 euros pour T et 120 000 euros pour G. Assurance responsabilité civile professionnelle par MMA Entreprise n° de police 120.137.405 Mandat réf : 344701. - Le professionnel garantit et sécurise votre projet immobilier. Copropriété de 14 lots - dont 14 lots habitation. (). Charges annuelles : 1000 euros. Muriel MEYER (EI) Agent Commercial - Numéro RSAC : saint denis de la reunion 538776568 - .

CABINET HABILIS
Annonce publiée le 31/07/2025 - mise à jour 06/11/2025
Proposée par CABINET HABILIS 31/07/2025 - mise à jour 06/11/2025
1
Terrain, 439 m²

Prix en baisse 90 800 € 207 €/m²
Terrain • 439 m²

La Plaine-des-Palmistes (97431)

A VENDRE - Le Cabinet Habilis vous propose à la vente un terrain de 439 m2 environ, idéalement situé à La Plaine des Palmistes. Il offre un cadre pratique à proximité des commodités et à seulement 5 minutes du supermarché. Ce terrain, situé en zone UC, offre de multiples possibilités : construction traditionnelle, l'installation d’un bungalow ou d’un conteneur aménagé selon vos besoins. Faites l'acquisition de ce bien au prix de 90 800 €. Les honoraires sont à la charge du vendeur. Vous pouvez consulter notre grille tarifaire en vigueur à l'adresse suivante : Les informations sur les risques auxquels ce bien est exposé sont disponibles sur le site géorisques : www.georisques.gouv.fr Contactez votre agence immobilière, sous le numéro de carte professionnelle no : CPI 97412022000000006 délivrée par : CCI de la Réunion au 0693 226 226 ou au 02 62 21 16 14 ou par mail sur ou sur Annonce rédigée sous la responsabilité éditoriale de l'agent commercial Cette annonce vous est proposée par RANDERA Salim - - NoRSAC: , Enregistré à de

A.I.O.I
Annonce mise à jour le 18/06/2025
Proposée par A.I.O.I 18/06/2025
2
Terrain, 1 100 m²

430 000 € 391 €/m²
Terrain • 1 100 m²

Saint-Denis
Sainte-Clotilde (97490)

Les taux d'intérêts montent, les biens deviennent de plus en plus rares , alors qu’attendez-vous pour vous lancer et devenir propriétaire ??? Moufia , au-dessus de la clinique , venez découvrir ce magnifique terrain de 1100 m2 ( 2 cases en tôle à raser) , situé en en zone UM 50% emprise au sol et 10 m en hauteur, réseaux existants et tout à l'égout disponible. Terrains très rares dans ce secteur alors ne perdez pas de temps! Terrain divisible en 2 prix de vente 430000€ dont 20 000€ de commission d'agence à la charge de l'acquéreur. Pour tout complément d'information contactez Hervé ZWALLY 0692503948 Mandat no 2105001

AMICASA IMMOBILIER
Annonce publiée le 10/10/2025 - mise à jour 14/11/2025
Proposée par AMICASA IMMOBILIER 10/10/2025 - mise à jour 14/11/2025
1
Terrain, 459 m²

Prix en baisse 210 000 € 458 €/m²
Terrain • 459 m²

La Possession (97419)

TERRAIN À BÂTIR 459 m2 (Lot 1) avec vue mer La Possession (secteur Bœuf Mort). AMICASA IMMOBILIER vous propose à la vente, sur le secteur recherché de La Possession Chemin Bœuf Mort, ce terrain à bâtir de 459 m2 (dont 339 m2 constructibles) situé dans un ensemble de 5 lots bénéficiant d’une vue mer dégagée. Idéalement localisé à moins de 10 minutes de la 4 voies, à proximité immédiate de l’école Alain Lorraine et du Lodge Tamarin, ce terrain offre un cadre de vie paisible et verdoyant, tout en restant proche des commodités. Caractéristiques du terrain : - Superficie totale : 459 m2 - Surface constructible : 339 m2 - Vue mer - Zone : UBpsfr2 Réglementation d’urbanisme (Zone UBpsfr2) : - Faitage maximum : 12 m (hauteur au point le plus haut par rapport au terrain naturel) - Égout maximum : 9 m (hauteur des gouttières) - Coefficient d’imperméabilisation : 40 % Autres lots disponibles : - Lot 2 : 941 m2 (640 m2 constructibles) 290 000 € HAI - Lot 3 : 912 m2 (100 % constructible) 390 000 € HAI - Lot 4 : 523 m2 (100 % constructible) 240 000 € HAI - Lot 5 : 520 m2 (270 m2 constructibles) 220 000 € HAI Contact : Grégory Amico au O6 92 4O 39 85, votre interlocuteur privilégié pour cette annonce. Les informations sur les risques auxquels ce bien pourrait être exposé sont disponibles sur le site : www.georisques.gouv.fr SARL au capital social de 5 000 €, immatriculée au RCS de St-Denis (974): 922 372 883 - APE 68.31Z - Carte professionnelle No CPI 97412023 000 000 005 délivrée par la CCI de la Réunion - RCP GALIAN-SMABTP

CBO TERRITORIA
Annonce mise à jour le 21/05/2025
Proposée par CBO TERRITORIA 21/05/2025
2
Terrain, 316 m²

132 400 € 419 €/m²
Terrain • 316 m²

Saint-Pierre (97410)

Découvrez cette parcelle viabilisée et prête à bâtir de 316m2 située aux portes de Saint-Pierre. Le lotissement Cap Sud offre dynamisme et douceur de vivre aux futurs acquéreurs. A 5 km à l'est du centre de Saint-Pierre, avec un accès rapide à la RN2, dans l'agglomération de Grands Bois, le lotissement vous propose à la fois une quiétude de vie et un emplacement pratique à proximité du nouveau centre commercial E.Leclec de St-Joseph.