Location - bien divers - Paris 11ème (75011)

Modifier ma recherche
40 annonces
Daniel ASSELIE - AgentMandataire.fr
Annonce publiée le 31/10/2025
Proposée par Daniel ASSELIE - AgentMandataire.fr 31/10/2025
7
Divers, 170 m²

Prix en baisse 5 200 € CC
Divers • 170 m² • 2 pièces

Paris 11ème (75011)

LOCATION PURE LOCAL COMMERCIAL 75011 PARIS À louer, local commercial en location pure de 170 m² situé dans le 11ᵉ arrondissement de Paris, dans le quartier le plus animé de cet arrondissement, à proximité du métro Saint-Maur. Ce dernier s'établit au RDC sur 70 m², avec accès direct au sous-sol de 100 m² avec un SPA et hammam et un linéaire de 14 mètres. Le tout est exploitable pour tous types d'activités, sauf restauration avec extraction. Un accès au sous-sol peut se faire par ascenseur dans les parties communes. Loyer mensuel : 4 800 € HT/HC Charges mensuelles : 400 € HT N'hésitez pas à me contacter pour de plus amples informations. Une visite s'impose. Cette annonce immobilière a été rédigée sous la responsabilité éditoriale de l'agent commercial mandataire immobilier Daniel ASSELIE.

Agent immobilier ?
Diffusez GRATUITEMENT toutes vos annonces sur Superimmo.com
BCI Immobilier
Annonce publiée le 20/11/2025
Proposée par BCI Immobilier 20/11/2025
5
Divers, 72 m²

Prix en baisse 3 100 € CC
Divers • 72 m²

Paris 11ème (75011)

Voici une proposition de description attractive et professionnelle pour ton annonce ???? ? À LOUER - Local commercial 72 m² - Paris 11? (Cours Pavée / Oberkampf) Idéalement situé au 156, rue Oberkampf, en plein cœur du quartier vivant et recherché du XI? arrondissement, ce local commercial bénéficie d'un excellent emplacement, à proximité immédiate du métro et de nombreux commerces. D'une surface totale de 72 m², il se compose de : ?Un rez-de-chaussée lumineux avec belle hauteur sous plafond, idéal pour showroom, boutique, galerie, ou espace de réception ; ?Un bureau à l'étage, permettant d'aménager un espace de travail indépendant ou une salle de réunion ; ?Un sanitaire (WC) complète l'ensemble. Le local est en bon état général, prêt à l'emploi, et dispose d'une façade visible sur rue avec un passage fréquent, garantissant une excellente visibilité commerciale. Secteur Oberkampf / Cours Pavée : un emplacement dynamique, très recherché par les activités de service, agences, créateurs, ou professions libérales.

CONSEIL ET VALORISATION IMMOBILIER ASSET MANAGEMENT
Annonce publiée le 11/11/2025
Proposée par CONSEIL ET VALORISATION IMMOBILIER ASSET MANAGEMENT 11/11/2025
9
Divers, 64 m²

1 800 € CC
Divers • 64 m²

Paris 11ème (75011)

À louer, un local commercial entièrement rénové situé sur un axe principal du 11ème arrondissement de Paris. Cette boutique en pied d'immeuble offre un espace moderne et lumineux de 64 m², réparti en 41 m² et 23 m², idéal pour une activité commerciale. Un sous-sol complète le local, accessible directement depuis la boutique grâce à un monte-charge intégré, facilitant ainsi le stockage et la logistique. Ces locaux sont exclusivement destinés à l'usage de boutique. Disponibilité immédiate. Pour plus d'informations ou pour organiser une visite, n'hésitez pas à nous contacter. Honoraires de 6 000 € à la charge du locataire. Provision sur charges 60 € HT/mois, régularisation annuelle. Dépôt de garantie 6 250 €. Non soumis au DPE. Les informations sur les risques auxquels ce bien est exposé sont disponibles sur le site Géorisques : georisques.gouv.fr.

DE LAPLACE IMMOBILIER
Annonce publiée le 03/12/2025
Proposée par DE LAPLACE IMMOBILIER 03/12/2025
19
Divers, 170 m²

8 500 € CC
Divers • 170 m²

Paris 11ème (75011)

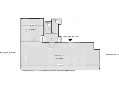
Au cœur du 11ème arrondissement, au sein d’un immeuble entièrement rénové, l'agence de Laplace vous propose en location une surface de 165 m² en tout ou partie, divisible en 4 bureaux privés, fonctionnels accessibles en prestation de services. Situés au 1ᵉʳ étage, ces espaces de travail bénéficient d’une belle hauteur sous plafond, d’une luminosité abondante ainsique d’un aménagement prêt à l’emploi. Espaces disponibles : Bureau 1 – 51 m² (8 postes + 1 salle de réunion privée) Bureau 2 – 20 m² (2 postes) Bureau 3 – 17 m² (2 postes) Bureau 4 – 33 m² (4 postes + 1 bureau individuel + 1 salle de réunion privée) Espaces communs – 44 m² Tarif toutes charges et services inclus : - Accès 24h/24 et 7j/7 - Bureaux meublés - Électricité - Wifi haut débit - Cuisine équipée - Ménage (quotidien pour les espaces communs, hebdomadaire pour les bureaux privés) Disponibilité : Juin 2025 Type de contrat : prestation de services (minimum 3 mois) Localisation idéale : À deux pas des métros Charonne, Alexandre Dumas et Nation. Facile d'accès en métro, bus ou RER.

KORN IMMOBILIER COMMERCIAL
Annonce mise à jour le 14/05/2025
Proposée par KORN IMMOBILIER COMMERCIAL 14/05/2025
1
Divers, 123 m²

3 500 € CC
Divers • 123 m²

Paris 11ème (75011)

Boutique à louer d'une surface totale de 123m² sur 3 niveaux comprenant un rdc de 69m², un sous-sol de 38m² et un 1er étage de 17m². A proximité immédiate du métro 2 et 3 "Père Lachaise". Ce bien vous est présenté par le cabinet Korn Immobilier commercial;

Driss Saïdani - iad
Annonce publiée le 20/11/2025
Proposée par Driss Saïdani - iad 20/11/2025
14
Divers, 47 m²

1 830 € CC
Divers • 47 m²

Paris 11ème (75011)

iad France - Driss Saïdani (06 25 25 12 01) vous propose : Local commercial d'environ 48 m² environ – Cachet et pierre de taille – Paris 11. À louer, local commercial de 48 m² environ sur deux niveaux, idéalement situé Emplacement attractif, authenticité du 11éme arrondissement au cOEur d’un quartier dynamique dans un secteur très recherché de l’Est parisien avec fort passage à proximité et le charme typique du 11. Le rez-de-chaussée offre un bel espace lumineux avec vitrine sur rue. Et le niveau inférieur révèle une superbe salle en pierre de taille, au cachet unique et historique. Une opportunité rare à visiter sans tarder. Information d'affichage énergétique sur le bien associé à cette annonce : DPE NS indice 0 et GES NS indice 0. La présente annonce immobilière a été rédigée sous la responsabilité éditoriale de M. Driss Saïdani (ID 81182), Agent Commercial mandataire en immobilier immatriculé au Registre Spécial des Agents Commerciaux (RSAC) du Tribunal de Commerce de MELUN sous le numéro 853812139 Retrouvez tous nos biens sur notre site internet.

Brew's
Annonce publiée le 08/07/2025
Proposée par Brew's 08/07/2025
9
Divers, 50 m²

1 500 € CC
Divers • 50 m²

Paris 11ème (75011)

Vous cherchez des postes de travail pour votre équipe ? Vous aimez les espaces lumineux, les ambiances collaboratives et une terrasse pour souffler entre deux réunions ? Ajoutez à cela la fibre optique dédiée, un environnement de post-production audiovisuel, un plateau de tournage fond vert équipé, et vous tenez peut-être votre nouvel espace de travail idéal ! Situé en plein coeur du 11ème arrondissement, à deux pas des métros Parmentier et Oberkampf, au 5 rue de Nemours, ce bureau de 50m² est une alternative parfaite au coworking, offrant flexibilité et confort. L'ESPACE EN DÉTAIL : • 6 postes de travail en open space, dans un coin dédié • Beaucoup de lumière naturelle pour travailler dans un cadre agréable • Terrasse et cour intérieure pour des pauses au vert • Bureau meublé et prêt à l'emploi ÉQUIPEMENTS INCLUS : • Fibre optique dédiée et WiFi ultra-rapide • Plateau de tournage fond vert équipé (idéal pour les agences créatives) • Cuisine équipée & espace repas • Espace détente pour des moments de pause bien mérités • Rangement pour vélos • Service de nettoyage inclus • Climatisation en été, chauffage en hiver • Accès sécurisé 24h/24 et 7j/7 avec carte et clé UN QUARTIER DYNAMIQUE & INSPIRANT Idéal pour une agence de communication, une agence web, des concepteurs 3D ou toute activité complémentaire à la post-production audiovisuelle. Hyper accessible : Métros Parmentier (Ligne 3) et Oberkampf (Lignes 5 et 9) à quelques minutes à pied. Un quartier vivant : Restaurants, cafés et bars branchés pour vos afterworks. CONDITIONS DE LOCATION : • 1500 € HT/mois tout inclus • Dépôt de garantie : 4500 € F• rais d'agence : 4500 € HT À PROPOS DE L'HÔTE : • Équipe de 6 à 10 personnes • Le bruit ne nous dérange pas, on travaille en équipe et souvent tard le soir • Aucun dress code imposé • Langues parlées : Français & Anglais Prêt à installer votre équipe dans un cadre stimulant et convivial ? Contactez-nous pour organiser une visite ! Non soumis au DPE. Les informations sur les risques auxquels ce bien est exposé sont disponibles sur le site Géorisques : georisques.gouv.fr. Votre conseiller Brew's : Gérant - Samy-Félix PICARD Carte T CPI75012018000026018 RCP 799 316 435 Retrouvez l'annonce de l'agence immobilière Brew's sur :

Arnaud PORCHERON - iad
Annonce publiée le 22/09/2025
Proposée par Arnaud PORCHERON - iad 22/09/2025
15
Divers, 70 m²

2 300 € CC
Divers • 70 m²

Paris 11ème (75011)

iad France - Arnaud Porcheron (06 18 68 38 65) vous propose : BUREAUX 70m² environ - PARIS 11e - RUE NEUVE DES BOULETS À louer, bureaux de 70m² environ au 2eme étage d’un immeuble de bureaux, bien entretenu, situé rue Neuve des Boulets, Paris 11e. Idéalement placés entre les métros Charonne et Rue des Boulets (ligne 9), à deux pas de la rue de Charonne. Disponibles immédiatement, ces bureaux bénéficient d’un roof top partagé, de double vitrage, d’une fibre optique en place et d’un environnement dynamique. Loyer annuel : 24 000€/an HT HC (2 000€/mois HT HC) Charges collectives : 300€/mois HT Dépôt de garantie : 6 000€ Honoraires : 3 600€ HT Bail : 3/6/9 Taxes annuelles : foncière 1 675€ HT, bureau 1 447€ HT Une belle opportunité dans un secteur recherché. Contactez-nous pour visiter. Information d'affichage énergétique sur le bien associé à cette annonce : DPE NS indice 0 et GES NS indice 0. La présente annonce immobilière a été rédigée sous la responsabilité éditoriale de M. Arnaud Porcheron (ID 65742), Agent Commercial mandataire en immobilier immatriculé au Registre Spécial des Agents Commerciaux (RSAC) du Tribunal de Commerce de PARIS sous le numéro 820581007 Retrouvez tous nos biens sur notre site internet.

Arnaud PORCHERON - iad
Annonce publiée le 22/09/2025
Proposée par Arnaud PORCHERON - iad 22/09/2025
16
Divers, 60 m²

2 000 € CC
Divers • 60 m²

Paris 11ème (75011)

iad France - Arnaud Porcheron (06 18 68 38 65) vous propose : BUREAUX 60m² environ - PARIS 11e - RUE NEUVE DES BOULETS À louer, bureaux de 60m² environ au 1er étage d’un immeuble de bureaux, bien entretenu, situé rue Neuve des Boulets, Paris 11e. Idéalement placés entre les métros Charonne et Rue des Boulets (ligne 9), à deux pas de la rue de Charonne. Disponibles immédiatement, ces bureaux bénéficient d’un roof top partagé, de double vitrage, d’une fibre optique en place et d’un environnement dynamique. Loyer annuel : 21 000€/an HT HC (1 750€/mois) Charges collectives : 250€/mois HT Dépôt de garantie : 5 250€ Honoraires : 3 150€HT Bail : 3/6/9 Taxes annuelles : foncière 1 436€ HT, bureau 1 241€ HT Une belle opportunité dans un secteur recherché. Contactez-nous pour visiter. Information d'affichage énergétique sur le bien associé à cette annonce : DPE NS indice 0 et GES NS indice 0. La présente annonce immobilière a été rédigée sous la responsabilité éditoriale de M. Arnaud Porcheron (ID 65742), Agent Commercial mandataire en immobilier immatriculé au Registre Spécial des Agents Commerciaux (RSAC) du Tribunal de Commerce de PARIS sous le numéro 820581007 Retrouvez tous nos biens sur notre site internet.

TIKVA IMMOBILIER
Annonce publiée le 25/11/2025
Proposée par TIKVA IMMOBILIER 25/11/2025
6
Divers, 106 m²

2 750 € CC
Divers • 106 m²

Paris 11ème (75011)

Avenue de la République, 75011 Paris Entre les métros Saint-Maur et Parmentier, emplacement stratégique offrant une belle visibilité dans un quartier dynamique et commerçant. Surface totale : 56 m² en rez-de-chaussée + 50 m² au sous-sol. Possibilité tout commerce (hors activités nécessitant une grosse extraction). Terrasse possible, idéale pour accueillir une clientèle extérieure. Situé dans un quartier vivant et prisé, le local bénéficie d'un fort passage piéton. Proximité immédiate de commerces, cafés, restaurants et bureaux, parfait pour attirer une clientèle variée. Loyer : 36 000 €/an HT HC Charges : 150 €/mois Pas de cession Honoraires d'agence : 10 % de la première triennale Provision sur charges 150 €/mois, régularisation annuelle. Dépôt de garantie 8 550 €. Classe énergie D, Classe climat E. Les informations sur les risques auxquels ce bien est exposé sont disponibles sur le site Géorisques : georisques.gouv.fr.

KORN IMMOBILIER COMMERCIAL
Annonce publiée le 14/05/2025
Proposée par KORN IMMOBILIER COMMERCIAL 14/05/2025
4
Divers, 207 m²

5 958 € CC
Divers • 207 m²

Paris 11ème (75011)

Boutique située sur le Bd Beaumarchais d'une surface totale de 207m2 comprenant 85m2 sur Le Bd Beaumarchais et 122m2 en contre bas avec une vitrine donnant sur la rue Amelot Disponible Fin Janvier Ce bien vous est présenté par le cabinet KORN IMMOBILIER COMMERCIAL.

KORN IMMOBILIER COMMERCIAL
Annonce publiée le 30/08/2025
Proposée par KORN IMMOBILIER COMMERCIAL 30/08/2025
3
Divers, 87 m²

5 000 € CC
Divers • 87 m²

Paris 11ème (75011)

Commerce d’environ 45 m² au sol, complété par une mezzanine d’environ 20 m² et une cave accessible directement par trémie. Situé rue JP Timbaud. Bar équipé et disposant d'une licence IV et d'un conduit de 200x200mm Ce bien vous est présenté par le cabinet KORN IMMOBILIER COMMERCIAL.

KORN IMMOBILIER COMMERCIAL
Annonce publiée le 14/05/2025
Proposée par KORN IMMOBILIER COMMERCIAL 14/05/2025
7
Divers, 120 m²

7 000 € CC
Divers • 120 m²

Paris 11ème (75011)

Boutique entièrement rénovée de 120 m² sur deux niveaux (60 m² en rez-de-chaussée et 60 m² en sous-sol), idéalement située à proximité de la place de la Bastille, entre la place des Vosges et le boulevard Richard-Lenoir, sur un axe passant. Ce bien vous est présenté par le cabinet KORN IMMOBILIER COMMERCIAL.

D.U. Option Immobilier
Annonce publiée le 28/11/2025
Proposée par D.U. Option Immobilier 28/11/2025
1
Divers, 113 m²

4 500 € CC
Divers • 113 m² • 2 pièces

Paris 11ème (75011)

75011 PARIS / BOUTIQUE QUARTIER OBERKAMPF / Situé à proximité immédiate de la rue Oberkampf et du metro Parmentier, DUOption Immobilier vous propose cette boutique d'une surface totale de 113m² environ ( 100m² en rdc + 13m² à l'étage). Tous commerces sauf restauration nécessitant une extraction. Loyer mensuel 4000€ HTHC Charges mensuelles 500€

Les Enfants Rouges - Le Marais
Annonce publiée le 21/11/2025
Proposée par Les Enfants Rouges - Le Marais 21/11/2025
2
Divers

2 850 €
Divers

Paris 11ème (75011)

Paris - 11ème - Fonds de commerce à vendre À CÉDER – BAR LICENCE IV (70 m²) + SOUS-SOL (30 m²) + APPARTEMENT (40 m²) Emplacement avec très belle clientèle du soir – Ambiance pub – Gros potentiel Découvrez ce bar Licence IV de 70 m², doté d’un sous-sol de 30 m² accessible directement depuis le bar. L’établissement dispose également d’un coin cuisine équipé d’une extraction 300, idéal pour développer une offre snacking ou petite restauration. ✔ Belle clientèle du soir – ambiance pub ✔ Énorme potentiel de développement ✔ Appartement de 40 m² à l’étage inclus dans le bail (idéal pour logement ou bureau) Loyer : 2 850 € HT/HC Fonds de commerce : 330 000 € Honoraires : 30 000 € HT