A 1 km de l'Estaque, sur les hauteurs duvillage de pecheurs de Mourepiane, venez découvrir cette magnifique maison d'architecte de 177 m² orientée en face la mer.Cette superbe villa...
Gérard Tchoghandjian
Gérard Tchoghandjian
Gérard Tchoghandjian, (13)
Les biens que je propose à la vente (23)
Dans le pittoresque village Provencal d'Eoures, au pied des collines chères à Marcel Pagnol, venez découvrir cette ravissante maison de 82 m² sur un magnifique terrain de 800 m². A...
A l'entrèe du paisible village Provencal Des Camoins cher à Marcel Pagnol, ce splendideT4, au sein d'une Résidence récente fermée ,sécurisée et de standing , saura vous séduire dans un...
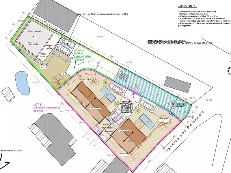
Situé dans une traverse très calme dans le quartier des Olives, venez découvrir cette maison de 130 m² avec travaux sur un terrain constructible de 486 m². Cette maison est implantée...
Situé dans une traverse très calme dans le quartier des Olives, venez découvrir ce beau terrain constructible de 270 m². Vendu avec le projet d'un permis de construire purgé pour une...
Situé dans une traverse très calme dans le quartier des Olives, venez découvrir ce beau terrain constructible de 270 m². Vendu avec le projet d'un permis de construire pour une villa de...