À vendre Maison de plain-pied à Panazol : confort, praticité et intimité Au cœur de Panazol, dans une rue calme et peu passante, cette maison de plain-pied offre un cadre de vie alliant...
Eric Pouget
Eric Pouget
Eric Pouget, (87)
Les biens que je propose à la vente (5)
Au cœur de la ville, dans le quartier de Soudanas, cette maison spacieuse déploie ses volumes généreux et son âme chaleureuse sur deux étages. Dès l’entrée, on ressent cette impression...
À Limoges, dans le quartier Olivier de Serres, à proximité des commerces, écoles et transports, cet appartement lumineux se trouve au 3ème étage d'une copropriété bien entretenue. En...
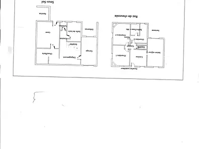
À l'entrée de Limoges, sur la commune de Panazol, nous vous proposons cette maison mitoyenne d'un côté de quatre chambres. Elle se compose au rez-de-chaussée de son espace de vie très...
Opportunité pour investisseurs : À Limoges, dans le secteur très calme d'Ester - Bois de la Bastide, au 3ème étage et avant-dernier étage d'une petite résidence de 1982, nous vous...
Les biens que j'ai vendu (16)
Informations légales
Siren : 834620650