#Exclusivité# Beaufortain Emplacement rare sur un versant très bien exposé, offrant une vue entièrement dégagée sur la vallée et les sommets du Beaufortain. Ancienne grange agricole...
Beaufort Immobilier
73270 Beaufort
Beaufort Immobilier
73270 Beaufort
Beaufort Immobilier est une agence immobilière à Beaufort (73270)
Biens proposés à la vente (9)
TERRAIN CONSTRUCTIBLE QUEIGE (73720), BEAUFORTAIN Localisation Secteur hameau résidentiel calme À 15 minutes d’Albertville À 13 minutes de Beaufort À 2 km du village de...
Située dans un petit hameau, au calme, cette ancienne ferme agricole à rénover, exposée Sud-Est, entièrement bénéficie d’une vue dégagée sur la vallée et les sommets environnants. Un...
À vendre Grand chalet familial avec vue dominante Villard-sur-Doron (73270) + Terrain constructible Prix de vente : 830 000 €(Honoraires d’agence à la charge du vendeur) Situé sur le...
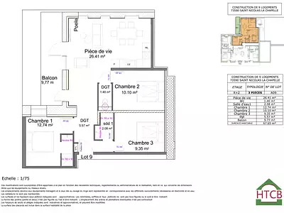
Arêches-Beaufort Appartement T2 lumineux exposé Sud-Ouest sans vis-à-vis. ## EXCLUSIVITE ## Localisation : Appartement idéalement situé au deuxième et avant dernier étage d’une...
## EXCLUSIVTE ## Ancienne ferme à rénover avec vue panoramique Arêches Emplacement rare sur un versant très bien exposé, avec vue dégagée sur la vallée et les sommets...
Biens vendus par Beaufort Immobilier (9)
Informations légales
Siren : 444833628