Acheter un appartement 2 pièces à Draguignan (83300)

Modifier ma recherche
74 annonces
Alexandre Rachel - iad
Annonce publiée le 28/11/2025 - mise à jour 03/12/2025
Proposée par Alexandre Rachel - iad 28/11/2025 - mise à jour 03/12/2025
3
Appartement, 50 m²

197 373 € 3 947 €/m²
Appartement • 50 m² • 2 pièces

Draguignan (83300)

iad France - Alexandre Rachel (07 83 42 76 10) vous propose : Appartement 2 pièces avec jardin privatif – Draguignan (83) Prix : 197 373 € TTC Situé dans un quartier calme et résidentiel de Draguignan, cet appartement 2 pièces séduit par son agréable espace extérieur et son agencement confortable. D’une surface d’environ 50 m² environ, il se compose d’un vaste séjour avec cuisine ouverte, d’une chambre spacieuse, d’une salle d’eau et d’un toilette indépendant. Son principal atout : Une terrasse prolongée par un jardin privatif, parfait pour profiter du plein air en toute intimité, recevoir ou simplement savourer un moment de détente. Prestations appréciées : •Pièce de vie lumineuse •Chambre confortable •Terrasse et jardin privatif •Organisation des espaces optimisée •Stationnement et accès facilités Un appartement offrant confort et douceur de vivre, proche des commerces, services et axes pratiques du quotidien Honoraires d’agence à la charge du vendeur. Bien non soumis au DPE. Les informations sur les risques auxquels ce bien est exposé sont disponibles sur le site Géorisques : www.georisques.gouv.fr. La présente annonce immobilière a été rédigée sous la responsabilité éditoriale de M. Alexandre Rachel EI (ID 57750), mandataire indépendant en immobilier (sans détention de fonds), agent commercial de la SAS I@D France immatriculé au RSAC de DRAGUIGNAN sous le numéro 880748447, titulaire de la carte de démarchage immobilier pour le compte de la société I@D France SAS. Retrouvez tous nos biens sur notre site internet.

Agent immobilier ?
Diffusez GRATUITEMENT toutes vos annonces sur Superimmo.com
Stéphanie BERTOLINO - Propriétés-privées.com
Annonce publiée le 01/12/2025 - mise à jour 02/12/2025
Proposée par Stéphanie BERTOLINO - Propriétés-privées.com 01/12/2025 - mise à jour 02/12/2025
9
Appartement, 41 m²

179 000 € 4 366 €/m²
Appartement • 41 m² • 2 pièces • 1 chambre

Draguignan (83300)

EXCLUSIVITÉ Appartement T2 en rez-de-jardin ! Résidence récente et sécurisée (2020) A proximité immédiate de toutes les commodités, découvrez ce bel appartement de type T2 situé en rez-de-jardin, au sein d'une résidence moderne répondant aux nouvelles normes acoustiques et d'économies d'énergies. ***Les atouts de la résidence*** Construction 2020 Garantie décennale en cours Exonération de taxe foncière pendant 15 ans Résidence calme et sécurisée ***Description de l'appartement*** Hall d'entrée Belle pièce de vie lumineuse avec cuisine ouverte aménagée et équipée. Chambre confortable avec dressing Salle d'eau *** Espaces extérieurs*** Exposition EST Terrasse de 8 m² Jardin privatif de 34 m², idéal pour profiter des beaux jours place de stationnement privative ***Confort et équipements*** Climatisation réversible dans la pièce de vie Ballon thermodynamique Fibre optique installée Faibles charges : 90 euros/mois (eau comprise) +++ Ce que l'on aime ! Un bien moderne, économe et sans travaux, dans un environnement calme et pratique, idéal pour un primo-accédant ou un investisseur à la recherche d'un placement sûr. Prix : 179 000 euros frais d'agence inclus DPE B GES A Montant estimé des dépenses annuelles d'énergie pour un usage standard entre ... et ... euros indexées aux années 2021, 2022 et 2023 (ou 2021 uniquement) (si logement F ou G 'Logement à consommation énergétique excessive : classe F ou G') Pour visiter et vous accompagner dans votre projet, contactez Stéphanie BERTOLINO, au 0609217364 ou, par courriel à . Selon l'article L.561.5 du Code Monétaire et Financier, pour l'organisation de la visite, la présentation d'une pièce d'identité vous sera demandée. Cette présente annonce a été rédigée sous la responsabilité éditoriale de Stéphanie BERTOLINO agissant sous le statut d'agent commercial immatriculé au RSAC DRAGUIGNAN 837 627 587 auprès de SAS PROPRIETES PRIVEES, au capital de 44 920 euros, ZAC LE CHÊNE FERRÉ - 44 ALLÉE DES CINQ CONTINENTS 44120 VERTOU; SIRET 487 624 777 00040, RCS Nantes. Carte Professionnelle Transactions sur immeubles et fonds de commerce (T) et Gestion immobilière (G) n°CPI 4401 2016 000 010 388 délivrée par la CCI Nantes - Saint Nazaire. Compte séquestre n°30932508467 BPA SAINT-SEBASTIEN-SUR-LOIRE (44230). Garantie GALIAN-SMABTP - 89 rue de la Boétie, 75008 Paris - n°28137 J pour 2 000 000 euros pour T et 120 000 euros pour G. Assurance responsabilité civile professionnelle par GALIAN-SMABTP n° de police 28137.J Mandat réf : 426664 - Le professionnel garantit et sécurise votre projet immobilier. Copropriété de 99 lots - dont 46 lots habitation. (). Charges annuelles : 1020 euros. Stéphanie BERTOLINO (EI) Agent Commercial - Numéro RSAC : DRAGUIGNAN 837 627 587 - . Les informations sur les risques auxquels ce bien est exposé sont disponibles sur le site Géorisques : www. georisques. gouv. fr

VALERIE BARBIERI - BSK Immobilier
Annonce publiée le 08/10/2025 - mise à jour 12/11/2025
Proposée par VALERIE BARBIERI - BSK Immobilier 08/10/2025 - mise à jour 12/11/2025
9
Appartement, 39 m²

110 000 € 2 821 €/m²
Appartement • 39 m² • 2 pièces • 1 chambre

Draguignan (83300)

BSK IMMOBILIER – Valérie BARBIERI vous présente à la vente, en co-exclusvité : Superbe appartement T2 – 2ᵉ étage avec ascenseur Situé dans une résidence récente et sécurisée, à proximité de toutes les commodités tout en étant au calme, cet appartement lumineux et parfaitement entretenu saura vous séduire dès la première visite ! Description du bien : D'une surface d'environ 40 m², il se compose comme suit : Une entrée avec placard, Un WC séparé, Une salle de bain fonctionnelle, Une chambre avec placard intégré, donnant sur la terrasse, Une pièce de vie lumineuse avec salon/salle à manger, Une cuisine ouverte entièrement aménagée et équipée, Le tout ouvrant sur une agréable terrasse, idéale pour profiter des beaux jours. Aucun travaux à prévoir ! Vous n'aurez plus qu'à poser vos valises et profiter d'un confort moderne au quotidien. Les plus : Résidence récente avec ascenseur, Faibles charges de copropriété (eau comprise), Double vitrage et excellente isolation, Emplacement idéal : à proximité immédiate des écoles, commerces et transports, Calme et luminosité garantis. Mon avis : Un bien coup de cœur, parfait pour un primo-accédant, un investissement locatif ou une résidence secondaire. Son excellent état et sa situation privilégiée en font une opportunité rare sur le marché actuel ! Contactez-moi dès maintenant pour organiser une visite. Visites possibles tous les jours, week-ends et jours fériés compris, sur rendez-vous. Cette annonce référence 306168 vous est présentée par votre agent commercial BSK Immobilier VALERIE BARBIERI (EI) immatriculé au RSAC de DRAGUIGNAN (83300) sous le numéro 88029666000017. Prix du bien : 110 000,00 € Les honoraires d'agence sont à la charge du vendeur. A propos de la copropriété : Pas de procédure en cours. Nombre de lots : 60 Charges prévisionnelles annuelles : 800,00 € A propos des performances énergétiques : Date de réalisation du diagnostic énergétique : 20/07/2021 Score DPE : 168 kWhEP/m²/an Score GES : 5 kgepCO2/m²/an Montant estimé des dépenses annuelles d'énergie pour un usage standard : entre 640.00 € et 890.00 € par an. Prix moyens des énergies indexés sur l'année 2021 (abonnements compris). Les informations sur les risques auxquels ce bien est exposé sont disponibles sur le site Géorisques : www.georisques.gouv.fr

Marianne Lucas - efficity
Annonce publiée le 23/10/2025 - mise à jour 31/10/2025
Proposée par Marianne Lucas - efficity 23/10/2025 - mise à jour 31/10/2025
10
Appartement, 30 m²

49 500 € 1 650 €/m²
Appartement • 30 m² • 2 pièces • 1 chambre

Draguignan (83300)

83 300 DRAGUIGNAN-APPARTEMENT EN RDC DE 30 M²- effiCity, l'Agence qui estime votre bien en ligne vous propose, ce coquet appartement entièrement rénové en plein centre-ville de Draguignan. Il se compose d'un couloir desservant une chambre, suivi d'une salle de douche avec WC pour finir avec un séjour lumineux offrant une cuisine ouverte équipée d'une plaque induction. Cet appartement dispose de deux placards pour le rangement. Aucun frais à prévoir ! Sol, peinture ainsi que le chauffe-eau est neuf. Il peut être loué 405 € / Mois, ce qui représente un bon rapport locatif. Dans la même rue à quelques mètres résidence étudiante toute neuve vient d'être crée. Parking gratuit à proximité. Cet appartement attend son propriétaire ! Les informations sur les risques auxquels ce bien est exposé sont disponibles sur le site Georisque : georisques. gouv. fr Marianne Lucas - EI - est Agent Commercial mandataire en immobilier, immatriculé au Registre Spécial des Agents Commerciaux du Tribunal de Commerce de Draguignan sous le n°840936116. Siège social du mandant : effiCity, 48 avenue de Villiers - 75017 PARIS - Société par Actions Simplifiée, société au capital de 132 373,05 euros, immatriculée au RCS Paris 497 617 746 et titulaire de la Carte professionnelle CPI 7501 2015 000 002 025 - CCI Paris IDF - Caisse de Garantie : GALIAN Assurances 89 rue de la Boétie 75008 Paris

Agence Draguimmo
Annonce publiée le 05/02/2025 - mise à jour 19/08/2025
Proposée par Agence Draguimmo 05/02/2025 - mise à jour 19/08/2025
5
Appartement, 39 m²

159 000 € 4 077 €/m²
Appartement • 39 m² • 2 pièces • 1 chambre

Draguignan (83300)

DRAGUIGNAN Proche quartier Chabran - Dans petite copropriété de 4 appartements - En rez-de-jardin : APPARTEMENT F2 d'environ 39 m² composé : SEJOUR/CUISINE ouvrant sur TERRASSE et JARDIN privatif - Chambre - Salle d'eau/wc - 2 Places de PARKINGS privatives - BON ETAT GENERAL

Alexandre Rachel - iad
Annonce publiée le 28/11/2025 - mise à jour 03/12/2025
Proposée par Alexandre Rachel - iad 28/11/2025 - mise à jour 03/12/2025
3
Appartement, 44 m²

195 263 € 4 438 €/m²
Appartement • 44 m² • 2 pièces

Draguignan (83300)

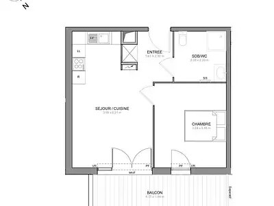
iad France - Alexandre Rachel (07 83 42 76 10) vous propose : Appartement 2 pièces avec jardin privatif – Draguignan (83) Prix : 195 263 TTC Situé dans un secteur calme et agréable de Draguignan, cet appartement 2 pièces offre un cadre de vie confortable et recherché. D’environ 45 m² environ, il se compose d’une entrée fonctionnelle, d’un séjour lumineux avec cuisine ouverte, d’une chambre bien proportionnée et d’une salle d’eau moderne. Son atout majeur : Une terrasse prolongée par un jardin privatif d’environ 18 m² environ, parfait pour profiter des beaux jours, jardiner, recevoir ou simplement se détendre en plein air. Prestations appréciables du quotidien : espace extérieur bien orienté, agencement optimisé, pièce de vie accueillante et atmosphère intimiste. Un lieu agréable à vivre, à proximité des commodités, des commerces et des services essentiels. Honoraires d’agence à la charge du vendeur. Bien non soumis au DPE. Les informations sur les risques auxquels ce bien est exposé sont disponibles sur le site Géorisques : www.georisques.gouv.fr. La présente annonce immobilière a été rédigée sous la responsabilité éditoriale de M. Alexandre Rachel EI (ID 57750), mandataire indépendant en immobilier (sans détention de fonds), agent commercial de la SAS I@D France immatriculé au RSAC de DRAGUIGNAN sous le numéro 880748447, titulaire de la carte de démarchage immobilier pour le compte de la société I@D France SAS. Retrouvez tous nos biens sur notre site internet.

Alexandre Rachel - iad
Annonce publiée le 28/11/2025 - mise à jour 03/12/2025
Proposée par Alexandre Rachel - iad 28/11/2025 - mise à jour 03/12/2025
2
Appartement, 42 m²

162 470 € 3 868 €/m²
Appartement • 42 m² • 2 pièces

Draguignan (83300)

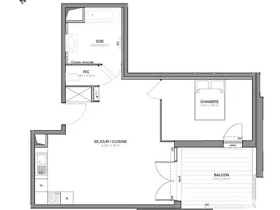
iad France - Alexandre Rachel (07 83 42 76 10) vous propose : Appartement 2 pièces avec balcon – Draguignan (83) Prix : 162 470€ TTC Situé dans un environnement calme de Draguignan, cet appartement 2 pièces offre une atmosphère confortable et agréable au quotidien. D’une surface d’environ 42 m² environ, il se compose d’une entrée, d’un séjour lumineux avec cuisine ouverte, d’une chambre spacieuse, ainsi que d’une salle d’eau avec toilette. L’atout principal : Un balcon d’environ 11 m² environ, idéal pour profiter de l’extérieur, créer un espace détente ou y installer une petite table pour vos moments de pause. Prestations appréciées : •Séjour lumineux et agréable •Chambre confortable •Balcon spacieux •Agencement optimisé •Cadre de vie paisible Un appartement parfait pour une résidence principale fonctionnelle et agréable, proche des commodités du quotidien. Honoraires d’agence à la charge du vendeur. Bien non soumis au DPE. Les informations sur les risques auxquels ce bien est exposé sont disponibles sur le site Géorisques : www.georisques.gouv.fr. La présente annonce immobilière a été rédigée sous la responsabilité éditoriale de M. Alexandre Rachel EI (ID 57750), mandataire indépendant en immobilier (sans détention de fonds), agent commercial de la SAS I@D France immatriculé au RSAC de DRAGUIGNAN sous le numéro 880748447, titulaire de la carte de démarchage immobilier pour le compte de la société I@D France SAS. Retrouvez tous nos biens sur notre site internet.

Alexandre Rachel - iad
Annonce publiée le 28/11/2025 - mise à jour 03/12/2025
Proposée par Alexandre Rachel - iad 28/11/2025 - mise à jour 03/12/2025
4
Appartement, 42 m²

173 723 € 4 136 €/m²
Appartement • 42 m² • 2 pièces

Draguignan (83300)

iad France - Alexandre Rachel (07 83 42 76 10) vous propose : Appartement 2 pièces avec balcon – Draguignan (83) Prix : 173 723 € TTC Dans un environnement calme et apprécié de Draguignan, cet appartement 2 pièces offre un espace de vie confortable et bien organisé. D’une surface d’environ 42 m² environ, il se compose d’une entrée, d’un séjour lumineux avec cuisine ouverte, d’une chambre agréable, d’une salle d’eau et d’un toilette indépendant. Son atout principal : Un balcon permettant de profiter de l’extérieur, installer une petite table ou un coin détente selon vos envies. Prestations appréciées : •Séjour lumineux et chaleureux •Chambre fonctionnelle •Balcon agréable •Agencement optimisé •Cadre de vie paisible Un appartement idéal pour une résidence principale confortable ou un premier investissement bien placé. Honoraires d’agence à la charge du vendeur. Bien non soumis au DPE. Les informations sur les risques auxquels ce bien est exposé sont disponibles sur le site Géorisques : www.georisques.gouv.fr. La présente annonce immobilière a été rédigée sous la responsabilité éditoriale de M. Alexandre Rachel EI (ID 57750), mandataire indépendant en immobilier (sans détention de fonds), agent commercial de la SAS I@D France immatriculé au RSAC de DRAGUIGNAN sous le numéro 880748447, titulaire de la carte de démarchage immobilier pour le compte de la société I@D France SAS. Retrouvez tous nos biens sur notre site internet.

ERA Golf Agence
Annonce publiée le 16/05/2025 - mise à jour 27/11/2025
Proposée par ERA Golf Agence 16/05/2025 - mise à jour 27/11/2025
5
Appartement, 43 m²

150 000 € 3 488 €/m²
Appartement • 43 m² • 2 pièces • 1 chambre

Draguignan (83300)

L'agence ERA Vidauban vous propose en exclusivité cet appartement de type T2 en rez-de-jardin, vendu loué jusqu'en mars 2027. Situé dans une résidence récente et sécurisée au sein d'un quartier paisible, à proximité immédiate de toutes les commodités, cet appartement offre un cadre de vie agréable. Il se compose d'un hall d'entrée avec placard, d'une belle pièce de vie lumineuse avec cuisine ouverte, aménagée et équipée, d'une salle de bains, d'un WC séparé, ainsi que d'une chambre confortable. Vous profiterez également d'une agréable terrasse couverte et d'un jardin privatif entièrement clôturé pour vos moments de détente. De plus, cet appartement dispose d'une place de parking privative en sous-sol sécurisé. Cet appartement représente une opportunité d'investissement idéale, tant pour un premier achat que pour un projet locatif ou un pied à terre varois. Un bien rare sur le marché, à ne pas manquer ! L'Etat des Risques et Pollution peut être consulté sur https://www.georisques.gouv.fr

Julie CLAUDEL - Propriétés-privées.com
Annonce publiée le 21/11/2025 - mise à jour 04/12/2025
Proposée par Julie CLAUDEL - Propriétés-privées.com 21/11/2025 - mise à jour 04/12/2025
9
Appartement, 54 m²

165 000 € 3 056 €/m²
Appartement • 54 m² • 2 pièces • 1 chambre

Draguignan (83300)

Dans le secteur très recherché de Saint-Hermentaire, découvrez un appartement en rez-de-jardin rare sur le marché : un bien impeccablement entretenu, lumineux et idéal pour un premier achat. Un cadre de vie confortable et pratique L'appartement offre une belle surface de 54 m², parfaitement agencée pour une vie simple et organisée : Séjour spacieux ouvrant directement sur le jardin Cuisine indépendante déjà aménagée Chambre confortable avec grand placard intégré Salle de bain en excellent état WC séparé Les prestations sont au rendez-vous : climatisation réversible, double vitrage aluminium, résidence récente (2003), portail électrique, interphone. Un extérieur qui fait toute la différence Profitez d'un jardin privatif d'environ 50 m², accessible depuis le séjour et la chambre : un vrai atout pour recevoir, jardiner ou simplement prendre l'air en toute tranquillité. Une résidence agréable et bien entretenue Copropriété sérieuse, espaces communs propres, stationnement libre dans la résidence, quartier calme à proximité des services, commerces et écoles. Aucun travaux à prévoir Charges maîtrisées (env. 100 euros/mois) DPE performant : classe C faibles dépenses énergétiques Environnement recherché Confort moderne Un bien immédiatement habitable, idéal pour un premier achat ou un investissement patrimonial de qualité. Contact direct : Julie Claudel 06 16 24 82 75 Votre conseillère immobilier dédiée sur Draguignan et alentours. Prix : 165 000 euros honoraires inclus DPE C GES A Montant estimé des dépenses annuelles d'énergie pour un usage standard entre 700 et 1010 euros indexées aux années 2021, 2022 et 2023 (ou 2021 uniquement) Pour visiter et vous accompagner dans votre projet, contactez Julie CLAUDEL, au 0616248275 ou, par courriel à . Selon l'article L.561.5 du Code Monétaire et Financier, pour l'organisation de la visite, la présentation d'une pièce d'identité vous sera demandée. Cette présente annonce a été rédigée sous la responsabilité éditoriale de Julie CLAUDEL agissant sous le statut d'agent commercial immatriculé au RSAC 914156294 auprès de SAS PROPRIETES PRIVEES, au capital de 44 920 euros, ZAC LE CHÊNE FERRÉ - 44 ALLÉE DES CINQ CONTINENTS 44120 VERTOU ; SIRET 487 624 777 00040, RCS Nantes. Carte Professionnelle Transactions sur immeubles et fonds de commerce (T) et Gestion immobilière (G) n°CPI 4401 2016 000 010 388 délivrée par la CCI Nantes - Saint Nazaire. Compte séquestre n°30932508467 BPA SAINT-SEBASTIEN-SUR-LOIRE (44230). Garantie GALIAN-SMABTP - 89 rue de la Boétie, 75008 Paris - n°28137 J pour 2 000 000 euros pour T et 120 000 euros pour G. Assurance responsabilité civile professionnelle par GALIAN-SMABTP n° de police 28137.J Mandat réf : 429866 - Le professionnel garantit et sécurise votre projet immobilier. (5.10 % honoraires TTC à la charge de l'acquéreur.) Copropriété de 167 lots - dont 67 lots habitation. (). Charges annuelles : 1200 euros. Julie CLAUDEL (EI) Agent Commercial - Numéro RSAC : 914156294 - . Les informations sur les risques auxquels ce bien est exposé sont disponibles sur le site Géorisques : www. georisques. gouv. fr

Alexandre Rachel - iad
Annonce publiée le 25/11/2025 - mise à jour 02/12/2025
Proposée par Alexandre Rachel - iad 25/11/2025 - mise à jour 02/12/2025
3
Appartement, 52 m²

Prix en baisse 185 065 € 3 559 €/m²
Appartement • 52 m² • 2 pièces

Draguignan (83300)

iad France - Alexandre Rachel (07 83 42 76 10) vous propose : Appartement 2 pièces avec balcon – Draguignan (83) Prix : 185 065 € TTC Découvrez ce charmant appartement 2 pièces situé dans un quartier calme et résidentiel de Draguignan, à proximité immédiate des commerces, écoles et transports. D’une surface d’environ 59 m² environ, il offre un séjour lumineux avec cuisine ouverte, une chambre confortable, une salle de bains aménagée et un toilette indépendant. Vous apprécierez son agréable balcon d’environ 8 m² environ, parfait pour vos moments de détente en extérieur. L’appartement bénéficie de prestations soignées : menuiseries double vitrage, volets motorisés, placards aménageables, bonne isolation phonique et thermique, et accès sécurisé à la résidence. Un stationnement privatif complète ce bien. Idéal pour un premier achat ou un pied-à-terre confortable dans un environnement paisible à quelques minutes du centre-ville. Honoraires d’agence à la charge du vendeur. Bien non soumis au DPE. Les informations sur les risques auxquels ce bien est exposé sont disponibles sur le site Géorisques : www.georisques.gouv.fr. La présente annonce immobilière a été rédigée sous la responsabilité éditoriale de M. Alexandre Rachel EI (ID 57750), mandataire indépendant en immobilier (sans détention de fonds), agent commercial de la SAS I@D France immatriculé au RSAC de DRAGUIGNAN sous le numéro 880748447, titulaire de la carte de démarchage immobilier pour le compte de la société I@D France SAS. Retrouvez tous nos biens sur notre site internet.

Alexandre Rachel - iad
Annonce publiée le 28/11/2025 - mise à jour 03/12/2025
Proposée par Alexandre Rachel - iad 28/11/2025 - mise à jour 03/12/2025
3
Appartement, 52 m²

187 175 € 3 600 €/m²
Appartement • 52 m² • 2 pièces

Draguignan (83300)

iad France - Alexandre Rachel (07 83 42 76 10) vous propose : Appartement 2 pièces avec balcon – Draguignan (83) Prix : 185 175 € TTC Situé dans un secteur calme et agréable de Draguignan, cet appartement 2 pièces propose un espace de vie lumineux et bien agencé. D’une surface d’environ 52 m² environ, il se compose d’une entrée ouvrant sur un séjour spacieux avec cuisine ouverte, d’une chambre confortable, d’une salle d’eau et d’un toilette indépendant. L’atout charme : Un balcon offrant un agréable espace extérieur pour profiter des beaux jours, installer une table, lire ou simplement se détendre. Prestations appréciées : •Grande pièce de vie conviviale •Chambre de belle taille •Balcon agréable •Agencement pratique •Environnement serein Un appartement idéal pour une résidence principale fonctionnelle et confortable, proche des commerces et services essentiels. Honoraires d’agence à la charge du vendeur. Bien non soumis au DPE. Les informations sur les risques auxquels ce bien est exposé sont disponibles sur le site Géorisques : www.georisques.gouv.fr. La présente annonce immobilière a été rédigée sous la responsabilité éditoriale de M. Alexandre Rachel EI (ID 57750), mandataire indépendant en immobilier (sans détention de fonds), agent commercial de la SAS I@D France immatriculé au RSAC de DRAGUIGNAN sous le numéro 880748447, titulaire de la carte de démarchage immobilier pour le compte de la société I@D France SAS. Retrouvez tous nos biens sur notre site internet.

Séverine RODA - iad
Annonce publiée le 13/11/2025
Proposée par Séverine RODA - iad 13/11/2025
4
Appartement, 39 m²

90 000 € 2 308 €/m²
Appartement • 39 m² • 2 pièces • 1 chambre

Draguignan (83300)

iad France - Séverine Roda vous propose: Situé dans le centre de Draguignan, cet appartement de type t2 en DUPLEX , situé au 1er et deuxième étage d'un immeuble à trois niveaux vous offre un cadre de vie authentique et paisible, idéal pour les amoureux de la vieille ville . Cet appartement de 39m² possède une pièce à vivre au premier niveau , une salle d'eau avec wc et une chambre au second niveau. L'espace de vie est agencé de manière fonctionnelle pour optimiser chaque recoin. Les éléments anciens de l'appartement offrent du cachet et du caractère à la propriété. Situé dans un immeuble datant de 1948 et nécessitant quelques travaux de rénovation pour moderniser les équipements, cet appartement offre un réel potentiel pour les amateurs de rénovation et de décoration intérieure. Le charme de l'ancien mélangé au confort moderne pourrait donner naissance à un lieu de vie unique et chaleureux. En ce qui concerne les annexes, l'appartement propose cave et garage dans les parties communes aux autres copropriétaires . Sa localisation en plein centre-ville vous donne accès à de nombreux services à proximité. Appartement atypique avec plein de potentiel, idéal pour les personnes à la recherche d'un projet de rénovation ou dans un achat d'investissement ,vous pourriez acquérir l'immeuble qui accueille trois appartements . Laissez-vous séduire par le charme de l'ancien et imaginez la transformation de cet espace en un cocon moderne à votre image. Une visite s'impose ! La presente annonce immobiliere vise 2 lots situés dans une copropriété de 7 lots au total et ne faisant l'objet d'aucune procédure en cours citée à l'article L. 721-1 du code de la construction et de l'habitation. Montant moyen mensuel de charges déclaré par le vendeur : 47€ par mois (soit 564 € annuel). Honoraires d'agence à la charge du vendeur. Information d'affichage énergétique sur ce bien : classe ENERGIE E indice 262 et classe CLIMAT B indice 8. Les informations sur les risques auxquels ce bien est exposé, y compris l'obligation légale de débroussaillement, sont disponibles sur le site Géorisques : http://www.georisques.gouv.fr. La présente annonce immobilière a été rédigée sous la responsabilité éditoriale de Mme Séverine Roda mandataire indépendant en immobilier (sans détention de fonds), agent commercial de la SAS I@D France immatriculé au RSAC de Cannes sous le numéro 399370659, titulaire de la carte de démarchage immobilier pour le compte de la société I@D France SAS.

Alexandre Rachel - iad
Annonce publiée le 28/11/2025 - mise à jour 03/12/2025
Proposée par Alexandre Rachel - iad 28/11/2025 - mise à jour 03/12/2025
3
Appartement, 51 m²

198 340 € 3 889 €/m²
Appartement • 51 m² • 2 pièces

Draguignan (83300)

iad France - Alexandre Rachel (07 83 42 76 10) vous propose : Appartement 2 pièces avec jardin privatif – Draguignan (83) Prix : 198 340 € TTC Situé dans un environnement calme, cet appartement 2 pièces offre une surface confortable et un extérieur très agréable. D’environ 50 m² environ, il se compose d’une entrée, d’un séjour avec cuisine ouverte, d’une chambre, d’une salle d’eau et d’un toilette. Son avantage majeur : Une terrasse prolongée par un jardin privatif, idéal pour savourer les journées ensoleillées en toute tranquillité. Prestations appréciées : •Séjour lumineux •Chambre bien agencée •Terrasse & jardin privatif •Cadre serein Un bien idéal pour une vie paisible et pratique au quotidien. Honoraires d’agence à la charge du vendeur. Bien non soumis au DPE. Les informations sur les risques auxquels ce bien est exposé sont disponibles sur le site Géorisques : www.georisques.gouv.fr. La présente annonce immobilière a été rédigée sous la responsabilité éditoriale de M. Alexandre Rachel EI (ID 57750), mandataire indépendant en immobilier (sans détention de fonds), agent commercial de la SAS I@D France immatriculé au RSAC de DRAGUIGNAN sous le numéro 880748447, titulaire de la carte de démarchage immobilier pour le compte de la société I@D France SAS. Retrouvez tous nos biens sur notre site internet.

Agence Draguimmo
Annonce publiée le 06/05/2025 - mise à jour 02/07/2025
Proposée par Agence Draguimmo 06/05/2025 - mise à jour 02/07/2025
8
Appartement, 52 m²

159 000 € 3 058 €/m²
Appartement • 52 m² • 2 pièces • 1 chambre

Draguignan (83300)

DRAGUIGNAN - Centre-ville - Au 1er étage d'une petite copropriété - Appartement F2 de 52 m² composé : Séjour/ Cuisine américaine équipée 35 m² - Chambre 10 m² - Salle d'eau - Buanderie - Toilette indépendant - Cave - EXCELLENT ETAT GÉNÉRAL