Acheter un appartement à Antibes (06)

Modifier ma recherche
1 320 annonces
Jessica Alessandrini - iad
Annonce publiée le 20/10/2025 - mise à jour 24/11/2025
Proposée par Jessica Alessandrini - iad 20/10/2025 - mise à jour 24/11/2025
8
Appartement, 62 m²

362 000 € 5 839 €/m²
Appartement • 62 m² • 3 pièces • 2 chambres

Antibes (06600)

iad France - Jessica Alessandrini (06 73 75 66 47) vous propose : Appartement 3 pièces avec terrasse – Antibes Au 2 étage d’une résidence contemporaine, ce bel appartement de 61,6 m² environ orienté Ouest-Sud offre luminosité et confort de vie. Intérieur fonctionnel : Entrée pratique de 6,4 m² environ Séjour/cuisine convivial de 24,6 m² environ ouvert sur l’extérieur Deux chambres confortables (14,2 m² environ et 9,9 m² environ) Salle d’eau moderne WC indépendant Extérieur agréable : Deux balcons totalisant 17,7 m² environ, parfaits pour se détendre et profiter de l’air méditerranéen Exposition Ouest-Sud, idéale pour bénéficier du soleil l’après-midi et en soirée Adresse stratégique : Quartier calme et recherché Commerces et écoles accessibles à pied Nouvelle ligne de bus/tram reliant Sophia-Antipolis Accès rapide aux principaux axes routiers Polyvalent : Idéal en résidence principale ou secondaire Excellent potentiel locatif (loyer estimé : 945 €/mois) Prix : 362 000 € frais de notaire a la charge vendeur Un bien rare à Antibes, combinant espaces intérieurs optimisés et balcons baignés de soleil. Contactez-nous pour plus d’informations ou une visite personnalisée. Honoraires d’agence à la charge du vendeur. Bien non soumis au DPE. Les informations sur les risques auxquels ce bien est exposé sont disponibles sur le site Géorisques : www.georisques.gouv.fr. La présente annonce immobilière a été rédigée sous la responsabilité éditoriale de Mlle Jessica Alessandrini EI (ID 90440), mandataire indépendant en immobilier (sans détention de fonds), agent commercial de la SAS I@D France immatriculé au RSAC de Draguigan sous le numéro 451826549, titulaire de la carte de démarchage immobilier pour le compte de la société I@D France SAS. Retrouvez tous nos biens sur notre site internet.

Agent immobilier ?
Diffusez GRATUITEMENT toutes vos annonces sur Superimmo.com
Jessica Alessandrini - iad
Annonce publiée le 20/10/2025 - mise à jour 24/11/2025
Proposée par Jessica Alessandrini - iad 20/10/2025 - mise à jour 24/11/2025
10
Appartement, 62 m²

360 000 € 5 806 €/m²
Appartement • 62 m² • 3 pièces • 2 chambres

Antibes (06600)

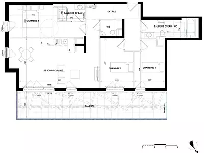
iad France - Jessica Alessandrini (06 73 75 66 47) vous propose : Appartement 3 pièces avec terrasse – Antibes Situé au 1er étage d’une résidence récente, ce bel appartement de 61 m² environ orienté Ouest-Sud séduit par sa luminosité et ses espaces bien pensés. Intérieur fonctionnel : Entrée pratique avec rangement Séjour/cuisine convivial de 24 m² environ donnant sur l’extérieur Deux chambres confortables (14 m² environ et 10 m² environ) Salle d’eau moderne avec douche WC indépendant Extérieur agréable : Deux terrasses totalisant 17,7 m² environ, idéales pour profiter du climat méditerranéen Exposition Ouest-Sud, parfaite pour les fins de journée ensoleillées Adresse stratégique : Quartier résidentiel calme et recherché Commerces et écoles accessibles à pied Nouvelle ligne de bus/tram reliant Sophia-Antipolis Accès rapide aux principaux axes routiers Polyvalent : Idéal en résidence principale ou secondaire Bon potentiel en investissement locatif (loyer estimé : 940 €/mois) Prix : 360 000 € frais de notaire a la charge vendeur Un bien rare à Antibes, combinant belle distribution intérieure et terrasses ensoleillées. Contactez-nous pour plus d’informations ou une visite personnalisée. Honoraires d’agence à la charge du vendeur. Bien non soumis au DPE. Les informations sur les risques auxquels ce bien est exposé sont disponibles sur le site Géorisques : www.georisques.gouv.fr. La présente annonce immobilière a été rédigée sous la responsabilité éditoriale de Mlle Jessica Alessandrini EI (ID 90440), mandataire indépendant en immobilier (sans détention de fonds), agent commercial de la SAS I@D France immatriculé au RSAC de Draguigan sous le numéro 451826549, titulaire de la carte de démarchage immobilier pour le compte de la société I@D France SAS. Retrouvez tous nos biens sur notre site internet.

Isabelle Boemo - iad
Annonce publiée le 01/11/2025 - mise à jour 06/11/2025
Proposée par Isabelle Boemo - iad 01/11/2025 - mise à jour 06/11/2025
3
Appartement, 118 m²

1 515 000 € 12 839 €/m²
Appartement • 118 m² • 4 pièces

Antibes (06600)

iad France - Isabelle Boemo (06 45 54 69 12) vous propose : CANNES – DERNIER ÉTAGE – 4 PIÈCES AVEC VUE ET TERRASSES Perché au 7ème étage d’une résidence contemporaine à l’architecture élégante, ce superbe appartement 4 pièces de 117,5 m² environ séduit par ses volumes, sa luminosité et ses prestations soignées. Son espace de vie traversant s’ouvre sur deux magnifiques terrasses totalisant 79 m² environ, dont une principale de plus de 65 m² environ offrant un cadre idéal pour profiter des soirées d’été face à la mer et aux collines. La distribution intérieure comprend un vaste séjour avec cuisine ouverte, trois chambres confortables dont une suite parentale, deux salles de bains, un dressing et de nombreux rangements. L’exposition Ouest garantit une lumière généreuse tout au long de la journée. Résidence sécurisée avec ascenseur, stationnement possible en sous-sol. Un lieu de vie d’exception à Antibes, entre raffinement et sérénité. Honoraires d’agence à la charge du vendeur. Bien non soumis au DPE. Les informations sur les risques auxquels ce bien est exposé sont disponibles sur le site Géorisques : www.georisques.gouv.fr. La présente annonce immobilière a été rédigée sous la responsabilité éditoriale de Mlle Isabelle Boemo EI (ID 79392), mandataire indépendant en immobilier (sans détention de fonds), agent commercial de la SAS I@D France immatriculé au RSAC de Cannes sous le numéro 534765748, titulaire de la carte de démarchage immobilier pour le compte de la société I@D France SAS. Retrouvez tous nos biens sur notre site internet.

Immo Paca - Expertimo
Annonce publiée le 14/11/2025 - mise à jour 21/11/2025
Proposée par Immo Paca - Expertimo 14/11/2025 - mise à jour 21/11/2025
14
Appartement, 54 m²

375 000 € 6 944 €/m²
Appartement • 54 m² • 2 pièces • 1 chambre

Antibes (06600)

ANTIBES - FONTONNE Situé dans une copropriété de standing parfaitement entretenue, au calme absolu et entourée de verdure, cet appartement 2 pièces de 54 m2 en dernier étage séduit par son cadre paisible et ses prestations de qualité. La résidence offre un jardin arboré ainsi qu’une belle piscine, idéals pour profiter des beaux jours. L’appartement se compose d’une entrée, d’une vaste pièce de vie lumineuse avec cuisine entièrement équipée, parfaite pour recevoir, d’une chambre avec placards intégrés, d’une salle d’eau moderne, et d’un WC indépendant. La pièce principale s’ouvre sur une très grande terrasse ensoleillée, véritable prolongement de l’espace de vie, offrant une vue dégagée avec aperçu mer et un environnement calme sans vis-à-vis. L’appartement est vendu avec un parking en sous-sol et deux caves, complétant ainsi le confort de ce bien. Idéal pour une résidence principale comme pour un pied-à-terre sur la Côte d’Azur, ce bien rare réunit luminosité, calme et qualité de vie, dans une copropriété prisée à proximité des commodités et des axes principaux.

Côte d'Azur Immobilière
Annonce publiée le 19/11/2025
Proposée par Côte d'Azur Immobilière 19/11/2025
6
Appartement, 29,26 m²

185 000 € 6 323 €/m²
Appartement • 29,26 m² • 1 pièce • 1 chambre

Antibes
Juan-les-Pins (06160)

Dans une résidence sécurisée avec gardien, venez découvrir ce grand studio lumineux de 30 m2, idéal pour un premier achat, un pied-à-terre ou un investissement locatif. Grand espace de vie avec un coin nuit, donnent sur la terrasse ensoleillée . Climatisation réversible, stores électriques, double vitrage. Ce bien bénéficie d’un environnement proche des commerces, transports, plages et toutes commodités. En complément, cet appartement comprend une cave.

Jessica Alessandrini - iad
Annonce publiée le 19/11/2025 - mise à jour 24/11/2025
Proposée par Jessica Alessandrini - iad 19/11/2025 - mise à jour 24/11/2025
7
Appartement, 92 m²

688 000 € 7 478 €/m²
Appartement • 92 m² • 4 pièces

Antibes (06600)

iad France - Jessica Alessandrini (06 73 75 66 47) vous propose : Spacieux 4 pièces avec grand balcon et parking – Antibes (06600) Dans un quartier résidentiel calme et prisé d’Antibes, découvrez cet élégant appartement de 4 pièces de 91,5 m² environ, situé au 4? étage, offrant une exposition sud-ouest et une vue dégagée. Ce bien rare allie volumes généreux, luminosité naturelle et confort moderne, idéal pour une famille ou un investissement locatif de qualité. L’agencement se compose d’un : •Séjour-cuisine spacieux de 33 m² environ ouvrant sur un balcon de 29,2 m² environ, •Trois chambres confortables de 14,8 m² environ, 11,25 m² environ et 10,15 m² environ, •Deux salles d’eau, dont une avec WC, •WC séparé et entrée fonctionnelle avec rangements. Le bien inclut également une place de parking privative en sous-sol. Le chauffage individuel électrique assure un confort maîtrisé et des charges limitées. ________________________________________ ???? Informations financières •Prix de vente : 688 000 € •Frais de notaire à la charge du vendeur •Surface habitable : 91,5 m² environ •Balcon : 29,2 m² environ •Stationnement : 1 place privative en sous-sol ________________________________________ ???? Rentabilité locative Avec un loyer de marché estimé à 1 500 € par mois, ce bien présente une rentabilité brute d’environ 2,6 %. Son emplacement, proche du centre-ville d’Antibes, de Sophia-Antipolis et des commerces, garantit une forte demande locative et une valorisation patrimoniale durable. ________________________________________ ?? Les points forts •Exposition sud-ouest très lumineuse •Vaste pièce de vie de 33 m² environ •Balcon généreux de 29 m² environ, parfait pour les repas en extérieur •Deux salles d’eau, un confort rare •Parking privatif inclus dans le prix •Frais de notaire à la charge du vendeur •Emplacement recherché à Antibes, à proximité des commodités et des axes majeurs Honoraires d’agence à la charge du vendeur. Bien non soumis au DPE. Les informations sur les risques auxquels ce bien est exposé sont disponibles sur le site Géorisques : www.georisques.gouv.fr. La présente annonce immobilière a été rédigée sous la responsabilité éditoriale de Mlle Jessica Alessandrini EI (ID 90440), mandataire indépendant en immobilier (sans détention de fonds), agent commercial de la SAS I@D France immatriculé au RSAC de Draguigan sous le numéro 451826549, titulaire de la carte de démarchage immobilier pour le compte de la société I@D France SAS. Retrouvez tous nos biens sur notre site internet.

Select Azur Immobilier
Annonce publiée le 27/11/2025
Proposée par Select Azur Immobilier 27/11/2025
3
Appartement, 35 m²

228 000 € 6 514 €/m²
Appartement • 35 m² • 2 pièces • 1 chambre

Antibes (06600)

Antibes - 2Pièces avec terrasse À 20 minutes à pied de la plage, dans une résidence sécurisée et conviviale, cet appartement de 36 m² offre un cadre pratique et agréable. Il se compose d’un séjour lumineux, d’une cuisine ouverte, d’une chambre, et d’une salle de bain. Points forts : - Climatisation réversible - Double exposition Est-Ouest - Terrasse de 7 m² - Cave de 5 m² - Place de parking privative - Fibre optique installée - Arrêt de bus en face de la résidence avec lignes directes vers le centre-ville Charges de copropriété : environ 1 800 € par an (comprenant eau froide, eau chaude et chauffage collectif) Un bien fonctionnel, idéal pour un premier achat ou un investissement locatif. 📍 Antibes – proche commerces, transports et plages.

Jessica PERINOT - Capifrance
Annonce publiée le 02/12/2025
Proposée par Jessica PERINOT - Capifrance 02/12/2025
1
Appartement, 44 m²

319 000 € 7 250 €/m²
Appartement • 44 m² • 2 pièces

Antibes (06600)

L'opportunité rare de vivre au dernier étage, baigné de soleil, dans un quartier prisé d'Antibes ! Découvrez un appartement de 2 pièces situé en dernier étage (4e), offrant une surface intérieure de 43,50 m² dans un secteur recherché d'Antibes (avenue de la Sarrazine). Ce bien bénéficie d'une exposition Ouest idéale, garantissant une belle luminosité naturelle dans les spacieuses pièces à vivre. L'atout majeur est son balcon de 15,75 m², une surface extérieure considérable qui prolonge l'espace de vie et invite à la détente. Cadre de Vie Idéal : L'immeuble se situe sur un axe stratégique menant du vieil Antibes à l'arrière-pays. Il est immédiatement accessible par les transports en commun et proche des grands axes, facilitant vos déplacements vers les infrastructures culturelles et sportives de la ville. Le quartier est réputé pour son ambiance paisible et son côté pratique, avec de nombreux commerces de proximité permettant de faire ses courses du quotidien à pied. Les abords sont agrémentés d'espaces arborés, distillant un bienfaisant sentiment de nature et sérénité. L'agencement est conçu pour le confort et la praticité. Ce bien respecte des critères de qualité élevés (isolation, construction), assurant un confort thermique optimal. Les informations sur les risques auxquels ce bien est exposé sont disponibles sur le site Géorisques : www. georisques. gouv. fr. Réseau Immobilier CAPIFRANCE - Votre agent commercial (RSAC N°830 093 068 - Greffe de NICE) Jessica PERINOT Entrepreneur Individuel 06 66 64 24 05 - Réf.304121

VUES D'AZUR
Annonce mise à jour le 19/08/2025
Proposée par VUES D'AZUR 19/08/2025
10
Appartement, 24,46 m²

Prix en baisse 267 500 € 10 936 €/m²
Appartement • 24,46 m² • 2 pièces • 1 chambre

Antibes
Juan-les-Pins (06160)

EXCLUSIVITE - VENTE - APPARTEMENT - JUAN LES PINS - Appartement de 2 pièces d'une superficie de 24.46m² entièrement rénové en DERNIER étage avec une magnifique terrasse de 42.15m² vue DÉGAGÉ et aperçue mer EXPOSÉE SUD. À deux pas des commerces. Vient s'ajouter à ce bien : une place de parking privative et une cave. Bien unique à visiter sans attendre ! Pour plus d'information, veuillez contacter : Anaëlle QUENAULT : 07.55.49.40.07

Ciel Azur Immobilier
Annonce publiée le 10/05/2025 - mise à jour 01/11/2025
Proposée par Ciel Azur Immobilier 10/05/2025 - mise à jour 01/11/2025
8
Appartement, 59 m²

Prix en baisse 285 000 € 4 831 €/m²
Appartement • 59 m² • 2 pièces • 1 chambre

Antibes
Juan-les-Pins (06160)

N'hésitez pas à profiter d'une occasion unique d'acquérir un appartement de type 2 pièces idéalement situé dans un quartier en bord de mer à Juan-les-Pins. Ce charmant appartement de 59 m² au premier étage, exposé Est-Ouest. Il comprend une cuisine américaine équipée, une chambre et une salle de bain, ainsi qu'une terrasse de 8m², un séjour de 19m² et inclus une cave. L'eau chaude et le chauffage collectif sont compris. La résidence bien tenue, construite en 1963, offre un standing résidentiel. Elle comprend un ascenseur, un système de double vitrage, une porte blindée et une sécurisation optimale. Venez visiter, vous serez séduits par son état intérieur impeccable. L'immobilier à 06160 Juan-les-Pins regorge d'opportunités attirantes pour l'achat d'appartements de type 2 pièces. Un des points forts majeurs de cette zone est sans doute sa localisation privilégiée sur la côte d'Azur, offrant des vues pittoresques et un accès facile aux plages. De plus, Juan-les-Pins est réputé pour son ambiance animée, rehaussée par de nombreux commerces, restaurants gastronomiques et événements culturels comme le célèbre festival de jazz. Par ailleurs, cette ville balnéaire dispose d'une excellente desserte via le transport en commun, augmentant ainsi sa commodité pour les résidents. Enfin, la grande variété d'appartements disponibles, du moderne au traditionnel, assure que chaque acheteur trouvera un bien correspondant à ses goûts et à son budget. EXCLUSITE Ciel azur immobilier

Logé Azur
Annonce mise à jour le 15/05/2025
Proposée par Logé Azur 15/05/2025
8
Appartement, 46,64 m²

Prix en baisse 185 000 € 3 967 €/m²
Appartement • 46,64 m² • 2 pièces • 1 chambre

Antibes
Juan-les-Pins (06160)

VENTE APPARTEMENT JUAN-LES-PINS 1 CHAMBRE et PARKING Venez découvrir cet appartement composé d’une entrée, d’un séjour, d’une chambre, cuisine et salle de bain. Une grande terrasse et un parking complète ce bien. À proximité directe des commerces, transports et des plages de sable. N'attendez pas pour nous contacter !

Direct Immobilier
Annonce publiée le 13/05/2025 - mise à jour 19/08/2025
Proposée par Direct Immobilier 13/05/2025 - mise à jour 19/08/2025
6
Appartement, 18 m²

Prix en baisse 138 000 € 7 667 €/m²
Appartement • 18 m² • 1 pièce

Antibes (06600)

Antibes Albert 1er, Rare à la vente ! Venez vite découvrir ce studio entièrement rénové d'environ 18m2 avec balcon au 2ème étage d'une résidence de bon standing, en PLEIN CENTRE VILLE, proche toutes commodités, Vieille Ville et Plages, Cuisine équipée et Climatisation. belle SDD avec WC suspendus. IDEAL INVESTISSEUR, pied à terre ou premier achat. Contact : 0493340120 A VOIR RAPIDEMENT

Agence Varallo
Annonce mise à jour le 02/10/2025
Proposée par Agence Varallo 02/10/2025
10
Appartement, 52,31 m²

Prix en baisse 294 000 € 5 620 €/m²
Appartement • 52,31 m² • 3 pièces • 2 chambres

Antibes (06600)

Quartier Albert 1er ,3 pièces traversant au calme, dans résidence de bon standing, idéalement située, à proximité des plages et des commerces ,petite résidence parfaitement entretenue et recherchée, séjour avec cuisine américaine ouvrant sur balcon au calme , une chambre avec rangements et salle de douche avec wc,seconde chambre au calme également ,wc indépendant , cave et possibilité de beau parking sous sol A voir sans tarder Contact:06.12.21.29.47 La situation des risques auxquels ce bien est exposé est consultable sur le site :https://www.georisques.gouv.fr

Tanit Immobilier
Annonce mise à jour le 20/11/2025
Proposée par Tanit Immobilier 20/11/2025
9
Appartement, 43,01 m²

269 500 € 6 266 €/m²
Appartement • 43,01 m² • Meublé • 2 pièces • 1 chambre

Antibes
Juan-les-Pins (06160)

A VENDRE 2 PIECES JUAN LES PINS CENTRE VILLE DERNIER ETAGE CENTRE JUAN LES PINS Nous avons le plaisir de vous présenter un appartement 2 pièces de 43 m² au cœur de Juan les Pins. Cette résidence bénéficie d'un emplacement central prisé, à proximité des boutiques, restaurants et cafés. De plus, sa situation attrayante en fait un choix idéal pour la location étudiante, avec les universités et établissements d'enseignement à proximité. L'appartement offre un espace de vie lumineux, une cuisine moderne, une chambre avec sa salle d'eau. C'est un investissement locatif potentiellement rentable, bénéficiant d'une forte demande de logements étudiants tout au long de l'année. Ne manquez pas cette occasion d'investir dans un bien situé au cœur de Juan les Pins, offrant une résidence secondaire et un revenu locatif attrayant. La copropriété ne dispose pas d'ascenseur. Vendu avec parking dans la résidence. Pour plus d'informations et pour planifier une visite, contactez-nous dès maintenant. DPE : “Classe énergie : E / Classe climat : C” Copropriété : “Bien en copropriété : 15 lots – Charges annuelles : 1560 € – Pas de procédure en cours” « Les informations sur les risques auxquels ce bien est exposé sont disponibles sur le site Géorisques : georisques.gouv.fr »

Tanit Immobilier
Annonce publiée le 06/03/2025 - mise à jour 20/11/2025
Proposée par Tanit Immobilier 06/03/2025 - mise à jour 20/11/2025
17
Appartement, 54,18 m²

349 900 € 6 458 €/m²
Appartement • 54,18 m² • 2 pièces • 1 chambre

Antibes
Juan-les-Pins (06160)

À Vendre – Appartement 2 Pièces de Standing – Résidence Mas de Tanit à Juan-les-Pins Idéalement situé au cœur du quartier résidentiel de Juan-les-Pins, cet appartement 2 pièces de 54 m² (loi Carrez) vous offre un cadre de vie exceptionnel. À seulement 300 m des commerces et 600 m des plages, il se trouve au sein d’une résidence haut de gamme avec un parc paysager de 26 000 m² et une piscine extérieure ouverte en saison. Un appartement lumineux et bien agencé Situé au 5ᵉ étage sur 6 avec ascenseur, cet appartement comprend : ✅ Entrée avec couloir ✅ Séjour – salle à manger ouvrant sur une terrasse de 17 m² ✅ Cuisine indépendante entièrement équipée (réfrigérateur, lave-vaisselle, lave-linge, plaques à induction, hotte aspirante) ✅ Une chambre avec penderie, également ouverte sur la terrasse ✅ Salle d’eau moderne ✅ Toilettes indépendantes Prestations & Atouts supplémentaires ✔️ Résidence sécurisée et verdoyante ✔️ Vue dégagée depuis la terrasse ✔️ Cave en sous-sol ✔️ Garage en sous-sol possible dans la residence. Localisation idéale 📍 Antibes à 3 km | Cannes à 9,5 km | Aéroport de Nice-Côte d’Azur à 20 km Un bien rare dans un cadre recherché, idéal en résidence principale, secondaire ou investissement locatif. DPE : “Classe énergie : C / Classe climat : C” Copropriété : “Bien en copropriété : 1742 lots – Charges annuelles : 2400 € – Pas de procédure en cours” « Les informations sur les risques auxquels ce bien est exposé sont disponibles sur le site Géorisques : georisques.gouv.fr »