Acheter un appartement 2 pièces à Gentilly (94250)

Modifier ma recherche
20 annonces
Evelyne-Blanche Kengoua - iad
Annonce publiée le 04/07/2025 - mise à jour 25/11/2025
Proposée par Evelyne-Blanche Kengoua - iad 04/07/2025 - mise à jour 25/11/2025
10
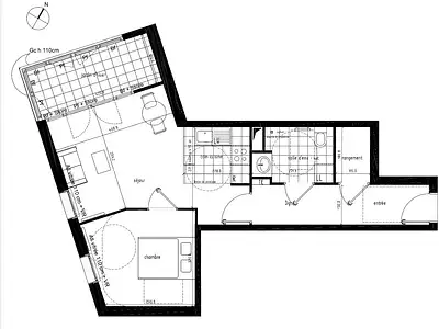
Appartement, 37 m²

Prix en baisse 266 000 € 7 189 €/m²
Appartement • 37 m² • 2 pièces • 1 chambre

Gentilly (94250)

iad France - Evelyne-Blanche Kengoua vous propose: RER B 5 à min à partir de pied, Bus à 2 min à pied TRAM T3A et Métro 14 à 15 min à pieds. Café, restaurants, mairie centre ville avec les commerces, école, marché à proximité. Bel appartement lumineux agréable, haut de plafond avec une chambre, , dans une petite copropriété, idéalement placé en hypercentre. A 5 minutes de la station RER B Gentilly, desservi par les lignes de bus 125 et autres, ce bien est situé à proximité de l'hôtel de ville, de tous commerces. - au 2ème étage agréable séjour avec cuisine à l'américaine équipée. - cave, une salle d'eau Opportunité à saisir pour un jeune couple ou pour un premier achat. La presente annonce immobiliere vise 2 lots situés dans une copropriété de 12 lots au total et ne faisant l'objet d'aucune procédure en cours citée à l'article L. 721-1 du code de la construction et de l'habitation. Montant moyen mensuel de charges déclaré par le vendeur : 56.67€ par mois (soit 680 € annuel). Honoraires d'agence à la charge du vendeur. Information d'affichage énergétique sur ce bien : classe ENERGIE F indice 369 et classe CLIMAT C indice 12. Les informations sur les risques auxquels ce bien est exposé, y compris l'obligation légale de débroussaillement, sont disponibles sur le site Géorisques : http://www.georisques.gouv.fr. La présente annonce immobilière a été rédigée sous la responsabilité éditoriale de Mme Evelyne-Blanche Kengoua mandataire indépendant en immobilier (sans détention de fonds), agent commercial de la SAS I@D France immatriculé au RSAC de CRETEIL sous le numéro 842152050, titulaire de la carte de démarchage immobilier pour le compte de la société I@D France SAS.

Agent immobilier ?
Diffusez GRATUITEMENT toutes vos annonces sur Superimmo.com
Cabinet Favreau
Annonce publiée le 01/10/2025 - mise à jour 17/10/2025
Proposée par Cabinet Favreau 01/10/2025 - mise à jour 17/10/2025
4
Appartement, 42,12 m²

204 000 € 4 843 €/m²
Appartement • 42,12 m² • 2 pièces • 1 chambre

Gentilly (94250)

94250 GENTILLY - APPARTEMENT 2 PIECES - 42.12M² - CENTRE-VILLE Le Cabinet Favreau vous présente à la vente cet appartement 2 pièces à rénover dans une petite copropriété située en plein centre-ville de Gentilly vous permettant de profiter de la proximité des écoles commerces et transports au quotidien. Vous ouvrirez la porte sur une entrée desservant plusieurs pièces : un salon, une cuisine, une salle d'eau avec WC, un débarras facilitant le stockage ainsi qu'une chambre. Une cave vient compléter ce bien. Excellente opportunité pour un premier achat, des travaux de rénovation seront nécessaires afin d'aménager cet appartement selon vos goûts et envies. Organisez votre visite au 01 47 40 15 01. (7.37 % honoraires TTC à la charge de l'acquéreur.) Copropriété de 41 lots - dont 38 lots habitation. (). Charges annuelles : 1401.48 euros. Stephanie GUERIN (EI) Agent Commercial - Numéro RSAC : - .

Cost Immobilier - Ternes
Annonce publiée le 24/04/2025
Proposée par Cost Immobilier - Ternes 24/04/2025
1
Appartement, 47 m²

320 000 € 6 809 €/m²
Appartement • 47 m² • 2 pièces • 1 chambre

Gentilly (94250)

Gentilly - Quartier Reine Blanche Dans un immeuble récent de 2016, COST immobilier vous propose un 2 pièces avec un jardin d'hiver. L'appartement est composé d'une entrée avec rangement, d'un séjour donnant sur le jardin d'hiver, d'une cuisine ouverte aménagée et équipée, d'une chambre et d'une salle d'eau avec WC. L'appartement est en bon état, lumineux et au calme. L'appartement est vendu loué : 958€/ mois hors charge + 12€/ mois de provision de charge. Honoraires à la charge du vendeur. Dans une copropriété de 60 lots. Aucune procédure n'est en cours. DPE en cours. Les informations sur les risques auxquels ce bien est exposé sont disponibles sur le site Géorisques : georisques.gouv.fr.

Loft App'Art & Co
Annonce publiée le 03/10/2025 - mise à jour 28/10/2025
Proposée par Loft App'Art & Co 03/10/2025 - mise à jour 28/10/2025
9
Appartement, 46,23 m²

330 000 € 7 138 €/m²
Appartement • 46,23 m² • Meublé • 2 pièces • 1 chambre

Gentilly (94250)

Vente interactive : les offres des participants, après visite du bien et étude du dossier, seront reçues sur la plateforme SQUARIMO jusqu'au 7 juillet 2023 à 18h. Le prix de départ est de 220 000 euros. Les offres faites sur SQUARIMO ne constituent pas des offres fermes et définitives au sens de l'article 1114 du Code Civil, mais des SIMPLES INTENTIONS D'ACHAT. Après entente sur le prix de vente final, vendeur et proposant retenu restent libres de continuer ou non le processus de vente jusqu'à la signature de la promesse de vente, rédigée par un notaire. En savoir plus sur le site Le Bien : A 3 mn du RER B Gentilly, rue des Champs Elysées, dans quartier résidentiel. Dans un immeuble très bien géré, ayant voté la ravalement avec isolation thermique et la réfection-étanchéité du toit terrasse, ENTIEREMENT A LA CHARGE DU VENDEUR (coût total 600 000 €, sa quote-part 20 000 €), avec aussi chaudière centrale au gaz neuve (cout total 200 000 €). Joli 2 pièces au plan optimisé, sans perte de surface, d'une surface Carrez de 46,23 avec grand salon et cuisine américaine (29 m²), entièrement équipée, grandes et larges fenêtres en double vitrage, apportant beaucoup de lumière, un WC séparé, une chambre spacieuse, et une salle d'eau. Possibilité d'exercer profession libérale. Au sein d'une copropriété active et bien suivie, avec nouvelle chaudière centrale à gaz, plus économe et efficace (coût 200 000 € pour la copropriété), interphone et jardin intérieur. + Cave. Honoraires à la charge du vendeur. Dans une copropriété de 50 lots. Quote-part moyenne du budget prévisionnel 2 096 €/an. Aucune procédure n'est en cours. Classe énergie F, Classe climat F Logement à consommation énergétique excessive. Montant moyen estimé des dépenses annuelles d'énergie pour un usage standard, établi à partir des prix de l'énergie de l'année 2021 : entre 810.00 et 1140.00 €. Les informations sur les risques auxquels ce bien est exposé sont disponibles sur le site Géorisques : georisques.gouv.fr. Votre conseiller Loft App'Art & Co : Fondateur - Viet Nam HOANG Carte T CPI75012021000000813 RCP 500643218

Côté Particuliers Boulogne-Billancourt Centre
Annonce publiée le 14/03/2025 - mise à jour 02/10/2025
Proposée par Côté Particuliers Boulogne-Billancourt Centre 14/03/2025 - mise à jour 02/10/2025
7
Appartement, 37 m²

269 600 € 7 286 €/m²
Appartement • 37 m² • 2 pièces • 1 chambre

Gentilly (94250)

Côté Particuliers vous propose un appartement 2 pièces traversant de 37m², au 2ème et dernier étage d'une petite copropriété des années 1940, offrant un séjour avec une cuisine US exposée ouest, une chambre avec placard et une SdB avec WC. Un cellier sur le palier complète ce bien. Notre avis: vous serez séduits par la luminosité double exposition (ouest-est), par son agencement sans perte d'espace, par sa localisation à 5 minutes à pied du RER B station GENTILLY et des commerces de proximite ainsi que le calme absolu. Idéal pour un primo-accédant ou un investissement locatif. Contactez Florence au 06 61 71 54 02 (4.90 % honoraires TTC à la charge de l'acquéreur.) Copropriété de 4 lots (). Charges annuelles : 720 euros.