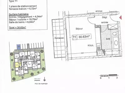
Nathalie PINON vous propose ce bien : Appartement au 2ème étage de 43m2 dans quartier Ravezies ( Cours du Médoc)à Bordeaux Immeubles de 9 étages des années 1980 proche des moyens de...
Nathalie Pinon
CONTACTEZ-MOI
Nathalie PINON - MeilleursBiens.com
Nathalie Pinon
CONTACTEZ-MOI
Nathalie PINON - MeilleursBiens.com
Nathalie Pinon, (33)
N'hésitez pas à me contacter au 0682452846 je me ferai un plaisir de vous recevoir et de discuter de votre projet avec vous.
Les biens que je propose à la vente (4)
147 700 €
3 435 €/m²
22/10/2025
Achat
•
Appartement • 43 m² • 2 pièces • 1 chambre
Bordeaux (33300)
667 000 €
11 702 €/m²
17/07/2025
Achat
•
Maison • 57 m² • 4 pièces • 2 chambres • Ter. 300 m²
Cap Ferret (33970)
Nathalie PINON vous propose ce bien : A 200 mètre de la plage de l'horizon au Cap Ferret. Petit appartement de 56m2 à remettre à votre goût; comprenant une entrée sur pièce de vie avec...
515 000 €
8 306 €/m²
12/05/2025
Achat
•
Maison • 62 m² • Ter. 2 008 m²
Arès (33740)
Nathalie PINON vous propose ce bien : Maison proche du centre ville d'Arès à remettre au goût du jour en 2ème ligne. Elle se compose d'une entrée, un salon/séjour avec climatisation,...
165 600 €
2 957 €/m²
16/07/2025
Achat
•
Appartement • 56 m² • 3 pièces • 2 chambres
Bruges (33520)
Nathalie PINON vous propose ce bien : À vendre : Appartement T3 à Bruges (33520) – 165 600 € Découvrez ce charmant T3 situé au cœur de Bruges, une ville dynamique et recherchée de la...
Les biens que j'ai vendu (2)
Informations légales
Siren : 528970635