01 80 49 34 06 Appelez de la part de Superimmo.com

Vos informations sont transmises directement à l'agence afin qu'elle traite votre demande. Voir notre charte des données personnelles.

Contacter par email
Description

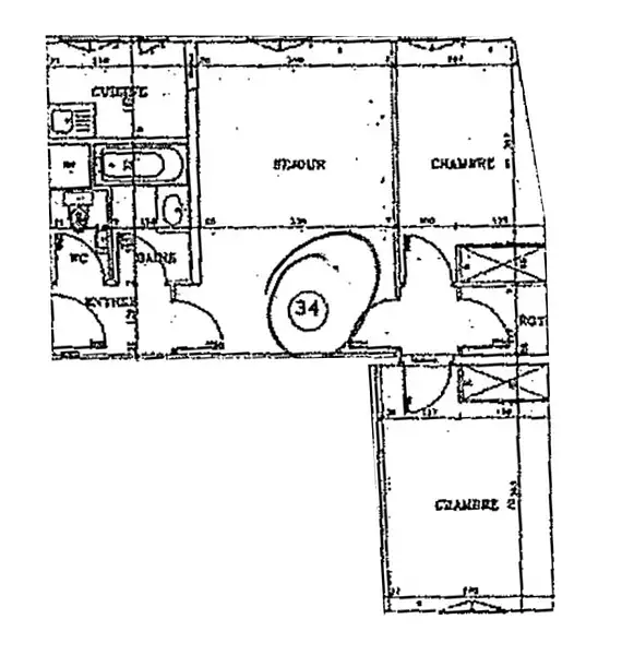
Situé au cœur de Malakoff, à seulement 720 m de la station "Mairie de Montrouge" (ligne 4) et 6 min à pied du métro "Malakoff - Plateau de Vanves" (ligne 13), cet appartement de 57,48 m² au 1er étage d'un immeuble ancien offre une opportunité rare pour les investisseurs.
Caractéristiques principales :
3 pièces lumineuses : pièce de vie de 13,57 m², deux chambres de 12,5 m², traversant (sud-est/nord-ouest).
Charme de l'ancien : hauteur sous plafond de 2,70 m, idéal pour une rénovation personnalisée.
Disposition fonctionnelle : entrée, cuisine indépendante, salle de bain, couloir desservant toutes les pièces.
Annexes : cave pour un rangement supplémentaire.
Chauffage : individuel électrique (DPE en cours d'actualisation).
Situation locative :
Loué sous bail Loi 1948 à une locataire de 90 ans, avec un loyer de 270 €/mois (3 240 €/an). Ce bail offre une décote significative sur le prix de vente, rendant cet investissement particulièrement attractif. À terme, le bien pourra être libéré ou reloué à un loyer de marché, augmentant sa rentabilité.
Prix et charges :
Prix de vente : 291 500 € (honoraires inclus)
Charges de copropriété : 1 732 €/an.
Comparaison : Ventes récentes d'appartements de même surface dans le même immeuble : 397 500 € (2020) et 349 500 € (2018).
Le quartier :
Idéalement situé dans un quartier résidentiel dynamique, à 5 min à pied de l'hypercentre de Malakoff (mairie, marché, commerces). Proximité immédiate de commodités (pharmacie, restaurants, supermarchés) et du square de Verdun. Accès rapide à Paris grâce aux lignes 4 et 13 du métro et au bus 126. Malakoff combine calme et proximité avec la capitale, parfait pour un investissement locatif pérenne.
Pourquoi investir ici ?
Décote liée au bail Loi 1948 : un prix attractif pour un bien de qualité.
Potentiel de valorisation : les travaux de rénovation augmenteront sensiblement la valeur du bien.
Emplacement stratégique : proche de Paris, bien desservi, quartier en développement.
Contactez nous pour une visite ou plus d'informations ! Diagnostics disponibles.
Maître Fabien ESCAVABAJA - Avocat associé - SMITH D'ORIA
91, rue du Faubourg Saint-Honoré Paris 75008 - France
Mail : /
Standard : +33 (0)1 80 49 34 08

Publiée le 24/04/2025 - maj le 26/11/2025 - Réf. agence : A5758 - Réf Superimmo : ANVXYDV0M
Vous rencontrez un problème sur le site ?
Merci de nous signaler le problème
Caractérisques
Prix de vente : 291 500 € Prix en baissePrix au m² : 5 114 € / m²
57 m² - 3 pièces - 2 chambres
Intéressez par ce type de bien ?
Pour recevoir par email les annonces similaires
CRÉER UNE ALERTE
Historique des prix
17 mai 2025

Baisse de 5%

291 500 €
24 avril 2025
307 000 €
Localisation
DEMANDER L’ADRESSE
Cette annonce vous est proposée par :
01 80 49 34 06 Appelez de la part de Superimmo.com

Vos informations sont transmises directement à l'agence afin qu'elle traite votre demande. Voir notre charte des données personnelles.

Autres recherches

tous les appartements de 3 pièces à Malakoff