01 75 50 14 87 Appelez de la part de Superimmo.com

Vos informations sont transmises directement à l'agence afin qu'elle traite votre demande. Voir notre charte des données personnelles.

Contacter par email
Description

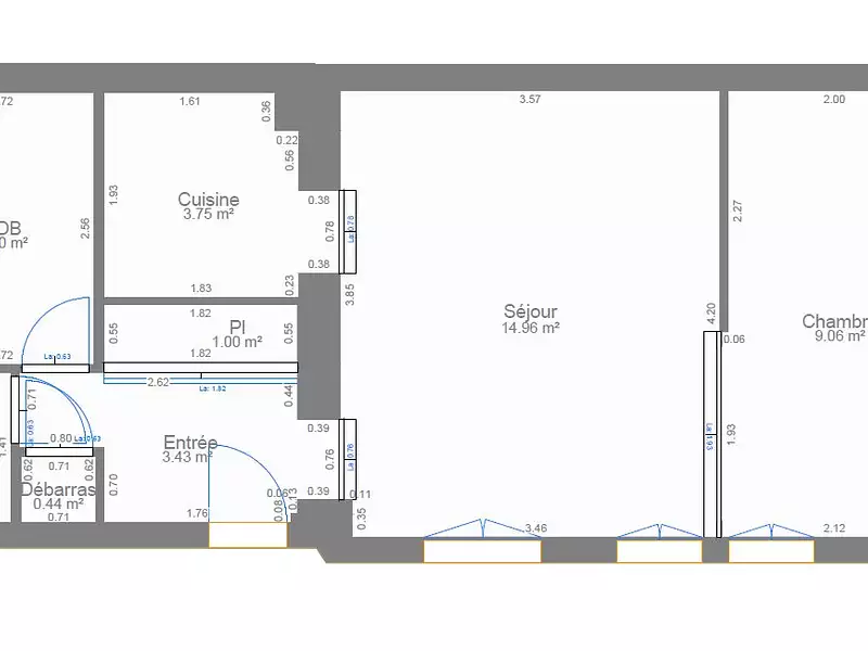
POISSONNIERE - RICHER : Dans un immeuble ancien récemment ravalé et aux parties communes rénovées, un appartement deux pièces situé en rez-de-chaussée sur cour d'une surface de 38.35 m² loi Carrez. Il est composé d'une entrée avec des rangements, séjour, cuisine séparée, chambre, salle de bains et wc indépendants. Professions libérales autorisées. Une cave complète ce bien.
Dans une copropriété de 35 lots. Quote-part moyenne du budget prévisionnel 1 008 €/an. Aucune procédure n'est en cours. Classe énergie E, Classe climat B Montant estimé des dépenses annuelles d'énergie pour un usage standard : entre 840.00 € et 1190.00 € sur les années 2021, 2022 et 2023 (abonnements compris). Les informations sur les risques auxquels ce bien est exposé sont disponibles sur le site Géorisques : georisques.gouv.fr.

Publiée le 02/07/2025 - maj le 03/09/2025 - Réf. agence : VA3090-COSTIERIMMO - Réf Superimmo : ANVXYY39B
Vous rencontrez un problème sur le site ?
Merci de nous signaler le problème
Caractérisques
Prix de vente : 346 000 €Prix au m² : 9 022 € / m²
Charges prévisionnelles : 1 008 € / an

Barème d’honoraires : voir le barème

38,35 m² - 2 pièces - 1 chambreRez-de-chaussée
CaveAnnée de construction : 1900
Chauffage individuel électriqueCuisine séparée
Séjour de 15 m²1 salle de bain
Wc séparé - 1 wcCopropriété de 35 lots
Bilan énergétique Étiquette climat-énergie : E

Consommation d'énergie

Consommation
273 kWh/m².an
Logement très performantLogement extrêmement consommateur d'énergie

Émission de gaz à effet de serre

Peu d’émissions de CO2
A
B
C
D
E
F
G
8 kgeqCO2/m²/an
Émissions de CO2 très importante

Montant estimé des dépenses annuelles d’énergie pour un usage standard (année(s) de référence : 2021)
Minimum : 840 € / an
Maximum : 1 190 € / an

Diagnostics réalisés le 27/05/2025.

Intéressez par ce type de bien ?
Pour recevoir par email les annonces similaires
CRÉER UNE ALERTE
Localisation
DEMANDER L’ADRESSE
Cette annonce vous est proposée par :
01 75 50 14 87 Appelez de la part de Superimmo.com

Vos informations sont transmises directement à l'agence afin qu'elle traite votre demande. Voir notre charte des données personnelles.

Autres recherches

tous les appartements de 2 pièces à Paris 9ème