04 67 27 15 55 Appelez de la part de Superimmo.com

Vos informations sont transmises directement à l'agence afin qu'elle traite votre demande. Voir notre charte des données personnelles.

Contacter par email
Description

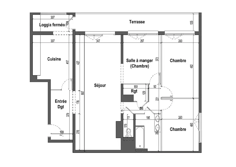
Baisse de prix !! t3/t4 en étage élevé + parking exclusivite !! votre agence montpellier ouest vous présente cet appartement dans une résidence recherchée proche du parc montcalm et de la cité créative (15min à pied). véritable village dans la ville, le quartier vous propose un grand nombre de services tout en restant connecté au coeur vivant de l'écusson, à pied, en vélo ou en tramway. desservi par ascenseur, le logement est positionné au 7ème étage et bénéficie d'une vue dégagée et agréable via son balcon de 13m². l'appartement est lumineux. il se compose : d'une grande entrée, d'un salon, d'une salle à manger en prolongement de l'espace à vivre, d'une cuisine séparée à rénover, d'un coin nuit desservant deux chambres, une salle de bain, d'un dressing/cellier et d'un wc séparé. ce logement est également vendu avec une place de stationnement extérieur et le bâtiment dispose d'un local à vélos sécurisé. des travaux sont à prévoir pour ce bien mais c'est une belle opportunité pour le secteur d'acquérir un logement avec de beaux volumes. possibilité d'aménager facilement une 3ème chambre à la place de la salle à manger. a propos de la copropriété : nombre de lots : 304 - pas de procédure en cours - charges : 799euros/trim. besoin de plus d'information ? une visite ? contactez boris barbey au 06.99.63.61.29 -

Publiée le 16/09/2025 - maj le 05/12/2025 - Réf. agence : 86219162 - Réf Superimmo : ANVXZGOVS
Vous rencontrez un problème sur le site ?
Merci de nous signaler le problème
Caractérisques
Prix de vente : 191 000 € Prix en baissePrix au m² : 1 910 € / m²

Honoraires à la charge du vendeur. Barème d’honoraires : voir le barème

100 m² - 4 pièces7ème étage
Bilan énergétique Étiquette climat-énergie : D

Consommation d'énergie

Consommation
181 kWh/m².an
Logement très performantLogement extrêmement consommateur d'énergie

Émission de gaz à effet de serre

Peu d’émissions de CO2
A
B
C
D
E
F
G
13 kgeqCO2/m²/an
Émissions de CO2 très importante
Intéressez par ce type de bien ?
Pour recevoir par email les annonces similaires
CRÉER UNE ALERTE
Historique des prix
7 octobre 2025

Baisse de 4%

191 000 €
16 septembre 2025
199 000 €
Localisation
DEMANDER L’ADRESSE
Cette annonce vous est proposée par :
103 avis clients
04 67 27 15 55 Appelez de la part de Superimmo.com

Vos informations sont transmises directement à l'agence afin qu'elle traite votre demande. Voir notre charte des données personnelles.

Autres recherches

tous les appartements à rénover à Montpellier - tous les appartements de 4 pièces à Montpellier