Réf 2493: A 2 pas du centre-ville de Pont-de-Roide, dans rue peu passante, cette maison rénovée se compose d'une entrée, une pièce de vie avec cuisine récente équipée et aménagée, et un...
SUISSE IMMO MAICHE
25120 Maîche
SUISSE IMMO MAICHE
25120 Maîche
Ventes (46)
Réf 2451: A Saint-Hippolyte, dans petite copropriété de 4 lots principaux, au 2ème et dernier étage, surface brute à aménager d'environ 47 m2 au sol (35m2 habitables). Elle se compose...
Réf 2386: Au Centre-ville de Saint-Hippolyte, agréable appartement de type 5 rénové, d'environ 135m2 (110m2 loi carrez), composé d'une entrée, une cuisine aménagée et équipée, d'un grand...
Maison type ferme à rénover sur 3063 m2 de terrain avec partie habitable de 215 m2. Possibilité de créer plusieurs parties habitation, grands espaces en grange et en écurie. Un double...
Réf 2386: Au Centre-ville de Saint-Hippolyte, agréable appartement de type 3 entièrement rénové, composé d'une entrée, une cuisine aménagée et équipée, d'un grand salon-séjour lumineux, 2...
Superbe maison de 162 m² habitables située à Charmoille, pleine de cachet et de caractère, édifiée sur un vaste terrain de 40 ares, offrant un cadre de vie paisible et...
Réf 2369: A Pont-de-Roide proche du centre-ville, Maison Mitoyenne en copropriété d'environ 72m2 habitables, composée au RDC d'une pièce de vie avec cuisine aménagée ouverte sur salle à...
Réf 2364: Dans petit village paisible proche de l'Isle-sur-le-Doubs, Maison à rénover composée d'une partie habitable de 142m2 et d'une partie dépendance avec écurie et grange de 115m2...
Réf 2340: A Saint Hippolyte, dans quartier calme, cette maison présente un fort potentiel avec ses 209m2 habitables, composée d'une entrée, une cuisine séparée, un spacieux et lumineux...
Secteur Belleherbe, Situé sur les premiers plateaux du Haut-Doubs au coeur de la forêt, à quelques kilomètres de la Suisse, ce gîte de groupe indépendant, très calme et agréable,...
A Vyt-les-belvoir, maison d'environ 150m2 habitables sur 380m2 de terrain. Le RDC est composé d'un appartement avec 2 chambres, une salle de bain, une cuisine et une spacieuse pièce de...
Suisse Immo vous propose un appartement en duplex avec terrasse, plein centre ville. Un hall d'entrée avec une buanderie et un escalier qui dessert une cuisine, un wc, un espace de...
Réf 1839: A quelques minutes de St Hippolyte, idéalement situé au centre du village, ce bâtiment à vendre est un bar restaurant et offre de grandes pièces de vie, il est composé d'un Bar...
Jolie maison avec vue imprenable édifiée en 2023 sur un terrain de 11,34 ares, composée d'une cuisine, salon-séjour, 2 chambres, salle d'eau, WC, buanderie, garage ainsi que 50m² de...
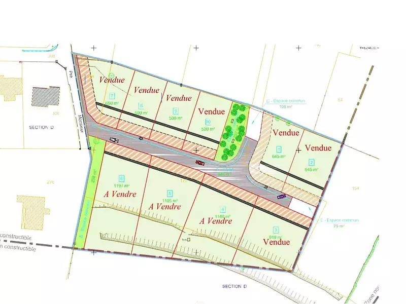
REF42969/1523 : Dans un lotissement en impasse, venez découvrir ce terrain viabilisé de 1140 m² ( lot n°4 sur le plan) idéalement situé en bordure de village avec vue imprenable . Plus...
Réf 2114: Proche Centre-Ville de Pont-de-Roide-Vermondans, cette maison possède 4 niveaux d'environ 100m2 chacun, dont un sous-sol semi-enterré, 1 rez-de-chaussé, un premier étage et des...
REF 335/2384DJ : Edifié sur un terrain de 13,63 ares à 10 minutes de Maiche, cet immeuble en monopropriété dont la toiture, les façades et l'électricité ont été rénovés comprend : -...
REF 334/2433DJ : Située en plein coeur du centre ville de Maiche, venez découvrir cette belle surface brute en duplex de 74.77m2, avec grande hauteur sous plafond située au 2ème et...
Nous vous proposons cette charmante maison d'une surface habitable de 70m² comprenant : Une cuisine, salle d'eau avec WC, salon et deux chambres spacieuses. Ainsi qu'une grange de plus de...
Réf 1907: Damprichard, spacieuse maison individuelle d'environ 317m2 habitables, avec 7 chambres, 4 salles d'eau et une salle de bain, ce bien est idéal pour une grande famille, ou une...
REF42970/1524 : Dans un lotissement en impasse, venez découvrir ce terrain viabilisé de 1105 m² ( lot n°5 sur le plan) idéalement situé en bordure de village avec vue imprenable . Plus...