07 78 40 03 12 Appelez de la part de Superimmo.com

Vos informations sont transmises directement à l'agence afin qu'elle traite votre demande. Voir notre charte des données personnelles.

Contacter par email
Description

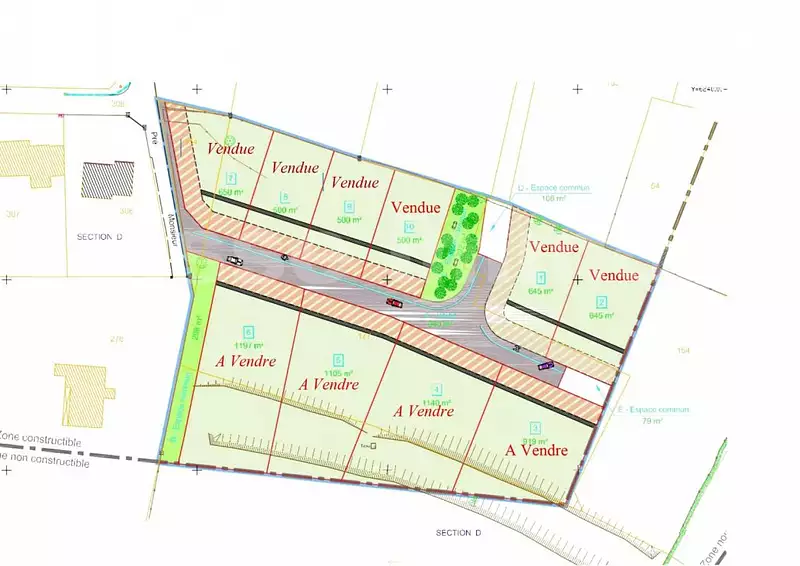
REF42970/1524 : Dans un lotissement en impasse, venez découvrir ce terrain viabilisé de 1105 m² ( lot n°5 sur le plan) idéalement situé en bordure de village avec vue imprenable . Plus que 3 lots disponibles, à découvrir sans tarder !
Contactez Pauline JOUILLEROT au 07.78.40.03.12.
Pauline JOUILLEROT (EI) Agent Commercial - Numéro RSAC : 953 724 796 - .

Maj le 05/12/2025 - Réf. agence : 42970 - Réf Superimmo : ANVXTT4JB
Vous rencontrez un problème sur le site ?
Merci de nous signaler le problème
Caractérisques
Prix de vente : 43 000 € Prix en baissePrix au m² : 39 € / m²

Honoraires à la charge du vendeur. Barème d’honoraires : voir le barème

1 105 m²
Intéressez par ce type de bien ?
Pour recevoir par email les annonces similaires
CRÉER UNE ALERTE
Localisation
DEMANDER L’ADRESSE
Cette annonce vous est proposée par :
07 78 40 03 12 Appelez de la part de Superimmo.com

Vos informations sont transmises directement à l'agence afin qu'elle traite votre demande. Voir notre charte des données personnelles.