Ventes immobilières 5 pièces à Bron (69500)

Modifier ma recherche
30 annonces
REGIE LESCUYER ET ASSOCIES - SL
Annonce publiée le 28/05/2025 - mise à jour 08/11/2025
Proposée par REGIE LESCUYER ET ASSOCIES - SL 28/05/2025 - mise à jour 08/11/2025
13
Appartement, 99,42 m²

Prix en baisse 270 000 € 2 716 €/m²
Appartement • 99,42 m² • 5 pièces • 4 chambres

Bron (69500)

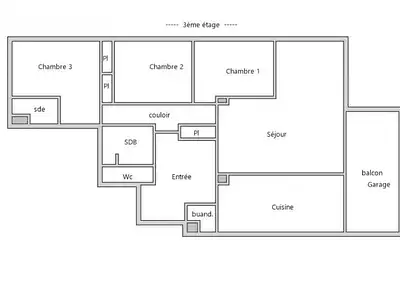
AVENUE DU 8 mai 1945, dans une résidence arborée datant de 1969 bien entretenue, au calme, appartement de type T5 d'une surface de 99,42m2 au 3éme étage sur 4 avec ascenseur. Traversant. 3 chambres + bureau, grand séjour de 26m2, cuisine séparée et intégrée, 2 salles d'eau et hall d'entrée. Très bon état. Aucuns travaux à prévoir. DPE D. En annexes, un balcon de 11m2, une cave et garage fermé en extérieur dans la copropriété . Charges 300 euros/mois (chauffage + eau ). Pour visiter, merci de contacter Guillaume CORDIER au 0663065750, REGIE LESCUYER et ASSOCIES, 0663065750, 11 Place Maréchal Lyautey 69006 LYON.

Agent immobilier ?
Diffusez GRATUITEMENT toutes vos annonces sur Superimmo.com
imkiz, l'agence immobilière 100% digitale
Annonce publiée le 20/11/2025 - mise à jour 02/12/2025
Proposée par imkiz, l'agence immobilière 100% digitale 20/11/2025 - mise à jour 02/12/2025
14
Maison, 104 m²

435 000 € 4 183 €/m²
Maison • 104 m² • 5 pièces • 4 chambres

Bron (69500)

Au sein d’une charmante copropriété calme et agréable, belle maison de ville 5 pièces de 101m² avec jardin de 35m². Cette maison mitoyenne (un côté) vous séduira par la qualité de ses équipements, sa fonctionnalité et sa tranquillité. Au rez-de-chaussée se trouvent : - une 1ère terrasse de 15m² ainsi qu'un hall de 4,5m² et une entrée de 3m² avec placard mural, - une vaste pièce de vie de 42m2 composée d’un grand séjour-salle à manger et d’une cuisine ouverte entièrement équipée avec plans de travail et table en quartz, Le tout donnant sur une terrasse de 35,6m² en composite avec balisage lumineux et un joli jardin fleuri exposé Nord et équipé d'un robinet d'eau chaude et froide, - une buanderie et des WC indépendants complète ce niveau. Au 1er étage, vous trouverez : - une chambre parentale de 11m2 disposant d’une salle d’eau privative, - 3 chambres de 10,4m² à 11,15m², chacune équipée d'un placard mural, - une salle de bain, - un second WC indépendant Côté équipements, un double vitrage et un chauffage individuel au gaz naturel vous garantissent une température idéale tout au long de l’année. (Contrat d’entretien chaudière compris dans les charges) Côté stationnement, un box fermé ainsi qu’une place de parking, tous deux situés en sous-sol, vous permettent de stationner vos véhicules en toute sécurité. De plus, le stationnement est aisé dans la rue, vos convives n’auront donc aucune difficulté à se garer Proche de toutes commodités et transports : trams T2 et T5, centre-ville de Bron et tout commerces à 5 minutes à pieds - École, collège, 2 parcs (Parilly et les Essarts) à 10 minutes à pieds etc.. Cette maison familiale par excellence est à visiter sans tarder ! Présenté par imkiz, l'agence en ligne 100% proche de vous. Honoraires inclus dans le prix de vente, dès 2490 €

Léonore Pillon - efficity
Annonce publiée le 21/11/2025
Proposée par Léonore Pillon - efficity 21/11/2025
13
Maison, 120 m²

250 000 € 2 083 €/m²
Maison • 120 m² • 5 pièces • 4 chambres • Ter. 390 m²

Bron (69500)

69120 VAULX-EN-VELIN / SEPT CHEMINS – MAISON ANNÉES 30 – 72 M² CARREZ / ENV. 120 M² UTILES – 2 À 5 CHAMBRES POSSIBLES – EXPOSITION EST/OUEST - AVEC TRAVAUX // VISITE VIRTUELLE ACCESSIBLE A VISIONNER AVANT LA PRISE DE RDV - TRAVAUX DE RENOVATION A PREVOIR // Vous rêvez de devenir propriétaire d'une maison individuelle ? Cette maison pourrait bien être votre chance de concrétiser ce projet de vie ! Léonore Pillon et Efficity, l'agence qui estime votre bien en ligne, vous propose en exclusivité cette charmante maison des années 30, située rue Roger Salengro, à la limite de Bron et Vaulx-en-Velin, tout proche de la route de Genas et du centre commercial Carrefour Sept Chemins. Vous serez immédiatement séduits par le charme de l'ancien : belle hauteur sous plafond, grandes ouvertures, placards d'époque… Et surtout par le potentiel d'aménagement qu'offre ce bien, idéal pour un projet de rénovation personnalisé. Un beau potentiel à révéler pour les amateurs de travaux : •Maison de 72 m² Carrez élevée sur une grande cave de 32 m², •Un garage de 50 m² pouvant être divisé pour agrandir l'espace de vie (environ 30m2 de surface habitable et 20m2 de garage), •Des combles aménageables (env. 30 m² au sol) dont une petite partie en surface carrez avec plus de 1,80 m de hauteur, •Actuellement composée de 2 chambres, la maison peut être réagencée jusqu'à 4 ou 5 chambres, sans devoir agrandir ou demande de permis de construire, •Surface utile après travaux estimée à env. 120 m² (aujourd'hui 72m2 habitables) •Dans le jardin, une cuisine d'été fermée avec salle d'eau vous permettra de profiter pleinement des extérieurs ou d'être modifiée en salle d'eau donnant sur la chambre parentale. Des travaux importants de rénovation intérieure sont à prévoir, mais aussi une belle opportunité de créer un cocon à votre image. Le gros œuvre semble sain, la base est là – à vous d'écrire la suite ! •A moderniser : électricité, chauffage au fuel, cuisine, salle de bains, sols, murs, porte d'entrée et de garage, etc. •Les fenêtres en double vitrage sont récentes et équipées de volets roulants à l'étage. •Façade en bon état. Prévoir une enveloppe minimale de 50 000 € de travaux, selon le projet envisagé et votre implication personnelle dans le projet. Le confort de vie : le tout est complété par un petit jardin, parfait pour profiter des beaux jours, jardiner ou installer un espace détente. •Parcelle traversante de 390 m², exposée est-ouest, •Jardin au calme à l'ouest, en fond d'impasse privative, le jardin est inaccessible depuis la rue pour plus de tranquillité •Possibilité de stationner un ou deux véhicules dans la cour à l'avant, en plus du garage. Commodités accessibles à pied : Centre commercial Carrefour Sept Chemins face à la maison, commerces de proximité, boulangerie, restauration, écoles et transports (Lignes de Bus 24, 25, 28, 52, 68, C15, notamment raccordées à Vaulx en Velin la Soie métro A et tramway). Ce bien s'adresse particulièrement à : •Des primo-accédants cherchant à accéder à la propriété avec travaux sans compromis sur le charme. •Des artisans ou bricoleurs souhaitant un projet sur mesure •Des marchands de biens à la recherche d'une opportunité dans un secteur en mutation. Prix de vente : 250 000 € FAI (plus enveloppe travaux à prévoir au moins 50 000€ et plus pour aménager en 4 ou 5 chambres) Taxe foncière : 988€/ an Disponible pour une visite, n'hésitez pas à me contacter pour en parler ! Visite uniquement sur présentation d'une simulation bancaire. Les informations sur les risques auxquels ce bien est exposé sont disponibles sur le site Georisque : georisques. gouv. fr Léonore Pillon - EI - est Agent Commercial mandataire en immobilier, immatriculé au Registre Spécial des Agents Commerciaux du Tribunal de Commerce de Lyon 2e Arrondissement sous le n°920346194. Siège social du mandant : effiCity, 48 avenue de Villiers - 75017 PARIS - Société par Actions Simplifiée, société au capital de 132 373,05 euros, immatriculée au RCS Paris 497 617 746 et titulaire de la Carte professionnelle CPI 7501 2015 000 002 025 - CCI Paris IDF - Caisse de Garantie : GALIAN Assurances 89 rue de la Boétie 75008 Paris

Carine CHAINTREUIL - SAFTI
Annonce publiée le 27/06/2025 - mise à jour 20/09/2025
Proposée par Carine CHAINTREUIL - SAFTI 27/06/2025 - mise à jour 20/09/2025
9
Appartement, 121 m²

Prix en baisse 268 000 € 2 215 €/m²
Appartement • 121 m² • 5 pièces • 4 chambres

Bron (69500)

À proximité immédiate du Tram T5, du futur BHNS, du futur Tram T8 et du lycée Jean-Paul Sartre, venez découvrir ce spacieux T5 de 121 m² situé au premier étage d'une petite copropriété de trois logements, dans un secteur calme et recherché. Laissez-vous séduire par un vaste séjour de 37 m² baigné de lumière, une cuisine équipée sous une véranda conviviale de plus de 12 m², et un agencement idéal pour la vie de famille. Côté nuit, vous disposez de quatre chambres confortables, dont deux communicantes, d'une salle de bains, d'une salle d'eau et de WC séparés. Traversant, lumineux et bien agencé, cet appartement offre également un jardin privatif de 90 m² avec un coin buanderie ou cuisine d'été, parfait pour les beaux jours. Un garage et une cave viennent compléter ce bien rare sur le secteur. Possibilité de créer deux logements indépendants pour répondre à un projet locatif, familial ou mixte. Visite virtuelle disponible sur demande. Une opportunité à visiter sans tarder, contactez-moi ! Le bien comprend 5 lots, et il est situé dans une copropriété de 8 lots (les charges courantes annuelles moyennes de copropriété sont de 506 € et le syndicat des copropriétaires ne fait pas l'objet d'une procédure citée à l'article L. 721-1 du code de la construction et de l'habitation). Les informations sur les risques auxquels ce bien est exposé sont disponibles sur le site Géorisques : www.georisques.gouv.fr Prix de vente : 268 000 € Honoraires charge vendeur Contactez votre conseiller SAFTI : Carine CHAINTREUIL, Tél. : 06 17 37 59 55, E-mail : - EI - Agent commercial immatriculé au RSAC de LYON sous le numéro 832 286 785 - SAFTI – CHAINTREUIL Carine, Conseiller indépendant

Human Immobilier Bron
Annonce publiée le 09/09/2025 - mise à jour 30/10/2025
Proposée par Human Immobilier Bron 09/09/2025 - mise à jour 30/10/2025
8
Appartement, 93,03 m²

171 000 € 1 838 €/m²
Appartement • 93,03 m² • 5 pièces • 4 chambres

Bron (69500)

Limite Villeurbanne. A proximité du tram T6 et de toutes les commodités, Appartement de type T5 comprenant un salon, quatre chambres , une cuisine indépendante et une salle de bains.Stationnement libre dans la résidence. Travaux à prévoir.

Côté Salvagny
Annonce publiée le 01/09/2025 - mise à jour 21/10/2025
Proposée par Côté Salvagny 01/09/2025 - mise à jour 21/10/2025
12
Appartement, 107 m²

260 000 € 2 430 €/m²
Appartement • 107 m² • 5 pièces • 4 chambres

Bron (69500)

Investissement Locatif : Rentabilité 8,9 % ! Cet appartement est une opportunité en or pour tout investisseur. Déjà loué en colocation, il vous offre une rentabilité brute immédiate de 8,9 %. Pas de temps mort, votre argent travaille tout de suite. Situé dans les derniers étages d'un immeuble bien entretenu avec ascenseur, ce 5 pièces de 107,5 m² est parfait pour la colocation. Il a été entièrement rénové avec goût et comprend un grand salon lumineux avec un balcon ; quatre chambres, dont une avec sa propre salle de douche ; une salle de bains et des WC séparés ; une cuisine fonctionnelle. Les locataires apprécient sa luminosité et ses volumes, ainsi que la vue dégagée sans vis-à-vis. L'appartement est vendu avec une cave et une place de parking. Un Emplacement Pratique. Le quartier est vivant et bien desservi : tous les commerces de proximité (boulangerie, pharmacie, etc.) ; de nombreuses lignes de bus (52, C15, 79, 24, 25, C17) et le tramway T5 (arrêt Lycée J.P. Sartre) C'est une affaire à ne pas manquer. Pour en savoir plus ou organiser une visite, contactez-nous ! Référence agence : 430

Loic Fernandez - efficity
Annonce publiée le 16/09/2025 - mise à jour 05/11/2025
Proposée par Loic Fernandez - efficity 16/09/2025 - mise à jour 05/11/2025
7
Appartement, 104 m²

Prix en baisse 249 900 € 2 403 €/m²
Appartement • 104 m² • 5 pièces • 3 chambres

Bron (69500)

69500 – BRON – APPARTEMENT T4/T5 – 3 CHAMBRES – BALCON – LUMINEUX – AU CALME – GARAGE – CAVE – STATIONNEMENT – ASCENSEUR Loïc FERNANDEZ et Efficity, sont ravis de vous présenter ce magnifique appartement T4, offrant une surface de 104m2 avec un balcon, situé à deux pas des commodités et des transports en commun, dans la commune de Bron. Ce superbe appartement se trouve au 1 rue Helene Boucher, au sein d'une copropriété calme et bien entretenu au 3ème étage sur 5 avec ascenseur, offrant un cadre de vie idéal pour une famille. Dès l'entrée, un grand hall dessert la pièce de vie principale, d'une superficie de plus de 40 m² qui bénéficie de grandes baies vitrées apportant une luminosité avec accès direct au balcon. La cuisine fermée, spacieuse et entièrement équipée vient compléter l'espace de vie. Côté nuit, l'appartement dispose de trois chambres, dont une suite parentale avec salle d'eau privative. Une deuxième salle de bain ainsi qu'un WC séparé complète le bien. La configuration du salon permet également la création d'une quatrième chambre pour répondre aux besoins des familles nombreuses ou pour un espace bureau. COTE RESIDENCE : - Un garage en sous-sol - 2 Places de stationnement privatif - Cave privative - Façade avec isolation par l'extérieur - Chauffage gaz de ville avec chaudière récente COTE APPARTEMENT : - Climatisation réversible (PAC) - Balcon de 9m2 - Huisseries PVC double vitrage - Cuisine entièrement équipée - Nombreux rangements COTE FINANCE : - DPE en C, garantissant confort thermique et économies d'énergie. - Taxe foncière : 1514euros/an - Charges : 481€/Trimestre (eau froide, chauffage, entretien des parties commune, fond travaux Alur, ascenseur et les espaces verts) COTE PRATIQUE : -A 200m de la Mosquée de Bron -Carrefour Vaulx en Velin à 1km -Tram T5 à 1km Pour plus d'informations et pour organiser une visite, veuillez me contacter du LUNDI AU DIMANCHE par téléphone au 06.71.73.76.66 ou par mail . Les informations sur les risques auxquels ce bien est exposé sont disponibles sur le site Georisque : georisques. gouv. fr Loic Fernandez - EI - est Agent Commercial mandataire en immobilier, immatriculé au Registre Spécial des Agents Commerciaux du Tribunal de Commerce de Bourg-en-Bresse sous le n°898127121. Siège social du mandant : effiCity, 48 avenue de Villiers - 75017 PARIS - Société par Actions Simplifiée, société au capital de 132 373,05 euros, immatriculée au RCS Paris 497 617 746 et titulaire de la Carte professionnelle CPI 7501 2015 000 002 025 - CCI Paris IDF - Caisse de Garantie : GALIAN Assurances 89 rue de la Boétie 75008 Paris

Karine Girod Immobilier
Annonce publiée le 07/12/2025 - mise à jour 08/12/2025
Proposée par Karine Girod Immobilier 07/12/2025 - mise à jour 08/12/2025
14
Maison, 102 m²

440 700 € 4 321 €/m²
Maison • 102 m² • 5 pièces • 4 chambres • Ter. 151 m²

Bron (69500)

ORPI - Secteur Les Essarts à Bron, dans un environnement calme, voici une maison récente (2013) avec quatre chambres et espace bureau. La maison se compose : une pièce de vie de 28m2 avec cuisine ouverte exposée ouest, une chambre, une salle d'eau et un WC indépendant. A l'étage, vous trouverez un espace bureau, trois chambres, une salle de bains, un WC indépendant. Un garage de 27 m2 complète la maison. A l'extérieur : une terrasse couverte vous attend, un jardin et une piscine de 10 m2 chauffée par pompe à chaleur. Chauffage par chaudière gaz individuelle. Panneau eau chaude solaire en toiture. Excellent DPE C. Taxe foncière 2025 : 1077 euros / année. Transport en commun à proximité (Bus et Tram). Ecoles à proximité. -------------------------------- ORPI, c'est 1250 agences immobilières partout en France, rien que pour vous ! *** ► Réalisez gratuitement l'estimation de votre bien sur notre site ou avec l'un de nos conseillers. *** ORPI, numéro 1 sur Lyon et sa région avec 65 agences en fichier commun et partagé pour plus de visibilité ! *** Référence agence : 1230

EXPRESSION IMMO
Annonce publiée le 05/07/2025 - mise à jour 08/12/2025
Proposée par EXPRESSION IMMO 05/07/2025 - mise à jour 08/12/2025
22
Appartement, 98,7 m²

350 000 € 3 546 €/m²
Appartement • 98,7 m² • 5 pièces • 4 chambres

Bron (69500)

BRON CENTRE VILLE 4 chambre meublée dans un appartement STA Exclusivité expression immo BRON CENTRE VILLE T5. Ascenseur HIGH LEVEL 98M2 appartement STANDING entièrement rénové DE 98M2 loi Carrez 4 chambre meublées avec dans chaque chambres lit double, un bureau un meuble de rangement ACTUELLEMENT Loué en Colocation 4 chambres meulées loues 500E chacune 2 salles d'eau 2WC . Un SUPER SALON sur Balcon, une cuisine entièrement équipée, enfin une place de parking privé, une cave ` Expression immo THE Spécialiste de la CO LOCATION . Les informations sur les risques auxquels ce bien est exposé sont disponibles sur le site Géorisques : www.georisques.gouv.fr

Roosevelt Immobilier
Annonce publiée le 19/09/2025 - mise à jour 25/11/2025
Proposée par Roosevelt Immobilier 19/09/2025 - mise à jour 25/11/2025
16
Appartement, 104 m²

230 000 € 2 212 €/m²
Appartement • 104 m² • 5 pièces • 4 chambres

Bron (69500)

Situé au 4e étage d'une copropriété de standing des années 70, cet appartement spacieux de 104 m² offre un cadre de vie recherché, lumineux et fonctionnel, au cœur de toutes les commodités de Bron Centre. Dès l'entrée, un vaste hall en marbre donne le ton. La cuisine indépendante (possibilité d'ouverture) mène à une pièce de vie exceptionnelle : un double salon-séjour de 33 m² exposé plein sud, prolongé par un balcon-terrasse de 14 m² sans vis-à-vis, idéal pour vos moments de détente. Côté nuit, l'appartement propose trois belles chambres (exposition ouest), une salle de bain, une salle d'eau, un WC indépendant, ainsi que de nombreux rangements intégrés. Caractéristiques principales : Surface : 104 m² Balcon-terrasse de 14 m² Garage fermé en sous-sol de 15 m² (en sus 20k) Chauffage individuel électrique + cumulus individuels Charges de copropriété : env. 2 000 €/an (hors travaux) Prévoir travaux (électricité, cuisine, salle de bains, peintures…), mais le potentiel est immense : cet appartement peut retrouver tout son éclat avec un confort moderne. Emplacement idéal : Bron Centre, à deux pas du tramway, des commerces, écoles, collèges, lycées, services administratifs et axes autoroutiers. À seulement 25 minutes de l'aéroport international Lyon Saint-Exupéry. Secteur scolaire très recherché : école Alsace-Lorraine. Un bien rare alliant standing, luminosité et fort potentiel de valorisation. À visiter sans tarder ! -------------------------------------------------------------------------------------------------------------------- Se loger à Bron : une ville verte riche en manifestations Avec plus de 260 hectares d'espaces verts, Bron séduit. Son hippodrome et ses nombreux parcs accueillent des espaces de loisirs. Des aires de jeux, des squares, des pistes cyclables font le bonheur des familles résidentes. Bron est également une ville riche en manifestations culturelles, sportives et humanitaires. Elle accueille plus de 300 associations. ORPI Grand Lyon, le spécialiste de l'immobilier à Bron, met à votre disposition son catalogue en ligne d'annonces immobilières à Lyon et dans sa région. En tant qu'agence immobilière, ORPI Grand Lyon, gère tout type de transaction immobilière à Bron : vente, achat et location de biens immobiliers. Nos conseillers en immobilier vous aident à trouver l'offre immobilière adaptée à vos besoins et à votre budget. Ensuite, ils vous accompagnent dans vos démarches administratives et financières relatives à votre projet immobilier à Bron. Référence agence : 2459

NESTENN Bron
Annonce publiée le 19/09/2025 - mise à jour 05/12/2025
Proposée par NESTENN Bron 19/09/2025 - mise à jour 05/12/2025
25
Maison, 142 m²

430 000 € 3 028 €/m²
Maison • 142 m² • 5 pièces • 3 chambres • Ter. 1 430 m²

Bron (69500)

Secteur Terraillon Cette maison familiale des années 1960 séduit par son charme rétro et ses beaux volumes. A l'étage, une entrée accueillante avec placard mène à un séjour lumineux de 31 m² ainsi qu'à trois grandes chambres confortables. Le rez-de-chaussée offre un garage, une buanderie, une cave et une pièce de 21 m² pouvant facilement être transformée en quatrième chambre, bureau ou salle de loisirs selon vos envies. Le tout est implanté sur un très grand terrain d'environ 1430 m², rare sur le secteur, offrant de nombreuses possibilités d'aménagement extérieur. La maison est saine, bien entretenue et située dans un quartier calme, à proximité des écoles, des commerces et des transports. Une belle opportunité pour une famille en quête d'espace et de potentiel.

Human Immobilier Bron
Annonce publiée le 10/06/2025 - mise à jour 22/11/2025
Proposée par Human Immobilier Bron 10/06/2025 - mise à jour 22/11/2025
8
Appartement, 89 m²

292 000 € 3 281 €/m²
Appartement • 89 m² • 5 pièces • 4 chambres

Bron (69500)

Centre ville. Proche de toutes les commodités ( Tram, bus, commerces) dans une résidence sécurisée, appartement type T5 traversant comprenant un grans séjour-cuisine, 4 chambres et une salle de bains. Une cave et un parking. Proposition d'aménagement virtuel non contractuelle en dernière photo.

NESTENN Bron
Annonce publiée le 25/11/2025 - mise à jour 02/12/2025
Proposée par NESTENN Bron 25/11/2025 - mise à jour 02/12/2025
17
Appartement, 107 m²

330 000 € 3 084 €/m²
Appartement • 107 m² • 5 pièces • 3 chambres

Bron (69500)

Secteur rue de la MARNE Venez découvrir ce très joli appartement de 107 m² offrant 5 pièces dont trois chambres, une salle de bain, une salle d'eau et une cuisine aménagée équipée. Il est situé au premier étage d'une très belle copropriété parfaitement entretenue. Ce bien rare par sa superficie se distingue par ses volumes généreux et sa distribution idéale, avec notamment un séjour spacieux de 33 m² qui bénéficie d'une belle luminosité naturelle. L'appartement dispose également d'une cave privative et d'une place de parking, tandis qu'un garage est proposé en supplément. Quelques travaux de rafraîchissement sont à prévoir, mais le potentiel est considérable pour transformer cet espace en un intérieur moderne et chaleureux. Idéal pour une famille ou pour toute personne recherchant confort, praticité et surtout de grands espaces dans un environnement soigné et convivial. Copropriété de 30 lots - dont 90 lots habitation. (Pas de procédure en cours). Charges annuelles : 2400 euros.

NESTENN Bron
Annonce publiée le 29/11/2025 - mise à jour 09/12/2025
Proposée par NESTENN Bron 29/11/2025 - mise à jour 09/12/2025
15
Appartement, 114 m²

429 000 € 3 763 €/m²
Appartement • 114 m² • 5 pièces • 3 chambres

Bron (69500)

Secteur Pagère ? Place Curial, Nestenn Bron vous propose un vaste appartement T5 rénové, climatisé et lumineux, bénéficiant d'une agréable exposition Ouest, d'une cave et d'une place de parking privé. L'entrée spacieuse avec rangements distribue une cuisine moderne entièrement équipée, un grand double séjour ouvrant sur une belle terrasse, ainsi que deux chambres, une salle de bains et une suite parentale avec rangements. Vous apprécierez également ses nombreux espaces de stockage, son coin buanderie et les prestations actuelles offrant un confort optimal au quotidien. Cet appartement combine modernité, volumes généreux et emplacement recherché à proximité immédiate de l'Église, des commerces, du tramway et des écoles. Vous souhaitez acheter sur BRON ? Situé à proximité de LYON, BRON fait partie des communes dites de l'Est lyonnais, en 1ère couronne, avec plus de 41 000 habitants. Sa situation géographique stratégique est unique en la reliant en quelques minutes au coeur du centre-ville lyonnais, grâce aux axes routiers et aux 3 lignes de tramway T2, T5 et T6, et métro D. La ville de Bron possède de nombreux espaces verts dont le Parc de Parilly, le Fort de Bron et le Bois des Essarts, ainsi qu'un aéroport dédié à l'aviation d'affaires. C'est une ville très sportive avec un stade d'athlétisme, un centre nautique, des terrains de tennis? Elle dispose de plusieurs grands ensembles hospitaliers et de l'hôpital Femme-Mère-Enfant. Une grande zone commerciale dynamique, avec Castorama, Decathlon, Botanic, Auchan..., répondra à vos besoins. La Ville de Bron est également une ville étudiante avec sa Faculté Lumière Lyon 2, l'IUT, le Lycée de l'automobile et le Lycée Jean Paul Sartre. Les Brondillants sauront vous accueillir ! Copropriété de 93 lots - dont 31 lots habitation. (Pas de procédure en cours). Charges annuelles : 3600 euros.

Françoise MARTINEZ - SAFTI
Annonce publiée le 01/07/2025 - mise à jour 02/12/2025
Proposée par Françoise MARTINEZ - SAFTI 01/07/2025 - mise à jour 02/12/2025
6
Maison, 100 m²

Prix en baisse 449 000 € 4 490 €/m²
Maison • 100 m² • 5 pièces • 4 chambres • Ter. 452 m²

Bron (69500)

Dans le secteur résidentiel vert de Bron en pleine transformation, au calme et à proximité immédiate des voies cyclables lyonnaises 5 et 11, à 5 mn à pied du tram T5 et des nombreux arrêts de bus aux Sept Chemins (C200 relie La Soie et métro A en 5 mn), 68,28, 25, 24, 79, 52, Zi5, BHNS en 2027), proche commerces et centres commerciaux, écoles et lycée JP Sartre, parcs, charmante maison des années 1940 à étages avec 4 chambres et beau terrain de 452 m² à l'arrière. La végétation, les différents arbres et les fleurs, la piscine tranquille et sans vis-à-vis (7,5 x 3,5 - chlore - reliée à un chauffage solaire - plage carrelée et salon bien-être installé), la dépendance de 40 m² sont les principales caractéristiques de l'extérieur. L'entrée dans la maison offre un dégagement spacieux, 1 WC et l'escalier pour accéder aux étages pour les espaces de nuit. A droite de l'entrée au rez-de-chaussée, le coin détente salon avec sa cheminée d'angle, sa fenêtre sur la verdure et son doux plancher bois. A gauche, la cuisine équipée et ouverte sur le lumineux espace de vie, avec baie vitrée coulissante donnant sur le coin repas extérieur à l'ombre des végétaux. Un escalier pierre descend au sous-sol : coin dressing. 1 pièce chaufferie, buanderie, cave. 1 chambre aménagée en salle de musique/médiathèque. Au 1er étage, couloir plancher bois avec 2 chambres lumineuses, 2 salles d'eau bien équipées, 1 WC. Au 2e étage, 1 chambre mansardée avec rangements latéraux bien aménagés. Façades refaites en 2002. Toiture rénovée et isolée en 2020 Chauffage individuel gaz + cheminée foyer fermé. Huisseries de 2001. Bon voisinage. Pas de vis-à-vis. 2 places de stationnement. Les informations sur les risques auxquels ce bien est exposé sont disponibles sur le site Géorisques : www.georisques.gouv.fr Prix de vente : 449 000 € Honoraires charge vendeur Contactez votre conseiller SAFTI : Françoise MARTINEZ, Tél. : 06 72 48 68 47, E-mail : - EI - Agent commercial immatriculé au RSAC de LYON sous le numéro 508 323 599 - SAFTI – MARTINEZ Françoise, Conseiller indépendant