Ventes immobilières 2 pièces à Antibes (06)

Modifier ma recherche
397 annonces
Max Ego - efficity
Annonce publiée le 15/10/2025
Proposée par Max Ego - efficity 15/10/2025
6
Appartement, 40 m²

240 000 € 6 000 €/m²
Appartement • 40 m² • 2 pièces • 1 chambre

Antibes (06600)

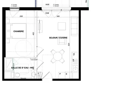
ANTIBES - CHEMIN DE LA PAROUQUINE - 2 PIÈCES - 41.0M² - APPARTEMENT DERNIER ETAGE VUE MER Dans une résidence récente, au dernier étage, en exposition sud, cet appartement offre une vue panoramique sur la baie de Nice à Antibes. L appartement est composé d un hall, d un séjour avec cuisine ouverte, d une chambre, d une salle de douche avec WC. La terrasse et le parking en sous-sol complètent le bien. Le bien est situé à coté de la route de Nice octroyant sur la terrasse des nuisances sonores. Contactez-moi dès maintenant pour programmer une visite ! Les informations sur les risques auxquels ce bien est exposé sont disponibles sur le site Georisque : georisques. gouv. fr Max Ego - EI - est Agent Commercial mandataire en immobilier, immatriculé au Registre Spécial des Agents Commerciaux du Tribunal de Commerce de Cannes sous le n°441841848. Siège social du mandant : effiCity, 48 avenue de Villiers - 75017 PARIS - Société par Actions Simplifiée, société au capital de 132 373,05 euros, immatriculée au RCS Paris 497 617 746 et titulaire de la Carte professionnelle CPI 7501 2015 000 002 025 - CCI Paris IDF - Caisse de Garantie : GALIAN Assurances 89 rue de la Boétie 75008 Paris

Agent immobilier ?
Diffusez GRATUITEMENT toutes vos annonces sur Superimmo.com
Brun Immobilier
Annonce mise à jour le 19/08/2025
Proposée par Brun Immobilier 19/08/2025
17
Appartement, 37 m²

Prix en baisse 288 000 € 7 784 €/m²
Appartement • 37 m² • 2 pièces • 1 chambre

Antibes
Juan-les-Pins (06160)

Unique, au c½ur du Cap d'Antibes, à 300 mètres de la plage de la Garoupe, 2 pièces dans petite copropriété en parfait état, vue mer, calme absolu, aucun travaux à prévoir. Cuisine équipée. Meublé. Cave et parking privatif.

MY LITTLE COTE D'AZUR
Annonce mise à jour le 20/11/2025
Proposée par MY LITTLE COTE D'AZUR 20/11/2025
7
Appartement, 46 m²

570 000 € 12 391 €/m²
Appartement • 46 m² • 2 pièces • 1 chambre

Antibes (06600)

ANTIBES - ILETTE Dans une résidence de standing avec piscine et parc, au calme absolu et à deux pas des plages et des commerces, Magnifique appartement deux pièces bénéficiant d'une jolie vue dégagée sur la verdure et d'une belle et profonde terrasse de 20 m2. Ce bien est composé de : entrée, séjour/salle à manger, cuisine indépendante, 1 chambre, 1 salle de bains, un WC indépendant, parking et cave. Résidence de qualité !

Christopher ESPINOSA - Expertimo
Annonce publiée le 15/04/2025 - mise à jour 25/09/2025
Proposée par Christopher ESPINOSA - Expertimo 15/04/2025 - mise à jour 25/09/2025
9
Appartement, 42 m²

Prix en baisse 285 000 € 6 786 €/m²
Appartement • 42 m² • 2 pièces • 1 chambre

Antibes (06600)

Situé dans une rue discrète perpendiculaire au Boulevard Albert 1er, à seulement quelques minutes à pied du Vieil Antibes et du bord de mer, cet appartement deux pièces entièrement rénové vous séduira par son agencement et sa situation. Installé au 4ème étage, il se compose d’une entrée avec rangements intégrés, d’un séjour lumineux, d’une cuisine indépendante, d’une chambre confortable ainsi que d’une salle d’eau avec toilettes. Les pièces de vie s’ouvrent sur un balcon offrant un espace extérieur agréable, en retrait de l’agitation urbaine. Ce bien, prêt à être habité, constitue une excellente opportunité tant pour une résidence principale que pour un pied-à-terre de charme ou un investissement locatif rentable. Possibilité d'un Garage (en option) Contactez moi pour plus d'informations Christopher Espinosa 06.64.20.76.56 Cette annonce vous est proposée par ESPINOSA Christopher - EI - NoRSAC: 521 650 895, Enregistré à Greffe du tribunal de commerce de Antibes - Annonce rédigée et publiée par un Agent Mandataire -

Infinity Group Le Cannet
Annonce publiée le 24/10/2025 - mise à jour 04/11/2025
Proposée par Infinity Group Le Cannet 24/10/2025 - mise à jour 04/11/2025
7
Appartement, 54,75 m²

235 000 € 4 292 €/m²
Appartement • 54,75 m² • 2 pièces • 1 chambre

Antibes
Juan-les-Pins (06160)

Grand T2 / Dernier étage / Terrasse / Balcon / Stationnement / Deux caves Appartement T2 de 55 m² situé au dernier étage avec ascenseur. Il dispose d’une terrasse exposée plein sud et d’un balcon côté chambre orienté est. L’appartement est lumineux et bien agencé. Il se trouve dans un quartier proche de toutes commodités, à seulement 5 minutes à pied de la mer. Le bien est vendu avec une place de stationnement et deux caves, offrant des espaces de rangement supplémentaires. Idéal pour un premier achat ou un investissement, cet appartement combine emplacement pratique et confort.

Jessica Alessandrini - iad
Annonce publiée le 19/11/2025 - mise à jour 24/11/2025
Proposée par Jessica Alessandrini - iad 19/11/2025 - mise à jour 24/11/2025
7
Appartement, 43 m²

295 000 € 6 860 €/m²
Appartement • 43 m² • 2 pièces

Antibes (06600)

iad France - Jessica Alessandrini (06 73 75 66 47) vous propose : Appartement 2 pièces avec grand balcon – Antibes Situé au cOEur d’Antibes, cet appartement de 43,05 m² environ au 1er étage offre un cadre de vie agréable alliant confort et praticité. Intérieur optimisé : •Séjour/cuisine lumineux de 24,85 m² environ •Chambre spacieuse de 11,75 m² environ •Salle de bains avec WC intégré Extérieur : •Balcon de 15,6 m² environ exposé Sud-Ouest, parfait pour profiter du climat azuréen Atouts : •Résidence calme et sécurisée •Parking privatif inclus •Commerces, écoles et transports accessibles à pied •Connexion rapide vers Sophia-Antipolis et les grands axes routiers Prix : 295 000 € – Frais de notaire à la charge du vendeur Un bien idéal pour une résidence principale, un pied-à-terre sur la Côte d’Azur ou un investissement locatif. Contactez-nous dès maintenant pour plus d’informations ou une visite personnalisée. Honoraires d’agence à la charge du vendeur. Bien non soumis au DPE. Les informations sur les risques auxquels ce bien est exposé sont disponibles sur le site Géorisques : www.georisques.gouv.fr. La présente annonce immobilière a été rédigée sous la responsabilité éditoriale de Mlle Jessica Alessandrini EI (ID 90440), mandataire indépendant en immobilier (sans détention de fonds), agent commercial de la SAS I@D France immatriculé au RSAC de Draguigan sous le numéro 451826549, titulaire de la carte de démarchage immobilier pour le compte de la société I@D France SAS. Retrouvez tous nos biens sur notre site internet.

Jessica Alessandrini - iad
Annonce publiée le 19/11/2025 - mise à jour 24/11/2025
Proposée par Jessica Alessandrini - iad 19/11/2025 - mise à jour 24/11/2025
7
Appartement, 44 m²

289 000 € 6 568 €/m²
Appartement • 44 m² • 2 pièces

Antibes (06600)

iad France - Jessica Alessandrini (06 73 75 66 47) vous propose : Charmant 2 pièces avec balcon et parking – Antibes (06600) Situé dans un environnement paisible à proximité des commodités et des axes principaux, cet appartement de 2 pièces au 2? étage séduit par sa configuration fonctionnelle et sa luminosité. Idéal pour un investissement locatif ou une résidence principale confortable. L’appartement développe une surface habitable de 44,2 m² environ, à laquelle s’ajoute un balcon de 10,5 m² environ, orienté nord-ouest, parfait pour profiter d’une belle lumière en fin de journée. L’espace intérieur comprend : •Un séjour-cuisine convivial de 19,5 m² environ, facilement aménageable, •Une chambre spacieuse de 12,05 m² environ, •Une entrée avec rangements de 7,15 m² environ, •Une salle d’eau moderne avec WC de 4,75 m² environ. Un stationnement privatif en sous-sol est inclus dans le prix. Le logement bénéficie d’un chauffage électrique individuel pour une gestion simple et économique. ________________________________________ ???? Informations financières •Prix de vente : 289 000 € •Frais de notaire à la charge du vendeur •Surface habitable : 44,2 m² environ •Surface extérieure : 10,5 m² environ (balcon) •Stationnement : 1 place privative en sous-sol ________________________________________ ???? Rentabilité locative Le bien présente une rentabilité potentielle d’environ 3,5 %, avec un loyer de marché estimé à 770 € par mois, conforme aux références locatives du secteur (zone A). Un excellent rapport qualité/prix pour un investissement à Antibes, ville très demandée pour sa proximité avec Sophia-Antipolis, les plages et les transports. ________________________________________ ?? Les atouts du bien •Agencement optimal sans perte d’espace •Grand séjour lumineux ouvrant sur le balcon •Chambre confortable de plus de 12 m² environ •Balcon de 10,5 m² environ agréable et sans vis-à-vis •Parking sécurisé inclus •Faibles frais de notaire (à la charge du vendeur) •Secteur recherché, idéal pour location étudiante ou saisonnière Honoraires d’agence à la charge du vendeur. Bien non soumis au DPE. Les informations sur les risques auxquels ce bien est exposé sont disponibles sur le site Géorisques : www.georisques.gouv.fr. La présente annonce immobilière a été rédigée sous la responsabilité éditoriale de Mlle Jessica Alessandrini EI (ID 90440), mandataire indépendant en immobilier (sans détention de fonds), agent commercial de la SAS I@D France immatriculé au RSAC de Draguigan sous le numéro 451826549, titulaire de la carte de démarchage immobilier pour le compte de la société I@D France SAS. Retrouvez tous nos biens sur notre site internet.

Jessica Alessandrini - iad
Annonce publiée le 19/11/2025 - mise à jour 24/11/2025
Proposée par Jessica Alessandrini - iad 19/11/2025 - mise à jour 24/11/2025
7
Appartement, 41 m²

289 000 € 7 049 €/m²
Appartement • 41 m² • 2 pièces

Antibes (06600)

iad France - Jessica Alessandrini (06 73 75 66 47) vous propose : 2 pièces lumineux avec balcon et parking – Antibes (06600) Dans un quartier paisible et recherché d’Antibes, cet agréable appartement 2 pièces situé au 4? étage allie luminosité, fonctionnalité et emplacement idéal. Son plan optimisé et ses prestations de qualité en font un bien parfaitement adapté à un investissement locatif ou à un premier achat. D’une surface habitable de 40,6 m² environ, il se compose de : •Un séjour-cuisine spacieux de 23,25 m² environ, •Une chambre confortable de 12,30 m² environ, •Une salle d’eau avec WC de 5,05 m² environ, •Un balcon de 7,4 m² environ, idéal pour profiter du climat doux d’Antibes. L’appartement bénéficie d’une orientation nord-est, apportant une belle lumière matinale. Une place de parking privative en sous-sol complète ce bien. Le chauffage électrique individuel assure un confort simple et économique. ________________________________________ ???? Informations financières •Prix de vente : 289 000 € •Frais de notaire à la charge du vendeur •Surface habitable : 40,6 m² environ •Balcon : 7,4 m² environ •Stationnement : 1 place en sous-sol ________________________________________ ???? Rentabilité locative estimée Avec un loyer potentiel estimé à 725 € par mois, ce bien présente une rentabilité brute d’environ 3 % à 3,3 %. La situation géographique, à proximité du centre-ville, des commerces, des axes routiers et de Sophia-Antipolis, en fait un placement locatif attractif et pérenne. ________________________________________ ?? Les points forts •Séjour spacieux de plus de 23 m² environ •Chambre confortable et lumineuse •Balcon agréable pour les repas en extérieur •Parking privatif inclus dans le prix •Frais de notaire à la charge du vendeur •Idéal investisseur ou primo-accédant Honoraires d’agence à la charge du vendeur. Bien non soumis au DPE. Les informations sur les risques auxquels ce bien est exposé sont disponibles sur le site Géorisques : www.georisques.gouv.fr. La présente annonce immobilière a été rédigée sous la responsabilité éditoriale de Mlle Jessica Alessandrini EI (ID 90440), mandataire indépendant en immobilier (sans détention de fonds), agent commercial de la SAS I@D France immatriculé au RSAC de Draguigan sous le numéro 451826549, titulaire de la carte de démarchage immobilier pour le compte de la société I@D France SAS. Retrouvez tous nos biens sur notre site internet.

CAP AGENCE
Annonce mise à jour le 19/08/2025
Proposée par CAP AGENCE 19/08/2025
7
Appartement, 45 m²

Prix en baisse 265 000 € 5 889 €/m²
Appartement • 45 m² • 2 pièces • 1 chambre

Antibes
Juan-les-Pins (06160)

JUAN-LES-PINS BIJOU PLAGE À PIED DES PLAGES RARE SUR LE SECTEUR ! À seulement quelques pas de la mer, découvrez ce charmant 2 pièces situé dans une résidence récente de standing. L'appartement bénéficie d'une agréable terrasse, idéale pour profiter des belles journées ensoleillées. Il est vendu avec un double parking en sous-sol ainsi qu'une cave, un véritable atout dans ce secteur recherché. À VISITER SANS ATTENDRE ! Pour tous renseignements complémentaires ou demandes de visites, contactez-moi au 06.12.29.91.06 ou Damien SCHAEFFER Cap Agence Les informations sur les risques auxquels ce bien est exposé sont disponibles sur le site Géorisques : 'www.georisques.gouv.fr -

MY LITTLE COTE D'AZUR
Annonce publiée le 29/01/2025 - mise à jour 29/08/2025
Proposée par MY LITTLE COTE D'AZUR 29/01/2025 - mise à jour 29/08/2025
7
Appartement, 64 m²

Prix en baisse 755 000 € 11 797 €/m²
Appartement • 64 m² • 2 pièces • 1 chambre

Antibes (06600)

FRONT DE MER - PISCINE Dans une résidence de Front de mer construite en 2002, large deux pièces de 64m2 avec terrasse profonde de 20m2 vue mer, grand garage et cave, possibilité de faire un trois pièces. L'appartement se compose d'une entrée, cuisine indépendante, double salon, une chambre, une grande salle de douche, toilette, terrasse profonde. Grand garage et cave.

VUES D'AZUR
Annonce publiée le 08/08/2025 - mise à jour 02/12/2025
Proposée par VUES D'AZUR 08/08/2025 - mise à jour 02/12/2025
7
Appartement, 29,01 m²

Prix en baisse 232 000 € 7 997 €/m²
Appartement • 29,01 m² • 2 pièces • 1 chambre

Antibes
Juan-les-Pins (06160)

EXCLUSIVITÉ - APPARTEMENT APERÇU MER - QUARTIER BADINE Appartement 2pièces entièrement RÉNOVÉ traversant exposé SUD-OUEST d'une superficie de 29.01m² avec une terrasse de 9.04m² donnant à un accès privé pour y accéder. Il se compose : D'un salon salle à manger, d'une salle d'eau avec toilette et d'une chambre. Vient s'ajouter à ce bien : Un garage d'une superficie de 18.85m² ainsi qu'une cave. À visiter sans attendre ! Pour plus de renseignement merci de bien vouloir contacter Anaelle QUENAULT au : 07.55.49.40.07

Villa Urbana
Annonce publiée le 09/09/2025 - mise à jour 04/10/2025
Proposée par Villa Urbana 09/09/2025 - mise à jour 04/10/2025
8
Appartement, 53,36 m²

Prix en baisse 285 000 € 5 341 €/m²
Appartement • 53,36 m² • 2 pièces • 1 chambre

Antibes
Juan-les-Pins (06160)

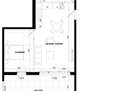
Bienvenue à Juan-les-Pins ! Cet appartement de deux pièces est traversant, dans un immeuble de standing et sécurisé, datant d'une construction de 1991. Avec ses 53 m² de surface, dont une terrasse de 28 m² et un balcon de 6.50 m², il est conçu pour la douceur de vivre. Son exposition sud et nord inonde les espaces de lumière et vous permet de profiter aussi d'une zone plus fraiche et moins exposée pendant les périodes chaudes de l'été. Vos convives seront heureux de partager ces moments de détente sur la terrasse. L'appartement est dans un très bon état général, doté d'une climatisation réversible, double vitrage, une performance énergétique modérée et des charges contenues. Outre sa cuisine séparée et parfaitement aménagée, l'appartement se compose d'un hall d'entrée, séjour, une chambre, une salle de bains et un WC séparé. Aussi, vous bénéficierez du confort d'une cave et d'un parking pour un quotidien sans tracas. Si vous avez le sens de l'aménagement, vous pourrez aussi concevoir cet appartement en trois pièces sans difficulté. Une visite s'impose !

VUES D'AZUR
Annonce publiée le 10/10/2025 - mise à jour 22/10/2025
Proposée par VUES D'AZUR 10/10/2025 - mise à jour 22/10/2025
9
Appartement, 47,35 m²

360 000 € 7 603 €/m²
Appartement • 47,35 m² • 2 pièces • 1 chambre

Antibes
Juan-les-Pins (06160)

EXCLUSIVITÉ - APPARTEMENT VUES MER - RUE DES ILES - DERNIER ÉTAGE Appartement 2pièces entièrement RÉNOVÉ exposé SUD-OUEST d'une superficie de 47.35m² avec une grande terrasse d'angle de 38.90m². Il se compose : D'un salon salle à manger, d'une salle de bain, un toilette indépendant et d'une chambre avec rangement donnant axes à la terrasse. Vient s'ajouter à ce bien : Un garage et 100 mètres des plages. À visiter sans attendre ! Pour plus de renseignement merci de bien vouloir contacter Anaelle QUENAULT au : 07.55.49.40.07

Brun Immobilier
Annonce publiée le 01/11/2025 - mise à jour 26/11/2025
Proposée par Brun Immobilier 01/11/2025 - mise à jour 26/11/2025
10
Appartement, 31 m²

199 000 € 6 419 €/m²
Appartement • 31 m² • 2 pièces • 1 chambre

Antibes
Juan-les-Pins (06160)

ANTIBES LES PINS Beau 2 pièces en étage élevé, composé d'une entrée avec placard, une salle de bains, un WC indépendant, séjour avec cuisine américaine, une petite chambre avec lits superposés, une belle terrasse avec aperçu mer, une cave et un parking privatif au sous-sol. Piscine dans la résidence. Idéal vacances ou placement locatif.

LISNARD IMMOBILIER
Annonce publiée le 05/11/2025
Proposée par LISNARD IMMOBILIER 05/11/2025
7
Appartement, 52 m²

315 000 € 6 058 €/m²
Appartement • 52 m² • 2 pièces • 1 chambre

Antibes
Juan-les-Pins (06160)

Spacieux 2 pièces dans une résidence proche des plages et commerces de Juan-Les-Pins. Séjour ouvrant sur large terrasse au calme, cuisine aménagée, une chambre avec rangements, salle d'eau et toilette indépendant. Un stationnement privatif complète le confort de ce bien idéalement situé. Contactez l'agence ou Nicolas MARTY au 06 19 606 604.