Achat - bien divers - Villeurbanne (69100)

Modifier ma recherche
62 annonces
REZ-DE-CHAUSSEE.COM
Annonce mise à jour le 16/10/2025
Proposée par REZ-DE-CHAUSSEE.COM 16/10/2025
10
Divers, 110 m²

Prix en baisse 354 000 € 3 218 €/m²
Divers • 110 m² • 4 pièces

Villeurbanne (69100)

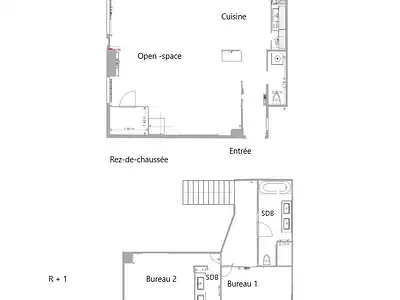
Villeurbanne - Métro Charpennes - Local professionnel d'une superficie de 110 m² ( 102,3 m² Carrez). Ce bien sur deux niveaux offre au rez-de-chaussée un open-space avec une cuisine ouverte aménagée et équipée (57 m²) et des WC indépendants. A l'étage, nous avons 2 bureaux, une salle bains avec WC et une salle d'eau. Un sous-sol aménagé (17 m²) complète ce bien. Prix : 354000 + 3,9% d'honoraires agence à charge acquéreur. Votre contact : Alam Bendif - 07 84 54 07 71-Agent commercial - RSAC 848844965

Agent immobilier ?
Diffusez GRATUITEMENT toutes vos annonces sur Superimmo.com
Cabinet Folliet
Annonce mise à jour le 28/08/2025
Proposée par Cabinet Folliet 28/08/2025
1
Divers, 44 m²

Prix en baisse 88 000 € 2 000 €/m²
Divers • 44 m²

Villeurbanne (69100)

Salon de Coiffure/Onglerie/Maroquinerie : Villeurbanne ! Proche de la Doua à Villeurbanne, ce fonds de commerce de 37 m², complété par 7 m² de réserves, est une affaire pérenne L'intérieur, en bon état, abrite une cuisine fonctionnelle et des sanitaires. Trois vitrines de 10 mètres linéaires illuminent la façade, attirant le regard des passants. le salon est compose de 3 bacs de lavage et 3 de coiffage .La clientèle est est mixte , résidentielle et du quartier . Ce salon générant un chiffre d'affaires de 110 000 € HT, est actuellement géré par une équipe dévouée de 1 salarié en CDI (40h) et 1 apprenti (CAP en juillet 2025). Les horaires d'ouverture, du mardi au samedi de 9h à 18h, laissent place à une vie équilibrée avec 4 semaines de congés en août et la 2ème quinzaine de janvier Votre conseiller Cabinet Folliet : Sylvie GALLAND Agent commercial (Entreprise individuelle) RCP 69012024000002307

Cabinet Folliet
Annonce mise à jour le 28/08/2025
Proposée par Cabinet Folliet 28/08/2025
1
Divers, 50 m²

88 000 € 1 760 €/m²
Divers • 50 m²

Villeurbanne (69100)

Villeurbanne-Gratte ciel restaurant /vente à emporter/sandwicherie surface commerciale de 50 m² : 20 places assises petit loyer de 750 euros charges comprises terrasse de 15 places . Pas d'extraction : activités autorisées : tacos/bagels/sushi/salade. idéal 1er achat Votre conseiller Cabinet Folliet : Sylvie GALLAND Agent commercial (Entreprise individuelle) RCP 69012024000002307

Cabinet Folliet
Annonce mise à jour le 16/10/2025
Proposée par Cabinet Folliet 16/10/2025

129 700 € 2 358 €/m²
Divers • 55 m²

Villeurbanne (69100)

Nous sommes ravis de vous présenter un fonds de commerce de restauration, idéalement situé à Villeurbanne. Ce charmant établissement, doté d'une licence PR, offre une capacité d'accueil de 24 places en salle et 4 couverts en terrasse estivale. Belle opportunité de développer votre activité et d'apporter votre touche personnelle à ce lieu déjà bien ancré dans le quartier. Ce fonds de commerce vous permettra de toucher une clientèle variée, tant pour le déjeuner que pour le dîner. Des horaires flexibles qui vous offrent une grande liberté pour organiser votre emploi du temps et gérer votre équipe. Pour maintenir la confidentialité de la transaction, nous ne divulguons pas l'emplacement exact ni le nom de l'affaire dans cette annonce publique. Cependant, nous sommes prêts à partager toutes les informations nécessaires après un premier rendez-vous. Votre conseiller Cabinet Folliet : Gilles RUFFINEL Agent commercial (Entreprise individuelle) RSAC 69012024000002219

Cabinet Folliet
Annonce mise à jour le 28/08/2025
Proposée par Cabinet Folliet 28/08/2025

Prix en baisse 88 000 € 400 €/m²
Divers • 220 m²

Villeurbanne (69100)

Villeurbanne - Superbe Laboratoire de production de 180m2 en excellent état, parfaitement aux normes et tout équipé avec du matériel de très bonne qualité. Extraction gros diamètre en toiture et accessibilité direct pour les véhicules de livraison. Ce bien est accompagné d'une maison de 80m2 refaite entièrement à neuf, prêt à être emménagée. Un jardin au calme de 400m2 complète ce bien. Votre conseiller Cabinet Folliet : Xavier POROT Agent commercial (Entreprise individuelle) RSAC 69012024000002134

Cabinet Folliet
Annonce mise à jour le 28/08/2025
Proposée par Cabinet Folliet 28/08/2025
1
Divers, 70 m²

88 000 € 1 257 €/m²
Divers • 70 m²

Villeurbanne (69100)

Poche du cours Emile Zola ,Cet institut de beauté/centre de remise en forme est situé dans le quartier dynamique de Charpennes à Villeurbanne. Cet établissement en bon état, conforme ERP et PMR, offre de belles vitrines de 5 mètres pour une visibilité optimale. Il est idéal pour les professionnels souhaitant reprendre une activité florissant avec un chiffre d'affaires de 200 000€ HT en 2024, en augmentation par rapport à l'année précédente (165 000€ HT) L'institut de beauté et de remise en forme a été entièrement refait et équipé de matériels performants et neufs pour satisfaire la clientèle. L'équipe se compose de 2 esthéticiennes en CDI et 3 apprentis, travaillant de 9 heures à 18 heures du lundi au samedi. , L'institut est idéalement situé, à proximité de toutes les commodités nécessaires. Les transports en commun sont accessibles en quelques minutes à pied . Belle outil de travail pour des professionnels de l'esthétique et du bien être. Votre conseiller Cabinet Folliet : Sylvie GALLAND Agent commercial (Entreprise individuelle) RCP 69012024000002307

Cabinet Folliet
Annonce mise à jour le 28/08/2025
Proposée par Cabinet Folliet 28/08/2025

110 000 € 917 €/m²
Divers • 120 m²

Villeurbanne (69100)

CAVE A VIN au coeur d'un quartier vivant à Villeurbanne. L'espace commercial est très bien aménagé . Cette affaire dispose d'une grande cave saine et sécurisée ainsi qu'une réserve et un bureau. Le bail a été renouvelé récemment. Tout petit loyer, bon CA. COUP DE COEUR à visiter rapidement ! Votre conseiller Cabinet Folliet : Pierre ATHANASSIOU Agent commercial (Entreprise individuelle) RSAC 69012024000002086

Cabinet Folliet
Annonce mise à jour le 28/08/2025
Proposée par Cabinet Folliet 28/08/2025

110 000 € 1 410 €/m²
Divers • 78 m²

Villeurbanne (69100)

Villeurbanne - Bel emplacement sur axe passant pour cette restauration rapide entièrement refaite à neuf à la décoration soignée. L'établissement de 70m2 très bien équipé dispose de 24 places à l'intérieur ainsi que d'une terrasse à l'année de 12 couverts. Proche des transports en commun et proximité immédiate de Collège et Lycée. Idéale franchise. Votre conseiller Cabinet Folliet : Xavier POROT Agent commercial (Entreprise individuelle) RSAC 69012024000002134

Annonce publiée le 20/09/2025 - mise à jour 10/12/2025
Proposée par CAFIMM 20/09/2025 - mise à jour 10/12/2025
8
Divers, 280 m²

830 000 € 2 964 €/m²
Divers • 280 m²

Villeurbanne (69100)

Rue d'Alsace, proche Part Dieu et Crs LAFAYETTE, au 4ème étage sur 4 (ascenseur),d'un immeuble de bureaux en parfait état nous vous proposons 280m² de bureaux en parfait état. Déja cloisonnés (plusieurs bureaux de 7m² à 30m²) et équipés (courant faible/fort, fibre optique), chauffage , climatisation, sanitaires. 3 places de stationnement. Bâtiment aux normes ERP et surface catégorisé ERP5 et PMR. Accès facile vers la Gare de la Part Dieu, proche commerce et transports( Métro A et B, C3 et Bus N°34). Honoraires à la charge du vendeur. Classe énergie C, Classe climat A. Les informations sur les risques auxquels ce bien est exposé sont disponibles sur le site Géorisques : georisques.gouv.fr.

Human Immobilier Villeurbanne Croix Luizet
Annonce publiée le 28/10/2025 - mise à jour 28/11/2025
Proposée par Human Immobilier Villeurbanne Croix Luizet 28/10/2025 - mise à jour 28/11/2025
7
Divers

19 250 €
Divers

Villeurbanne (69100)

Dans une rue avec peu de passage à proximité de la place Croix Luizet. Je vous propose à la vente un box fermé en 2e sous sol dans une résidence calme et sécurisée. Vous habitez le quartier et cherchez un stationnement? Vous souhaitez réaliser un investissement avec peu de charges? Merci de nous contacter.

Cabinet Folliet
Annonce mise à jour le 26/09/2025
Proposée par Cabinet Folliet 26/09/2025

Prix en baisse 48 000 € 240 €/m²
Divers • 200 m²

Villeurbanne (69100)

Cette affaire d'angle, située dans un quartier de bureaux, offre une surface totale de 200 m² avec une grande terrasse longeant tout le restaurant. La cuisine, spacieuse et en excellent état, s'étend sur 40 m². Actuellement, l'établissement est ouvert uniquement 5midis par semaine et se concentre principalement sur la vente à emporter. En activité depuis plus de 10 ans, cette affaire stable présente un potentiel de croissance significatif. Affaire saine avec peu de travaux à prévoir. Votre conseiller Cabinet Folliet : Paula Pillon Agent commercial (Entreprise individuelle) RSAC 69012024000002228

REGIE SAINT-PIERRE
Annonce mise à jour le 28/06/2025
Proposée par REGIE SAINT-PIERRE 28/06/2025
13
Divers, 147 m²

Prix en baisse 430 000 € 2 925 €/m²
Divers • 147 m²

Villeurbanne (69100)

LA DOUA - LOCAL COMMERCIAL EN MONOPROPRIETE - A seulement 30 mètres de l'avenue Roger Salengro dynamique grâce à ses nombreux commerces et transports, nous vous proposons un local commercial entièrement rénové avec goût sur 2 niveaux idéal pour des activités de bureaux / showroom avec dépôt ou restauration (gaine d'extraction à installer). Actuellement le rez-de-chaussée est dédié à une surface de stationnement et de dépôt avec toilettes d'une surface de 85 m2. A l'étage, la partie bureau/showroom se développe sur une surface de 62 m2 et se compose d'un espace de convivialité avec cuisine aménagée et équipée, d'un espace de travail en open-space avec rangements, d'une salle d'eau et d'un second toilette séparé avec lave mains.? Ce bien ne fait pas partie d'une copropriété, plusieurs options sont donc envisageables. Les atouts : climatisation gainable réversible, visiophone, vidéosurveillance, alarme, fenêtre double vitrage, fibre optique, volets électriques. Contact : G. GERMAIN au 06 19 46 99 08

Cabinet Folliet
Annonce mise à jour le 28/08/2025
Proposée par Cabinet Folliet 28/08/2025

Prix en baisse 78 000 € 600 €/m²
Divers • 130 m²

Villeurbanne (69100)

VILLEURBANNE PROCHE GRATTE CIEL - EPICERIE - BOUCHERIE - TRAITEUR DE 130M2 en bon état. L' établissement dispose de 3 espaces : - Le premier concerne la partie commerciale d'une cinquantaine de M2 en très bon état équipé de vitrines murales réfrigérées, de 3 congélateurs ainsi que d'une banque réfrigérée de 5m avec 2 balances et 1 caisse enregistreuse. - Les deux autres espaces sont réservés à la préparation et la mise en place comprenant 5 chambres froides (dont une négative et positive ), 1 fumoir, 2 gros hachoirs, 1 grand four vapeur, 1 machine sous vide, 1 machine à jambon ainsi qu'un attendrisseur de viande. Possibilité d'agrandir la boutique via travaux. A VISITER. Votre conseiller Cabinet Folliet : Xavier POROT Agent commercial (Entreprise individuelle) RSAC 69012024000002134

Cabinet Folliet
Annonce mise à jour le 28/08/2025
Proposée par Cabinet Folliet 28/08/2025
1
Divers, 43 m²

38 000 € 884 €/m²
Divers • 43 m²

Villeurbanne (69100)

Villeurbanne Fonds de commerce d'un institut de beauté traditionnel avec de la clientèle d'habitués et de passage. 3 cabines : épilation-soins du visage-soins des mains et pieds. Bac à cire -Vapozone-Haute fréquence font partis du matériels. Loyer de 790 € HTHC avec un nouveau bail en septembre 2025 . Pas de personnel à reprendre. Le local conviendrait particulièrement à une activité d'onglerie . Ideal première affaire. Votre conseiller Cabinet Folliet : Sylvie GALLAND Agent commercial (Entreprise individuelle) RCP 69012024000002307

IMMOBILIERE DABRETEAU
Annonce publiée le 18/12/2024 - mise à jour 18/11/2025
Proposée par IMMOBILIERE DABRETEAU 18/12/2024 - mise à jour 18/11/2025
7
Divers, 596 m²

Prix en baisse 1 130 000 € 1 896 €/m²
Divers • 596 m²

Villeurbanne (69100)

LOCAL ACTIVITE à VENDRE - TOTEM de Villeurbanne Idéal pour une implantation de magasin de Bricolage, Fournitures diverses et variées, ameublement, décoration d'intérieur, accessoires, outillages, etc... Surface de 596 m² à aménager en PARFAIT ETAT. Toute demande auprès de Olivier DABRETEAU 06 72 17 51 89 Copropriété de 6 lots (Pas de procédure en cours). Charges annuelles : 3200 euros.