Acheter un appartement à Sainte-Luce (97228)

Modifier ma recherche
14 annonces
ACS IMMOBILIERS SUD
Annonce publiée le 14/06/2025 - mise à jour 24/10/2025
Proposée par ACS IMMOBILIERS SUD 14/06/2025 - mise à jour 24/10/2025
15
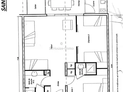
Appartement, 75 m²

282 000 € 3 760 €/m²
Appartement • 75 m² • Sous compromis • 4 pièces • 3 chambres

Sainte-Luce (97228)

ACS Immobiliers vous propose un charmant appartement F4 avec deux terrasses, un jardinet et une petite vue sur le Rocher du Diamant dans les hauteurs de Sainte Luce. Il est situé dans une petite copropriété de 3 lots offrant un séjour, une cuisine aménagée, trois chambres climatisées avec placards, une salle d'eau, un WC indépendant. Les extérieurs comprennent une terrasse donnant sur le séjour et la cuisine et une spacieuse terrasse sur l'arrière avec son petit jardinet clôturé et un abri de voiture de 20m2. Le quartier est calme et ventilé. Taxe foncière 1168€. Honoraires à la charge du vendeur. Charges annuelles 1440€ Les informations sur les risques auxquels ce bien est exposé sont disponible sur le site georisque: L'agence immobilière ACS IMMOBILIERS est idéale pour acheter ou vendre un appartement ou une maison à SAINTE-LUCE. Spécialisée dans la vente d'appartements dans le SUD, elle diffuse quotidiennement ses annonces immobilières afin de faciliter la vente de votre bien immobilier à SAINTE-LUCE. Pour plus de renseignements veuillez contacter Isabell AUER (EI) 0696 96 27 26 Agent commercial enregistré - 525 085 874 Afficher plus

Agent immobilier ?
Diffusez GRATUITEMENT toutes vos annonces sur Superimmo.com
PIERRE REVENTE
Annonce publiée le 20/10/2025
Proposée par PIERRE REVENTE 20/10/2025
14
Appartement, 27 m²

123 860 € 4 587 €/m²
Appartement • 27 m² • Meublé • 1 pièce

Sainte-Luce (97228)

Spécial Investissement locatif par bail commercial. Fiscalité LMNP. « Aucune possibilité d'acquisition en résidence principale ou secondaire ». A Sainte-Luce, au sein d'une résidence de tourisme, appartement - studio, meublé, d'une surface de 27.62 m²+ varangue, bénéficiant d'un emplacement privilégié. Gestion locative totalement gérée et sans souci par bail locatif. Percevez 5380€ net de charges de loyer garanti/an soit 4.5% de rentabilité immédiate. Possibilité d'occuper votre bien quelques semaines/an pour satisfaire vos besoins de vacances Grace à l'avantage fiscal du Loueur Meublé Non Professionnel, bénéficiez de revenus nets d'impôts (ou partiellement). Pour obtenir des informations complémentaires, Contactez-nous vite !! PIERRE-REVENTE : +33(0)2.40.26.33.88 / Christophe BIZEAU +33(0)6.34.11.23.76 ou via notre site « PIERRE-REVENTE ». Visite virtuelle & conseils personnalisés disponibles sur demande. Afficher plus

Peyrot Sébastien - Dr HOUSE-IMMO
Annonce publiée le 05/11/2025 - mise à jour 18/11/2025
Proposée par Peyrot Sébastien - Dr HOUSE-IMMO 05/11/2025 - mise à jour 18/11/2025
15
Appartement, 53 m²

195 000 € 3 679 €/m²
Appartement • 53 m² • 3 pièces • 2 chambres

Sainte-Luce (97228)

Attention bien lire l'annonce ! Le bien est vendu avec un bail commercial (clé en main, gestion intégralement déléguée) meublé avec Pierre et Vacances, avec un loyer ANNUEL d'environ 10 700€ ttc (fixe+variable) Investissement permettant de toucher des revenus complémentaires (rentabilité de 5,3%) tout en pouvant profiter du bien 2 à 3 semaines par an. Permet de lier l'utile à l'agréable! Loyer annuel garanti de 8 700 € ttc et variable de 3000€ Loyer annuel garanti de 6 000 € ttc avec 3 semaines d'occupation! RARE OPPORTUNITE ! Spacieux appartement sans sous pente, de 53m2, vue parc meublé comprenant: dégagements avec placard, un grand salon, 2 chambres, 2 salles d’eau dont une avec wc, une grande terrasse couverte de plus de 15m2 avec kitchenette Les charges de copro sont payées par l'exploitant Pierre et Vacances. Le LMNP : placement préféré des Français pour y sécuriser ses économies ou pour préparer sa retraite. Profitez des avantages du statut LMNP, avec des loyers exonérés d'impôts, permettant de générer des revenus complémentaires, de préparer la retraite et la transmission. Les avantages: 1.Constitution d’un patrimoine immobilier : 2.Des revenus réguliers (préparation de la retraite) : 3.Des revenus indexés et donc qui protègent de l’inflation : 4.Des revenus sécurisés : 5.Des revenus peu ou pas fiscalisés : 6.Une gestion déléguée : 7.Un rendement attractif et pérenne Simulation financière en fonction de votre fiscalité Ce bien vous est présenté par Sébastien Peyrot , votre conseiller indépendant Dr House Immo. Afficher plus

Jonathan OSCAR - SAFTI
Annonce publiée le 11/07/2025
Proposée par Jonathan OSCAR - SAFTI 11/07/2025
6
Appartement, 41 m²

150 000 € 3 659 €/m²
Appartement • 41 m² • 2 pièces

Sainte-Luce (97228)

Jonathan OSCAR vous propose, en exclusivité, à Sainte-Luce (97228), proche de la plage et des commodités, un appartement T1 en rez-de-chaussée d'une résidence sécurisée par un portail automatique et un digicode. Construit en 2008, ce charmant appartement de 41 m² (31m² loi Carrez) se compose de 2 pièces offrant un espace de vie confortable et fonctionnel. Idéal pour un couple ou un investisseur, il dispose d'un agencement bien pensé avec une cuisine équipée, une pièce de vie lumineuse, une salle d'eau moderne et une terrasse agréable. Ce bien est proposé avec son parking privatif. Sa localisation en rez-de-chaussée est un avantage supplémentaire pour faciliter l'accès au logement. Charges de copropriété annuelles 560 €. Taxe foncière 671 €. Les amoureux de la nature apprécieront les sentiers de randonnée à proximité, les plages ainsi que le climat exceptionnel qu'offre la commune. Le bien comprend 2 lots, et il est situé dans une copropriété de 206 lots (les charges courantes annuelles moyennes de copropriété sont de 560 € et le syndicat des copropriétaires fait l'objet d'une procédure citée à l'article L. 721-1 du code de la construction et de l'habitation). Les informations sur les risques auxquels ce bien est exposé sont disponibles sur le site Géorisques : www.georisques.gouv.fr Prix de vente : 150 000 € Honoraires charge vendeur Contactez votre conseiller SAFTI : Jonathan OSCAR, Tél. : 0696845789, E-mail : - EI - Agent commercial immatriculé au RSAC de FORT-DE-FRANCE sous le numéro 853 610 061 - SAFTI – OSCAR Jonathan, Conseiller indépendant Afficher plus

Kazeo
Annonce publiée le 23/10/2025
Proposée par Kazeo 23/10/2025
9
Appartement, 75 m²

216 000 € 2 880 €/m²
Appartement • 75 m² • 3 pièces

Sainte-Luce (97228)

L'appartement Lio est niché au troisième et dernier étage d'une résidence sécurisée avec ascenseur. La résidence dispose d'un portail électrique et est situé sur la commune de Sainte-Luce. Il est composé d'un beau séjour très lumineux, d'un cellier et d'une cuisine fermée avec plaques à induction et hotte. Elle aussi baignée de lumière, la cuisine s'ouvre sur la terrasse depuis un grand bar (avec rideau électrique). Depuis ce bel espace extérieur, vous profiterez d'une magnifique vue sur la campagne de Sainte-Luce. L'espace nuit de l'appartement Lio est composé de deux belles chambres climatisées avec espaces de rangement. La première chambre compose une suite parentale et bénéficie de sa propre salle de douche avec wc. La seconde salle de bain est indépendante et attenante à la deuxième chambre. Un wc invité complète les aménagements de l'appartement Lio. L'appartement est vendu avec un locataire en place ( fin de bail prévue Juillet 2027). Dans une copropriété de 2 lots. Aucune procédure n'est en cours. DPE en cours. Les informations sur les risques auxquels ce bien est exposé sont disponibles sur le site Géorisques : georisques.gouv.fr. Afficher plus

Harry HOSPICE - Propriétés-privées.com
Annonce publiée le 08/04/2025 - mise à jour 13/11/2025
Proposée par Harry HOSPICE - Propriétés-privées.com 08/04/2025 - mise à jour 13/11/2025
18
Appartement, 86 m²

Prix en baisse 297 000 € 3 453 €/m²
Appartement • 86 m² • 4 pièces • 3 chambres

Sainte-Luce (97228)

Découvrez une opportunité rare à Sainte-Luce, l'une des communes les plus prisées de Martinique ! Ce magnifique bas de villa F3 avec bureau, d'une surface de 86 m², allie parfaitement confort, espace et luminosité. Imaginez un cadre où sérénité et bien-être se conjuguent au quotidien : 3 chambres généreuses pour accueillir famille et proches 2 séjours lumineux offrant un espace de vie chaleureux et convivial Ce bien d'exception vous offre également : Un jardin privatif de 165 m², véritable havre de paix, agrémenté de deux espaces de rangement pratiques Un jacuzzi privatif, pour des moments de détente absolue après une journée au bord de la mer Une situation idéale, à seulement quelques pas des plages de sable fin, pour profiter pleinement du cadre idyllique de Sainte-Luce Que vous cherchiez une résidence principale ou un investissement de qualité, ce bien répondra à toutes vos attentes. Ne laissez pas passer cette chance unique ! Contactez-moi dès maintenant pour organiser une visite privée et laissez-vous séduire par le potentiel exceptionnel de ce bien. Votre futur vous attend ici. Prix de vente 297 000 EUROS charge vendeur. Pour visiter et vous accompagner dans votre projet, contactez Harry HOSPICE, au 0696071010 ou par courriel à Selon l'article L.561.5 du Code Monétaire et Financier, pour l'organisation de la visite, la présentation d'une pièce d'identité vous sera demandée. Cette vente est garantie 12 mois. Cette présente annonce a été réalisée sous la responsabilité éditoriale de Harry HOSPICE agissant sous le statut d'agent commercial auprès de la SAS PROPRIETES PRIVEES, au capital de 40 000 euros, ZAC LE CHÊNE FERRÉ - 44 ALLÉE DES CINQ CONTINENTS 44120 VERTOU ; SIRET 487 624 777 00040, RCS Nantes. Carte professionnelle Transactions sur immeubles et fonds de commerce (T) et Gestion immobilière (G) n° CPI 4401 2016 000 010 388 délivrée par la CCI Nantes - Saint Nazaire. Compte séquestre n°30932508467 BPA SAINT-SEBASTIEN-SUR-LOIRE (44230) ; Garantie GALIAN - 89 rue de la Boétie, 75008 Paris - n°28137 J pour 2 000 000 euros pour T et 120 000 euros pour G. Assurance responsabilité civile professionnelle par MMA Entreprise n° de police 120.137.405 Mandat réf : 354250 - Le professionnel garantit et sécurise votre projet immobilier.nHarry HOSPICE (EI) Agent Commercial - Numéro RSAC : 43410850 . Harry HOSPICE (EI) Agent Commercial - Numéro RSAC : 434108510 - . Copropriété de 3 lots (). Charges annuelles : 288 euros. Harry HOSPICE (EI) Agent Commercial - Numéro RSAC : 434108510 - . Afficher plus

ACS IMMOBILIERS SUD
Annonce publiée le 18/09/2025 - mise à jour 26/10/2025
Proposée par ACS IMMOBILIERS SUD 18/09/2025 - mise à jour 26/10/2025
9
Appartement, 75,5 m²

Prix en baisse 235 400 € 3 118 €/m²
Appartement • 75,5 m² • 3 pièces • 2 chambres

Sainte-Luce (97228)

ACS Immobiliers vous propose ce spacieux appartement F3 situé au rez-de-jardin d'une résidence sécurisée et très agréable à l'entrée de Sainte Luce et du Diamant. Il se compose d'un vaste séjour, une cuisine aménagée, un cellier, deux chambres climatisées dont une avec salle d'eau, une salle d'eau indépendante, un WC séparé ainsi qu'une belle terrasse de 17m2 et son petit jardin privatif agrémenté d'un cabanon de rangement. Idéalement situé, à proximité de Rivière-Salée, des axes routiers et de toutes les commodités, cet appartement offre un cadre de vie confortable et pratique, parfait pour une résidence principale. Surface utile 93m2. Taxe foncirère 1300€ Copropriété de 48 lots. A notre connaissance aucune procédure en cours. Montant moyen annuel de la quote-part de charges courantes 1100€. Honoraires à la charge du vendeur. 'Les informations sur les risques auxquels ce bien est exposé sont disponibles sur le site Georisques : www.georisques.gouv.fr'. L'agence immobilière ACS IMMOBILIERS est idéale pour louer ou vendre des appartements à SAINTE LUCE et au DIAMANT. Spécialisée dans la vente de biens dans le sud, elle diffuse quotidiennement ses annonces immobilières afin de faciliter la vente de votre appartement au SAINTE LUCE et au DIAMANT. Pour plus de renseignements veuillez contacter Isabell AUER (EI) 0696 96 27 26, , agent commercial enregistrée 525 085 874 Afficher plus

Peyrot Sébastien - Dr HOUSE-IMMO
Annonce publiée le 30/10/2025 - mise à jour 18/11/2025
Proposée par Peyrot Sébastien - Dr HOUSE-IMMO 30/10/2025 - mise à jour 18/11/2025
9
Appartement, 22 m²

85 000 € 3 864 €/m²
Appartement • 22 m² • 1 pièce • 1 chambre

Sainte-Luce (97228)

Attention bien lire l'annonce ! Superbe appartement vendu avec un bail commercial avec Pierre et Vacances, avec un loyer ANNUEL d'environ 4 700 € ttc (fixe + variable) Investissement permettant de toucher des revenus complémentaires (rentabilité de 5.5%) tout en pouvant profiter du bien 2 à 3 semaines par an. Permet de lier l'utile à l'agréable! Loyer annuel garanti de 3 340 € ttc et loyer variable d'environ 1 400€ Loyer annuel garanti de2 900 € ttc avec 2 semaines d'occupation! Appartement studio vue parc comprenant: un dégagement avec placard, une chambre, une salle d’eau, un wc, une terrasse couverte avec une kitchenette. Les charges de copro sont payées par l'exploitant Pierre et Vacances. Le LMNP : placement préféré des Français pour y sécuriser ses économies ou pour préparer sa retraite. Profitez des avantages du statut LMNP, avec des loyers exonérés d'impôts, permettant de générer des revenus complémentaires, de préparer la retraite et la transmission. Les avantages: 1.Constitution d’un patrimoine immobilier : 2.Des revenus réguliers (préparation de la retraite) : 3.Des revenus indexés et donc qui protègent de l’inflation : 4.Des revenus sécurisés : 5.Des revenus peu ou pas fiscalisés : 6.Une gestion déléguée : 7.Un rendement attractif et pérenne Simulation financière en fonction de votre fiscalité Ce bien vous est présenté par Sébastien Peyrot , votre conseiller indépendant Dr House Immo. Afficher plus

KAZA IMMO
Annonce publiée le 19/10/2025 - mise à jour 03/11/2025
Proposée par KAZA IMMO 19/10/2025 - mise à jour 03/11/2025
7
Appartement, 43,89 m²

193 000 € 4 397 €/m²
Appartement • 43,89 m² • 2 pièces • 1 chambre

Sainte-Luce (97228)

STE LUCE - Appt T2 (Bail de location en cours) KAZA IMMO vous propose à STE LUCE : Dans une résidence très calme et sécurisée, proche des commodités et des grands axes, un appartement de type 2. Il se compose d'une cuisine aménagée ouverte sur le salon / séjour, d'une très belle terrasse sans vis-à-vis, d'une chambre climatisée avec placards et d'une SDD et d'un toilette séparé. Bail de location en cours (fin en Mars 27) loyer mensuel de 715 € + 35 € provisions sur charges. Prix de vente 193.000 € HAI dont 14.000 € d'honoraires à la charge de l'acquéreur. Taxe foncière 789 €. Montant moyen trimestriel de la quote-part de charges courantes 236 €. Copropriété de 65 lots. Pour plus de renseignements veuillez contacter Céline THOMAS Tél 0696 03 05 57 / / Les informations sur les risques auxquels ce bien est exposé sont disponibles sur le site Georisques : www.georisques.gouv.fr Afficher plus

Jordan RENEL - SAFTI
Annonce mise à jour le 14/10/2025
Proposée par Jordan RENEL - SAFTI 14/10/2025
9
Appartement, 23 m²

205 550 € 8 937 €/m²
Appartement • 23 m² • 1 pièce

Sainte-Luce (97228)

Village Pierre & vacances à Saint Luce, endroit touristique incontournable à la Martinique. À quelques pas de la Plage, du parcours santé, restaurants et nombreuses activités nautiques. Jordan RENEL vous propose à la vente un studio les pieds dans l'eau!! Prêt et exploitable dans l'immédiat, libre de bail, rendement locatif à forte rentabilité!! Situé au 1er étage, les pièces principales se composent : d'une entrée, un séjour, rangement, une salle d'eau avec wc, une cuisine, une terrasse. Vous bénéficierez d’une vue dégagée sur le parc arboré et la mer. Rentabilité 20 000€ à 25 0000€/AN!!! Information conciergerie sur demande. Venez découvrir rapidement ce Magnifique studio(emplacement premium de la résidence) reposant au coeur de la commune de Saint luce !! contact 0696787736 Le bien comprend 1 lot, et il est situé dans une copropriété de 337 lots (les charges courantes annuelles moyennes de copropriété sont de 3317 € et le syndicat des copropriétaires ne fait pas l'objet d'une procédure citée à l'article L. 721-1 du code de la construction et de l'habitation). Les informations sur les risques auxquels ce bien est exposé sont disponibles sur le site Géorisques : www.georisques.gouv.fr Prix de vente : 205 550 € Honoraires charge vendeur Contactez votre conseiller SAFTI : Jordan RENEL, Tél. : 0696787736, E-mail : - EI - Agent commercial immatriculé au RSAC de FORT-DE-FRANCE sous le numéro 895 264 638 - SAFTI – RENEL Jordan, Conseiller indépendant Afficher plus

Bertrand TISSIER - SAFTI
Annonce publiée le 26/09/2025 - mise à jour 17/11/2025
Proposée par Bertrand TISSIER - SAFTI 26/09/2025 - mise à jour 17/11/2025
9
Appartement, 50 m²

199 000 € 3 980 €/m²
Appartement • 50 m² • 2 pièces • 1 chambre

Sainte-Luce (97228)

Bertrand Tissier vous propose en exclusivité cet appartement en rez-de-jardin, dans une résidence récente et parfaitement entretenue du quartier Trois-Rivières. Il offre une agréable pièce à vivre avec cuisine ouverte, une chambre, une salle de bain, un WC séparé, ainsi qu’une grande terrasse conviviale donnant directement sur le jardin. Un cadre de vie agréable, proche des commodités, parfait pour profiter du confort d’un appartement avec l’atout d’un espace extérieur privatif. Vendu entièrement équipé et meublé. La résidence est très récente, bénéficie d’une conformité administrative totale et reste couverte par la garantie décennale jusqu’en 2033. Un bien clé en main, idéal pour un premier achat ou un investissement locatif serein. Le bien comprend 1 lot, et il est situé dans une copropriété de 16 lots (les charges courantes annuelles moyennes de copropriété sont de 700 € et le syndicat des copropriétaires ne fait pas l'objet d'une procédure citée à l'article L. 721-1 du code de la construction et de l'habitation). Les informations sur les risques auxquels ce bien est exposé sont disponibles sur le site Géorisques : www.georisques.gouv.fr Prix de vente : 199 000 € Honoraires charge vendeur Contactez votre conseiller SAFTI : Bertrand TISSIER, Tél. : 0696779190, E-mail : - EI - Agent commercial immatriculé au RSAC de FORT DE FRANCE sous le numéro 831198171 - SAFTI – TISSIER Bertrand, Conseiller indépendant Afficher plus

Férial FYNNAERT - SAFTI
Annonce publiée le 03/11/2025
Proposée par Férial FYNNAERT - SAFTI 03/11/2025
2
Appartement, 60 m²

220 000 € 3 667 €/m²
Appartement • 60 m² • Meublé • 2 pièces • 1 chambre

Sainte-Luce (97228)

Férial FYNNAERT vous propose en exclusivité un bel appartement de type T2 idéalement situé dans un secteur calme et recherché de Sainte-Luce, à proximité immédiate des plages et des commodités. Ce bien, situé dans un immeuble de bon standing, offre des prestations de qualité et une belle luminosité. Il se compose d’un séjour spacieux, d’une cuisine aménagée, d’une chambre avec placard, d’une salle d’eau, d’un WC indépendant, ainsi que d’une agréable terrasse avec vue mer. Une place de stationnement privative complète l’ensemble. Idéal pour un investissement locatif, un pied-à-terre ou une résidence principale à deux pas du littoral martiniquais. Contactez Férial FYNNAERT pour plus de renseignement ou organiser une visite, Le bien comprend 2 lots, et il est situé dans une copropriété de 27 lots (les charges courantes annuelles moyennes de copropriété sont de 702 € et le syndicat des copropriétaires ne fait pas l'objet d'une procédure citée à l'article L. 721-1 du code de la construction et de l'habitation). Les informations sur les risques auxquels ce bien est exposé sont disponibles sur le site Géorisques : www.georisques.gouv.fr Prix de vente : 220 000 € Honoraires charge vendeur Contactez votre conseiller SAFTI : Férial FYNNAERT, Tél. : 0696077759, E-mail : - EI - Agent commercial immatriculé au RSAC de FORT-DE-FRANCE sous le numéro 517922423 - SAFTI – FYNNAERT Férial, Conseiller indépendant Afficher plus

Peyrot Sébastien - Dr HOUSE-IMMO
Annonce publiée le 02/09/2025 - mise à jour 18/11/2025
Proposée par Peyrot Sébastien - Dr HOUSE-IMMO 02/09/2025 - mise à jour 18/11/2025
10
Appartement, 44 m²

170 000 € 3 864 €/m²
Appartement • 44 m² • 2 pièces • 2 chambres

Sainte-Luce (97228)

Attention bien lire l'annonce ! Le bien est vendu avec un bail commercial avec Pierre et Vacances, avec un loyer ANNUEL d'environ 9 400€ ttc (fixe+variable) Investissement permettant de toucher des revenus complémentaires (rentabilité de 5.5%) tout en pouvant profiter du bien 2 à 3 semaines par an. Permet de lier l'utile à l'agréable! Loyer annuel garanti de 6 700 € ttc et variable de 2 700€ Loyer annuel garanti de 5 800 € ttc avec 2 semaines d'occupation! RARE OPPORTUNITE ! Suite composée de 2 studios communicants, vue parc comprenant: 2 dégagements avec placard, 2 chambres, 2 salles d’eau, 2 wc, une grande terrasse couverte de plus de 20m2 avec 2 kitchenettes. Les charges de copro sont payées par l'exploitant Pierre et Vacances. Possibilité de racheter le mobilier pour 940€ avec hausse du loyer à la clé Le LMNP : placement préféré des Français pour y sécuriser ses économies ou pour préparer sa retraite. Profitez des avantages du statut LMNP, avec des loyers exonérés d'impôts, permettant de générer des revenus complémentaires, de préparer la retraite et la transmission. Les avantages: 1.Constitution d’un patrimoine immobilier : 2.Des revenus réguliers (préparation de la retraite) : 3.Des revenus indexés et donc qui protègent de l’inflation : 4.Des revenus sécurisés : 5.Des revenus peu ou pas fiscalisés : 6.Une gestion déléguée : 7.Un rendement attractif et pérenne Simulation financière en fonction de votre fiscalité Ce bien vous est présenté par Sébastien Peyrot , votre conseiller indépendant Dr House Immo. Afficher plus

Archipel Immobilier
Annonce publiée le 15/03/2025 - mise à jour 13/06/2025
Proposée par Archipel Immobilier 15/03/2025 - mise à jour 13/06/2025
13
Appartement, 75 m²

Prix en baisse 299 000 € 3 987 €/m²
Appartement • 75 m² • 3 pièces • 2 chambres

Sainte-Luce (97228)

Découvrez cet appartement moderne de 75,47 m² à vendre, idéalement situé à la Résidence les Cottages à Sainte-Luce. Construit en 2013, il est en bon état et offre 2 chambres, un salon spacieux, une terrasse pour profiter de l'extérieur, ainsi qu'un garage avec cave au rez-de-chaussée, un parking intérieur et un ascenseur. À 299 000 EUR, c'est une opportunité rare à ne pas manquer. Contactez-nous pour plus d'informations ou pour planifier une visite dès aujourd'hui. Référence agence : 8998 Afficher plus

Gérer les cookies

Superimmo.com utilise des cookies pour vous offrir une expérience utilisateur de qualité, mesurer l’audience du site et améliorer les services proposés.

En cliquant sur « ACCEPTER », vous acceptez l’utilisation des cookies dans les conditions prévues par notre Charte des données. Si vous souhaitez vous pouvez gérer les cookies.