Locations immobilières 2 pièces à Seilh (31840)

Modifier ma recherche
1 annonce
DOMUP
Annonce publiée le 07/11/2025
Proposée par DOMUP 07/11/2025
3
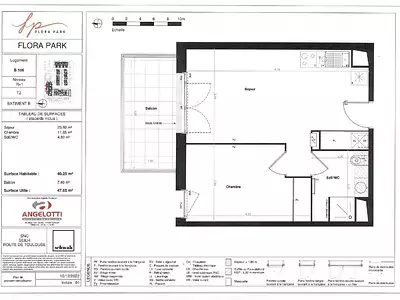
Appartement, 40 m²

587 € CC
Appartement • 40 m² • 2 pièces • 1 chambre

Seilh (31840)

Dans une résidence neuve située route de Toulouse à Seilh - A proximité des commerces, écoles et du périphérique. Appartement T2 composé d'un séjour lumineux de 23,80 m2 avec cuisine ouverte et équipée, donnant sur un balcon de 7,40m2, d'une chambre avec placard de 11,65m², et d'une salle d'eau avec WC de 4,80m². Une place de parking inclus dans le loyer avec possibilité d'en rajouter une deuxième. Disponible à partir du 18 décembre - sans frais d'agence - loyer payable à terme échu. A compter du 1er Décembre, le n° de DOMUP change, merci de nous joindre au 05 61 10 50 10 Les informations sur les risques auxquels ce bien est exposé sont disponibles sur le site Géorisques : www.georisques.gouv.fr

Agent immobilier ?
Diffusez GRATUITEMENT toutes vos annonces sur Superimmo.com