02 40 33 35 00 Appelez de la part de Superimmo.com
Utiliser DossierFacile


DossierFacile est le dossier de location numérique de l'Etat. Entièrement gratuit, conforme et sécurisé, il protège les locataires et rassure les propriétaires.

Vos informations sont transmises directement à l'agence afin qu'elle traite votre demande. Voir notre charte des données personnelles.

Contacter par email
Description

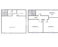
maison de 54,65 m², de type 3 Au RDC: une pièce de vie avec coin cuisine A/E (meubles bas, hotte, plaque de cuisson), un cellier et des W.C. A l'étage: un palier desservant 2 chambres dont une avec rangement, une salle d'eau et des W.C. un espace extérieur clos avec cabanon de jardin 2 places de stationnement. Loyer: 650 euros + charges de 10 euros (entretien microstation) BIEN SOUMIS A LA GARANTIE LOYER IMPAYE (GLI) Votre dossier devra être accepté par l'organisme qui gère la Garantie loyer impayé avant toute visite. Disponible: le 06 janvier 2026 Honoraires: 463 euros dont 163 euros pour l'état des lieux.

Publiée le 10/12/2025 - Réf. agence : PICBM97 - Réf Superimmo : ANLXHTZNE
Vous rencontrez un problème sur le site ?
Merci de nous signaler le problème
Caractérisques
Loyer : 660 € CCCharges : 10 € / mois
Dépôt de garantie : 622,86 €

Honoraires : 463 €. Barème d’honoraires : voir le barème

54,65 m² - 3 pièces - 2 chambres2 Parkings
1 salle d'eau2 wc
Fenêtres double vitrage, en pvc
Bilan énergétique Étiquette climat-énergie : D

Consommation d'énergie

Consommation
235 kWh/m².an
Logement très performantLogement extrêmement consommateur d'énergie

Émission de gaz à effet de serre

Peu d’émissions de CO2
A
B
C
D
E
F
G
7 kgeqCO2/m²/an
Émissions de CO2 très importante

Montant estimé des dépenses annuelles d’énergie pour un usage standard
Minimum : 1 010 € / an
Maximum : 1 420 € / an

Diagnostics réalisés le 21/11/2025.

Intéressez par ce type de bien ?
Pour recevoir par email les annonces similaires
CRÉER UNE ALERTE
Localisation
DEMANDER L’ADRESSE
Cette annonce vous est proposée par :
54 avis clients
02 40 33 35 00 Appelez de la part de Superimmo.com


DossierFacile est le dossier de location numérique de l'Etat. Entièrement gratuit, conforme et sécurisé, il protège les locataires et rassure les propriétaires.

Vos informations sont transmises directement à l'agence afin qu'elle traite votre demande. Voir notre charte des données personnelles.

Autres recherches

toutes les maisons de 3 pièces à Divatte-sur-Loire