04 50 22 02 45 Appelez de la part de Superimmo.com
Utiliser DossierFacile


DossierFacile est le dossier de location numérique de l'Etat. Entièrement gratuit, conforme et sécurisé, il protège les locataires et rassure les propriétaires.

Vos informations sont transmises directement à l'agence afin qu'elle traite votre demande. Voir notre charte des données personnelles.

Contacter par email
Description

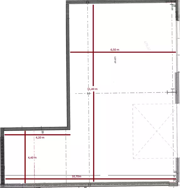
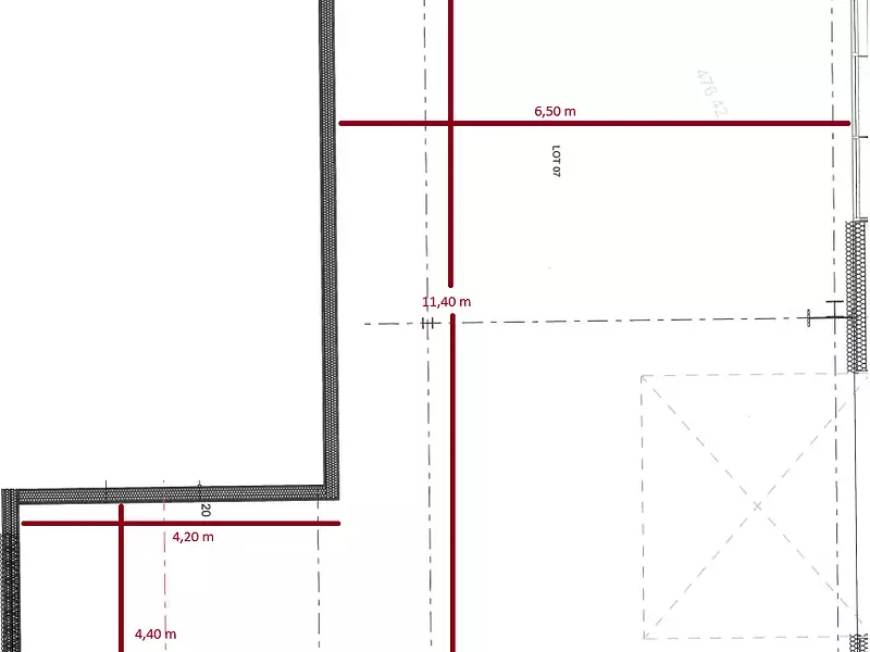
À proximité immédiate de la zone du Grand Epagny, et à l’entrée de Sillingy, découvrez ce local professionnel neuf de 92 m2, situé dans un secteur calme et offrant un environnement idéal pour développer votre activité.
Caractéristiques du local :
Surface : 92 m2 en plateau brut à aménager selon vos besoins
Très lumineux grâce à de larges baies vitrées
Espace commun avec sanitaires accessible dans la copropriété
Nombreuses possibilités d’aménagement
Multiples activités acceptées (hors nuisances)
Ce local constitue une opportunité rare pour créer un espace professionnel sur mesure, dans un secteur dynamique et recherché.
Idéal pour bureaux, professions libérales, showroom, activités de services, etc.

Publiée le 01/12/2025 - Réf. agence : 2612 - Réf Superimmo : ANLXZZU3S
Vous rencontrez un problème sur le site ?
Merci de nous signaler le problème
Caractérisques
Loyer : 1 700 € CCDépôt de garantie : 3 400 €

Barème d’honoraires : voir le barème

92,26 m²Année de construction : 2025
Bilan énergétique
Non soumis au DPE
Intéressez par ce type de bien ?
Pour recevoir par email les annonces similaires
CRÉER UNE ALERTE
Localisation
DEMANDER L’ADRESSE
Cette annonce vous est proposée par :
04 50 22 02 45 Appelez de la part de Superimmo.com


DossierFacile est le dossier de location numérique de l'Etat. Entièrement gratuit, conforme et sécurisé, il protège les locataires et rassure les propriétaires.

Vos informations sont transmises directement à l'agence afin qu'elle traite votre demande. Voir notre charte des données personnelles.