05 49 24 47 47 Appelez de la part de Superimmo.com
Utiliser DossierFacile


DossierFacile est le dossier de location numérique de l'Etat. Entièrement gratuit, conforme et sécurisé, il protège les locataires et rassure les propriétaires.

Vos informations sont transmises directement à l'agence afin qu'elle traite votre demande. Voir notre charte des données personnelles.

Contacter par email
Description

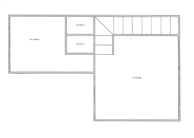
A louer, locaux professionnels d'une superficie totale de 218.00m². L'entrée dessert un palier avec ascenseur pour accéder au 1er étage et un espace commun avec deux WC et un point d'eau pouvant faire office de salle privée pour les pauses déjeuners. A 1er étage se trouvent 4 bureaux dont un avec un point d'eau. Deux espaces pouvant faire office de salles d'attentes se trouvent également à ce niveau ainsi qu'une pièce de stockage et des WC. Un grand parking se trouve devant les locaux. Possibilité de louer par cellule (le loyer et les honoraires seront recalculés en fonction de la surface louée). Ces locaux sont parfaits pour des professions médicales. Libre de suite

Maj le 28/06/2025 - Réf. agence : 1982 - Réf Superimmo : ANLXXG32C
Vous rencontrez un problème sur le site ?
Merci de nous signaler le problème
Caractérisques
Loyer : 1 500 € CCDépôt de garantie : 1 500 €

Honoraires : 4 854 €. Barème d’honoraires : voir le barème

218 m²
Bilan énergétique

Consommation d'énergie (DPE)

Logement très performant
A
B
C
D
E
F
G
19 804 kWh/m²/an
Logement extrêmement consommateur d’énergie

Émission de gaz à effet de serre (GES)

Peu d’émissions de CO2
A
B
C
D
E
F
G
6 kgeqCO2/m²/an
Émissions de CO2 très importante

Diagnostics réalisés le 16/02/2021.

Intéressez par ce type de bien ?
Pour recevoir par email les annonces similaires
CRÉER UNE ALERTE
Localisation
DEMANDER L’ADRESSE
Cette annonce vous est proposée par :
05 49 24 47 47 Appelez de la part de Superimmo.com


DossierFacile est le dossier de location numérique de l'Etat. Entièrement gratuit, conforme et sécurisé, il protège les locataires et rassure les propriétaires.

Vos informations sont transmises directement à l'agence afin qu'elle traite votre demande. Voir notre charte des données personnelles.