07 60 49 85 33 Appelez de la part de Superimmo.com
Utiliser DossierFacile


DossierFacile est le dossier de location numérique de l'Etat. Entièrement gratuit, conforme et sécurisé, il protège les locataires et rassure les propriétaires.

Vos informations sont transmises directement à l'agent afin qu’il traite votre demande.

Contacter par email
Description

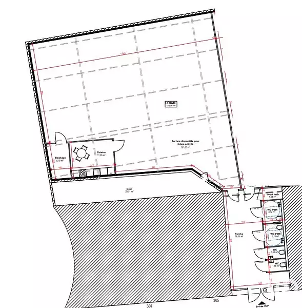
iad France - Anthony Perrin (07 60 49 85 33) vous propose : À LOUER : Entrepôt entièrement rénové de 198 m² environ – A aménager selon vos besoins ! (Côté gauche sur le plan)
Vous recherchez un espace fonctionnel et flexible pour votre activité ? Cet entrepôt de 198 m² environ, fraîchement rénové, est la solution idéale pour vos besoins professionnels !
Caractéristiques principales :
Superficie : 198 m² environ, offrant un vaste espace pour stockage, .
Aménagement : Espace brut à aménager selon vos besoins spécifiques (bureaux, zones de stockage, espaces de travail).
Accessibilité : Facilement accessible par la route, avec une proximité immédiate des principaux axes de transport.
Stationnement : Possibilité de stationnement à proximité
Pourquoi choisir cet entrepôt ?
Polyvalence : Que vous soyez artisan, commerçant ou une entreprise de logistique, cet espace s’adapte à vos besoins.
Personnalisation : Créez un espace qui correspond parfaitement à votre activité et à vos équipes.
Localisation stratégique : Centre ville de Tours
Conditions de location :
Loyer mensuel : 3000 Euros HC
Charges : 300 Euros mensuel
Disponibilité : 1 er Avril
Information d'affichage énergétique sur le bien associé à cette annonce : DPE NS indice 0 et GES NS indice 0. La présente annonce immobilière a été rédigée sous la responsabilité éditoriale de M. Anthony Perrin (ID 70459), Agent Commercial mandataire en immobilier immatriculé au Registre Spécial des Agents Commerciaux (RSAC) du Tribunal de Commerce de TOURS sous le numéro 804121135
Retrouvez tous nos biens sur notre site internet.

Publiée le 09/01/2025 - Réf. agence : 1668225 - Réf Superimmo : ANLXXM4PE
Vous rencontrez un problème sur le site ?
Merci de nous signaler le problème
Caractérisques
Loyer : 3 300 € CCCharges : 300 € / mois

Honoraires : 9 000 €. Barème d’honoraires : voir le barème

198 m²
Bilan énergétique
Non soumis au DPE
Intéressez par ce type de bien ?
Pour recevoir par email les annonces similaires
CRÉER UNE ALERTE
Localisation
DEMANDER L’ADRESSE
Cette annonce vous est proposée par :
07 60 49 85 33 Appelez de la part de Superimmo.com


DossierFacile est le dossier de location numérique de l'Etat. Entièrement gratuit, conforme et sécurisé, il protège les locataires et rassure les propriétaires.

Vos informations sont transmises directement à l'agent afin qu’il traite votre demande.