06 23 16 40 91 Appelez de la part de Superimmo.com
Utiliser DossierFacile


DossierFacile est le dossier de location numérique de l'Etat. Entièrement gratuit, conforme et sécurisé, il protège les locataires et rassure les propriétaires.

Vos informations sont transmises directement à l'agent afin qu’il traite votre demande.

Contacter par email
Description

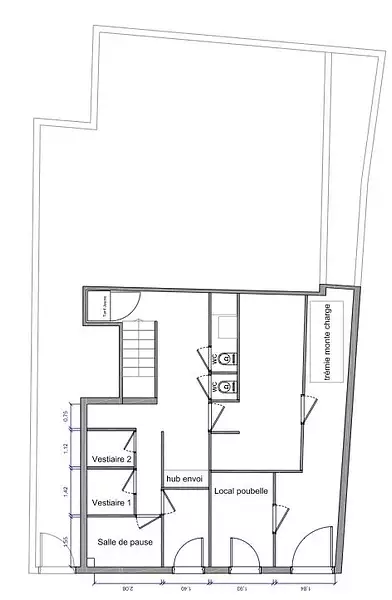
iad France - Julien Bernardini (06 23 16 40 91) vous propose : LOCATION PURE avec extraction 300, chambres froides et cuisines, Paris 20e .../...
-Surface : 190 m2 environ,
RDC : 60m2 environ,
Sous-sol : 130m2 environ aménagé laboratoire .../...
Eléments de cuisine compris (Tables réfrigérées 3 et 4 portes, chambres froides + et -, monte-charges,...) .../...
-Extraction 300mm en 2 conduits de 200mm .../...
-Loyer : 40K € /an,
-Charges : 4 500€ /an
-Foncière : 1302 € /an
- Garantie : 3 mois de loyer HT HC
- Garantie comp. : selon éléments comptables
- Honoraires : 3 mois de loyer HT HC
-Metro 3bis : Pelleport,
Proche ligne 3 et Boulevards Maréchaux .../...
- Bail Neuf,
Idéal laboratoire ou Dark Kitchen, peu d'aménagements. Possibilité de Restaurant, Boulangerie : Beau linéaire, RDC avec lumière traversante (rue - cour) .../...
A SAISIR RAPIDEMENT .../...
Information d'affichage énergétique sur le bien associé à cette annonce : DPE NS indice 0 et GES NS indice 0. La présente annonce immobilière a été rédigée sous la responsabilité éditoriale de M. Julien Bernardini (ID 79749), Agent Commercial mandataire en immobilier immatriculé au Registre Spécial des Agents Commerciaux (RSAC) du Tribunal de Commerce de VERSAILLES sous le numéro 499641314
Retrouvez tous nos biens sur notre site internet.

Publiée le 12/12/2024 - Réf. agence : 1659739 - Réf Superimmo : ANLXXGRFU
Vous rencontrez un problème sur le site ?
Merci de nous signaler le problème
Caractérisques
Loyer : 4 000 € CCCharges : 250 € / mois

Honoraires : 11 250 €. Barème d’honoraires : voir le barème

190 m²
Bilan énergétique
Non soumis au DPE
Intéressez par ce type de bien ?
Pour recevoir par email les annonces similaires
CRÉER UNE ALERTE
Localisation
DEMANDER L’ADRESSE
Cette annonce vous est proposée par :
1 avis client
06 23 16 40 91 Appelez de la part de Superimmo.com


DossierFacile est le dossier de location numérique de l'Etat. Entièrement gratuit, conforme et sécurisé, il protège les locataires et rassure les propriétaires.

Vos informations sont transmises directement à l'agent afin qu’il traite votre demande.