06 17 44 72 54 Appelez de la part de Superimmo.com
Utiliser DossierFacile


DossierFacile est le dossier de location numérique de l'Etat. Entièrement gratuit, conforme et sécurisé, il protège les locataires et rassure les propriétaires.

Vos informations sont transmises directement à l'agence afin qu'elle traite votre demande. Voir notre charte des données personnelles.

Contacter par email
Description

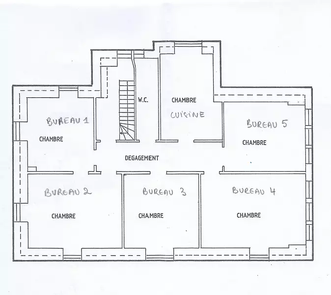
Bureaux d'une surface de 160m2 à louer au centre-ville
2ème étage sans ascenseur d'une maison comprenant des bureaux professionnels au rez de chaussée.
5 Bureaux avec une cuisine, un toilette, une cave (sol béton)
3 parkings extérieurs - résidence fermée - possibilité de louer des parkings supplémentaires
L'ensemble des bureaux sont climatisés - parquet
Loyer mensuel HT 2000€ + 300€ HT mensuels de charges (chauffage, eau, entretien de la cours, électricité des communs)
Honoraires à charges locataires 7200 € TTC
Les informations sur les risques auxquels ce bien est exposé sont disponibles sur le site Géorisques http://www.georisques.gouv.fr

Publiée le 31/01/2025 - Réf. agence : 84 - Réf Superimmo : ANLXXRWRW
Vous rencontrez un problème sur le site ?
Merci de nous signaler le problème
Caractérisques
Loyer : 2 000 € CC

Honoraires : 7 200 €. Barème d’honoraires : voir le barème

160 m² - 5 piècesAnnée de construction : 1930
Bilan énergétique Étiquette climat-énergie : D

Consommation d'énergie

Consommation
182 kWh/m².an
Logement très performantLogement extrêmement consommateur d'énergie

Émission de gaz à effet de serre

Peu d’émissions de CO2
A
B
C
D
E
F
G
41 kgeqCO2/m²/an
Émissions de CO2 très importante

Montant estimé des dépenses annuelles d’énergie pour un usage standard (année(s) de référence : 2021)
Maximum : 2 864 € / an

Diagnostics réalisés le 19/06/2024.

Intéressez par ce type de bien ?
Pour recevoir par email les annonces similaires
CRÉER UNE ALERTE
Localisation
DEMANDER L’ADRESSE
Cette annonce vous est proposée par :
06 17 44 72 54 Appelez de la part de Superimmo.com


DossierFacile est le dossier de location numérique de l'Etat. Entièrement gratuit, conforme et sécurisé, il protège les locataires et rassure les propriétaires.

Vos informations sont transmises directement à l'agence afin qu'elle traite votre demande. Voir notre charte des données personnelles.