06 59 44 86 70 Appelez de la part de Superimmo.com
Utiliser DossierFacile


DossierFacile est le dossier de location numérique de l'Etat. Entièrement gratuit, conforme et sécurisé, il protège les locataires et rassure les propriétaires.

Vos informations sont transmises directement à l'agence afin qu'elle traite votre demande. Voir notre charte des données personnelles.

Contacter par email
Description

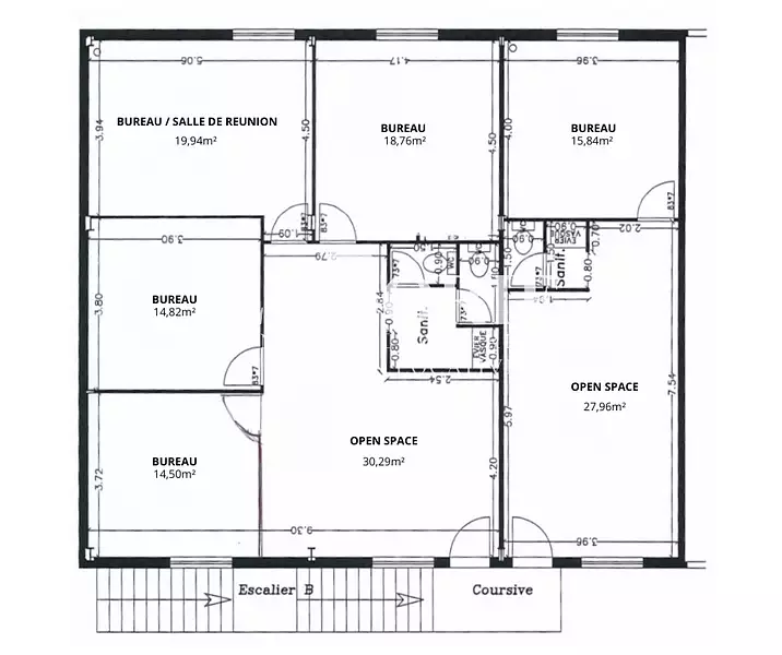
Sur la commune de Vedène, nous mettons en location un espace de travail de 153m2. Au premier et dernier étage d'une ensemble immobilier, découvrez un espace de travail fonctionnel composé d'un open space et de plusieurs bureaux et d'un espaces sanitaires. L'ensemble des locaux est climatisé. Nombreuses prises dans les bureaux, sol en béton ciré, fenêtres pvc double vitrage. 3 places de parking à usage exclusif. Petit local de stockage attenant.
DPE : C GES : B
Le loyer est de 1900 € HT mensuels. Charges annuelles HT : néant. Taxe foncière et TEOM : 940 € /an à la charge du preneur. Grantie : 2 mois de loyer HT. Honoraires d'agence dont état des lieux : 2203€ HT à charges du preneur (et 2203€ HT à charges du bailleur).
Si vous avez des questions, vous pouvez contacter LA BORIE IMMOBILIER SORGUES. Contactez Sarah : 06.59.44.86.70
« Les informations sur les risques auxquels ce bien est exposé sont disponibles sur le site Géorisques : www.georisques.gouv.fr ». Siret 901 517 466 RC d'Avignon

Publiée le 31/10/2025 - Réf. agence : LRLCO40011569 - Réf Superimmo : ANLXXARBI
Vous rencontrez un problème sur le site ?
Merci de nous signaler le problème
Caractérisques
Loyer : 1 900 € CC Prix en baisseDépôt de garantie : 1 850 €

Frais d'état des lieux : 1 540 € - Honoraires : 2 203 €. Barème d’honoraires : voir le barème

Disponible immédiatement153 m²
Bilan énergétique

Consommation d'énergie (DPE)

Logement très performant
A
B
C
D
E
F
G
147 kWh/m²/an
Logement extrêmement consommateur d’énergie

Émission de gaz à effet de serre (GES)

Peu d’émissions de CO2
A
B
C
D
E
F
G
7 kgeqCO2/m²/an
Émissions de CO2 très importante

Diagnostics réalisés le 28/09/2009.

Intéressez par ce type de bien ?
Pour recevoir par email les annonces similaires
CRÉER UNE ALERTE
Localisation
DEMANDER L’ADRESSE
Cette annonce vous est proposée par :
06 59 44 86 70 Appelez de la part de Superimmo.com


DossierFacile est le dossier de location numérique de l'Etat. Entièrement gratuit, conforme et sécurisé, il protège les locataires et rassure les propriétaires.

Vos informations sont transmises directement à l'agence afin qu'elle traite votre demande. Voir notre charte des données personnelles.