02 33 46 96 79 Appelez de la part de Superimmo.com

Vos informations sont transmises directement à l'agence afin qu'elle traite votre demande. Voir notre charte des données personnelles.

Contacter par email
Description

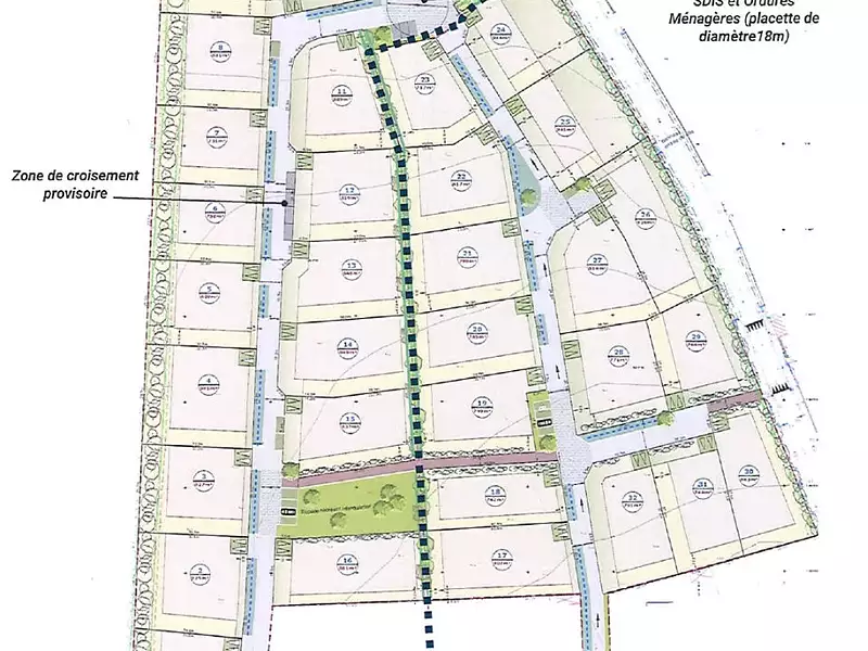
DELAMARCHE immobilier vous propose à la vente 31 parcelles constructibles sur HERENGUERVILLE à 2 Kms du bourg de MONTMARTIN SUR MER et de ses commerces et moins de 5 Kms des plages de HAUTEVILLE SUR MER accessibles par des routes praticables à vélo. Les parcelles de terrain sont viabilisées (électricité, eau) pour des superficies allant de 717 à 948 m². Prévoir assainissement autonome. Les prix sont compris entre 46 500 euros et 59 000 euros honoraires charge vendeur selon les lots. « Les informations sur les risques auxquels ce bien est exposé sont disponibles sur le site Géorisques : www.georisques.gouv.fr » Pour visiter, contactez l'agence DELAMARCHE immobilier de HAUTEVILLE SUR MER au 02 33 46 96 79.

Maj le 05/07/2025 - Réf. agence : 8252AD-lot1 - Réf Superimmo : ANVXULIHG
Vous rencontrez un problème sur le site ?
Merci de nous signaler le problème
Caractérisques
Prix de vente : 59 000 €Prix au m² : 62 € / m²

Honoraires à la charge du vendeur. Barème d’honoraires : voir le barème

948 m²
Intéressez par ce type de bien ?
Pour recevoir par email les annonces similaires
CRÉER UNE ALERTE
Localisation
DEMANDER L’ADRESSE
Cette annonce vous est proposée par :
02 33 46 96 79 Appelez de la part de Superimmo.com

Vos informations sont transmises directement à l'agence afin qu'elle traite votre demande. Voir notre charte des données personnelles.