06 50 24 10 64 Appelez de la part de Superimmo.com

Vos informations sont transmises directement à l'agent afin qu’il traite votre demande.

Contacter par email
Description

Idéalement situé à deux pas de la plage des Marettes, ce terrain bénéficie d’un emplacement rare à Vitrolles Sud, dans un quartier résidentiel recherché. À proximité immédiate des grands axes (autoroutes), de la gare TGV, de la gare de Vitrolles et de l’aéroport Marseille-Provence, il offre un cadre à la fois calme et très bien desservi. Parfait pour un projet de promotion ou d’investissement.
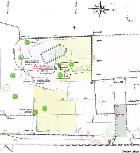
Le macro-lot est entièrement viabilisé et vendu dans sa totalité (aucune vente à l’unité). Le permis de construire, toujours valide, permet la réalisation de trois maisons individuelles. Deux d’entre elles bénéficieront d’une vue imprenable sur l’étang, véritable atout pour valoriser le projet.
Le permis prévoit la construction de trois maisons individuelles, à personnaliser selon vos besoins ou ceux de vos clients. Le cadre naturel, la proximité avec la plage et les transports en font un produit rare et recherché.
Les informations sur les risques auxquels ce bien est exposé sont disponibles sur le site Géorisques : www.georisques.gouv.fr
Prix de vente : 569 000 €
Honoraires charge vendeur
Contactez votre conseiller SAFTI : Nahuel LOUIS, Tél. : 0650241064, E-mail : - EI - Agent commercial immatriculé au RSAC de SALON DE PROVENCE sous le numéro 944517739 - SAFTI – LOUIS Nahuel, Conseiller indépendant

Publiée le 13/07/2025 - maj le 28/07/2025 - Réf. agence : 1501309 - Réf Superimmo : ANVXZ2A70
Vous rencontrez un problème sur le site ?
Merci de nous signaler le problème
Caractérisques
Prix de vente : 569 000 €Prix au m² : 616 € / m²

Barème d’honoraires : voir le barème

924 m²
Intéressez par ce type de bien ?
Pour recevoir par email les annonces similaires
CRÉER UNE ALERTE
Localisation
DEMANDER L’ADRESSE
Cette annonce vous est proposée par :
06 50 24 10 64 Appelez de la part de Superimmo.com

Vos informations sont transmises directement à l'agent afin qu’il traite votre demande.

Autres recherches

tous les terrains avec étang dans les Bouches-du-Rhône