03 21 05 21 05 Appelez de la part de Superimmo.com

Vos informations sont transmises directement à l'agence afin qu'elle traite votre demande. Voir notre charte des données personnelles.

Contacter par email
Description

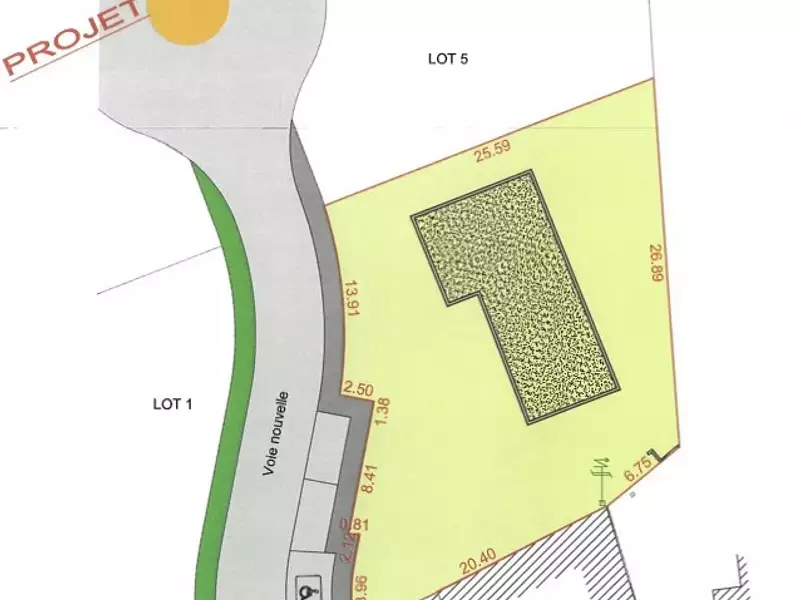
terrain plat constructible de 701 m2 à l'entrée du Touquet. Environnement calme

Publiée le 03/06/2025 - maj le 25/09/2025 - Réf. agence : - Réf Superimmo : ANVXYPHWG
Vous rencontrez un problème sur le site ?
Merci de nous signaler le problème
Caractérisques
Prix de vente : 320 000 €Prix au m² : 456 € / m²

Barème d’honoraires : voir le barème

701 m²
Intéressez par ce type de bien ?
Pour recevoir par email les annonces similaires
CRÉER UNE ALERTE
Localisation
DEMANDER L’ADRESSE
Cette annonce vous est proposée par :
94 avis clients
03 21 05 21 05 Appelez de la part de Superimmo.com

Vos informations sont transmises directement à l'agence afin qu'elle traite votre demande. Voir notre charte des données personnelles.