01 48 84 21 21 Appelez de la part de Superimmo.com

Vos informations sont transmises directement à l'agence afin qu'elle traite votre demande. Voir notre charte des données personnelles.

Contacter par email
Description

- SAINT MAUR - Quartier La PIE à 2 pas des bords de marne, grand terrain d'angle de 667m2 viabilisé avec 17,77 m de façade.
Le terrain est vendu avec un permis de construire accordé pour la construction de 1 ou 2 maisons individuelles selon votre projet :
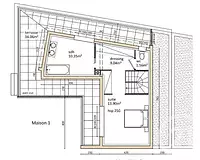
- Maison 1 : R+1+attique de 174,24 m2 habitables séjour cathédrale, 3 chambres à l'étage et 1 chambre en rooftop avec terrasse privative de 34,06m2. Sous-sol total de 85m2.
- Maison 2 : R+1 de 104 m2 habitable avec 3 chambres.
Le dossier peut être consulter à l'agence sur rendez-vous. Une affaire à saisir !

Publiée le 17/05/2025 - maj le 26/11/2025 - Réf. agence : 10606 - Réf Superimmo : ANVXYJQ7N
Vous rencontrez un problème sur le site ?
Merci de nous signaler le problème
Caractérisques
Prix de vente : 659 500 €Prix au m² : 989 € / m²

Honoraires à la charge de l'acquéreur : 3,07% TTC - 19 500 € TTC inclus dans le prix de vente - Prix hors honoraires : 640 000 €. Barème d’honoraires : voir le barème

667 m²Terrain viabilisé
Terrain raccordé : électricité, gaz
Intéressez par ce type de bien ?
Pour recevoir par email les annonces similaires
CRÉER UNE ALERTE
Localisation
DEMANDER L’ADRESSE
Cette annonce vous est proposée par :
01 48 84 21 21 Appelez de la part de Superimmo.com

Vos informations sont transmises directement à l'agence afin qu'elle traite votre demande. Voir notre charte des données personnelles.