06 80 12 15 95 Appelez de la part de Superimmo.com

Vos informations sont transmises directement à l'agence afin qu'elle traite votre demande. Voir notre charte des données personnelles.

Contacter par email
Description

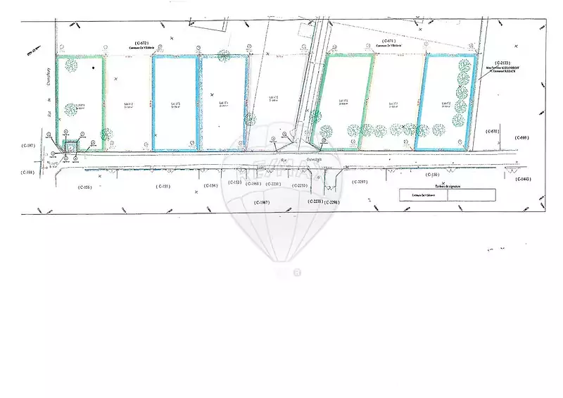
Terrains à vendre en exclusivité sur la commune de VILLEBLEVIN.
Vous souhaitez construire votre maison sur une commune agréable avec écoles: maternelle, élémentaire, garderie, centre aéré, cantine ), commerces: boulangerie, coiffeur, supermarché, gare pour PARIS (gare de LYON ) à 5 mn.
8 Lots d'environ 600m² chacun sont à vendre à 68 000 € chacun.
Vous n'avez plus qu'à choisir le vôtre.
Vous souhaitez plus d'informations contactez moi!
Honoraires à la charge du vendeur.
Les informations sur les risques auxquels ce bien est exposé sont disponibles sur le site Géorisques : www.georisques.gouv.fr .

Publiée le 31/05/2025 - maj le 30/11/2025 - Réf. agence : 750061005-72 - Réf Superimmo : ANVXYOYRJ
Vous rencontrez un problème sur le site ?
Merci de nous signaler le problème
Caractérisques
Prix de vente : 68 000 €Prix au m² : 113 € / m²

Honoraires à la charge du vendeur. Barème d’honoraires : voir le barème

600 m²
Intéressez par ce type de bien ?
Pour recevoir par email les annonces similaires
CRÉER UNE ALERTE
Localisation
DEMANDER L’ADRESSE
Cette annonce vous est proposée par :
184 avis clients
06 80 12 15 95 Appelez de la part de Superimmo.com

Vos informations sont transmises directement à l'agence afin qu'elle traite votre demande. Voir notre charte des données personnelles.