01 80 88 10 61 Appelez de la part de Superimmo.com

Vos informations sont transmises directement à l'agence afin qu'elle traite votre demande. Voir notre charte des données personnelles.

Contacter par email
Description

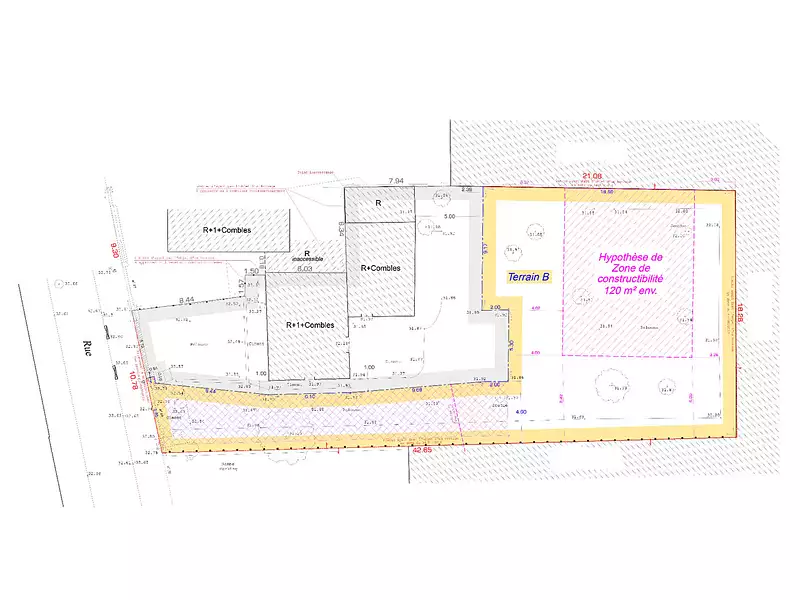
Les Agents de l'Immobilier Nanterre vous propose à la vente un Terrain constructible de 448 m², idéalement situé à proximité du centre-ville , et limite de Rueil. Ce terrain offre la possibilité d'édifier une maison de plus de 200 m². Le certificat d'urbanisme a été validé par la mairie. Le coefficient d'occupation des sols est fixé à 35 %, permettant une surface au sol maximale de 120 m². La hauteur de construction est limitée à 9 mètres à la gouttière et 12 mètres au faîtage. Une opportunité rare sur le marché ! N'hésiter pas à le visiter en nous contactant au 06_81_82_62_54 Selon l'article L. 561-5 du Code monétaire et financier, la copie de votre pièce d'identité ou de votre passeport sera demandée pour chaque visite. Les informations sur les risques auxquels ce bien est exposé sont disponibles sur le site Géorisques http://www.georisques.gouv.fr

Publiée le 03/04/2025 - maj le 16/11/2025 - Réf. agence : NB-15901 - Réf Superimmo : ANVXY8FTX
Vous rencontrez un problème sur le site ?
Merci de nous signaler le problème
Caractérisques
Prix de vente : 437 000 € Prix en baissePrix au m² : 975 € / m²

Honoraires à la charge du vendeur. Barème d’honoraires : voir le barème

448 m²
Intéressez par ce type de bien ?
Pour recevoir par email les annonces similaires
CRÉER UNE ALERTE
Historique des prix
28 septembre 2025

Baisse de 5%

437 000 €
17 mai 2025

Baisse de 2,2%

460 000 €
3 avril 2025
470 400 €
Localisation
DEMANDER L’ADRESSE
Cette annonce vous est proposée par :
70 avis clients
01 80 88 10 61 Appelez de la part de Superimmo.com

Vos informations sont transmises directement à l'agence afin qu'elle traite votre demande. Voir notre charte des données personnelles.