06 28 34 88 80 Appelez de la part de Superimmo.com

Vos informations sont transmises directement à l'agence afin qu'elle traite votre demande. Voir notre charte des données personnelles.

Contacter par email
Description

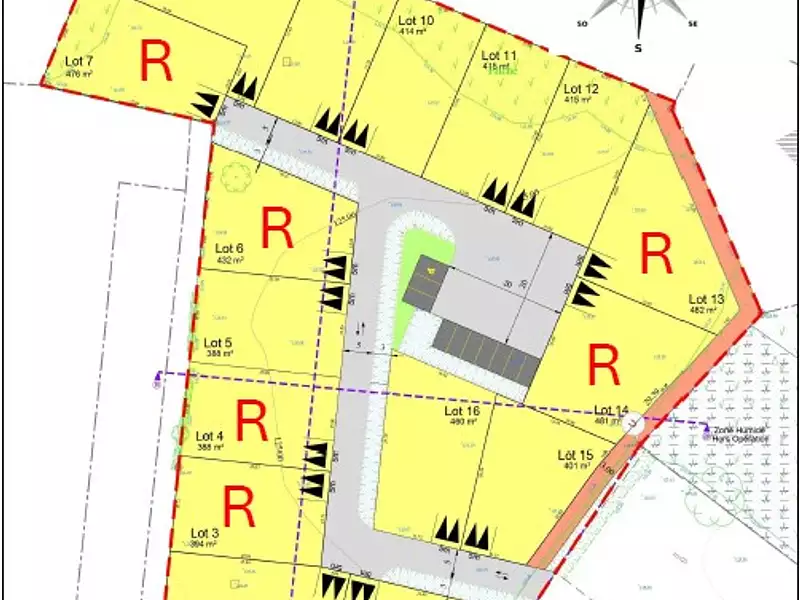
Venez découvrir ces Terrains à bâtir viabilisés en vente à 5 km de Chemillé à des Prix très Attractifs - Situés sur la commune de Melay dans un lotissement de 16 lots !
Tous Libre de Constructeur et Viabilisés pour des surfaces allant de 388m2 à 683m2 jusqu'à épuisement des stocks - Au Calme dans un Écrin de Verdure.
Prix allant de 40 600 € HAI pour une parcelle de 388m2 jusqu'à 67 600 € HAI pour une parcelle de 683m2 (La grille des tarifs pour les autres terrains à bâtir est disponible en agence) - Achat Malin et Économique !
(Agence AMP Loire Immobilier - Pour plus d'information contactez notre Conseiller Sylvain MARTIN)

Publiée le 04/07/2025 - maj le 03/12/2025 - Réf. agence : 0260 - Réf Superimmo : ANVXYYNVQ
Vous rencontrez un problème sur le site ?
Merci de nous signaler le problème
Caractérisques
Prix de vente : 40 600 €Prix au m² : 105 € / m²

Honoraires à la charge de l'acquéreur : 10,15% TTC - 3 740 € TTC inclus dans le prix de vente. Barème d’honoraires : voir le barème

388 m²
Intéressez par ce type de bien ?
Pour recevoir par email les annonces similaires
CRÉER UNE ALERTE
Localisation
DEMANDER L’ADRESSE
Cette annonce vous est proposée par :
06 28 34 88 80 Appelez de la part de Superimmo.com

Vos informations sont transmises directement à l'agence afin qu'elle traite votre demande. Voir notre charte des données personnelles.