06 80 65 75 65 Appelez de la part de Superimmo.com

Vos informations sont transmises directement à l'agent afin qu’il traite votre demande.

Contacter par email
Description

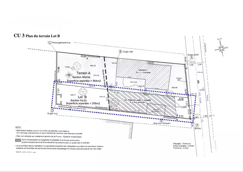
iad France - Stéphane Gervasi vous propose: Terrain à bâtir de 376 m2 à moins de 15 minutes à pied de la gare RER C de Saint michel sur Orge.
Façade de 7,70 ml - Zone UH du PLU ( implantation sur les 2 limites séparatives et R+1+C autorisés ) -Terrain plat non viabilisé - Présence d'un garage sur la parcelle - Portail existant - Certificat d'urbanisme opérationnel obtenu.
Proche commerces , écoles, transports en commun .
N'hésitez pas à contacter pour plus d'informations ou convenir d'un rendez vous .
Honoraires d'agence à la charge du vendeur.
Bien non soumis au DPE. Les informations sur les risques auxquels ce bien est exposé, y compris l'obligation légale de débroussaillement, sont disponibles sur le site Géorisques : http://www.georisques.gouv.fr.
La présente annonce immobilière a été rédigée sous la responsabilité éditoriale de M Stéphane Gervasi mandataire indépendant en immobilier (sans détention de fonds), agent commercial de la SAS I@D France immatriculé au RSAC de EVRY sous le numéro 511705873, titulaire de la carte de démarchage immobilier pour le compte de la société I@D France SAS.

Publiée le 07/07/2025 - maj le 31/07/2025 - Réf. agence : 1805075 - Réf Superimmo : ANVXYZGBB
Vous rencontrez un problème sur le site ?
Merci de nous signaler le problème
Caractérisques
Prix de vente : 187 000 €Prix au m² : 497 € / m²

Honoraires à la charge du vendeur. Barème d’honoraires : voir le barème

376 m²
Bilan énergétique
Non soumis au DPE
Intéressez par ce type de bien ?
Pour recevoir par email les annonces similaires
CRÉER UNE ALERTE
Localisation
DEMANDER L’ADRESSE
Cette annonce vous est proposée par :
26 avis clients
06 80 65 75 65 Appelez de la part de Superimmo.com

Vos informations sont transmises directement à l'agent afin qu’il traite votre demande.