06 22 07 97 82 Appelez de la part de Superimmo.com

Vos informations sont transmises directement à l'agence afin qu'elle traite votre demande. Voir notre charte des données personnelles.

Contacter par email
Description

Aquila immobilier 06 27 26 88 88 vous propose un Terrain à Viitry sur Seine 94400 avec permis de construire. 5 minutes de la porte de Choisy et la ville de Paris
A proximité de Villejuif, le Kremlin-Bicêtre dans une zône de pavillons: priximité des hopitaux , des écoles, de la Mairie etc...
Le terrain est desservi par le Tramway No 9 et le métro No15 qui sera très prochainement en service.
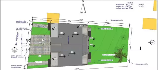
Possibilité de construire deux maisons jumlées avec 104 M2 chacune, ou es appartements R+2 en investissement.
Permis de construire en cours de validité, des plans disponibles sur demande et à titre indicatif*
*LES PLANS SONT A TITRE INDICATIF.
Affaire à saisir
CONTACT AQUILA IMMOBILIER.
La présente annonce immobilière a été rédigée sous la responsabilité éditoriale de l'agence Aquila immobilier, (RCS 88086585200011) du Tribunal de Commerce de SAINT ETIENNE. Les honoraires sont à la charge du vendeur. Retrouver toutes nos annonces sur - Annonce rédigée et publiée PAR AQUILA I MMOBILIER - Barème:

Maj le 08/12/2025 - Réf. agence : ALVTE80000317 - Réf Superimmo : ANVXSDTTE
Vous rencontrez un problème sur le site ?
Merci de nous signaler le problème
Caractérisques
Prix de vente : 329 000 € Prix en baissePrix au m² : 1 219 € / m²

Barème d’honoraires : voir le barème

270 m²Terrain constructible
Intéressez par ce type de bien ?
Pour recevoir par email les annonces similaires
CRÉER UNE ALERTE
Localisation
DEMANDER L’ADRESSE
Cette annonce vous est proposée par :
06 22 07 97 82 Appelez de la part de Superimmo.com

Vos informations sont transmises directement à l'agence afin qu'elle traite votre demande. Voir notre charte des données personnelles.