06 75 37 01 81 Appelez de la part de Superimmo.com

Vos informations sont transmises directement à l'agence afin qu'elle traite votre demande. Voir notre charte des données personnelles.

Contacter par email
Description

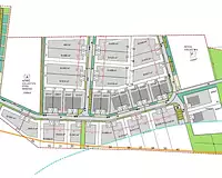
MONTIGNY LES METZ - Lotissement La Horgne Du Sablon située au Parc De La Closerie. Idéalement situé - ce nouveau lotissement se situe au croisement de Metz Magny - Metz Sablon (Gare) et Marly - LOT 21 Terrain constructible de 214m2 vendu viabilisé comprenant une surface plancher de construction affecté de 180m2. Exposition Sud-Est - façade de 9m. Plusieurs terrains sont actuellement disponibles: superficies comprises entre 2.03 ares et 8.30 ares et prix de vente compris entre 99 938€ et 288 770€ en fonction de leurs spécificités. Libre de constructeur. Hauteur: R+1+Toiture - pas de prescription concernant l'emprise au sol. Livraison prévue fin 1er Trimestre 2026 avec voirie provisoire. Prix affiché hors DMTO.

Publiée le 26/09/2025 - maj le 05/12/2025 - Réf. agence : Zl177359 - Réf Superimmo : ANVXZJBR7
Vous rencontrez un problème sur le site ?
Merci de nous signaler le problème
Caractérisques
Prix de vente : 99 938 €Prix au m² : 467 € / m²

Barème d’honoraires : voir le barème

214 m²
Intéressez par ce type de bien ?
Pour recevoir par email les annonces similaires
CRÉER UNE ALERTE
Localisation
DEMANDER L’ADRESSE
Cette annonce vous est proposée par :
06 75 37 01 81 Appelez de la part de Superimmo.com

Vos informations sont transmises directement à l'agence afin qu'elle traite votre demande. Voir notre charte des données personnelles.