06 44 79 92 32 Appelez de la part de Superimmo.com

Vos informations sont transmises directement à l'agence afin qu'elle traite votre demande. Voir notre charte des données personnelles.

Contacter par email
Description

Projet immobilier de rénovation en cours
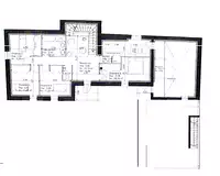
A moins de 2h30 de Paris et 3h45 de Bruxelles en bordure des champs très beau projet de rénovation immobilière . Dossier complet sur demande , permis accordés , assainissement des eaux usées réalisé et accepté par le Spanc . Les travaux de rénovation on débutés en grosse partie pour le gros œuvre . Le projet fini aura une superficie habitable de 274 m² , 5 chambres , 2 salles de bains , un bureau , un séjour de 52 m² , cuisine ouverte avec salle à manger , une terrasse au rez de 60 m² et une autre terrasse solarium à l'étage de 62 m² .
A apprécier sans tarder

Maj le 30/10/2025 - Réf. agence : 84077038 - Réf Superimmo : ANVXUP616
Vous rencontrez un problème sur le site ?
Merci de nous signaler le problème
Caractérisques
Prix de vente : 90 000 € Prix en baisse

Honoraires à la charge du vendeur.

13 pièces - 6 chambres - ter. 2 850 m²Année de rénovation : 2020
Année de construction : 1900Séjour de 52 m²
Cheminée
Intéressez par ce type de bien ?
Pour recevoir par email les annonces similaires
CRÉER UNE ALERTE
Localisation
DEMANDER L’ADRESSE
Cette annonce vous est proposée par :
06 44 79 92 32 Appelez de la part de Superimmo.com

Vos informations sont transmises directement à l'agence afin qu'elle traite votre demande. Voir notre charte des données personnelles.