06 47 06 02 90 Appelez de la part de Superimmo.com

Vos informations sont transmises directement à l'agence afin qu'elle traite votre demande. Voir notre charte des données personnelles.

Contacter par email
Description

LIMITE MERIGNAC / CAUDERAN - DISPONIBLE IMMEDIATEMENT
Située dans un quartier calme et agréable, avec tous les commerces et services à proximité, cette maison offre une qualité de vie exceptionnelle.
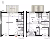
Au rez-de-chaussée, une grande pièce de vie baignée de lumière, orientée plein sud, s'ouvre sur un jardin intime agrémenté d'une pergola idéale pour des moments de détente en extérieur. Un WC indépendant, un espace de rangement et une buanderie avec attente pour lave-linge complètent ce niveau fonctionnel et convivial.
À l'étage, vous découvrirez une chambre confortable, un bureau propice au télétravail, ainsi qu'une élégante suite parentale comprenant une salle d'eau et une salle de bain double vasque avec attente pour lave-linge.
Les prestations qualitatives de cette maison sauront vous séduire : parquet en chêne, carrelage 60x60, terrasse en bois, cuisine aménagée et façade en brique apportent confort et esthétique à cet ensemble harmonieux.
Cette maison allie confort, luminosité et praticité pour répondre à toutes vos attentes.
Deux places de parking sécurisées complètent ce bien.
- Frais de Notaires Réduits
- Garanties
- RT 2012
- Disponible Immédiatement
- ...
LIMITE MERIGNAC / CAUDERAN - DISPONIBLE IMMEDIATEMENT
Honoraires à la charge du vendeur. Dans une copropriété de 36 lots. Aucune procédure n'est en cours. DPE en cours. Les informations sur les risques auxquels ce bien est exposé sont disponibles sur le site Géorisques : georisques.gouv.fr.
Votre conseiller RH Patrimoine : Maxime HERVE
Agent commercial (Entreprise individuelle)
RSAC 133095555 J
RCP 13309666 J

Publiée le 06/02/2025 - maj le 04/12/2025 - Réf. agence : VM694-RHPATRI - Réf Superimmo : ANVXXTE1Q
Vous rencontrez un problème sur le site ?
Merci de nous signaler le problème
Caractérisques
Prix de vente : 409 000 € Prix en baissePrix au m² : 4 928 € / m²

Honoraires à la charge du vendeur. Barème d’honoraires : voir le barème

83 m² - 4 pièces - 3 chambres - ter. 55 m²Orientation : Sud
2 Parkings1 terrasse
Année de construction : 2024Chauffage individuel au gaz
Cuisine ouverte, équipéeSéjour de 39 m²
1 salle d'eau - 1 salle de bainWc séparé - 2 wc
InterphoneCopropriété de 36 lots
Intéressez par ce type de bien ?
Pour recevoir par email les annonces similaires
CRÉER UNE ALERTE
Historique des prix
4 décembre 2025

Baisse de 4,7%

409 000 €
28 mars 2025

hausse de 7,5%

429 000 €
6 février 2025
399 000 €
Localisation
DEMANDER L’ADRESSE
Cette annonce vous est proposée par :
06 47 06 02 90 Appelez de la part de Superimmo.com

Vos informations sont transmises directement à l'agence afin qu'elle traite votre demande. Voir notre charte des données personnelles.

Autres recherches

toutes les maisons de 4 pièces à Mérignac