06 17 34 47 86 Appelez de la part de Superimmo.com

Vos informations sont transmises directement à l'agent afin qu’il traite votre demande.

Contacter par email
Description

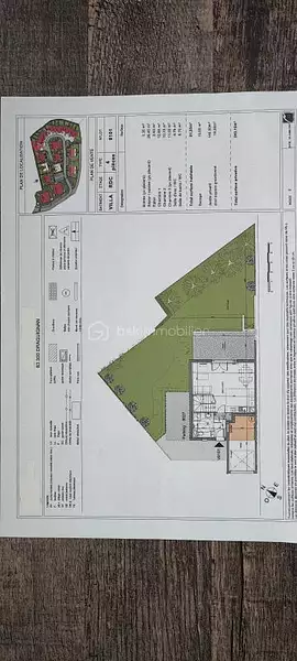
En exclusivité : Véritable opportunité pour cette Maison T4 garage parking neuve, jamais habitée et en cours de finition, (jardin, clôture,macadam finitions intérieures ect..). Dans une superbe petite résidence sécurisée, en situation dominante, et sans vis à vis , résidence à très faibles charges de copropriétés , venez découvrir cette maison T4 de 81 m2 avec 3 chambres et une salle de bains wc à l étage, un Salon séjour cuisine américaine ,une salle d eau, un WC indépendant un hall d entrée , un garage de 15 m2 et une place de parking supplémentaire à coté du garage et non devant ce garage. Le jardin fait 147 m2, le terrain est piscinable avec accord, une terrasse de 19 m2 la maison est équipée d une PAC clim au RDC, d un ballon d eau chaude thermodynamique, RT 2020 excellente isolation thermique et phonique étanchéité à l air maison BBC à très faible consommation d énergie. Cadre de vie très agréable très proche du centre ville des écoles et commerces ,sans les inconvénients d un centre ville .Il va falloir faire très vite pour cette dernière opportunité très abordable, sur cette résidence très prisée, car les constructions neuves avenir les prix ont flambés pour infos.Avantage vous avez droit au PTZ e
Cette annonce référence 243030 vous est présentée par votre agent commercial BSK Immobilier LAURENT DENEUVILLE (EI) immatriculé au RSAC de GRASSE (06130) sous le numéro 38357659200059.
Prix du bien : 359 900,00 €
Les honoraires d'agence sont à la charge du vendeur.
Non soumis au DPE.
Les informations sur les risques auxquels ce bien est exposé sont disponibles sur le site Géorisques : www.georisques.gouv.fr

Maj le 13/11/2025 - Réf. agence : 243030 - Réf Superimmo : ANVXWT6VP
Vous rencontrez un problème sur le site ?
Merci de nous signaler le problème
Caractérisques
Prix de vente : 359 900 €Prix au m² : 4 443 € / m²

Honoraires à la charge du vendeur. Barème d’honoraires : voir le barème

81 m² - 4 pièces - 3 chambresOrientation : Sud
Climatisation1 salle de bain
Intéressez par ce type de bien ?
Pour recevoir par email les annonces similaires
CRÉER UNE ALERTE
Localisation
DEMANDER L’ADRESSE
Cette annonce vous est proposée par :

Vos informations sont transmises directement à l'agent afin qu’il traite votre demande.

Autres recherches

toutes les maisons de 4 pièces à Draguignan