02 33 61 40 40 Appelez de la part de Superimmo.com

Vos informations sont transmises directement à l'agence afin qu'elle traite votre demande. Voir notre charte des données personnelles.

Contacter par email
Description

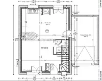
Delamarche immobilier vous propose en exclusivité ce pavillon avec travaux à réaliser sur la commune de Percy-en-Normandie. Situation : A proximité du bourg et de ses commerces. Description : Maison construite en 2022 en parpaing comprenant : Au rez de chaussée : une grande pièce de vie avec un espace salon - séjour, un coin cuisine et un WC. Au premier étage : un couloir, trois chambre et une salle de bain. Le tout sur un terrain de 500 m² avec un cour enrobée. Elément vendu avec la maison : Ballon thermodynamique, poêle à granulé, escalier, sanitaire (douche et wc). La maison contiens un compteur d'eau, et un compteur d'électricité de chantier. Absence de chauffage DPE NON REQUIS Les informations sur les risques auxquels ce bien est exposé sont disponibles sur le site Géorisques : www.georisques.gouv.fr CONDITIONS : Prix : 134 000 euros Honoraires charge vendeur. REF 9352SR Pour visiter contacter l'agence Delamarche Immobilier Gavray -Simon Regnault au 06 14 87 59 85 ou au 02 33 61 40 40.

Publiée le 29/03/2025 - maj le 22/11/2025 - Réf. agence : 9352SR - Réf Superimmo : ANVXY70GX
Vous rencontrez un problème sur le site ?
Merci de nous signaler le problème
Caractérisques
Prix de vente : 134 000 € Prix en baissePrix au m² : 1 675 € / m²

Honoraires à la charge du vendeur. Barème d’honoraires : voir le barème

80 m² - 4 pièces - 3 chambres - ter. 500 m²Année de construction : 2022
Assainissement : tout à l'égout1 salle d'eau
2 wcFenêtres double vitrage, en pvc
Intéressez par ce type de bien ?
Pour recevoir par email les annonces similaires
CRÉER UNE ALERTE
Historique des prix
5 juillet 2025

Baisse de 10,1%

134 000 €
13 mai 2025

Baisse de 6,9%

149 000 €
29 mars 2025
160 000 €
Localisation
DEMANDER L’ADRESSE
Cette annonce vous est proposée par :
823 avis clients
02 33 61 40 40 Appelez de la part de Superimmo.com

Vos informations sont transmises directement à l'agence afin qu'elle traite votre demande. Voir notre charte des données personnelles.

Autres recherches

toutes les maisons de 4 pièces à Percy-en-Normandie