06 84 83 84 98 Appelez de la part de Superimmo.com

Vos informations sont transmises directement à l'agent afin qu’il traite votre demande.

Contacter par email
Description

iad France - Valérie Kintzinger vous propose: MAISON DE VILLAGE ** GRANDES SURFACES ** A RENOVER ** FORT POTENTIEL RESIDENTIEL ET/OU COMMERCIAL ** PROJET DE GRANDE MAISON FAMILIALE ** POSSIBILITE COMMERCE / ACTIVITE ** JARDIN ** GARAGE **
Au coeur de la vallée de la Canner, découvrez cette maison unique, chargée d'histoire et offrant aujourd'hui de remarquables perpectives d'aménagement.
Ancienne épicerie puis boulangerie du village, elle séduit par son authenticité, ses volumes généreux et sa capacité à accueillir un grand projet familial, une activité professionnelle ou les deux.
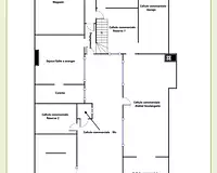
UNE SURFACE TOTALE DE 412 m² A REINVENTER
la maison se compose aujourd'hui de plusieurs espaces distincts, modulables selon vos envies ou besoins.
* PARTIE HABITATION ACTUELLE – 131 m² habitables / PARTIE COMMERCIALE ACTUELLE 112 m² habitables
Idéale pour imaginer une grande maison familiale, comprenant par exemple :
•Un vaste séjour ouvrant sur la cuisine puis la terrasse et la jardin
•3 à 4 chambres à l'étage
•Un espace parental au rez-de-chaussée
•Une salle de jeux ou bureau
•Des combles exploitables pour encore plus de volume
Pour vous projeter plus facilement, une vidéo de rénovation est disponible, accompagnée d’un QR code vous permettant de découvrir le plan 3D détaillé.
* ANCIENNE PARTIE PROFESSIONNELLE – 112 m² habitables + 131 m² d’annexes
Le rez-de-chaussée, autrefois dédié à la vente et à la boulangerie, peut aujourd’hui :
•devenir un grand séjour avec baies vitrées,
•accueillir un atelier,
•se transformer en salle de loisirs,
•ou retrouver une vocation commerciale (épicerie, boulangerie, service de proximité, restaurant de village, coworking…).
La commune est demandeuse de nouveaux services, un vrai atout pour un porteur de projet.
* DEPENDANCES, GRENIERS & JARDIN : de l’espace pour tout imaginer
Avec ses dépendances, ses greniers, son garage et son jardin, le bien offre un potentiel rare : stockage, stationnement, extension, création d’un second logement, atelier d’artiste, jardin familial…
* CADRE DE VIE RECHERCHE
Située dans un environnement calme, verdoyant et apprécié, la commune propose :
•Écoles de la maternelle au collège
•Services médicaux
•Agence bancaire et postale
•Transports : lignes de bus, gare TER
•Accès rapide : 15 min de l’A31, 30 min du Luxembourg et de l’Allemagne
•Pistes cyclables et mobilités douces
Un quotidien pratique et serein, parfait pour une famille ou un projet de vie mixte.
POUR RESUME, UN BIEN A FORT POTENTIEL, IDEAL POUR :
- Une famille cherchant de grands volumes
- Un artisan, indépendant ou professionnel libéral
- Un investisseur pour division ou transformation
- Un porteur de projet commercial
- Toute personne voulant réinventer un lieu chargé d’histoire
Honoraires d'agence à la charge du vendeur.
Bien non soumis au DPE. Les informations sur les risques auxquels ce bien est exposé, y compris l'obligation légale de débroussaillement, sont disponibles sur le site Géorisques : http://www.georisques.gouv.fr.
La présente annonce immobilière a été rédigée sous la responsabilité éditoriale de Mme Valérie Kintzinger mandataire indépendant en immobilier (sans détention de fonds), agent commercial de la SAS I@D France immatriculé au RSAC de THIONVILLE sous le numéro 911048528, titulaire de la carte de démarchage immobilier pour le compte de la société I@D France SAS.

Publiée le 16/05/2025 - maj le 16/11/2025 - Réf. agence : 1759084 - Réf Superimmo : ANVXYJE5X
Vous rencontrez un problème sur le site ?
Merci de nous signaler le problème
Caractérisques
Prix de vente : 155 000 € Prix en baissePrix au m² : 635 € / m²

Honoraires à la charge du vendeur. Barème d’honoraires : voir le barème

244 m² - 9 pièces - 4 chambres - ter. 533 m²Année de construction : 1900
Bilan énergétique
Non soumis au DPE
Intéressez par ce type de bien ?
Pour recevoir par email les annonces similaires
CRÉER UNE ALERTE
Historique des prix
15 novembre 2025

Baisse de 11,4%

155 000 €
16 mai 2025
175 000 €
Localisation
DEMANDER L’ADRESSE
Cette annonce vous est proposée par :
22 avis clients
06 84 83 84 98 Appelez de la part de Superimmo.com

Vos informations sont transmises directement à l'agent afin qu’il traite votre demande.

Autres recherches

toutes les maisons à rénover en Moselle