06 65 62 06 13 Appelez de la part de Superimmo.com

Vos informations sont transmises directement à l'agent afin qu’il traite votre demande.

Contacter par email
Description

IDÉAL INVESTISSEUR (rentabilité mini de 2000 euros)
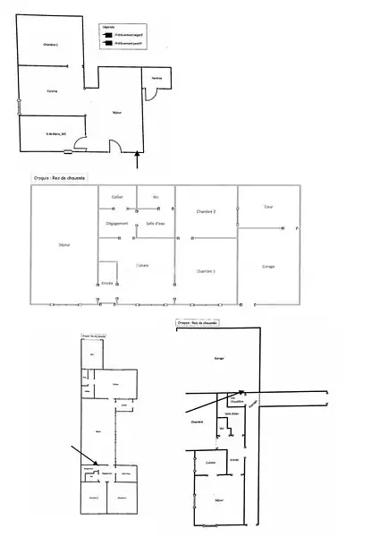
Je vous propose un ensemble immobilier à Bethune (proche du centre ville et de la gare qui se compose de 4 maisons
- une maison de 88m2 avec 2 chambres + laverie + place de parking classée E (libre de toute occupation)
- une maison de 33m2 avec une chambre et garage + place de parking classée F (libre de toute occupation )
- une maison de 36m2 avec une chambre + place de parking classée E (libre de toute occupation )
- une maison de 62m2 loué avec place de parking classée F
Rentabilité : mini 2000 euros
Cette annonce référence 274064 vous est présentée par votre agent commercial BSK Immobilier FLORENCE LEFRANCQ (EI) immatriculé au RSAC de ARRAS (62000) sous le numéro 81455732800014.
Prix du bien : 269 000,00 €
Les honoraires d'agence sont à la charge du vendeur.
Cette annonce référence 290805 vous est présentée par votre agent commercial BSK Immobilier FLORENCE LEFRANCQ (EI) immatriculé au RSAC de ARRAS (62000) sous le numéro 81455732800014.
Prix du bien : 269 000,00 €
Les honoraires d'agence sont à la charge du vendeur.
Les informations sur les risques auxquels ce bien est exposé sont disponibles sur le site Géorisques : www.georisques.gouv.fr

Publiée le 04/06/2025 - maj le 20/11/2025 - Réf. agence : 290805 - Réf Superimmo : ANVXYPY2R
Vous rencontrez un problème sur le site ?
Merci de nous signaler le problème
Caractérisques
Prix de vente : 269 000 €Prix au m² : 1 228 € / m²

Honoraires à la charge du vendeur. Barème d’honoraires : voir le barème

219 m² - 10 pièces - 6 chambresChauffage individuel électrique
Intéressez par ce type de bien ?
Pour recevoir par email les annonces similaires
CRÉER UNE ALERTE
Localisation
DEMANDER L’ADRESSE
Cette annonce vous est proposée par :

Vos informations sont transmises directement à l'agent afin qu’il traite votre demande.